位於日本東京,由普利茲克建築獎得主、日本建築師事務所 SANAA 主持人西澤立衛為業主森山康夫擘畫的「森山邸」,顛覆了傳統住宅定義。這座宛如「森林小鎮」的建築群,將生活機能拆解為十個獨立單元,不僅模糊了公私場域界線,更在冷冽的極簡外觀下,孕育出半共享的新型態社區聚落。面對高齡化與孤獨死的社會課題,這場建築實驗不僅是居住空間的革新,更是對人際關係的深層反思,展現出當代建築介入社會議題的溫柔力量與無限可能。

在當代住宅的發展歷程中,住宅作為家庭生活的具象空間承載著居住者及建築師或溫和或激進的想法。西澤立衛(Ryue Nishizawa)設計的森山邸(Moriyama House)彼此相鄰而各自獨立的佈局,提出了一種半共享的居住模式,在此的居民之間建立了一種全新的社區團體。

Moriyama House©Jeroen Verrecht

什麼才是一座當代住宅該有的樣子?幾乎每個當代建築師都會在實踐中思索過這樣的問題。
住宅設計可以算是所有項目中最個人化、承載最多情感、也最脆弱的項目類型。建築師與業主在極短時間內締結了一段極親密的關係,但不是每段關係都能善終。建築師往往被詬病把自己推崇的那一套現代話語強加於業主需求之上。

Moriyama House©Iwan Baan

Moriyama House©Jeroen Verrecht
事實上每座有名的20世紀現代住宅背後都有一段建築師與業主之間的對峙,其中包括業主落空的抱負、未實現的需求、衝突的施工安排、誤解、積怨甚至對簿公堂。這些齟齬不僅存在於手繪草稿、建築模型、公開發表的攝影作品裡,也在抱怨信、私人日記與法規檔案中。它們存在於一座住宅所真實塑造的生活方式裡。

Moriyama House©Jeroen Verrecht

Moriyama House©Jeroen Verrecht
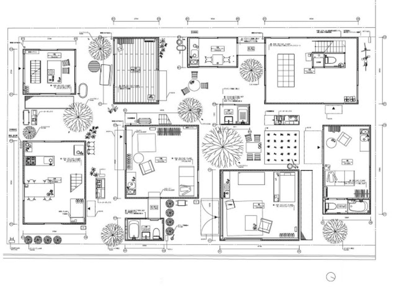
位於東京的森山邸,由西澤立衛設計建造於2002至2005年之間。一眼望去,森山邸的平面佈置並不像一座典型的住宅。它沒有獨立圍合的單體建築,而是由十個棱柱般的單體按照特定角度細緻排列在場地。如同被無形的力量牽引,每個體量間並不互相接觸。纖細的鋼結構外刷了一層白漆,讓人聯想到醫院診室。每個單體的門窗開洞皆是方形或長方形,像被手術刀精準切割過。
森山邸的建築模型也散發著一種無菌環境的氣氛,好似沒有生命跡象。它沒有材質變化,沒有明顯外露的構造,整個佈置很容易讓人感到不合尺度甚至有一些反人類。是怎樣的人類才會夢想住進這樣的建築裡,這處建築又滿足了人的哪些需求?
Ryue Nishizawa, Office of Ryue Nishizawa. Moriyama House, Tokyo, Japan (Scale model, 1:50). 2002-2005. Acrylic, 6 1/2 x 10 3/8 x 17 1/2” (16.5 x 26.4 x 44.5 cm). ©Ryue Nishizawa / SANAA

Moriyama House©Ryue Nishizawa / SANAA

Moriyama House©Ryue Nishizawa / SANAA
業主森山康夫(Yasuo Moriyama)是一位從沒離開過日本的中年男子,甚至從不曾離開自己的家鄉東京。在千禧年早期,他給西澤立衛寫信請他為自己設計一座住宅。
西澤是這樣回信的:“你需要的不是一座房子,而是一座森林裡的小鎮。”收到這樣診斷般的建議後,森山竟然真的決定聽從西澤的建議。

Moriyama House©Bêka & Lemoine

Moriyama House©Bêka & Lemoine
西澤立衛構想了一個由“單元”組成的“集合體”,他以字母A-I的順序為這些單元編號。其中一些單元承擔著獨立的功能,比如單獨作為起居空間的“C”單元,作為洗漱間的“D”單元。另外5個單元具有更複雜完整的功能,就像一個獨立的小公寓。每個單元之間的間距都幾乎相等,保證了每個小公寓都有自己的小花園,住戶可以在這裡種蔬菜、晾衣服或者露天辦公。
進行住宅委託時,森山正在經營一家酒類商店,但他最想做的事情就是呆在家裡,整日沉浸在他的海量cult電影、音樂收藏中,而重中之重,則是閱讀。有了將5個迷你小公寓進行出租的租金收入,森山就可以關掉店舖,全身心投入到自己的愛好中。2006年,森山唯一在世的親人——他的母親去世後,森山變成了孤零零的一個人,只有愛犬陪伴他去附近的家族墓地祭拜。

Moriyama House©Bêka & Lemoine

Moriyama House©Bêka & Lemoine

Moriyama House©Bêka & Lemoine
沒過多久,森山就成功租掉他“小鎮”中的5間迷你公寓。森山邸被世界範圍內無數的媒體報導,雖然尚未完工,項目就在日本內外收穫了大片狂熱粉絲。獵奇的建築師與學生潮水般湧來,在建築前參觀、拍照。不難想像,森山邸首批租客幾乎都是西澤立衛事務所的年輕建築師,還有一位是當代建築雜誌的編輯。
森山的“森林小鎮”很快就成為設計師的聚落。跟著森山的步伐,很多新鄰居也開始在家辦公,生活與工作之間的界限變得模糊,個體與聚落也不再分明。森山的生活日常不僅被建築形體本身塑造,也被建築師塑造了。

Moriyama House©Iwan Baan

Moriyama House©Iwan Baan

Moriyama House©Iwan Baan
很快,十座相鄰的立方體般的建築意外演變為一種社交網路,成為新型的半共享社區生活。鑑於沒有一座單元被設計為住戶共享,森山的“單元C”起居室充當了公共空間。住戶們在這裡一起享用午餐,在炎炎夏日喝冰啤酒,在屋頂看露天電影。
森山告訴住戶,“你們可以在這裡隨心所欲做自己喜歡的事情”。單元之間的小逕自然而然成為了住戶日常交流的據點,人們一起聊天,喝清酒,或者燃放煙火。

Moriyama House©Bêka & Lemoine

Moriyama House©Bêka & Lemoine

Moriyama House©Bêka & Lemoine
森山邸是一座建築化的社交孵化器,鼓勵深居簡出的住戶跨越門檻,到處走動,到自己的舒適區外,即使只是漫無目的的到處走走。每一次漫步都是一次縮小版的城市旅行,即使只是從一個單元到另一個單元,也是涉足了戶外活動。
行走在蜿蜒的園中小徑,住戶透過單體間隙可以一眼望到街景,緩慢行駛的腳踏摩托,投件的郵差,身著傳統和服推著塑料箱前行的婦人。對森山邸瞭解越深,越會發覺看似分散的結構組織與其說是安身之處,不如說是為被其吸引來的離群索居的住戶們提供的公共生活支援。

Moriyama House©Iwan Baan

Moriyama House©Iwan Baan

Moriyama House©Iwan Baan
這種介於公共與私密之間的生活方式是否不僅僅是建築副產物,而是一劑從建築出發的社會良方。
近幾十年,日本越發趨近“無緣社會”,老年人的“孤獨死”現象也愈演愈烈,成為備受關注的社會問題。越來越多的人們獨自一人生活,身邊沒有親戚,也沒有朋友。森山邸的單元雖然比鄰而立,但每個相鄰單元的窗戶都不直接與對面相沖,保證了相對的私密。

Moriyama House©Iwan Baan

Moriyama House©Iwan Baan
森山邸分離式的平面不僅僅是一場異想天開的建築腦洞,它更是一次對家庭內人際空間關係的探索,或者說是一場新型家庭結構的社會實驗,一處獨居個體共享空間的建築社區原型。


Moriyama House©Iwan Baan

Moriyama House©Iwan Baan


Ryue Nishizawa, Office of Ryue Nishizawa. Moriyama House, Tokyo, Japan (Ground-floor plan). 2002–2005. Pigmented inkjet print, 13 3/4 × 19 7/8″ (34.9 × 50.5 cm). The Museum of Modern Art, New York. Gift of the architect



關於SANAA事務所

SANAA事務所由妹島和世與西澤立衛於1995年創立於東京都品川一個改造舊倉庫中,二人於2010年獲得普利茨克獎。
除了對結構和設計的關注,他們把目光放到居住群落,著眼於環境與業主的個人需要,經過細緻的研究,加上直覺的感受構成SANAA獨有的設計語言。


透明與開放:米蘭博科尼大學新校區建成 / SANAA
除了擺脫傳統固有模式,他們也為應對複雜環境提供實用又靈活多變的設計。他們在項目中大量使用玻璃等透明材料,構成交錯滲透的空間,將人們從對建築空間固有的體驗與透明觀感中解放出來。在SANAA多年的實踐中,他們的基本理念深刻影響了年輕一代建築師。


Grace Farm © Dean Kaufman
