位於西班牙特內里費島南部海岸的Parque La Paz酒店需要進行徹底的整修,許多問題形成更新和翻新的明確需求,包括無障礙設施、自1987年開幕以來沒有重新裝修過的房間,以及從公共和辦公空間的既有問題。
重新組織的方法受入口獨特的重要性所啟發,不僅是作為一個景點,也是出於感官方面的考慮,建築師去掉了地面層的兩個房間,以將接待區與室外連接。主入口被規劃在一個與街道相接的布篷之下,以歡迎客人進入。爬上一段舒適蔭蔽下的緩坡,就是接待處。接待處的屋頂是一個繩編涼架,可以遮擋光線並且能夠實現良好的通風。

© Flavio Dorta

© Flavio Dorta

© Flavio Dorta

© José Oller

© José Oller

© Flavio Dorta

© José Oller

© Flavio Dorta
在內部,一個由火山石和龜背竹組成的植栽池迫使人轉個彎,增加了多重的視角,並且暗示作為一個休閒的假期歇息處。其後,可以選擇進入接待處,或是進入新的大堂酒吧,或是放鬆地在擁有舒適微氣候的新的休息區中休息。

© Flavio Dorta

© Flavio Dorta

© Flavio Dorta

© José Oller
一旦訪客進入內部,一個大而明亮的空間被陶瓷表皮覆蓋,與卡拉拉大理石櫃台的設計相結合。所有這些都位於一個氈頂之下。氈頂位於交叉的梁線之間,使人想起碎片化的當地景觀。游泳池就位於附近的區域。

© Flavio Dorta

© José Oller

© Flavio Dorta

© Flavio Dorta
共同的元素:編織繩索
編織繩索形成了一個巨大的手工編織的天蓬,發揮遮蔽作用並構成了各種空間:酒吧游泳池位於景觀的淺色調之中,被魚鱗般的陶瓷片包裹,吸引人們觸摸;寬闊的混凝土長凳的幾何形狀定位了動線並組織了不同的區域,將直接進入日光浴室和游泳池區域的入口分開(後者被花園環繞,用單一的、高度通用以適用於整個空間要求的陶瓷材料固定)。
側向空間,一個位於頂篷下方的編織量體,被保護免受日光直射,微風透過繩牆穿越其中,就像一個包括了指定區域的籃子-一個小型舞台,DJ室,按摩區等等。

© Flavio Dorta

© Flavio Dorta

© Flavio Dorta
最後,關於房間翻新,主要的策略是改善原有的舒適環境。因此,設計團隊採取一個可調節的木條框架增加了交叉通風,並應用了設定的材料調色板來強調舒適感,像是木頭色、大理石、水和白色陶瓷。

© Flavio Dorta

© José Oller
建築圖

全區配置圖

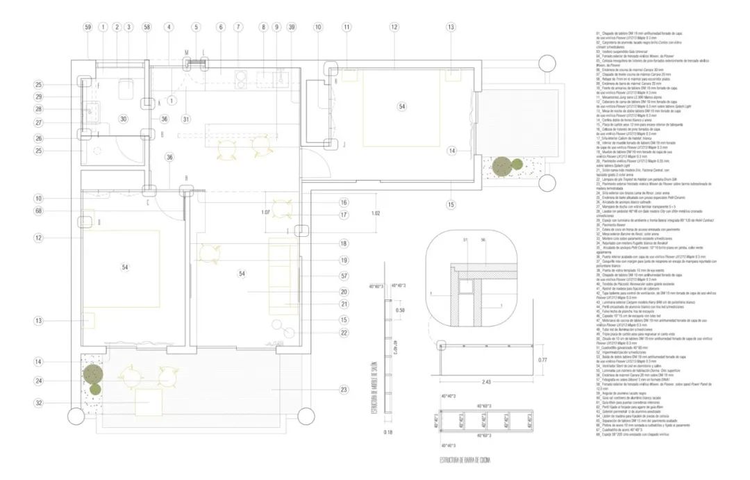
一樓平面圖 Plan

平面圖 Plan

平面圖 Plan

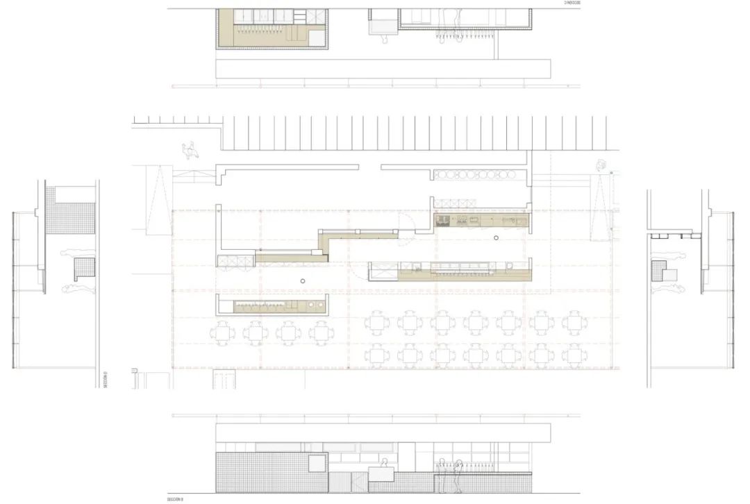
平面圖 Plan&立面圖 Elevation

剖面圖 Section

剖面圖 Section

剖面圖 Section
作品資訊
建築設計:equipo olivares arquitectos
作品類型:酒店
作品位置:C. Luis Diaz de Losada, 2, 38650 Playa de la Américas, Santa Cruz de Tenerife, 西班牙
竣工:2021
主持建築師:Javier Pérez‐Alcalde Schwartz, Fernando Aguarta García, Jorge Díaz Rodríguez
技術建築師:José Floreal Martínez Bermúdez, Julia Fariña Masset
攝影師:Flavio Dorta,José Oller
