
© Michel Denance

© Michel Denance
位於洛桑的瑞士聯邦理工學院的新校區被命名為 Artlab,包含三個主要部分:藝術科技館,技術信息中心以及 Montreux Jazz 咖啡廳。三棟建築被一個長約235米的屋頂相連,相鄰建築之間的空隙成為區域內的兩道軸線,是校園內的建築佈局更加清晰。

© Michel Denance

© Michel Denance

立面圖
依照日語中「同一屋簷下」的說法——「ひとつ屋根の下に」,同樣意味著各種不同的人聚在一起,團結起來。Artlab 用建築語言描繪了這層含義。
建築的結構和外立面使用了瑞士本土的木材,保溫的同時圍合了空間,木柱的兩側由鋼板夾住,使空間透明柔和。屋頂採用瑞士常用石頭材質,底部模擬摺紙形態,根據光影形成不同程度的彎曲。

© Michel Denance

© Michel Denance

© Michel Denance
項目坐落於EPFL校園中央一個大型草坪上,草坪北側有濱海廣場、社交中心以及電車站,南側為學生住宿區,西側佈局較為密集,東側則正圍繞學習中心進行發展。雖然場地佔位重要,但仍然無法成為區域的中心,組織周邊環境,因此存在功能定位的問題。

人流分析圖

© Michel Denance

© Michel Denance

© Michel Denance
場地給場館的定位和發展方向提供了無限可能,最終建築師決定將三個必要的場館集中在一個薄且長的建築物中,這種改動使原本沒有實質功能的場地變成一個嶄新的公共空間,成為校園內名副其實的中心。

© Michel Denance

© Michel Denance

© Michel Denance
235米長的屋頂為從北部 Esplanade 廣場向南邊住宅區穿行的人提供遮陰。
場館之間的連廊一直連通到西側的主街上,公共停車場位於這條街上。連廊的另一側連到東側植被茂密的步行道上。門廊將校園東西兩側串聯起來,為建築提供滲透性和吸引力。

© Michel Denance

© Michel Denance

軸測圖
通過改造,這塊屋簷下的場地成為學生、教授和遊客開展活動、休閒停留的場所。建築師堅信,這塊場地將成為整座校園社交和文化的焦點。

© Michel Denance

© Joël Tettamanti
結構方面,為了保證從Esplanade廣場可以觀賞到湖面的景色,建築的北端設計的非常薄,南端則有16米寬。因此要解決寬度上誇張變化的建築形態,建築師採用木材結合鋼材的新型結構作為解決策略。不斷調整木材和鋼材的比例,57個結構出入口在不同跨度上具有完全相同的截面,使項目模塊化,便於預製。

© Michel Denance

結構截面
廣場位於 Esplanade 和南側宿舍區之間,是校園的中心,建築的屋簷給廣場上的行人提供陰涼。屋頂保護了建築的上半部分,外立面的木質覆層將會產生不均勻的老化現象,因此木材經過了提前老化處理保證其的穩定性。立面材質為有良好耐性的落葉松。經過老化處理的淺灰色調木層和深灰色的石板屋頂將建築狹長的打造的十分安靜。冷灰色色調與廣場周圍建築就想和永遠陰天的洛桑對話一樣。只有當你靠近建築,站下屋簷下時才會發現木製天花板的暖意。

結構細節

© Michel Denance

© Michel Denance

© Michel Denance

綠色空間

場地概念

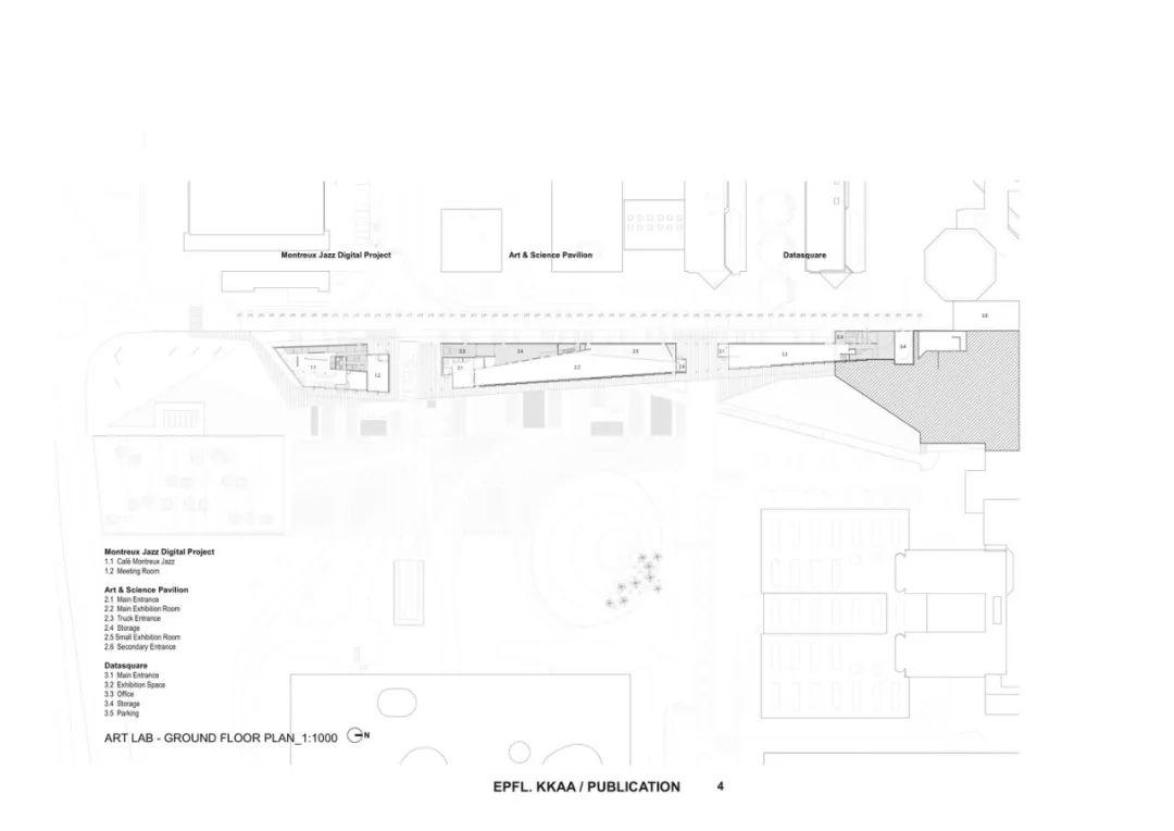
地面層平面圖

一層平面圖

屋頂平面圖

縱向剖面圖




橫切剖面圖
>>相關資訊
建築事務所: Kengo Kuma & Associates
作品地址: Lausanne, Switzerland
主創建築師: Kengo Kuma & Associates / Javier Villar Ruiz (合夥人),以及設計團隊 Nicola Maniero, Rita Topa, Marc Moukarzel, Jaeyung Joo, Cristina Gimenez
本地建築師: CCHE
作品年份: 2016
攝影師: Joel Tettamanti, Michel Denance
結構工程: Ejiri Structural Eng./ Util
水電風工程: BuroHappold Engineering
本地建築師: Holzer Kobler Architekturen
承建商: Marti Construction SA
照明設計: L’Observatoire Internationale
結構: INGPHI SA, Concepteurs d’ouvrages d’art (project phase)
建築服務: BG Ingénieurs Conseils
聲熱: AAB
木材工藝: JPF Ducret
