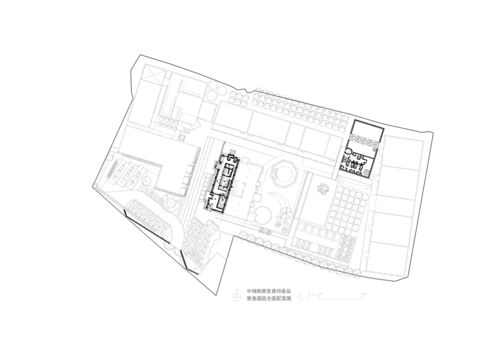
嘉義縣中埔鄉農會辦公廳是利用至今已閒置荒廢的公糧倉庫所整修改建而成。整個農會糧倉用地約1.1公頃,內有18棟各具特色的歷史糧倉建築,包含這棟辦公空間及景觀廁所,未來有計畫將整區改為農特產品展售園區。
基地前道路即是通往阿里山國家風景區的主要幹道,西側則緊接國道三號交流道,並銜接嘉義市區,高速且車流量大,配合低矮建築衍生商業招牌無規範雜亂叢生的街景,為典型的交流道區域屬性以及台灣鄉鎮無可脫離的邊緣化特性。

辦公區、茶水間等員工使用的場所則配置在與另一棟穀倉背對相鄰的東側,借此可遠離進出民眾的干擾,並且隔著公用走道及未來將爬滿西側外牆的綠籬,以減緩西曬所產生的熱輻射對長時間需要待在辦公區的員工的影響。
園區內雖已廢棄,但舊有糧倉仍結構完好,內部亦無滲水及損毀的狀況,因此在置入新機能考量與設計的前提,希望能盡量保有舊建物的架構和外部形態,適度地保留該場所過往的氛圍,間接地縫合對農耕時代的碎散記憶,使場所具有記憶延伸性,重新錨定舊有建物存在的意義。








辦公廳入口外觀(結構體改建完成)。新置入的金蘭辦事處沿用原有的南向開口作為主入口,以突出舊牆體的ㄇ型RC塊體對外顯示新的符號自舊建物產生,並清楚地表達了位階上的關係。

從入口處進入後,以清水混凝土牆和各種尺寸的方形開口重塑了一個內中庭的空間,敲空的中庭引進了大量的光線,利用大量的天光產製界線,強化對內部暗屬性以及對舊牆面的感知。抽象的中庭隨著不同時間光影與跳動的開口,產生了對空間時間的延宕感。

























整體園區的主入口大門暨圍牆以高達2.6米的連續重複直立混凝土柱簡單劃分出園區的邊界,隨著置身於園區內步行的人拉開與圍牆的距離,外在一層樓高度的街景被圍牆篩去愈多,以至於終再不見沿街景;順著身體的節奏製造感知的超現實經驗,人終究投入並完全被包裹於園區中。

辦公廳及景觀工程為金蘭辦事處全區規劃的初期階段,介於新與舊之間的增改建設計原則為力求不過度張揚新建物、亦不刻意凸顯舊建物,在此階段取得新舊之間的平衡。有待日後公糧倉庫已不堪修整的部分拆除後,於其位址興建下一階段的規劃設計,以達成園區整體新舊之間對話的最大張力。










作品資訊
作品名稱:嘉義中埔農會辦公廳暨戶外廁所
作品位置:嘉義縣中埔鄉
業 主:中埔鄉農會
作品類型:舊建築改造、辦公空間
建 築
事 務 所:i²建築研究室
主 持 人:徐純一
參 與 者:i²建築研究室
監 造:i²建築研究室
景 觀:i²建築研究室
施 工
營 造 廠:仲台營造有限公司
水 電:富國 / 鴻泰電機技師事務所/中華水電行
景 觀:五祖土木包
材 料
建 築:舊有穀倉外牆保留、清水混凝土、紅磚、烤漆鋼板
開 口:舊有磚牆洗孔封防蟲網、鋼框窗、玻璃
辦 公 廳:清水混凝土、板岩面磚、木地板、馬賽克磁磚、耐火磚、紅磚、實木隔柵
廁 所:清水混凝土、清水磚、馬賽克磁磚、霧面不銹鋼板、磨石子、碎石
景 觀:舊建築磚牆拆除回收利用、碎石、混凝土地坪、瀝青、鋼板封邊
基地面積:406㎡
建築面積:353㎡
設計日期:2011年3月至2011年5月、2017年10月至2018年2月
工程日期:2011年8月至2011年11月、2012年1月至2012年3月、2018年3月至2018月12月