佳斯比企業總部辦公大樓/國棟建築師事務所

0
2339

佳斯比企業集團其關係企業跨足兩岸三地及越南,以運動鞋材為主業,近年來逐漸整合自主研發、生產、銷售,成為鞋材行業中擁有完整供銷鏈之企業。在設計上,除了將本案定位成企業之全球營運總部外,希望藉由對該企業集團及基地環境的認識解析,以滿足企業的空間需求及動線問題,對此,國棟建築師事務所訂定了幾個設計課題:1.基地內外風水處理 2.解決正面西曬問題 3.建構企業品牌形象。

佳斯比企業總部辦公大樓 將該企業慣用的紅、白用色妝點到正面外觀;圖片提供/國棟建築師事務所

本案為地下一層、地上七層建築物,一層為進出貨層,二層主要為辦公室及視訊會議室,三層為企業形象產品展示館及主管辦公室,四至六層為倉庫層,七樓為員工交誼、多功能訓練教室、餐廳。

佳斯比企業總部辦公大樓 日景外觀(左)、夜間照明投射到鋁擴張網正面外觀(右);圖片提供/國棟建築師事務所

基地解題

基地前方為西向單面臨路,後方鄰近大里溪及大坑風景區,兩旁皆已興建12樓之住宅大樓,前方為完工透天別墅,又因為法規的問題必須控制高程,造成了風水上有兩個必須解決的問題。首先是俗稱斷頭煞的兩邊高中間低的建物風水,我們先將一樓樓高加高,剩餘樓層樓高也比一般住宅高些再加上屋突三層及造型框架來減少與鄰戶的高度差距,在幾乎與其他兩棟差不多的高度下,解決了第一個風水問題,其次是台灣興建房屋常遇到的風水問題「壁刀」,我們運用了材質上的特殊性大大減緩了壁刀的視覺性,間接解決了另一風水問題。

建築師手繪外觀透視;圖片提供/國棟建築師事務所

平面配置

由於基地主要面向西曬問題,我們在二樓平面上將長時間使用的辦公空間向後方配置,將比較少使用的會議室移到前方,以作為西曬的緩衝空間,由於我們將辦公空間夾在中間,所以在基地縱向的隔間多數採取玻璃隔間,增加辦公工作區的光線,並在地面層以上的樓梯跟茶水間之間設置採光天井可以為三方增加採光面。三樓的空間屬於企業產品展示空間及主管辦公室區域,我們將展示空間置於中央,其餘的空間圍繞其配置,由於此配置導致展示空間在其餘空間的夾擊和動線安排的空間會有些違合感,於是我們將展示空間用線性的金屬圓管做出如同將布匹展開的弧形展示間減緩了此衝突,又因為是線性的隔間,所以會有穿透的縫隙,大幅的降低展示空間及走廊空間的壓迫感。

圖片提供/國棟建築師事務所

圖片提供/國棟建築師事務所

圖片提供/國棟建築師事務所

圖片提供/國棟建築師事務所

圖片提供/國棟建築師事務所

圖片提供/國棟建築師事務所

空間組織概念拆解等角透視圖;圖片提供/國棟建築師事務所

鞋材織布

業主本身是經營鞋材織造的企業,因此在最初的時候就積極地將此織布意象納入我們的建築與室內設計中,在立面上我們將其依空間使用之功能分成三等分,由下到上分別為貨物、辦公、倉庫及休憩區,將空間的自明性反應到正立面,最後再將其整合為一,貨物區就不多做著墨,低調地將其作為凸顯上面各部分的背景,辦公區我們用企業慣用紅色的鋁框做為整座建物的亮點,倉庫及休憩區作為最大量的立面造型,運用水平的板狀如同編織器的零件,加上垂直不規則的鋁金屬線條,讓整個立面以點、線、面交織手法,宛如一部機器在編織著一匹布,局部運用金屬編織網強化其織布的元素。

鋁擴張網隱諭為鞋材織布,輔以金屬線型構件以點、線、面的動態語彙,並將企業慣用的紅、白用色妝點到正面外觀;圖片提供/國棟建築師事務所

立面設計概念拆解圖;圖片提供/國棟建築師事務所

西向立面詳圖(左)、南向立面詳圖(右);圖片提供/國棟建築師事務所

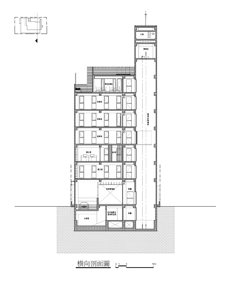
橫向剖面圖(左)、縱向剖面圖(右);圖片提供/國棟建築師事務所

 

鋁擴張網(左)、模型照片(右);圖片提供/國棟建築師事務所

室內空間

「編織」也是我們這次室內空間設計概念的主軸,採取點線面的設計方式交錯其中,取得各個空間的協調與平衡。二樓在辦公室內空間入口Logo牆上天花板設計了一個紅色的大型框架網,將亮點配置於此,大多數的天花板皆採取線條的框架配上金屬網猶如正在天花板編織出一匹布般的形象,三樓展示區採取白色金屬圓棒圍繞出一弧度,柔和了周遭空間的剛硬感。七樓因為是員工休憩、用餐兼教育訓練的空間,所以將其調性定為柔性空間,刻意將空間與辦公區塑造出完全不同的氛圍,而不是繼續延續辦公區的意象,這樣才能讓員工到此處更為放鬆,而非只是感覺到了另一個辦公區用餐。

將企該企業慣用的紅、白用色妝點到室內玄關空間;圖片提供/國棟建築師事務所

二樓大型視訊會議室;圖片提供/國棟建築師事務所

菱型金屬網輔以金屬線型構件,在室內空間次意演出,並將企業慣用的紅、白用色妝點到室內空間;圖片提供/國棟建築師事務所

 

三樓弧形排列鋼管柱界定出企業形象產品展示館;圖片提供/國棟建築師事務所

三層為企業形象產品展示館;圖片提供/國棟建築師事務所

基地南邊姿態優美的斑葉櫸木奮力向上生長至三、四層,讓室內辦公區皆能感受到綠影的自然氛圍;圖片提供/國棟建築師事務所

七樓為員工交誼、多功能訓練教室、餐廳;圖片提供/國棟建築師事務所

七樓為員工交誼、多功能訓練教室、餐廳的金屬網天花;圖片提供/國棟建築師事務所

企業LOGO妝點到清水混凝土圍牆上與烏桕樹相映成趣;圖片提供/國棟建築師事務所

 

基本資料
作品名稱:佳斯比股份有限公司企業總部辦公大樓
作品地點:台中市北屯區太和東街128號
業  主:佳斯比股份有限公司
主要用途:公司企業總部暨研發、辦公及倉庫空間

建  築
事  務  所:國棟建築師事務所
建  築  師:黃國棟
參  與  者:黃國棟、陳昱甫、林妙青、陳昱成、丘育瑄、徐幸君
監  造:國棟建築師事務所
結  構:泉盛工程顧問有限公司、劉勇男結構技師事務所
水  電:鉅鑪工程顧問有限公司
空  調:日誠冷凍空調工程有限公司
景  觀:國棟建築師事務所

施  工
營  造  廠:永進營造股份有限公司
  屬:勝群金屬股份有限公司、信德鋼網有限公司
  內:國棟建築師事務所
水  電:進信水電工程有限公司
空  調:日誠冷凍空調工程有限公司
景  觀:國棟建築師事務所
照  明:國棟建築師事務所

材  料
建  築:外牆鋁擴張網、丁掛磚、鋁包版、鋁飾板
開  口:玻璃帷幕牆、帷幕窗8+8+8 Low-e玻璃、鋁格柵
室  內:印象山水大理石、60*120霧面拋光磚(羅特麗)、菱形網、金屬圓管
景  觀:烏臼樹、斑葉櫸木、仿岩面石英磚、環塑木、抿石子

基地面積:533.7㎡
建築面積:287.28㎡
總樓地板面積:2410.76㎡
設計日期:106年7月至109年7月
工程日期:107年3月至109年5月
圖片提供:國棟建築師事務所
撰  文:陳昱甫
攝  影:楊士宏、國棟建築師事務所

團隊簡介

黃國棟建築師

出生彰化,分別於台北工專建築設計科(1993)及台灣科技大學建築設計系修習建築(1996),在台北就學及工作共計8年,開闊了對建築新的視野並加深了對建築的熱愛,1999年建築師高考及格,於2004年創立國棟建築師事務所迄今。從小喜愛畫畫於金門軍中服役時開始隨身速寫,至今持續二十年而不停歇。近年來工作之餘喜歡藉旅行速寫、跑步與攝影的方式來探索觀察與記錄國外城市,貼近觀察建築、人與環境間之關係,將建築、旅行、繪畫與生活結合,期許是個品味生活的實踐家。

得獎記錄及事蹟
2018年03月25日 中國時報「黃國棟旅行速寫大師讚寫意精緻」
2018年03月25日 看雜誌「黃國建築師平均發展的人生」
2018年 大台中建築師公會新銳建築師獎得主
2019年 台灣國立台灣科技大學建築系傑出校友

Leave a reply

Please enter your comment!
Please enter your name here

這個網站採用 Akismet 服務減少垃圾留言。進一步了解 Akismet 如何處理網站訪客的留言資料