揚州青普瘦西湖文化行館位於揚州風景秀麗的西湖附近。由於基地各處散佈著小湖泊和一些現有的建築,這家包含20間客房的精品度假酒店對如恩而言是一個頗有挑戰的作品。
業主希望對基地原有的部分老建築進行適應性再利用,為之賦予新的機能,同時增加新的建築以滿足酒店的容量需求。為將這些分散元素統一起來,如恩採用了網格的平面規劃,框定出圍牆和通廊的配置,進而將各個機能整合在一起,形成一個多院落的圍場。設計的靈感源自中國四合院的建築類型。和傳統的庭院一樣,院落的形式為空間賦予了層次,將天空與地面的景觀框架其中,讓景觀融入建築,創造出內部與外部的重疊。
▼基地鳥瞰

©Pedro Pegenaute
©Pedro Pegenaute
▼設計分析

平直的天際線中跳脫出三座建築:一座兩層高的客房,一座包含四間客房的湖濱小築,以及位於行館一端的一座多機能建築。多機能建築由原有的廢棄倉庫改建而成,包含了新建的混凝土結構,其中有一間餐廳,一個劇院和一個展覽空間。如恩希望採取利用這件作品最有特點的兩個景觀元素—— 牆與院——將一個複雜的基地格局統一起來,採取粗獷的材料和層疊的空間營造,用現代的設計語言重新定義傳統的建築形式。
©Pedro Pegenaute
©Pedro Pegenaute
©Pedro Pegenaute
▼單體建築的屋頂與四周的圍牆齊平,遠遠望去形成了一條平整的天際線
©Pedro Pegenaute
©Pedro Pegenaute
▼餐飲區
©Pedro Pegenaute
Photo from Tsingpu
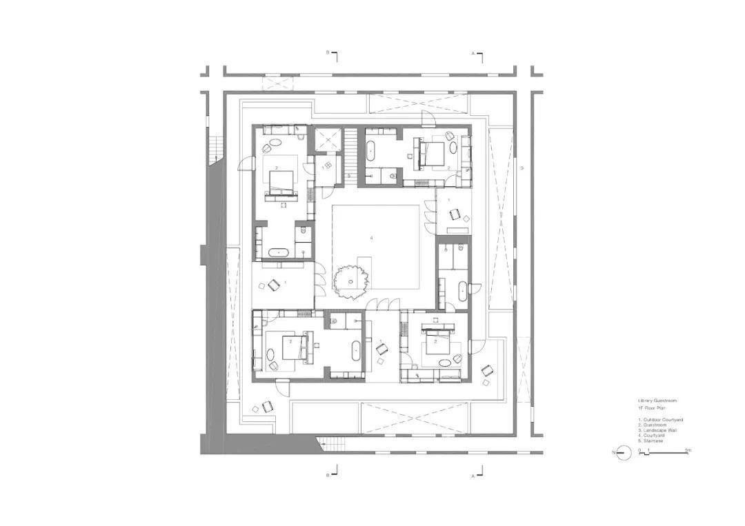
矩陣式的磚牆完全由灰色回收磚造成,狹窄的內部通道形成了狹長的視角,光線穿透變化著堆疊的磚石,吸引來客對在空間中不斷深入探索。若干庭院內設有客房和公共設施,如櫃臺、圖書館和餐廳。
▼光線穿透變化著堆疊的磚石
©Pedro Pegenaute
©Pedro Pegenaute
沿著磚牆漫步,客人們可偶遇牆中隱藏的開口,向上踏幾節樓梯,遁入更加安靜且視野開闊的屋頂,在這裡一覽整片行館的建築矩陣和更遠處的湖泊。
©Pedro Pegenaute
©Pedro Pegenaute
▼在視野開闊的屋頂一覽建築矩陣和更遠處的湖泊
©Pedro Pegenaute
穿過婉轉的磚牆走廊,住客們最終到達自己的客房。客房被磚牆勾勒的庭院包圍,客人們可以在此欣賞各自庭院中的私密景觀。還有一些沒有設置客房的庭院,三兩樹木自成一座花園,讓人在牆垣之中獲得自然與放鬆。
▼客房庭院
©Pedro Pegenaute
©Pedro Pegenaute
©Pedro Pegenaute
©Pedro Pegenaute
©Pedro Pegenaute
▼客房內部
Photo from Tsingpu
©Pedro Pegenaute
▼開闊的平靜水景
©Pedro Pegenaute
©Pedro Pegenaute
▼全區配置圖

▼東立面

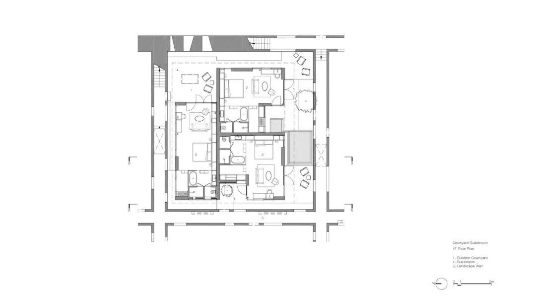
▼庭院客房平面

▼庭院客房剖面

▼客房平面

▼客房剖面

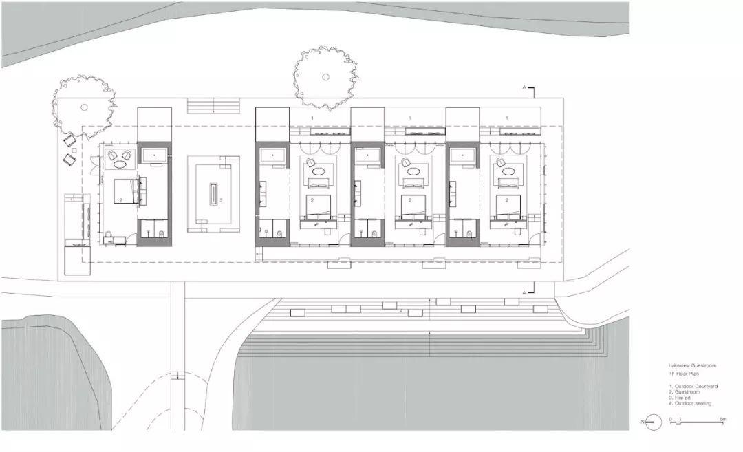
▼湖景客房平面

▼湖景客房立面

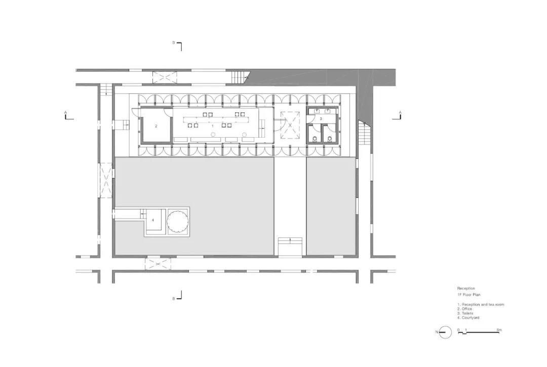
▼接待室平面

▼接待室立/剖面

▼設計手稿


青普揚州瘦西湖文化行館
地址: 中國揚州市邗江區寶成路1號
設計週期: 2015年11月- 2017年10月
基地面積: 32000平方公尺
總樓地板面積: 4200平方公尺
