二沙島相當於廣州的中央公園,島上是高級住宅和博物館、音樂廳,環繞中間一片大綠地,在上世紀80年代初的規劃,整個島只有外銷房,一般市民不能登島,可見這個島優越的地理位置。
上世紀90年代初政府開始在南岸打造「文化黃金海岸」,陸續竣工省美術館、星海音樂廳等國內一流的藝術場館,沙島成了廣州市民心中「陽春白雪」的代名詞。

文立方外立面

文立方航拍實景圖 ©張洪瑋

文立方航拍圖 ©張洪瑋

文立方模型圖

等角透視圖
文立方計畫是「文化黃金海岸」沿江最後的街廓,計畫由一個民間藝術基金會以自籌資金形式做一個「mini西九」——以物業經營資助文化藝術活動,形成自給自足的永續發展模式。
2010年接到這個委託案時,建築師米笑正好還住在島上,晚上常常在南岸江邊散步,路的一邊是圍牆裡的豪宅大院和博物館,黑洞洞的面無表情;另一邊是大榕樹下的「音樂會」,來散步吹江風乘涼的市民,常常三五成群圍聚在那些自彈自唱的街頭藝人身邊。

文立方外觀

文立方外觀
Allan Jacobs對於街道的定義
這活生生就是城市設計師Allan Jacobs在《偉大的街道》所描述的場景:「總有一些街道,要比其他街道更不一般——置身其間,你胸中了無罣礙,可以隨心所欲地做自己想做的事。」這裡白天杳無人煙,一到傍晚就開始熱鬧非凡。「不是因為我們必須去那裡,而是因為我們希望去那裡」,這就是Jacobs對偉大的街道的定義。文立方就在這條「偉大的街道」盡頭。怎麼能讓「街道」的場景延續到作品裡?這是建築師想的第一個問題。

文立方東南角外觀

文立方西北角街景
第二個思考的問題是面對周邊封閉式設計的建築,如何創造一個有生機和凝聚力的社區?建築師的構想是這個房子必須有吐納機能,所以從一開始就放棄點式單體建築的總圖規劃,決定以包含內院的街廓式平面配置,組織展覽館、商舖、餐飲、辦公、休閒、演出等等各種機能。內院向街道開放,變成外殼感很好的城市公共空間,把周邊的建築整合成一個內聚性的社區。

文立方內長廊

文立方內長廊

文立方概念圖
第三個思考是如何實現永續發展?民間資金去做藝術公益舉步維艱,希望不僅節約基竣工本,更要節約日後的營運成本。生態建築、綠建築在當時都是新興名詞。回顧傳統,沒有現代科技,按照「常識」邏輯去設計也都滿足基本的冬暖夏涼。南方地區最有效的是遮陽加通風。包含內院(天井)的平面對加強通風十分有利,同時能解決遮陽便能最大程度減低能源消耗。
於是就有了這個憑常識推演出來的提案:在建築的西南面懸掛一條緩緩爬升的外廓,作為西南立面的遮陽系統,把「偉大的街道」一直延長到天台,帶你飽覽城市全景:向東是旭日東昇的CBD珠江新城,向西是夕陽餘暉下的舊城。
一開始外廊的提案是斜坡,機能空間都朝向內院。這樣的處理無疑在外觀上似乎更具建築的樣式感,但如此一來,具有公共性的「街道」就同機能單元以及內院完全割裂,變得同周邊的建築一樣,私有空間同公共空間有嚴格的等級,經緯分明,無法融合,難以形成富有生機的共享社區。

文立方內長廊

多樣的公共階梯空間
於是把街道放平,以不設門的開放入口和樓梯聯合各層,使內院和外走廊成為城市廣場及街道的延伸。為了吸引市民爬上5層高的觀景台,每一層的外廓都採取平面的進退形成不同的「取景器」。

文立方外長廊
有的時候是寬幅,有的時候是無邊。變化的風景引導出一條遊走的路徑往返城市風光和靜謐內院。

文立方垂直街道概念圖
順著基地西南展開的長達160m的弧形外廓,成為立面控制性的語言。如果忽略西北角因業主要求遮擋附屬用房而設的鋁格柵,整個主立面幾乎可說是「沒有設計」。最終展廳、餐飲等等各種機能空間在整個外廓框架的控制下呈現各自獨立面目——這也許可以歸結為建築師同時作為策展人工作多年的影響吧,總希望每一個個體都有各自的呈現。

多樣的公共階梯空間

多樣的公共階梯空間
外牆材質與色彩都沒有刻意同周邊建築拉開太大的反差。在一個嚴重精英化的社區,建築師更希望採取外部界面的融合及空間本體上的無階級,實現和而不同的社區營建策略。

文立方街景
作品剛完成的時候,剛好華南理工大學建築學院孫一民院長在一次演講中談廣州騎樓,「我們完全不用關心它具體的語言,其形式可以是現代的,最重要的是生活。這個城市的生活已經被這些構築物容納進來,也就是說騎樓只是發揮了一個容器的作用,關鍵是這樣的容器,代表了哪些性格、哪些宗旨。」遮陽擋雨的交通空間、社交空間、文化空間、商業空間,我們最終在二沙島「文化黃金海岸」增添了一公里「騎樓」。
建築圖

文立方總圖

文立方地面層平面圖 Plan

文立方二樓平面圖 Plan

文立方三樓平面圖 Plan

文立方四樓平面圖 Plan

文立方五樓平面圖 Plan

文立方剖面圖 Section

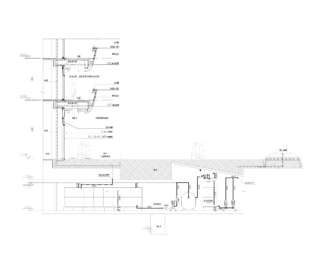
文立方雨水收集細部圖
作品資訊
作品名稱:二沙島文立方Ersha Island MAN LAP FONG<
作品位置:廣東省廣州市二沙島晴波路1號
作品類型:文化設施、美術館
設計單位:扉建築
主持建築師:米笑
設計團隊:李致堯、刁家俊、喻耀、宋定侃、岳靚
業主:中華民族文化促進會
建設狀態:竣工
設計時間:2010年秋
竣工時間:2018年
總樓地板面積:22550平方公尺
層數:地下1層,地上5層
室內、景觀設計:扉建築
攝影師:@丘
