以立面輕與重作為隱喻的設計手法
光隆實業是全球知名的羽絨企業,藉由新建廠房的契機,林祺錦建築師試圖透過立面討論輕重對比的關係,以大型工廠的「重」隱喻企業實力,並對比於溫暖羽絨的「輕」。在滿足廠房的倉儲、辦公、研發、展售等空間需求的同時,透過綠化平台、戶外樓梯與屋頂花園等空間進行立體綠化,營造出感受怡然的工作環境,賦予現代廠房清新意象。


建築外觀;攝影/林福明

設計說明
業主期待、量體的重
設計之初,業主就希望這是一座清水模建築,而且是風格純淨的日式清水模。於是設計團隊開始思考乾淨的清水模如何操作在工廠建築?同時讓勢必巨大的量體有別於一般工廠的沉重印象。在決定「從企業精神聯想」,並梳理出以輕重對比的主要元素後,首先要處理的就是量體的「重」。
工廠單層面積約1800平方公尺,共四層樓。主要為倉儲、卸貨、展售、加工、研發與辦公空間,以倉儲為主要功能,實際在內的員工並不多,機能相對單純。於是設計團隊一開始就把動線往左右兩側拉,以垂直動線留出一個穿堂風的空間,讓建築外觀形成左右拉長的巨大量體,再將量體往上抬,讓看似沉重的清水模塊體看似懸浮在二樓。二樓以上的立面包覆清水模,一樓內部則選用磁磚,也是透過材質細節製造視覺差異。

立面的輕
確認了量體的「重」,接著希望將羽絨的紋路質感與清水模立面結合,營造出立面的「輕」。與業主討論過幾種作法後,最後選擇在乾淨的清水模懸挑牆上修潤出數道線條,讓這些弧線劃開巨大的混凝土量體,中間崁入玻璃,借此呈現量體的虛,帶出輕重關係的討論,傳遞優質的「企業形象」與帶給世界溫暖的「產品特色」。立面的板模技術並不複雜,這個皮層也滿足了倉儲空間需要隔熱與通風的需求,並為室內製造出流線的光影變化。


建築外觀東立面局部;攝影/林福明

建築外觀西面;攝影/林福明
層層退縮的綠化平台
主要立面確立後,設計團隊在正立面的左側規劃了向上層層退縮的綠化平台,在立面上形成清晰的方洞。從一樓的水池出發,往二、三、四樓逐層挑空,希望向上帶動水與風的微氣候變化;水池中設有植栽槽,同時由景觀設計負責規劃植物,在二、三樓的平台打造綠化平台,讓辦公區域能欣賞中庭的草木,工廠不再只是單純的倉儲空間,工作人員擁有充足的公共活動場域。待植物穩定成長後,會由植物填滿視覺上的凹洞,讓綠成為立面的一部分,這樣的作法既不會破壞清水模乾淨的質感,又能軟化較封閉的立面設計。

層層退縮的綠化平台;攝影/林福明

層層退縮的綠化平台;攝影/林福明
戶外樓梯的爬藤植物
除了正立面的綠化平台,林祺錦建築師讓建築東南角的戶外樓梯也作為綠立面。首先將樓梯轉一個角度,拉長立面,讓牆面內縮為結構的一部分,撐起樓梯和樓板,樓梯虛化,但又有一個可供植物向上攀爬的垂直綠化立面。
讓植物往上爬的材料通常是綠色鐵絲網或塑膠網,但前者除了擔心施工後形成凹凸不夠平整,也擔心對植物過燙,而後者除了美觀的問題,也擔心塑膠網的效果不符設記者對立面的控制。於是,設計團隊利用內外兩個層次,外側在雨遮版的厚度中架設金屬管,搭配三種深淺綠色,左右疏密不等,同時前後交錯,以乾淨的綠色直線條創造出穩定又有層次的立面。植栽槽則設在內側,墩上設置散熱快的細金屬環,爬藤植物未來向上生長,將與綠色金屬管交織出活潑的綠立面。

戶外樓梯架設金屬管,供植物向上攀爬的垂直綠化立面;攝影/林福明

屋頂花園與合院中庭
從一樓向上的立體綠化,最後延伸到屋頂花園,也是廠區面積最大的綠化空間。由於基地四周空曠,常颳起強風,這裡選擇多種耐風植物,以喬木、棋盤草皮、木平台規劃出景觀豐富的活動空間。另外,也在四樓研究室外規劃一個合院型的植栽中庭,種植耐蔭的筆筒樹,下方則以交錯的三角造型植栽呈現高低變化。這裡利用向心性的空間圍出一個「綠族箱」,由於上方採光充足、沒有強風,未來植物會越顯茂盛野性,空間雖然不大,卻能讓研究人員享受滿滿的綠視覺。

景觀設計;圖片提供/林祺錦建築師事務所

(左)屋頂花園(右)合院中庭;攝影/林福明

合院中庭;攝影/林福明

混凝土崁入玻璃,於室內製造出流線的光影變化;攝影/林福明


室內光影變化;攝影/林福明

白天;攝影/林福明

作品資訊
作品名稱:光隆物流研發中心
作品地點:台灣桃園市中壢區過嶺路二段530號
業 主:光隆實業股份有限公司
主要用途:廠辦(地上四層)
建築設計
事 務 所:林祺錦建築師事務所
主 持 人:林祺錦建築師
參 與 者:貢正達、江昌霖、張宗睿、石淯欣
監 造:林祺錦建築師事務所
結 構:胡裕輝結構技師事務所
水 電:永業設計有限公司
景 觀:達觀規劃設計顧問有限公司
綠 建 築:楊謙柔博士
施工
營 造 廠:大程營造股份有限公司
材料
建 築:清水混擬土、磁磚(外牆、屋頂)、洗石子、金屬烤漆板
基地面積:12620.98㎡
建築面積:2104.87㎡
總樓地板面積:7191.21㎡
造 價:215,405,307元
設計時間:2014年至2015年
施工時間:2016年至2018年
攝影、圖片提供:林祺錦建築師事務所+林福明
關於林祺錦 Andy, Chi-Chin Lin
林祺錦是中華民國開業建築師,台灣科技大學建築學士/碩士、台灣科技大學建築系系友會理事長、福建金馬地區建築師公會兩岸建築事務 秘書長,於2004 年7 月成立林祺錦建築師事務所,致力於既有環境美學與建築空間的整合規劃,藉由2D 與3D 的圖面創設構成,配合實體模型的操作,體驗空間的任何可能性,是一家充活力與創造性的設計事務所。
服務範圍包含公私立部門,近年重要作品有花蓮新城托兒所(獲2010遠東建築獎入圍與第二屆中國建築傳媒獎提名)、馬公機場計程車鋼棚(獲2014A+Awards 特別表揚獎、2014 ADA新銳建築獎入圍)、澎湖縣青灣仙人掌公園(獲2017 AAP美國建築獎)及永和懷石、政大築光、左耳政大、政大馥中等住宅設計案。
除了建築領域外,林建築師延伸了對建築的熱情,並且在各大學建築系擔任建築設計指導老師與建築獎的專業評審,亦跨入深度旅遊專業,成為帶領國外建築導覽的旅遊達人,近年來更受到許多媒體及旅遊媒體採訪,真正做到在建築專業中社會設計關注與跨領域的參與,對於在美學教育紮根、建築物再生與深度旅遊品質的工作中,都投注了許多心力。
建築圖

全區配置圖;圖片提供/林祺錦建築師事務所

構想說明圖;圖片提供/林祺錦建築師事務所

戶外綠牆concept;圖片提供/林祺錦建築師事務所

正立面圖(東);圖片提供/林祺錦建築師事務所

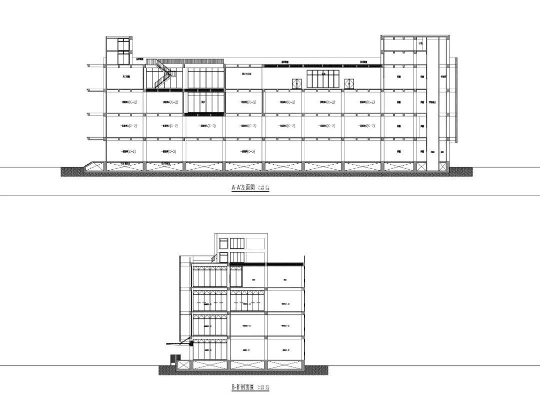
剖面圖;圖片提供/林祺錦建築師事務所

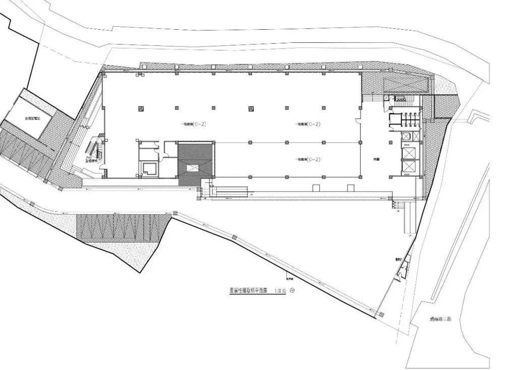
一層平面圖;圖片提供/林祺錦建築師事務所

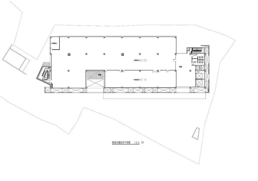
二層平面圖;圖片提供/林祺錦建築師事務所


