位於波蘭北部圖霍拉(Tuchola)鎮附近某個湖畔的兩棟建築,是給分別兩個家庭居住的住宅,南側的入口以及傾斜的地形帶來設計上的挑戰。
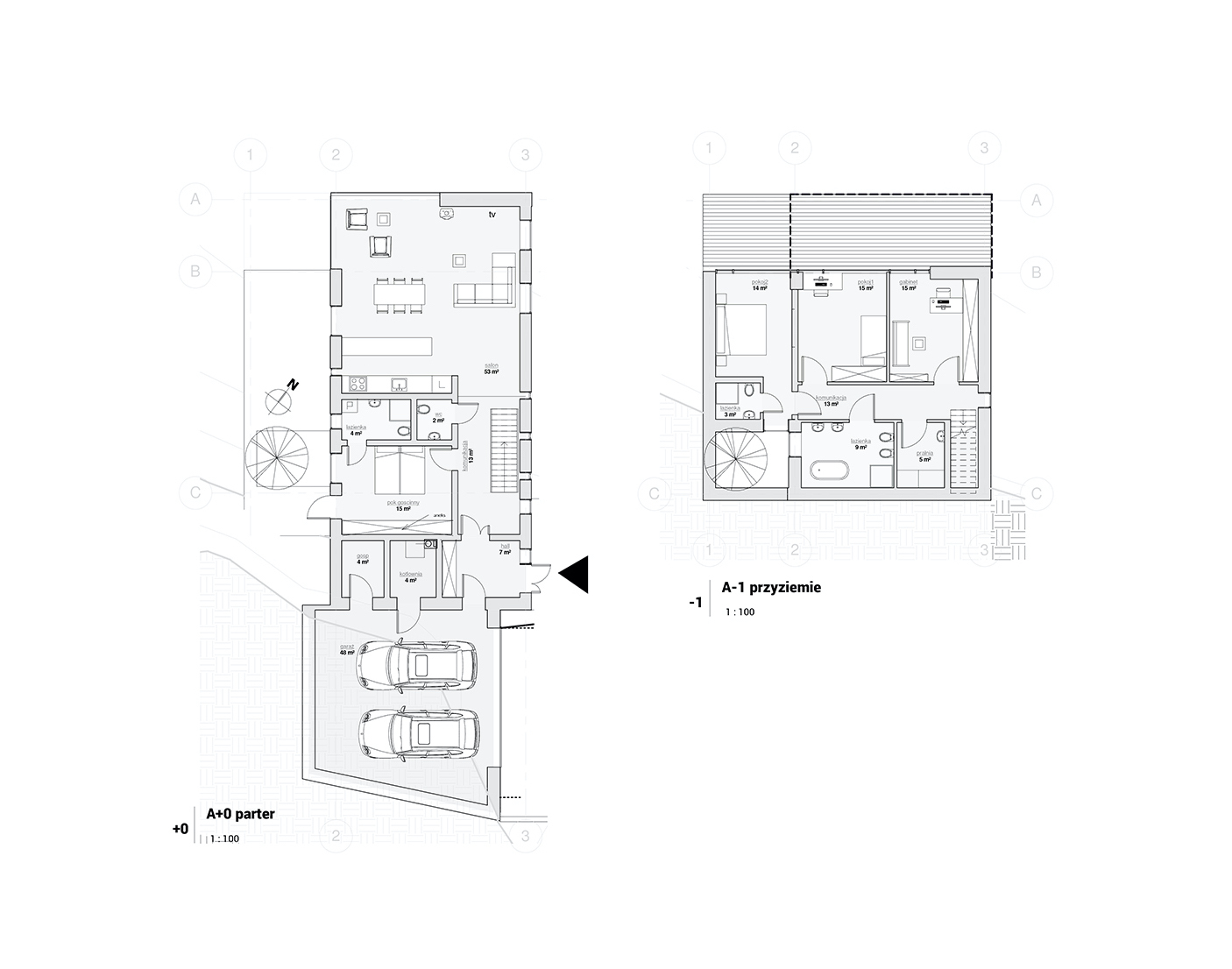
概念是翻轉日間與夜晚,夜晚區塊位於地下一樓,而日間區塊位於地面層,順應著往下流動的自然地形,將居住區域配置在高處,使住戶可以看到更完整的湖泊景觀,兩層樓高的建築物一部分隱藏在斜坡上,不會干擾到城鎮的尺度,並與周遭環境契合。
基地的陡坡將私密的花園空間與街道彼此分隔,形成俯瞰湖泊的寧靜綠意,使用天然、有質感的材料(例如木材、石材或磚塊),建築物可以與周圍環境融為一體,並與周圍環境形成互補。























建築圖

作品資訊
作品位置:波蘭
建築師:MAKA.STUDIO
總樓地板面積:420平方公尺
完成:2020年
攝影:Jakub Nanowski – perspektywa
主持建築師:wiktor kurc
協力:wiktor kurc, aleksandra kurc, paweł pożoga, beata belka, aneta keller
機電顧問:andrzej najdowski、adam linda
結構顧問:sebastian nitzki
景觀建築師:Agnieszka Durlik



