基地坐落於竹北市鄉間的田地之中,在不超過四層樓的低矮天際線之下,散置於基地周遭的皆為尋常台灣獨棟農舍暨販厝。
竹北許宅起始於業主對於雙斜屋頂型式的偏好,以及在寬度不足的現有基地留設緩衝帶的考量之下,發展成為維持雙斜主空間容積的純粹幾何體其餘的房間黏附於旁的配置策略。
由此配置的決定進一步衍生出本案的基本空間架構,由於主入口前的農田道過窄,同時為了避開路對面廟宮的對望,以至將雙斜屋頂的主容積體再切出斜面,藉以轉變入口方位同時避開偏北的冬季季風的干擾,於是得以確定主空間的容積幾何形。新竹冬季多雨的天候納入考量與洗衣間暨陽台的提供結合成入口上方的雨披暨導水管共構的附加物。

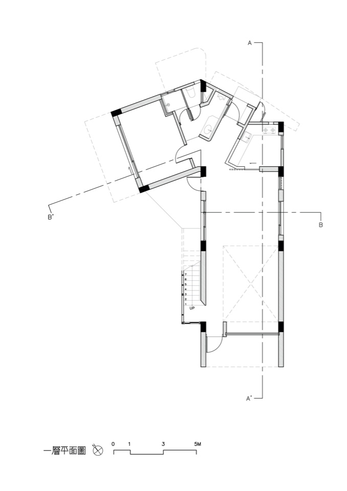
在入口側旁即為地面層共用的廁所空間,同時提供為貼附在雙斜屋頂容積體入口處側邊的客房,於是得以保持雙斜容積體內部的直通流動性,而其長向立面適切的少開口過濾掉來自周遭房屋背向所組成的雜亂背景,只留得田野景致與大片藍天映入視野。



長邊容積體為主挑高空間,在維持雙斜屋頂形式的同時,也利用屋頂版錯層的方式,製造出短向立面上的側頂窗,並且於南面留設全面的玻璃面,讓雙斜屋頂型式的七面盒子體的形貌得以維持其清晰的自足性同時保有其室內空間的連續無間斷的拓延屬性,讓主要入口處維持其光照度上的相對地灰暗,一旦進入室內之後,南向挑高雙斜屋頂的充足陽光總是在日間保有最高昂亮度的位階,自然地經由光灰階的遞變而引導入室內者的趨前性。

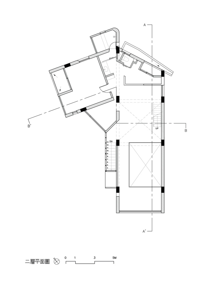
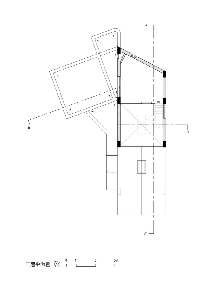
二樓板設置大面積挑空,讓一層樓的空間感知得以向上擴張,順著屋頂板向屋脊攀升、匯集,直至貫穿稜線的側頂窗帶引眼睛穿越倒V型的斷隔處朝外流出。朝南向的大面積五邊形開口迎接著隨四季擺動的天光。而自內望向南面玻璃牆,則可一覽整個基地深遠的田野景致,使得面積不大的空間得以水平地擴張;剖面的錯層關係亦容許二層樓與三層樓的空間得以統合並且享有水平的開放。


梯空間懸掛於雙斜容積體外側,在朝前往上移動的過程中引入一種介於內外之間穿梭的經驗;外凸的梯空間為鋼構玻璃構造,藉由側旁樹自身的節律以及搖擺的形態,映樣出四季的變遷,同時釋放掉梯空間的線形幾何的的規範性。




二樓空間(攝影:王典懋)

二層樓空間(攝影:王典懋)

二樓挑空處望向三層樓(攝影:王典懋)

開放中的隱蔽空間(攝影:王典懋)

三層樓空間(攝影:王典懋)

朝外連接道路的方向上都維持著較少開窗的實牆面,共構出朝南與西開放特性的崁合,同時對其他西向的外部基地相對隱蔽的空間構成;由於經費限制,未來需要擴延時可將雙斜部分再朝南延伸,這也是原先設計的目標,也就是雙斜容積體的目前狀況還不夠長…。

建築圖











作品資訊
作品名稱:竹北許宅
作品位置:竹北市新庄子段
業主:許先生
作品類型:私人住宅
建 築
事 務 所:i²建築研究室
主 持 人:徐純一
參 與 者:i²建築研究室
監 造:i²建築研究室
結 構:天祥結構土木技師事務所
水 電:i²建築研究室
空 調:i²建築研究室
景 觀:i²建築研究室
材 料
建 築:混凝土
開 口:鋁框窗
室 內:木作
基地面積:2112.00 ㎡
建築面積:125.09 ㎡
總樓地板面積:277.42㎡
設計日期:2013年9月至2014年7月
工程日期:2015年1月至2016年1月
徐純一簡介
徐純一是國立成功大學航太學士(1983)、美國科羅拉多大學丹佛分校(1990)。曾任美國胡佛聯合建築師事務所助理建築設計師、美國科羅拉多大學丹佛分校建築學院(碩士班)建築設計助理指導老師、方圓建築師事務所建築主設計師、東海大學建築系兼任講師、逢甲大學建築系兼任講師。
現任大葉大學建築研究所副所長、大葉大學空間設計系專任講師、i²建築研究室主持人。
