老西門原是上海縣城的一個城門,正式名稱為儀鳳門,修建於1553年(明朝嘉靖年間),面向正西方,旁設水門,肇嘉濱從此流過城內,出大東門入黃浦江。
地理位置
黃浦中心大廈位於老西門區域,距離觀光景點「豫園」不遠,其所在街廓轉角即分別是人民路與中華路,方濱中路與方濱西路的分界點。人民路與中華路圍起上海的老城廂,方濱中路往東直通向城隍廟,而往西不過一公裡多開外就是新天地。每天,熙熙攘攘的人流穿過這裡。
新冠疫情爆發後
2020年,新冠疫情爆發後,疫情成為城市生活中常態化的存在。與其說是影響,不如說所有人都接受了這種改變,建築作為包含人們日常行為的重要場所也不例外。




地面空間的管制
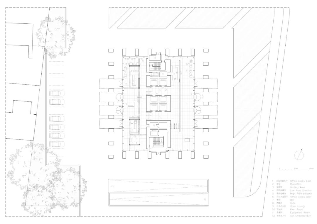
如果依照門牌號碼來認識黃浦中心大廈,可能會覺得這棟高樓的入口有些隱蔽。樓棟與街道之間分佈著呈斜線狀的寬闊綠化帶,繞過綠化帶,方能見到通往大廳的玻璃門。原本在底樓的東側和西側分別有兩個出入口,人們可以不受阻擋地自由進出,現在則因疫情防控,限制人員流動的需要,西側樓門關閉,底樓區分出東、西兩廳,東廳增設閘機篩查外部來訪人員,電梯廳與西廳的接口處也設置了閘機進行管理。
創造一定封閉下的公共性
從完全的開放到一定程度的封閉,在接受這種改變的同時建築內的環境和氛圍也發生變化。於是,米凹工作室在贏得大廈底樓門廳更新改造競圖之後,「創造一定封閉下的公共性」成為在此作品中將完成的課題。



空間形成的牆體
走進東廳,首先看見的是一個超常規尺度的櫃臺,它的長度幾乎等同於整個門廳在南北向上的距離,與室外的城市道路形成對應,將建築放在了可與城市對話的位置上;它也是應用在此作品設計中的一個重要概念:「牆」。

入口閘機位於櫃臺南端,服務人員的工作區則安排在北側,人們進入門廳即按照寫字樓員工、來訪人員進行了分流。這個以「牆」作為表現形式,以城市尺度搭建起來的櫃臺,既承擔東廳的機能性,也表達出建築服務於個體的意象。



從東廳「進入再進入」西廳,到達整個動線中更為「內部」的區域。相較於東廳,這裡用更多片牆構造出更小尺度、更適合人們進行日常活動的空間,由「規定」過渡到「選擇」。
十公尺挑高之下,將牆以懸空、立體並彌漫的方式配置,在不同方向上「可視」而給人一種「飽滿」的感覺。


機能空間的創造及連結
超常規尺度的牆構造出與日常感無二的機能空間,包括小型會議、靈活展覽、公共服務、自由交談、咖啡店、休息娛樂、獨立辦公等,自南向北滿足從集體活動到個體活動之間的不同層次,彼此連通又互有區隔。可移動傢俱使空間的公共性得到最大程度的利用。
東、西兩廳共十一片牆採用鋼結構覆蓋鈦鋅板,以建築的方式在室內搭築起來,尺度超常但仍帶給人正常感受,非常規的組合手法使小空間包含的日常活動獲得安定氛圍。


「牆」作為門廳改造計畫的重要構成元素,組織動線、構造空間,容納了整合水電暖通多種設備管線等現實需求,並賦予建築以服務的特性、對話城市。如果抽離出作品,它既是具象元素又是抽象概念,經過多次對稱呼的討論,最終確定了「牆」。


讓每位使用者不斷享用公共性
黃浦中心大廈竣工於2010年,當時的門廳設計依據建築外立面的形態和構築手法,採用花崗岩為主要材料。此次門廳更新改造則依據原建築室內設計,提取灰色花崗岩及拉絲不鏽鋼材料,採用與石材立面模數相關的元素「牆」,雖改動較少,但採取超現實展示方式,創造一個新的尺度,使空間感受獲得強改變。
在一定的封閉下,讓建築富有公共性——當這棟大樓的每一位使用者都不斷享用這種公共性,隨之而將形成對建築的場所記憶。

建築圖


作品資訊
作品名稱:上海黃浦中心大廈門廳改造
作品類型:室內設計
作品位置:中國上海市黃浦區豫園街道
建築設計:米凹工作室
竣工:2021
總樓地板面積:745.0 平方公尺
主持設計師:周維
設計團隊:葉葭煥、韋天南、吳雪婷、周燁炯
工程師:徐文煒(結構),王翔(暖通),衛青(給排水),王卉(電氣)
業主:上海眾鑫資產經營有限公司
結構設計:上海中房建築設計有限公司
景觀設計:上海中房建築設計有限公司
廠家:RHEINZINK, KOKUYO, SilentGliss, Element Plus
攝影師:梁山
