「三禾別院」位於杭州市郊迄今1300年歷史的鄉間集村「畫外桐塢」。有著上百位藝術家入駐的「畫外桐塢」亦是西湖邊上有名的藝術聚落,這裡群山環繞,雲煙裊裊,古意中隱含著寧靜的風情,這份獨特的藝術氣息,讓外桐塢村的美別具一格。外桐塢村於2009年確定了藝術文創類風情小鎮的發展方向後,歷經3年時間整治,在2011年被列入杭州市首批風情小鎮,在2013年9月成功申報中國國家3A級旅遊景區,現正結合龍塢茶鎮建設,朝著5A級景區的建設目標努力奮進。目前整個村已經吸引了約90家工作室入住,佔整個村農戶的60%之多。
建築所在基地是一棟有130年歷史的傳統南方木構式合院,3名年輕人在偶然機緣下發現這幢老屋,傾頹的建築原已準備拆除,重建成新式當代樓房。尚存的中式木質柱樑以榫卯搭接,雅緻非凡的雕刻細節,處處展現時光流淌下的鑑古悠情。一股與生俱來的使命感讓三位年輕人決定攜手合作,將頹圮建築保留維護,並改造為老屋設計民宿《三禾別院》,讓建築透過跨領域對話重獲新生。



現今「畫外桐塢」內,多數住房建物已改建為現代西化風格的洋房,以符合便利生活與空間使用需求,但這些大量興築的新建築,外型大多缺乏美感品味與文化底蘊,建築與建築間不存在關係的鏈結,令村落舊時的古樸風韻盡失。如何讓老建築在新的空間場域中保留古屋風韻並且重獲新生,是設計團隊竹工凡木設計研究室考慮的重點。
作為聚落內僅存的老屋,設計師以一道大型白色牆面為中介設置於社區中央,以留白、簡約的形式橫亙在新舊建築之間,企圖統一兩者完全迥異的空間場域氛圍。隱身在白牆之後的老屋基地,一方面保留既有結構系統、牆面裝飾與構築型態,同時也植入部分新材料、新工法,藉此保留既有建築形制並傳承古屋風韻。



為保有傳統民居的合院形制,竹工凡木設計團隊維持《三禾別院》僅有三間套房的空間佈局,加上刻意設計的大量平台場域以促進人際互動。使用者可以選擇只使用單一臥房,抑或是在完整的合院內交流,包含花木扶疏的前後院、二樓露台與黑瓦斜屋頂等,平台設計的植入與傳統建築結構碰撞,以多元視角產生空間對話,新舊交接的設計處理手法,讓身處其中的人們不只是體驗住宿機能,而以多樣化角度感知空間的深層厚度與紋理脈絡。





二層空間包含三間客房,每間客房則配備有語音控制、自動窗簾、全智能衛浴,為使用者創造更美好的居住體驗。
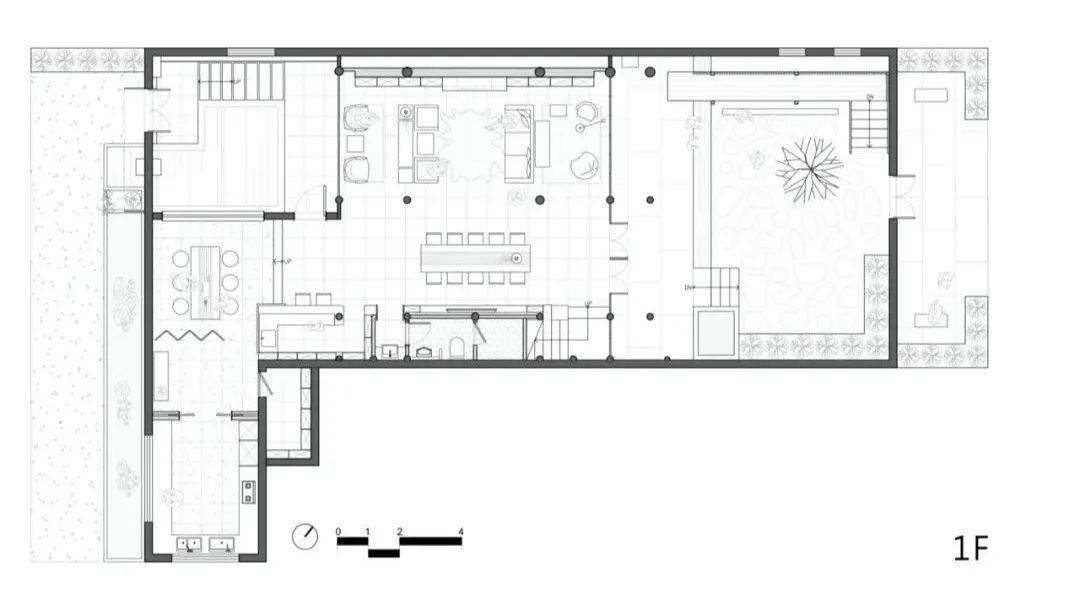
在一層空間裡,設計師配備了前院、客餐廳、休閒區、吧檯區、廚房、後院等功能區域。一方面,通過大量公共空間的設計以促進人際互動與交流,並融入現代化設備,滿足現代生活需求;另一方面,在選材上通過新舊材質多元交融對話,打造出反差美學,同時更體現了老屋一代一代延續的過程。






客 餐 廳









吧 台 區


休 閒 區

廚 房




客 房 一





客 房 二



客 房 三




屋頂空間
Roof Floor

新植入的露台與黑瓦斜屋頂的傳統建築結構相碰撞,以多元視角產生空間對話,讓身處其中的人能夠以多樣化角度感知空間的深層厚度與紋理脈絡。






>>相關資訊
作品名稱:三禾別院民宿
作品位置:浙江省杭州市西湖區畫外桐塢村65號
業主:三禾別院酒店管理有限公司
設計單位:竹工凡木設計研究室CHU-Studio
室內裝修: 竹工凡木設計研究室CHU-Studio
建築/室內面積 : 350平方公尺
完工日期:2019.10
使用材質:老水泥磚/不鏽鋼/木飾面/實木地板/卵石/青磚
攝 影 : 莊博欽
主持設計師 : 邵唯晏、徐陽
執行部門:竹工凡木設計研究室-杭州分部
參與設計師 : 馮元
附註:三禾別院民宿是竹工凡木杭州分部團隊運營,歡迎訂房體驗,可單間可整棟!
