香港中環巷弄間的咖啡館,擺花街Blue Bottle Coffee/Schemata Architects

0
2894

Blue Bottle Coffee(藍瓶咖啡)不斷地在顧客和員工之間建立平等的關係,這是他們致力於「分享美味咖啡」的表現。儘管Blue Bottle Coffee靈活地融入了各個新店的當地文化,但無論走到哪裡,這種態度永遠不會改變。

香港中環咖啡館Blue Bottle Coffee/長坂常 Schemata Architects
位於香港中環的Blue Bottle Coffee© Schemata Architects

香港豪華高樓的背面,狹窄的街巷中擠滿了破敗的公寓樓,牆面伸出不規則的標識,陽台掛滿衣物。路面也逐漸破裂冒漿,日本建築師長坂常率領的Schemata Architects設計團隊發現,在香港行走,鞋底很容易變髒,或許這也是這裡有很多店面地面採用地磚的原因之一,瓷磚便於清洗,並且可以在溫暖的氣候中快速變乾。由於該咖啡館位於如此的都市巷弄間,設計團隊決定使用瓷磚。

香港中環咖啡館Blue Bottle Coffee/長坂常 Schemata Architects
從街道望向一樓店面 © Schemata Architects

香港中環咖啡館Blue Bottle Coffee/長坂常 Schemata Architects
二層吧檯© Schemata Architects

香港中環咖啡館Blue Bottle Coffee/長坂常 Schemata Architects
二層座位區© Schemata Architects

在鋪設瓷磚時,日本建築師更喜歡用濕式工法,因為他們覺得這樣有助於增強瓷磚的美感。在該作品中,設計團隊使用專為濕式工法設計,專為此客製化的瓷磚。同時,咖啡店所在的建築是用混凝土建造的,因此他們要求工廠生產混凝土顏色的瓷磚,創造出可以享受咖啡的簡單舒適的場所。

作品資訊

作品名稱:Blue Bottle Coffee Hong Kong Lyndhurst Terrace
作品位置:香港中環擺花街38-42號
建築師:長坂常 Jo Nagasaka / Schemata Architects
設計團隊:桐谷万奈人, 仲野康則
協力:HOSHIZAKI Hong Kong (廚房計畫) / WHITELIGHT.Ltd(音響計畫)
樓層數:2樓
樓地板面積:1F:87.85平方公尺 / 2F:90.60平方公尺
完成:2020年3月

香港中環咖啡館Blue Bottle Coffee/長坂常 Schemata Architects
瓷磚牆面與地面© Schemata Architects

香港中環咖啡館Blue Bottle Coffee/長坂常 Schemata Architects
瓷磚牆面與地面© Schemata Architects

香港中環咖啡館Blue Bottle Coffee/長坂常 Schemata Architects
夜間景觀 © Schemata Architects

香港中環咖啡館Blue Bottle Coffee/長坂常 Schemata Architects
一樓平面圖© Schemata Architects

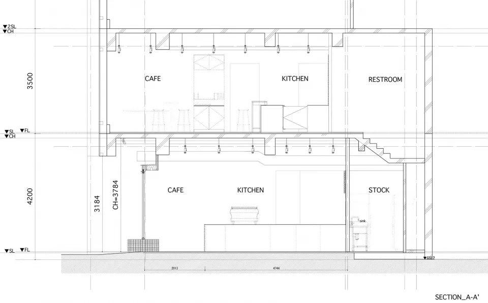
香港中環咖啡館Blue Bottle Coffee/長坂常 Schemata Architects
剖面圖© Schemata Architects

Leave a reply

Please enter your comment!
Please enter your name here

這個網站採用 Akismet 服務減少垃圾留言。進一步了解 Akismet 如何處理網站訪客的留言資料