作為建築構成的部件,普通材料同樣具有潛力。本作品的設計,就源於對一種最常見的材料——磚的好奇心。此外,與建築承包商直接合作,減少了許多個人必須參與的複雜程序。





建築師需要與房主達成協議,即:與工匠合作需要一定的時間,但建築師會使用廉價的材料(例如磚)作為回報。嚴謹的程序以及對技術和材料的規定,與建築承包商圍繞其能力的討論以及為創造和諧的施工而進行的談判,被視為一種精神契約,表達了追求投入與結果之間的平等的訴求。建築師實際上要求建築承包商提供的是簡單而又充滿異國情調的結果。此外,由於曼谷等城區土地成本不斷上漲,建造房屋需要經過慎重考慮。

Jun Sekino 希望建築在完工後古色古香、具有古式風格。此外,這座建築要給人一種樸實的印象,無需任何裝飾。房主表示,大部分時間他都是在父母陪伴下度過的,因此,這所房子的設計要能夠適應他的晝夜不同的生活方式。此外,這座建築建在熱帶地區,因此,它要反映熱帶的生活方式。

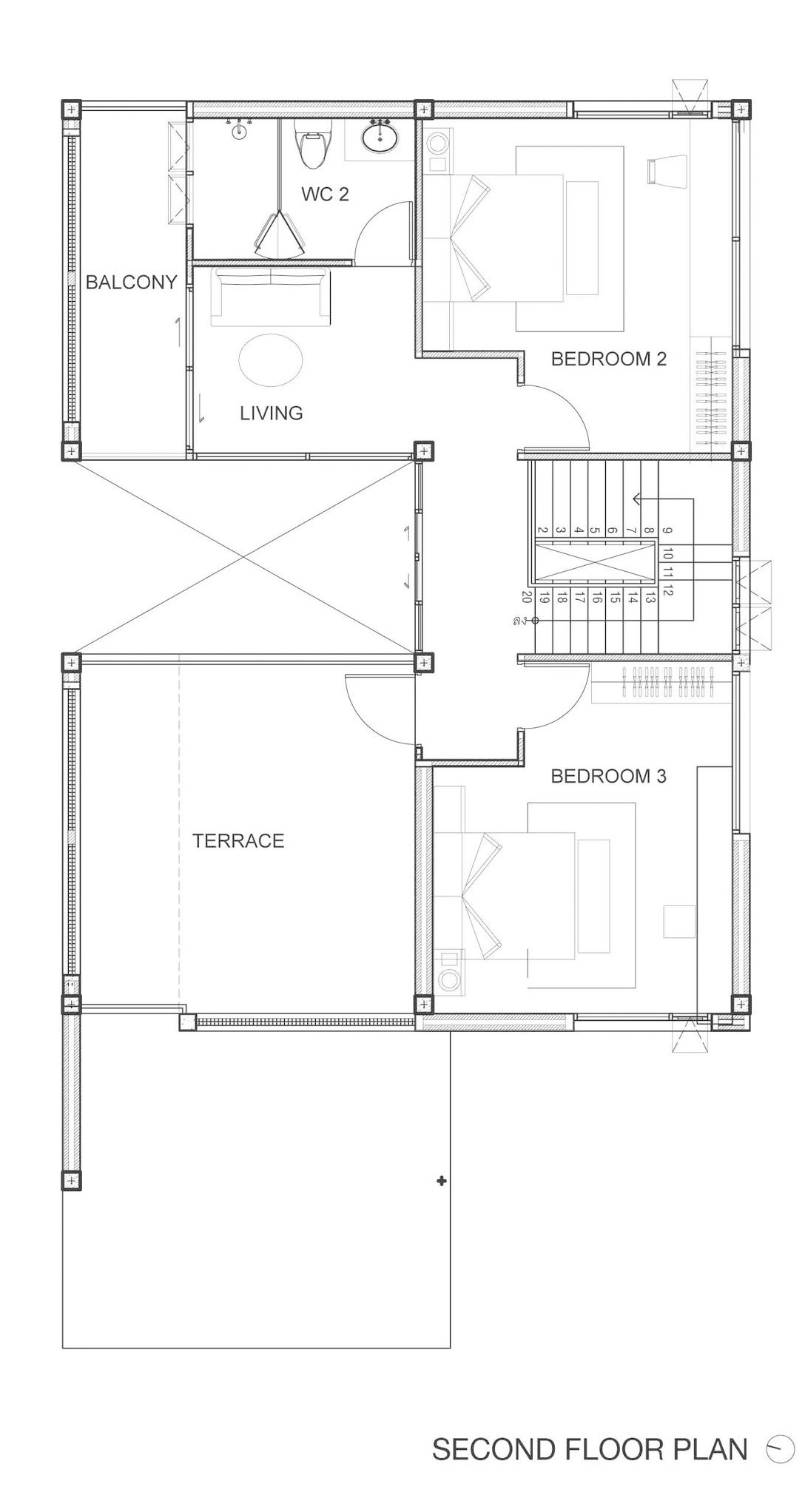
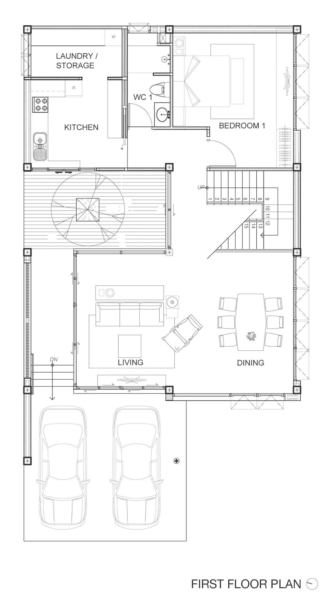
因此,該建築建造有兩層磚牆,每層牆厚30釐米,中間留有空隙,這樣的結構可以起到隔熱作用,因為熱量只能通過外牆而不能通過內壁。此外,土壤也具有特殊的性質,易於加熱、易於冷卻。牆壁的特殊厚度和兩牆之間的空間、帶有三個臥室和一樓多功能區的兩層房屋,都給人留下泰式的印象,家庭成員可以在一樓的多功能區共享美好時光。從10點鐘起,在房屋中央的場地開口處,主樓便起到遮陽棚的作用,加上內部的玻璃牆,使室內空氣舒適地飄浮在空中。此外,利用自然光照亮房屋的各部分,提供了視覺連接點,使房客們不再感到孤獨。
建築師意圖創建一種不再需要修飾的「單一流程體系結構」。建築師與工匠之間的直接的、真誠的合作是必須的。因此,儘管存在差異,這座樸實的建築仍然可以融入陳舊的社區。
作品名稱:Ngamwongwan House
作品位置:泰國曼谷
建築師:Junsekino Architect and Design
總面積:235 平方公尺
完成:2014年
攝影:Spaceshift Studio
室內設計:Junsekino Architect and Design
承包:Mr. Jarin Dejchutrakul
結構工程:Mr. Nares Kamplaew



