首爾,一座現代與歷史交匯的複雜城市,當代大都會的縮影。在這裡,歷史悠久的宮殿建築、原始的自然山地地形與現代化的建築和諧共存。
這座城市為人們提供了生活各方面所需要的設施,將各具特色、甚至看似互不相容的建築與城市自然元素結合在一起。這些衝突的城市場景可以看作是尋找建築本質的重要線索。它不僅僅是一個物理環境,還讓居民們在漫遊城市的過程中不斷探索並逐漸形成對城市的認同心理。


DOHWASEOGIL文化中心作為朝鮮時代繪畫研究的官方辦公場所,可以說是韓國傳統繪畫藝術發展的搖籃,因此,該建築的設計必須化解歷史記憶與現代商業空間機能需求之間的矛盾。
核心設計理念目的在於追溯人們心中即將消失的對傳統歷史的記憶,並以此來探尋建築的本質。那些正在消失的歷史元素有著一種超現實主義的神秘魅力,雖然韓國的傳統已經逐漸消失,但是其精神本質是不容消亡的。UNSANGDONG Architects Cooperation事務所的建築師們試圖將韓國傳統的山水畫元素融入到現代化的首爾城市結構中。

由街道看建築©Yong Su Kim

作品與周邊城市環境©Yong Su Kim
東方山水畫的精髓是描繪想像中的風景。如果說西方的山水畫致力於呈現自然的原貌,運用的是反映現實的寫實畫法,那麼東方的山水畫則是對自然記憶的再現。畫作中的場景浮現於畫家的想像中,是記憶對真實自然畫面重塑的結果。因此,設計的重點不僅僅在於對環境永續發展性的思考,更重要的是凸顯出一種烏托邦式的、將建築化作對想像世界寫意呈現的態度。

建築的立面表達了一種山水畫般的寫意©Jaeyoon Kim

有街角看D2棟©Jaeyoon Kim

有街角看D1棟©Jaeyoon Kim

立面細部©Jaeyoon Kim
山水畫式的空間配置手法試圖再現普通商業空間所不具備的公共性質。中心的地面層被規劃為一個空曠的公共空間,可以作為城市公共廣場,以及居民休閒活動場所使用。連續的室內外坡道如同畫中的細膩筆觸勾勒出基地的景觀與輪廓。這些坡道是步行系統的核心,以起伏的姿態貫穿了整個商業空間,同時串聯起豐富的空間機能,例如展覽區以及供人休憩的空間節點平台等。


作品地面層被規劃為空曠的公共空間©Jaeyoon Kim

山水畫式的空間配置再現了普通商業空間所不具備的公共性質©Yong Su Kim
沿著坡道蜿蜒而上,訪客們會驚奇地發現一處對外開放的公共花園。這個花園平台不僅作為城市景觀廣場,還為市民們提供了欣賞景福宮的全新視角;同時,它也成為建築中央重要的公共空間,在地皮昂貴的商業基地上,這種空間是極為難能可貴的。創造公共空間的重要意義在這個被私人空間填滿的商業建築中再度凸顯了出來。

空中開放花園平台©Jaeyoon Kim


花園平台不僅作為城市景觀廣場,還提供全新的城市全景視角©Jaeyoon Kim

由屋頂露台看周邊環境©Jaeyoon Kim

陽台©Jaeyoon Kim

室外樓梯與坡道是作品步行系統重要組成部分©Jaeyoon Kim

室內空間概覽©Jaeyoon Kim


大面積的玻璃創造出極佳的自然採光©Jaeyoon Kim / Yong Su Kim


色彩豐富的商業空間©Jaeyoon Kim


商業空間©Jaeyoon Kim
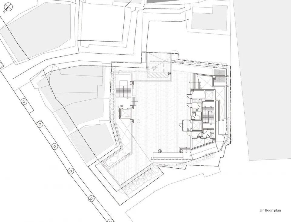
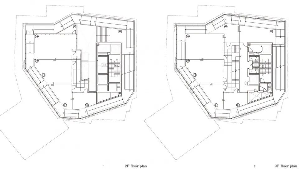
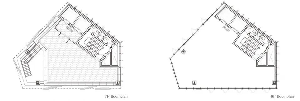
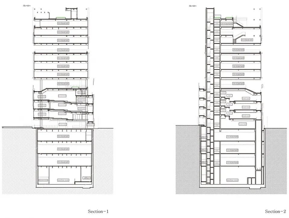
建築圖

D1地面層平面圖 Plan©UNSANGDONG Architects Cooperation

D1二層與三樓平面圖 Plan©UNSANGDONG Architects Cooperation

D2地面層平面圖 Plan©UNSANGDONG Architects Cooperation

D2 七層與八層平面圖 Plan©UNSANGDONG Architects Cooperation

D2立面圖 Elevation©UNSANGDONG Architects Cooperation

D1立面圖 Elevation©UNSANGDONG Architects Cooperation

D1剖面圖 Section©UNSANGDONG Architects Cooperation
Location: D1_ 18, Yulgok-ro, Jongno-gu, Seoul, Republic of Korea / D2_ 26, Yulgok-ro, Jongno-gu, Seoul, Republic of Korea Use Living Facility
Site 總樓地板面積:D1_810.58平方公尺 / D2_308.10平方公尺
Built 總樓地板面積:D1_469.80平方公尺 / D2_184.44平方公尺 Total floor area D1_6,715.72.85平方公尺 / D2_2,467.25平方公尺
Floor: D1_B4F, 14F / D2_B4F, 11F
Structure : SRC
Height: 50.0m
Design period: 2016. 09 – 2018. 09
Construction period: 2018. 05 – 2020. 04
Architect: YoonGyoo Jang, ChangHoon Shin
Design team: Teakjun Oh, Wonjoon Yang, Minkyun Kim, Eunsol Ko, Jiyeon Woo, Ara Jo, Teakmin Kim, Sungjung Shin, Hwayoung Shin, Gayeon Lee, Inhoo Lim, Sangho Jung, Sanghyun Choi, Yooyoung Hwang, Din Nan, Sangji Han
攝影師: Jaeyoon Kim , Yong Su Kim
