Piccolo House 位於澳洲墨爾本南邊,由澳洲建築師Wood Marsh設計,是Piccolo Group 地板鋪面材料集團的新總部,堪稱Piccolo Group所營造住宅的範本,凸顯企業的品牌文化,建築師與業主Piccolo Group之間緊密合作,秉持相互尊重及共的信念,打造舒適精緻的複合設施,包括了辦公室、住宅等空間。
受到周邊環境的啟發,建築師保留了基地上原有的歷史建築,並將Piccolo House的地面層與之結合起來,使建築從周邊歷史環境中脫穎而出。最終建築以簡潔有序的框架結構,精細雕刻的混凝土與彩色的反光玻璃立面的形式呈現在人們眼前,以全新的方式詮釋了周邊建築的磚砌色調,營造出溫暖的秋日氛圍。建築整體宛如一尊石刻雕塑,框架結構為主體的建築量體凸顯出力量之美。

Piccolo House外觀 © Trevor Mein

Piccolo House地面層周邊的商店 © Trevor Mein
作為一棟綜合使用的建築,Piccolo House包括了商店、酒店、商業以及豪華住宅等多樣的機能,整體氛圍和諧統一。獨特的地理位置,使建築在都市空間中以多面向呈現;此外,位於基地旁多卡斯街(Dorcas Street)一側,帶有維多利亞式陽台的既有建築,經過修復與改造,已成為了活躍的商業中心。
這些具有歷史意義的建築,在為小型商店提供棲身之地的同時,也為Piccolo House附近的街景增添了豐富而生動的畫面,加強了Piccolo House與都市環境的連接性。

Piccolo House外觀 © Trevor Mein

地面層沿查爾斯街(Charles Street) 側,採用了鏽蝕程度不一的耐候鋼作為外立面,靈感來自澳洲藝術家Vale Richard Giblett (1966-2018)的當代大都市繪畫,以建築的語言將Piccolo House轉化為名副其實的公共藝術,當夜晚來臨,光線藉由沖孔板耐候鋼表面照亮街道,形成光的畫作,與美國極簡主義藝術家Dan Flavin 的裝置藝術有異曲同工之妙,被照亮的查爾斯街,與過去相比,更能為人們帶來安全感。

由查爾斯街一側看建築 © Trevor Mein

鏽蝕程度不一的耐候鋼版作為地面層外立面© Trevor Mein

立面細部© Trevor Mein

建築的形式與人們在室內所得到的體驗息息相關,從位於約翰街(John Street)的主要入口進入建築,鏡面玻璃與黑色金屬構成的飾面營造出強烈的儀式感。接待大廳的內部採用了帶有秋日氣息的鏡面玻璃,呼應了建築色彩繽紛的外觀。大廳上方的四個樓層內設有一居或兩居的住宅單元,這些空間都經過精心設計,住戶可盡情欣賞墨爾本壯闊的城市天際線。
Piccolo House的頂層則是Piccolo的豪華辦公室,辦公室室內採用了銀色的凝灰石,進一步增強了Piccolo House的整體性,使建築的雕塑感在室內得到了昇華。Piccolo House室內設計採用了深色的主色調,主要由深色木材,黑色與古銅色的金屬構成,凸顯出高品質的住宅氛圍。
Wood Marsh事務所將歷史、建築、室內外空間、商業區,以及住宅巧妙地結合在一起,最終使Piccolo House完美地凸顯出業主的品牌理念與商業價值。藉由高品質的設計,Piccolo House成為業主與開發商的化身,它不僅為業主提供了辦公空間,同時也為開發商與租賃產業樹立優秀典範。
>>相關資訊
作品名稱:Piccolo House
作品位置:澳洲 5 John St, South Melbourne VIC 3205
業主:Piccolo Group
建築師: Wood Marsh
總樓地板面積:4000 平方公尺
攝影師:Trevor Mein

入口門廳© Trevor Mein

住宅單元內,廚房、客廳加上大片落地玻璃,相當舒適的居住空間 © Trevor Mein

頂樓辦公室 © Trevor Mein

辦公室採用了深色主色調© Trevor Mein

辦公室空間與走廊 © Trevor Mein


辦公室採用木紋面材,呈現溫暖氣質 Trevor Mein

開放式陽台提供了無與倫比的景觀視野 © Trevor Mein

頂樓陽台 © Trevor Mein

夜間景觀 © Trevor Mein

當夜晚來臨,光線藉由沖孔板耐候鋼表面照亮街道,形成光的畫作,與美國極簡主義藝術家Dan Flavin 的裝置藝術有異曲同工之妙


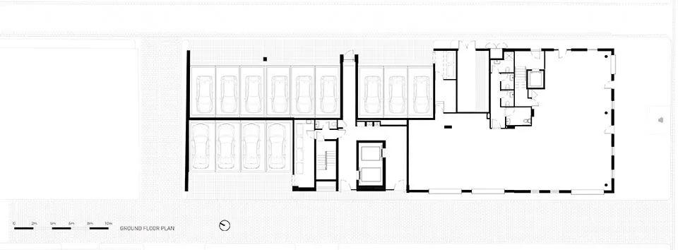
地面層平面圖 © Wood Marsh

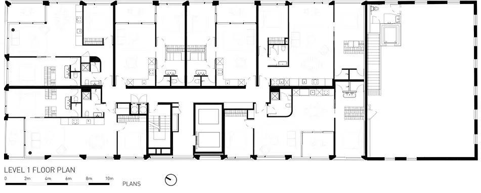
二樓平面圖 © Wood Marsh

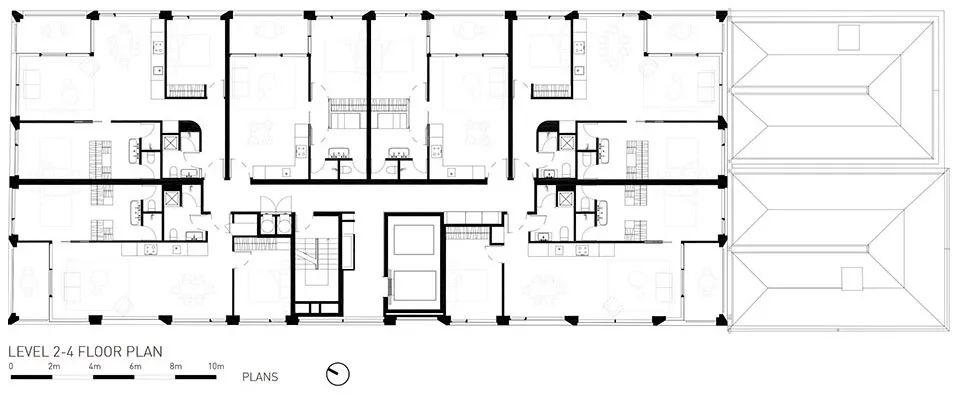
標準層平面圖 © Wood Marsh

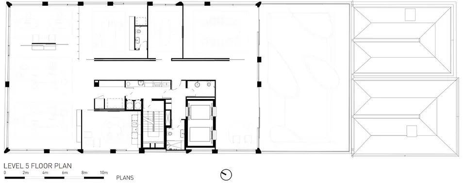
頂樓平面圖© Wood Marsh

剖面圖© Wood Marsh

東側立面圖© Wood Marsh

