根據中華民國的「建築技術規則建築設計施工編」第262條規定,這塊基地很明顯就是所謂的「坡度陡峭者」:所開發地區之原始地形應依坵塊圖上之平均坡度之分布狀態,區劃成若干均質區。在坵塊圖上其平均坡度超過百分之三十者。
姑且不論日本的建築法規是如何規範在坡度陡峭基地的建築行為,但對建築師而言,解決了邊坡滑動、擋土牆結構和施工方法等大地工程的問題之後,善加利用這塊基地,做出有意思的住宅,才能顯露出建築設計的功力。
建築師宇野友明思考著,如何充分回應基地周遭紋理?如何讓室內與戶外的風景完整且連續?建築師最後決定在鋼筋混凝土的厚實基礎上放置一個木構造的空間,作為頂樓的生活起居空間。
最終的結果,木構造的樑、柱、地板、欄杆,藉由日照帶來的光影,形成優雅無比的畫面,伴隨著四季變換的美景,空間變得溫暖且迷人。
>>相關資訊
建築師:宇野友明建築事務所
作品位置:日本愛知縣川崎
完成:2017年
建築面積:101.0平方公尺
主持建築師:宇野友明
設計團隊:宇野友明建築事務所
攝影:宇野友明建築事務所、Hiroshi Tanigawa,Yasuko Okamura
© Hiroshi Tanigawa

© Hiroshi Tanigawa
© 宇野友明建築事務所

© Yasuko Okamura
© Hiroshi Tanigawa
© Hiroshi Tanigawa
© Hiroshi Tanigawa
© Hiroshi Tanigawa

© Hiroshi Tanigawa
© 宇野友明建築事務所
© 宇野友明建築事務所
© 宇野友明建築事務所
© Yasuko Okamura
© Yasuko Okamura
© Yasuko Okamura
© Yasuko Okamura
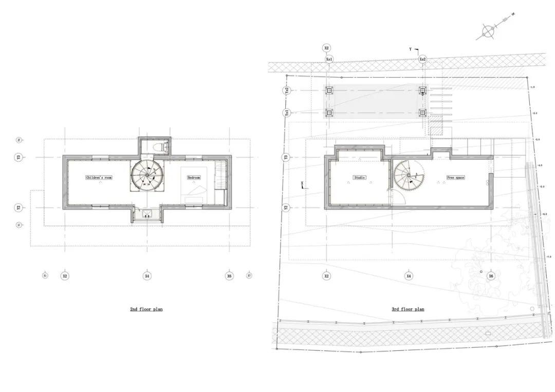
平面圖
平面圖
立面圖
立面圖

剖面圖
