亞熱帶島嶼的離網實驗:從極端氣候中萌生的生存韌性與微型基礎設施
位於日本鹿兒島縣南方的奄美大島,長年受太平洋高壓與季風影響,颱風肆虐頻仍,這片亞熱帶土地原本是建築師酒井一德(Kazunori Sakai)構思自宅的基地。最初並未設想過要徹底斷絕與公共電網的連結,然而隨著全球暖化導致極端氣候常態化,天災對島嶼基礎設施的威脅日益嚴峻,促使酒井轉念思考生存的本質。
三年前,酒井一德購入一座荒山,試圖在那裡建立一套能獨立運作、不假外求的「微型基礎設施」,藉以應對高齡化社會與人口過疏區可能面臨的資源斷鏈危機。這項計畫並非一時興起,而是深謀遠慮的戰略部署,意在探索人類如何在不可預測的環境變遷中,運用建築技術奪回生活的主導權,將被動的防災轉化為積極的日常韌性,AMAMI House 便是此概念的都市先行實驗場。





挑戰日照極限的能源策略:在北國般的陰鬱天候中尋求太陽能的自主可能
要在深山野嶺實現完全自給自足,技術門檻極高,其中最棘手的挑戰莫過於能源獲取。奄美大島雖處南國,實際上年平均日照時數卻低得驚人,數據顯示其太陽輻射量竟與寒冷的北日本(如新潟或秋田)相去不遠。
酒井建築事務所(SAKAIARCHITECTS)團隊在縝密評估風力、水力及地熱等再生能源方案後,發現受限於地形與法規,太陽能仍是相對可行的選項。
為了驗證這套系統在低日照條件下的穩定性,酒井一德大膽決定以自家位於市區的住宅作為前哨站,就在動土儀式前十天,毅然切斷通往國家電網的最後一條纜線。這不僅是技術測試,更是一場豪賭,賭的是現代科技與環境數據分析能否戰勝先天地理限制,在陰雨綿延的亞熱帶氣候中,為一家四口撐起不斷電的現代生活。






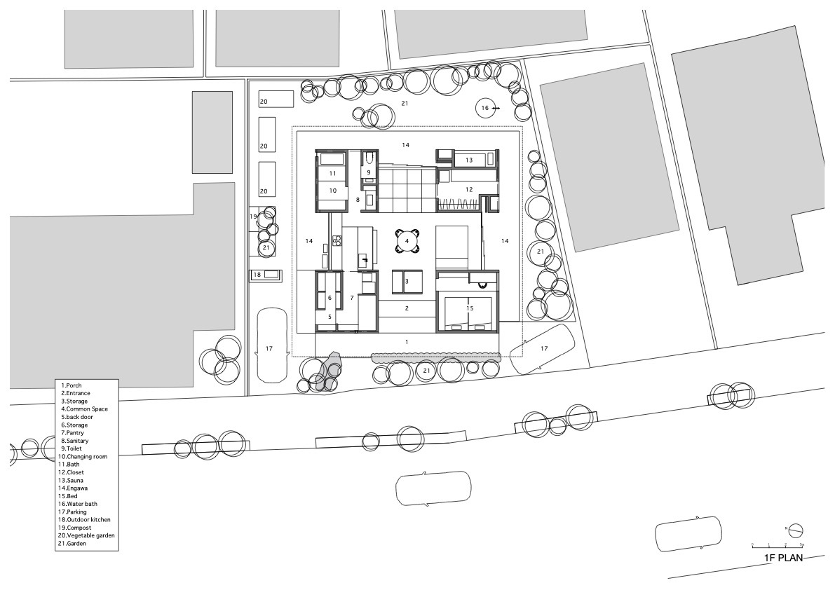
分棟式佈局的空間哲學:重現傳統「分棟」智慧與幾何美學的通風廊道
在空間規劃上,這處住宅並未採用現代常見的集中式量體,而是向奄美大島傳統的「分棟(Bunto)」建築形式致敬。歷史上,分棟式設計是為了防範火災蔓延及降低颱風損害,酒井一德將此古老智慧現代化,將浴室、臥室、儲藏室等機能拆解為五個獨立量體。五個量體並非隨意散落,而是經過精密的幾何計算排列,量體之間形成的「負空間」轉化為半戶外的起居場域。
量體之間的中介空間如同會呼吸的毛細孔,流暢地串聯起緣側走廊與庭園植栽,打破了室內與室外的僵硬界線。風在建築群落間自由穿梭,帶走亞熱帶特有的濕黏熱氣,讓居住者在移動過程中,隨時能感知光影推移與季節更迭,實踐了人與自然交融的空間詩學。



應對風雨的構造轉譯:入母屋屋頂與高倉形式的被動式環境控制系統
屋頂形式的演變,往往是建築與氣候長期磨合的結果。AMAMI House 的屋頂設計重新詮釋了當地常見的波浪板與「入母屋」(Irimoya)造型,這種歇山式屋頂在東亞建築史上有著重要地位,能有效導引雨水並強化抗風性。設計團隊在屋頂層次中植入了高效能的隔熱材與通風層,建構出一套無須耗能的被動式氣候調節系統。
此外,建築結構借鑑了琉球群島特有的「高倉」(Takakura)穀倉設計,將居住層微微抬升。這種設計源於古代為了防潮與防鼠患的智慧,如今則轉化為促進全方位氣候對流的利器。深邃的出挑屋簷如同巨大的遮陽傘,阻擋了南國烈日的直射,亦在午後雷陣雨傾盆而下時提供庇護,確保室內即使在暴雨中仍能開窗換氣,維持乾爽舒適。



循環經濟的物質實踐:從桑拿熱能到食物堆肥的封閉式資源生態系
在物質流動的層面上,這處住宅展現了對「物盡其用」的極致追求,具體實踐了循環經濟(Circular Economy)的理念。建築過程中產生的木材邊角料,並未被視為廢棄物丟棄,而是成為庭院中小巧木柴桑拿房的燃料來源。
燃燒後的灰燼回歸土地,改善土壤酸鹼值;而家庭日常產生的有機廚餘,則投入堆肥系統,化作滋養家庭菜園的養分。菜園中收成的時令蔬果,再次回到餐桌,成為家人的盤中飧。這種「建築者—基地—居住者」之間的封閉資源迴路,大幅降低了對外部物資的依賴,也減少了碳足跡。在資源日益匱乏的今日,這種自給自足的生活模式不僅是懷舊,更是一種前衛的生態宣言,證明了現代生活可以在不犧牲品質的前提下,與地球達成互惠共生的契約。



結之島的社群聚落:重塑「結」的互助精神與開放包容的鄰里場域
奄美大島自古被稱為「結之島(Island of Ties)」,這裡的「結(Yui)」指的是一種基於勞力交換與互助合作的社會連結,類似台灣農村的「交工」。在當地的文化傳統中,家族慶典往往動員八十位以上的親族鄰里,酒酣耳熱直至深夜。然而,隨著現代都市化進程與核心家庭的興起,這種緊密的社群紐帶正逐漸鬆動、斷裂。AMAMI House 試圖透過空間設計修復這種關係,其開放、通透且具包容力的公共區域,自然地誘導人們在此駐足、聚集。這裡不再只是封閉的私人堡壘,而是隨時準備好敞開大門的社區客廳,模糊了私宅與公共場所的邊界,讓逐漸淡薄的人情味在一次次的聚會中重新加溫,維繫著島嶼獨有的人文脈絡。





居住意義的當代再定義:在不確定的年代中建構文化平台與心靈庇護所
綜觀全案,AMAMI House 已超越了單純作為遮風避雨之「殼」的功能,它昇華為一座承載在地文化與環境哲學的平台。在電力與資源隨時可能中斷的全球風險社會中,這座建築以一種安靜而堅定的姿態,回應了南方島嶼特殊的氣候生態與文化肌理。
不仰賴巨大的中央系統,而是回歸最小單位的自立更生,繼承了「結」(Yui)的集體協作精神。酒井一德透過此作,向世人提問:在環境充滿不確定性的時代,什麼才是真正的「居住」?答案或許不在於擁有多少高科技設備,而在於我們能否順應天時,在地景中找到安身立命的平衡點。這座住宅以其獨樹一幟的姿態,為未來的建築形式寫下了充滿啟發性的註腳。





建築圖




