當障子門遇上星際大戰:Astroscale 美國總部開箱!Neoera巧思佈局,讓丹佛百年建築承載日本精神與宇宙情懷

0
630

軌道守護者落錨新大陸:Astroscale丹佛據點的策略意涵與建築新生

在全球太空經濟蓬勃發展,低軌道衛星部署方興未艾之際,總部座落於日本東京的Astroscale控股公司(Astroscale Holdings Inc.),作為軌道碎片清除與在軌服務的市場先行者,全球佈局的每一步皆備受矚目。該公司近期鄭重揭幕位於美國科羅拉多州丹佛市(Denver)的美國企業總部(Astroscale US Headquarters),做為企業擴張的里程碑,更是深耕北美此一關鍵太空市場的戰略宣示。

新總部選址於丹佛市深具人文氣息的南百老匯(South Broadway)區德拉瓦街(Delaware Street),一處擁有超過百年歷史的1910年代工業火車裝卸站(industrial train depot),經由丹佛本地由女建築師 Emily Adams 主導的建築師事務所Neoera 的匠心獨運,進行大規模的適應性再利用,在歷史的骨幹上,長出了科技的紋理,也為丹佛市作為美國「航太之都」之一的地位,再添一筆產經亮點,背後更蘊含了企業對永續價值的多重詮釋。

Neoera  Astroscale Holdings US HQ Denver 美國丹佛總部室內設計

Neoera  Astroscale Holdings US HQ Denver 美國丹佛總部室內設計

Neoera  Astroscale Holdings US HQ Denver 美國丹佛總部室內設計

Neoera  Astroscale Holdings US HQ Denver 美國丹佛總部室內設計

Neoera的設計哲思:歷史承載創新,日式美學轉譯未來

肩負 Astroscale 美國總部空間塑造大任的 Neoera 建築師事務所,核心的設計概念在於尋求歷史建築的悠長敘事與Astroscale公司勇於開創、前瞻未来的企業精神之間的平衡點,力圖創造一處能同時包容科學家、產業擘劃者、政府代表及各界夥伴的交流平台。

在總地板面積達到約1254平方公尺的空間裡,Neoera 團隊不僅致力於完整保存該建築原有的重型木樑結構與斑駁磚牆所散發的工業時代印記,更巧妙地將 Astroscale 的日本文化基因予以視覺化。

最引人注目的,莫過於可移動、可旋轉的藍色聚碳酸酯(polycarbonate、PC)日式障子(Shoji screens)屏風的運用,這項設計元素不僅是一種傳統和紙障子的現代變奏,藉由 PC 的半透明特性與色彩選擇,賦予空間輕盈感與科技感,更重要的是,這些屏風提供了高度的空間使用彈性,能夠依需求迅速界定出公共集會區域或簡報發表場地,相得益彰地鋪陳了企業文化底蘊。

Neoera  Astroscale Holdings US HQ Denver 美國丹佛總部室內設計 在這項室內設計案中,最引人注目的就是這道可旋轉的藍色 PC 式障子屏風的
在這項室內設計案中,最引人注目的就是這道可旋轉的藍色 PC 式障子屏風的

Neoera  Astroscale Holdings US HQ Denver 美國丹佛總部室內設計

Neoera  Astroscale Holdings US HQ Denver 美國丹佛總部室內設計

Neoera  Astroscale Holdings US HQ Denver 美國丹佛總部室內設計

宇宙為藍本:衛星意象佈局下的協作中樞與動力雙翼

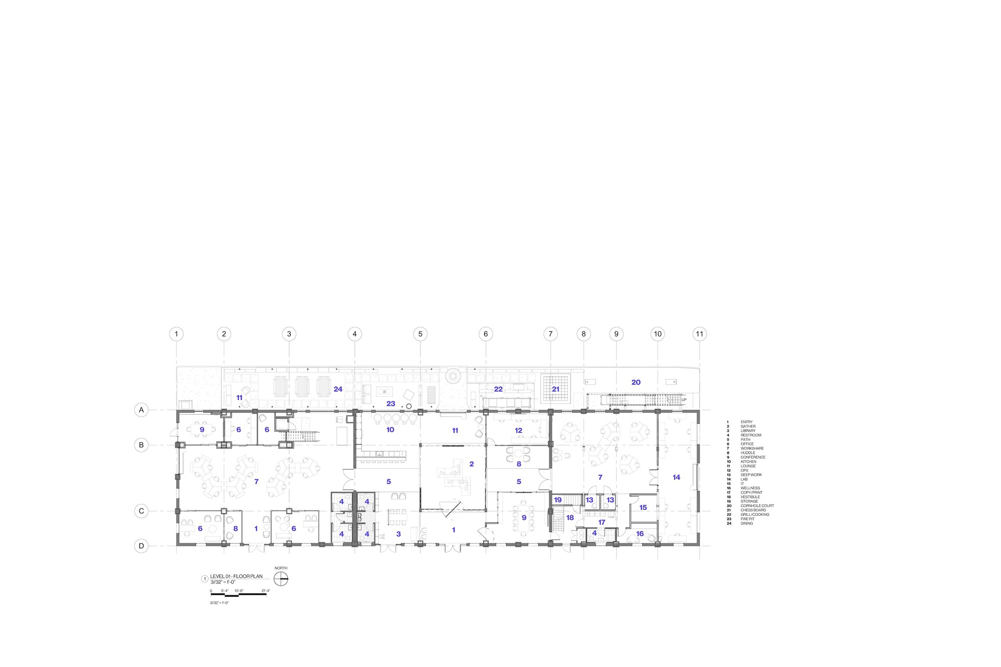
Neoera的空間規劃從Astroscale的核心業務──衛星科技──汲取靈感,將整棟建築物解構成猶如一枚在軌衛星的平面佈局,充滿巧思。建築內部主要劃分為北、中、南三個主要艙間(bays)。位於中央的艙間設定為公共入口,由此展開的對稱式平面格局,宛若衛星本體的結構,此中央地帶同時也扮演著如同衛星的中央控制與通訊系統的角色,是整個總部的運作心臟與交流輻輳點。此區域精心配置了促進團隊互動與社群凝聚的多元機能空間,諸如開放式廚房與員工用餐區、小型圖書館、Astroscale董事會議室,以及最能彰顯企業專業的任務操作室(Mission Operations room),後者可即時呈現衛星在軌運行的動態數據,蔚為大觀。南北兩側的艙間則被賦予工作區域的機能,在概念上被比擬為衛星的太陽能板,象徵著為公司持續收集創新能量的「雙翼」,別出心裁。

Neoera  Astroscale Holdings US HQ Denver 美國丹佛總部室內設計

Neoera  Astroscale Holdings US HQ Denver 美國丹佛總部室內設計

Neoera  Astroscale Holdings US HQ Denver 美國丹佛總部室內設計

Neoera  Astroscale Holdings US HQ Denver 美國丹佛總部室內設計

科幻馳騁創意疆域:從星際吧台到回力鏢工位的奇想樂園

為了打破一般人對於高科技產業辦公室可能流於冰冷或制式化的刻板印象,Astroscale 美國總部在內部氛圍的營造上,大膽擁抱了員工們普遍熱愛的科學幻想(science fiction)文化元素,將趣味性與專業性冶於一爐。在南北兩翼的工作艙間中,特別規劃了主題鮮明的休憩交流區:一端是以經典影集《星際爭霸戰》(Star Trek)為靈感設計的雞尾酒吧,另一端則是充滿《星際大戰》(Star Wars)電影宇宙氛圍的休息沙龍。

這兩個充滿話題性的「彩蛋」空間,由一座別具風格的下沉式餐桌巧妙區隔,既提供了非正式的交流場域,也為日常工作增添了探索的樂趣。在辦公家具的選擇上,亦可見其用心,例如採用了造型獨特的回力鏢形辦公桌,此種設計不僅在視覺上更具動感,也為員工提供了更靈活彈性的工作站設置方式,無論是獨立專注或是小組協作討論,均能遊刃有餘,激發無限創意火花。

Neoera  Astroscale Holdings US HQ Denver 美國丹佛總部室內設計

Neoera  Astroscale Holdings US HQ Denver 美國丹佛總部室內設計

Neoera  Astroscale Holdings US HQ Denver 美國丹佛總部室內設計

Neoera  Astroscale Holdings US HQ Denver 美國丹佛總部室內設計

Neoera  Astroscale Holdings US HQ Denver 美國丹佛總部室內設計

永續座標上的企業燈塔:工業遺址的時代新生與文化彰顯

Astroscale美國總部的落成,絕非僅止於一處物理辦公空間的建置,它更像是一份立體的企業宣言,昭示了公司對於科技創新、環境永續以及人文關懷的堅定信念。選擇在丹佛一處擁有110年歷史的工業火車倉庫進行舊建築改造,本身就是對永續發展理念的積極響應,保留了結構堅實的重型木料與磚石牆面,在尊重歷史紋理的基礎上,注入俐落的現代設計語彙,使新舊元素在此和諧對話,相輔相成。

最終完成的辦公場域,以其鮮活的色彩配置、友善的空間尺度及洋溢的樂觀氛圍,成功地將Astroscale重視協作、樂於啟發、勇於進取的企業文化精神具象化,不僅為員工、合作夥伴及訪客提供了一處振奮人心的交流平台,也為太空產業的辦公空間設計樹立了新的參考座標,更鞏固了Astroscale在此專業領域中承先啟後、引領發展的領航者地位。

Neoera  Astroscale Holdings US HQ Denver 美國丹佛總部室內設計


建築圖

Neoera  Astroscale Holdings US HQ Denver 美國丹佛總部室內設計

Neoera  Astroscale Holdings US HQ Denver 美國丹佛總部室內設計


作品資訊

作品名稱:Astroscale US Headquarters
作品位置:美國 Denver, United States
作品類型:辦公室辦公空間舊建築改造室內設計企業總部美國美國建築、女建築師
業主:Astroscale
設計單位:Neoera
總樓地板面積:13500 平方英尺 (約 1254 平方米)
竣工:2025年
攝影:Justin Martin
主持建築師:Neoera
景觀設計:Neoera
燈光設計:MDP Engineering Group PC, Fisher Lighting
機電工程顧問:MDP Engineering Group PC
結構顧問:Anchor Engineering
營造廠:Pinkard Construction

Leave a reply

Please enter your comment!
Please enter your name here

這個網站採用 Akismet 服務減少垃圾留言。進一步了解 Akismet 如何處理網站訪客的留言資料