簡約外觀輝映自然,靜謐氛圍烘托藝術
奧登美術館(Audain Art Museum)選址於加拿大惠斯勒(Whistler, Canada),由加拿大建築師事務所 Patkau Architects 擔綱設計。這座美術館在建築外觀的形制以及整體的氣質營造上,特意採取了含蓄且簡約的格調,其主要用意在於為館內精心收藏的藝術品,以及美術館四周圍繞的優美自然景致,搭建出一處靜謐的映襯舞台,使藝術與自然相互輝映。美術館建築外觀呈現簡潔俐落的線條,外層覆蓋著一層色調深沉的金屬外殼,這層金屬外殼在周邊蓊鬱茂密的森林掩映之下,更顯得內斂而沉靜。

原住民文化與現代度假勝地的交織
惠斯勒(Whistler)是加拿大英屬哥倫比亞省轄下的一個城鎮,在現代化的發展之前,惠斯勒一帶原是士魁米希族(Squamish Nation)和利魯艾特族(Lil’wat Nation)等原住民族群的傳統聚居地,擁有深厚的歷史文化底蘊。
惠斯勒地理位置優越,坐落於溫哥華以北約 125 公里的太平洋海岸山脈之中,是一個世界聞名的度假地區。根據 2021 年的人口統計資料顯示,惠斯勒的常住人口約為 13,982 人,然而,每年到訪惠斯勒的遊客數量卻高達約兩百萬人次,這些遊客主要是為了當地舉世聞名的高山滑雪場和刺激的山地自行車場地慕名而來。在過去的十五年來,惠斯勒更曾多次被多份知名的滑雪雜誌評選為北美最佳滑雪場地之一,惠斯勒更因為壯闊的自然景觀和豐富的戶外活動,吸引了來自世界各地的遊客。




光影流轉,營造溫潤的藝術氛圍
當建築外殼敞開之處,例如迎賓的門廊,或是從通往各展覽廳的玻璃廊道向外眺望的視野,原本深色的金屬外殼便會轉化為一層散發著溫潤光澤的木質飾面。這種材質的轉換,不僅在視覺上構成溫暖的對比,更在空間中營造出一股引人入勝的氛圍。
室內公共場域的設計,從建築外部便可略見一二,同樣延續了這種溫暖而明亮的材質運用,使內外空間產生了和諧的連貫性,可謂相得益彰。在簡約的外觀之下,鋪陳出豐富的層次感,結合在地素材與現代工藝材質運用,為建築注入了溫度,使美術館不再只是冰冷的展示容器,而是一個能夠與人產生情感共鳴的場所。




典藏卑詩藝術精粹,展現時光流轉的文化軌跡
奧登美術館(Audain Art Museum)是一座私人美術館,坐落於加拿大卑詩省(British Columbia)的 Whistler,總樓地板面積達5200平方米,此館將典藏 Michael Audain 先生的個人藝術收藏,這些藏品勾勒出一幅卑詩省的視覺歷史長卷,時間跨度從十八世紀晚期直至今日,可謂洋洋大觀。這批珍藏不僅是一部地方美術史,更映照出社會變遷與時代精神。美術館保存珍貴的文化資產,更提供大眾一個認識歷史、反思當下的場域,美術館無疑將豐富在地藝文生活,吸引更多藝文愛好者前來朝聖。


珍藏名家傑作,輝映加拿大藝文發展
奧登美術館的館藏中,包含了全球最優良的早期原住民面具收藏之一,這些面具不僅是精美的藝術品,更是原住民文化的重要載體,見證了其豐富的歷史與傳統。此外,館內還收藏了極為傑出的 Emily Carr 畫作,她的作品以描繪加拿大西岸的自然風光和原住民文化而聞名,筆觸奔放,色彩濃烈,具有強烈的個人風格。
美術館同時也收藏了一些加拿大極具影響力的戰後藝術家的作品,包括 Jack Shadbolt、E. J. Hughes 和 Gordon Smith 等人,這些藝術家在加拿大藝壇佔有舉足輕重的地位,他們的創作豐富了加拿大的藝術面貌。不僅如此,館內亦收藏了 Jeff Wall、Rodney Graham、Stan Douglas 等國際知名當代藝術家的作品,可謂群賢畢至,少長咸集,使美術館的收藏更具國際視野。






三大關鍵因素交織,成就藝文殿堂
奧登美術館(Audain Art Museum)的整體設計,受到三項重要的決定性因素所形塑。首先,是美術館必須同時容納 Michael Audain 先生的永久收藏展覽,並且與這批館藏相互輝映、並陳展出的,是來自加拿大各地乃至全球各式各樣的臨時展覽。這項需求,考驗著美術館的空間規劃彈性,必須能靈活切換不同展覽主題,又能維持整體參觀動線的流暢。
其次,美術館所在的 Whistler 基地,雖然擁有壯麗的常綠森林植被,環境優美,但也面臨著嚴峻的挑戰,因為此地正位於 Fitzsimmons Creek 的洪氾平原之內。這意味著建築設計必須充分考量到水患的風險,並採取相應的防護措施,以確保館藏與建築結構的安全。第三項決定性因素,則是 Whistler 當地特有的豐沛降雪量,年平均積雪深度將近 15 英尺,這對建築的結構設計與排水系統,都是嚴苛的考驗。美術館的落成,也展現了人類在自然環境限制下展現的智慧與能力。





順應地勢與環境
為了回應前述的各項決定性因素,奧登美術館的設計採取簡潔而直接的手法,將一系列連貫的公共空間與展覽廳,投射到周邊森林中既有的線性空間之中。此舉善用既有地形,並考量到基地可能面臨的洪患風險,巧妙地將建築融入自然環境之中,建築主體被抬高到地面以上一層樓的高度。建築上方則覆蓋著陡峭的斜屋頂,這個屋頂不僅在外觀上形成鮮明的特色,更容納了行政辦公室以及後勤支援等功能空間,有效利用建築的垂直空間,有助於提升美術館的整體運作效率,將有限的空間資源做最有效的運用。


打造流暢的參觀動線
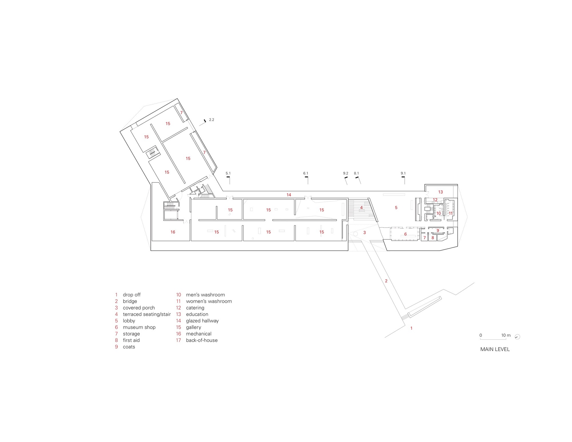
美術館的建築設計與基地選址,在基地環境的脈絡下產生了協同作用,共同創造出一條公共步行動線,這條動線從 Whistler Village 的主要行人徒步區「_village stroll」(村莊漫步道)開始,橫越 Blackcomb Way,引導遊客進入並穿過美術館,然後再延伸到 Fitzsimmons Creek 公園。從 Blackcomb Way 出發,一座橋樑穿梭於森林之間,抵達美術館設有天窗的入口門廊。
從這裡,參觀者可以選擇下到森林地面和中央草地,繼續穿梭於基地之中,或者直接進入美術館的大廳和活動空間。進入美術館後,參觀者會沿著一條俯瞰下方草地的玻璃走道前進,首先抵達展示永久收藏品的展覽廳,然後再到展示臨時展覽的展覽廳。動線設計流暢自然,讓參觀者在行進間,可以充分欣賞周遭的自然景觀,提升參觀的舒適度與趣味性,且有效地串聯了 Whistler 的城鎮中心與自然景點,有助於推動當地的觀光發展。








建築圖















作品資訊
作品名稱:Audain Art Museum
作品位置:加拿大 4350 Blackcomb Way, Whistler, BC V8E 1N3, Canada
作品類型:美術館、博物館、公共建築、文化設施、加拿大建築、加拿大建築師
設計單位:Patkau Architects
總樓地板面積:56000 平方英尺
竣工:2016年
攝影:James Dow / Patkau Architects
主持建築師:John Patkau, Patricia Patkau, David Shone, Michael Thorpe
營造經理:Axiom Builders
土木工程:Creus Engineering
結構設計:Equilibrium Consulting
地質技術:GeoPacific Consultants
照明設計:HLB Lighting Design
機電工程:Integral Group
雪害管理:Mountain Resort Engineering
景觀設計:PFS Studio, Tom Barratt
建築法規顧問:LMDG
建築外殼設計:Spratt Emanuel Engineering Ltd.
防洪設計:Kerr Wood Leidal
標示設計:Gallop/Varley
博物館顧問:Lord Cultural Resources
展覽設計:Bricault Design