海岸荒漠中的幾何住宅
秘魯的卡涅特省(Cañete Province),坐落於安地斯山脈與太平洋之間,有著狹長的海岸線。由 Sandra Barclay 與 Jean-Pierre Crousse 夫妻檔所組成的 Barclay & Crousse 建築師事務所在此設計了 Casa Equis 住宅。該地區屬於沿海沙漠,雖然是世界上最乾燥的區域之,卻因高濕度,讓氣溫變化相對和緩。冬季最低溫約為 14°C,夏季最高溫則為 29°C,日夜溫差小。建築師將當地的氣候以及地理環境納入設計考量,並且融入業主的需求,打造出這棟與環境緊密連結的現代住宅。


以「減法」邏輯出發:Casa Equis 的設計理念及空間規劃
Barclay & Crousse 採「減法」邏輯,跳脫傳統的建築設計思維。他們首先設想一個符合當地法規的抽象量體,然後以考古學家發掘古代遺址為比喻,逐步移除不必要的量體,進而讓空間浮現。他們將「減法」的設計概念應用於各個層面的設計。這個方式與尋常的「加法」概念不同,後者是逐步建造、堆砌。最終的成果,是室內與室外空間的界線消弭,形成流動的居住空間。設計團隊巧妙運用庭院、露臺和狹長的水池,營造出空間的層次感,並以無框的玻璃拉門,進一步模糊了室內與室外的分野。


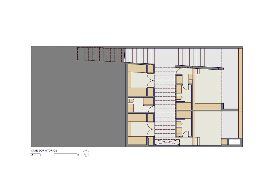
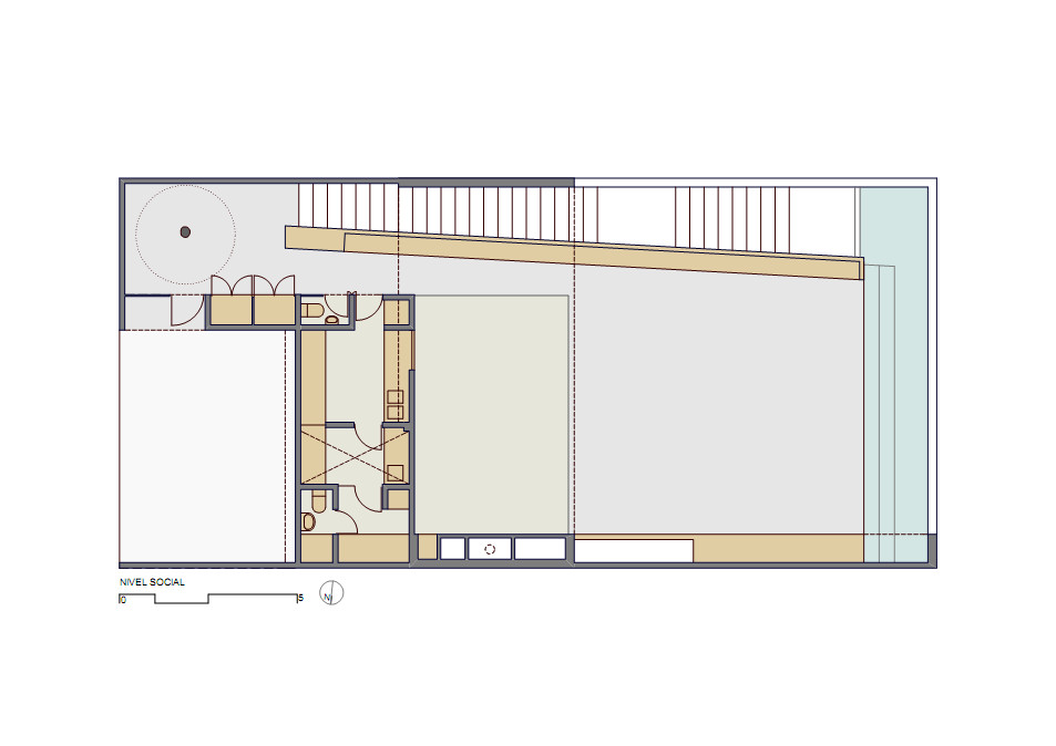
Casa Equis 的空間配置:依循自然地形的住宅設計
入口庭院引領居住者進入這棟住宅的主要空間。開放式的階梯,則順應了原始的地形,通往位於露臺下方的臥室區域。兒童房可經由被露臺遮蔽的庭院進入。主臥室則位於階梯的盡頭,上方是狹長的水池。從遠方眺望,客廳與餐廳的屋頂彷彿是漂浮在空中的遮陽傘,與住宅整體的設計相互呼應。為了融入周遭地景,建築師運用了當地的建材,並將營造的細節簡化,讓當地的工匠也能夠精準地將設計化為現實。


與環境相互依存:Casa Equis 的建築構造與細部設計
Casa Equis 的設計強調與環境的連結,建築師運用了當地的建材,並儘量減少了不必要的裝飾,以突顯出建築的結構之美。建築師表示,從他們在巴黎的事務所,到秘魯的建築基地距離遙遠,因此他們選擇以理性的構造系統,並且簡化設計的細部,使當地的工匠也能夠確實執行。這種務實的做法,除了確保工程品質,也減少了不必要的浪費,展現了永續發展的精神。


Casa Equis 的設計概念:與環境對話的「減法」建築
Casa Equis 的設計過程,是一段對於秘魯海岸環境的反思之旅。設計團隊從當地的氣候條件、地理環境,以及業主的需求等面向,試圖找尋出這棟建築與環境之間的最適切關係。設計團隊認為,設計的重點不是去改變環境,而是要在環境中,找到屬於這棟建築的定位。這個概念,引領他們走向「減法」的設計邏輯,從而創造出這棟與環境相互依存的住宅。


設計師的遠距挑戰:巴黎與秘魯的空間對話
由於 Barclay & Crousse 建築師事務所位於巴黎,與秘魯的建築基地距離遙遠,因此他們必須思考出一套可以克服距離障礙的設計與施工方式。最終,他們決定以預鑄的工法,減少現場施工的複雜度,並透過詳細的設計圖說,與當地的營造廠溝通。這個方式,除了確保工程品質,也讓這棟建築的設計理念,可以被完整地執行。


Barclay & Crousse 的設計哲學:在限制中尋找自由
Barclay & Crousse 建築師事務所的設計哲學,強調在環境的限制中,尋找出設計的自由。他們認為,每一塊土地都有其獨有的特性,而建築師的工作,就是去發掘這些特性,並將其轉化為設計的元素。在 Casa Equis 案例中,他們以「減法」的設計邏輯,以及預鑄的工法,克服了環境與距離的挑戰,並以抽象的設計語彙,讓這棟建築與環境產生對話。


簡約設計中的空間詩意
Casa Equis 以簡潔的線條、俐落的量體,以及與環境的緊密連結,展現出迷人的空間魅力。Barclay & Crousse 建築師事務所運用清水混凝土、玻璃以及金屬等現代建材,打造出這棟充滿現代風格的住宅。然而,在簡約的設計外觀下,卻蘊藏著豐富的空間層次。光線的變化、視線的穿透、室內與室外的連結,都為這棟建築增添了許多趣味,引人入勝。
與自然共存的永續設計
Casa Equis 的設計不只注重美學,更兼顧了永續發展的理念。設計團隊儘量運用當地的建材,減少了建材運輸所產生的碳排放。此外,建築的配置與開口設計,也充分考量了當地的氣候條件,以最少的能源,創造出舒適的居住環境。無框玻璃拉門的設計,除了讓室內與室外空間更緊密連結,也有助於自然通風,減少了空調的使用。諸多設計細節,讓這棟建築成為一座與自然共存的永續住宅。
建築圖










