邦迪海灘邊的住宅BISMARCK HOUSE,不僅新舊參半,還「瘋狂」的建花園!

0
2982

BISMARCK HOUSE是一座已有些年份的半獨立式住宅,它位於邦迪海灘的不遠處,年久失修讓它看起來非常的破敗,這與不遠處人群的喧囂聲、來往的時髦青年都顯得格格不入,所以此次Potter Wilson和Andrew Burges共同合作,將這個BISMARCK HOUSE重新打造,不僅保留了部分原始的元素,還加入了許多花園式的設計,不論是室內陳設還是建築造型,都非常的棒!

 

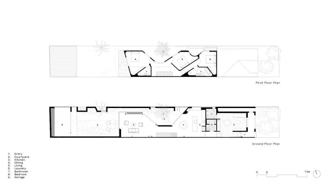
▲BISMARCK HOUSE位於街道的轉角處,不遠就是邦迪海灘,可以看到一排排長條形的建築緊密排列,所以即便是重新的改造,建築寬度以及高度也是沒法改變的。

▲如今設計師為這裡引入了大量花園式的元素,所以綠植成為了建築內十分常見的裝飾品。

▲這可以說是一個新舊參半的家,為了保留一些過去的元素,設計師在拆除後的一堆廢棄磚塊中,拾出了許多可用的紅磚,建立外牆,而上層空間不論是造型還是材質,都十分的新穎,並且大量的開窗,讓室外與室內間的距離被無限縮小。

▲細長型的格局非常考驗設計師的功力,畢竟功能區的分布、採光都會受到很大的影響。

▲由於與並排的房屋幾乎是「無縫連接」,為了減少這種壓迫感,設計師決定犧牲部分室內區域,將過道區域向內凹陷,留出屋外一小片空地,種上一些植物,並以落地玻璃將美景與光線引入室內,這樣的交換你覺得值得嗎?

▲不止外建築是新舊參半,其實內部也是如此,因為屋主認為自己不會一直住在這裡,可能在不久他們就會搬至其他區域,而這裡也會成為一間民宿,租住給來邦迪海灘玩耍的客人,所以在設計風格上,屋主希望可以靈活一些,就像如今這個家裡一樣,有原始磚塊帶來的復古與質樸,也有綠植帶來的度假風,一切都是愜意悠然的。

▲一面鏽紅色的鋼板置物櫃又將這裡增添了硬朗的工業魅力,這與外牆的紅磚直接呼應。

▲如今室內有多處花園,這對於來度假的人來說,更大程度上的提升了居住的愜意感。

▲新空間非常注重室內的採光,不僅在多處定製了落地玻璃,就連廚房區的天花板也被「開了個洞」,不僅引入了更充沛的光線,曲線的造型也增加了室內的設計感。

▲廚房設計的清爽簡約,水泥地面與白色調降低了空間的彩度,大量的木料擁有舒緩的氛圍,用這樣的搭配呼應不遠處海灘的愜意無壓,是十分合適的。

▲並且室內可以直接通往這些院落,絕對有一種度假的愜意感。

▲這些廢棄的紅磚還鋪設了一個通往上層空間的樓梯。

▲上層空間以金屬板作為樓梯的護欄,水泥地面加上磚牆、天花板,視線內基本都是素雅冷硬的灰色調。

▲上層空間在建築的兩端分別規劃了一間臥室,一間為暖暖的橡皮橘色,另一間為清爽的藍色。

▲二層的洗浴室也以水泥作為主材料,採光來源於天花板上開設的洞孔,這樣新奇又有趣的洗浴室,你敢用嗎?

▲圖片分析

Leave a reply

Please enter your comment!
Please enter your name here

這個網站採用 Akismet 服務減少垃圾留言。進一步了解 Akismet 如何處理網站訪客的留言資料