多代同堂的傳統四合院是儒家思想在棲居空間上的詮釋,如恩設計從四合院汲取靈感,使這座新加坡私人住宅成為連接家庭成員之間的情感紐帶。在委託時,業主提出了一些構想:首先,原址重建的住宅空間能夠容納兄弟姐妹三人及各自組建的家庭;其次,能有一座花園,以紀念他們已故的母親;最後,保留舊建築中的斜屋頂設計,作為他們童年回憶的寄託。



舊建築帶有英國殖民時期獨棟平房的風格,融入了維多利亞風格的裝飾細部以及當地的傳統馬來建築元素,其遮風避雨的深屋簷依稀可辨。鑑於當地的自然氣候,斜屋頂滿足了建築的機能性,同時也是棲居者情感依戀的表達。如恩將斜屋頂的意象與四合院的建築形式融合,為傳統建築帶來新的詮釋與解讀。



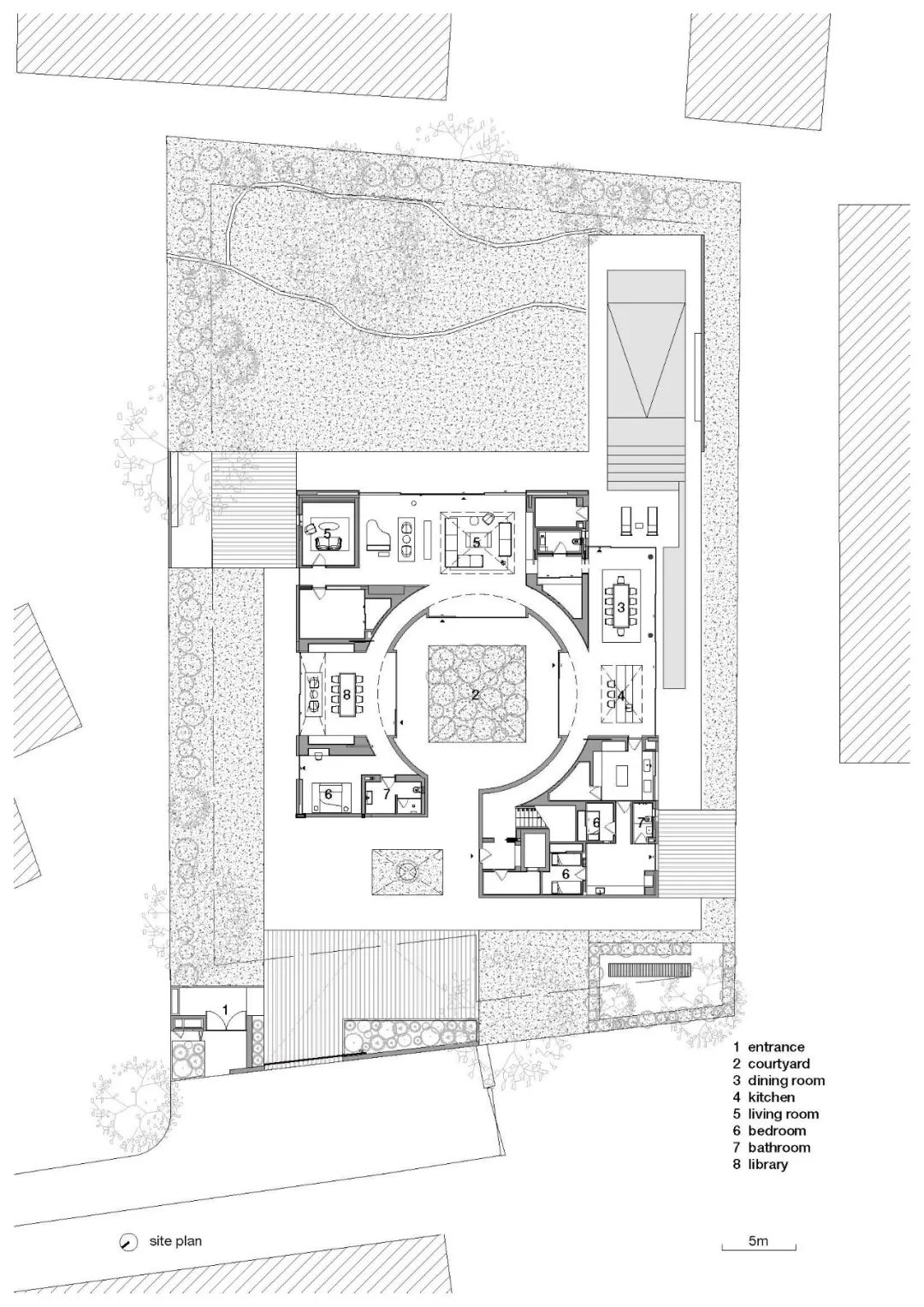
如恩設計團隊試圖採取空間形式的表達來探索共同居住和集體記憶的概念。原址鬱鬱蔥蔥的植栽沿著緣線形成自然綠化帶,此一景緻在設計中被保留了下來。新建的兩層住宅圍繞著中庭的紀念花園而展開,連接所有的公共空間。花園作為業主先母的紀念場所,佔據了露天庭院。



一樓的棲居空間與自然相互對話。通透的玻璃牆面使所有的空間與內外花園連接起來。如恩目的在於將公共區域的視覺通透性最大化,包括:客廳、開放式廚房、餐廳及書房。這樣,無論居住者立於何處,都能在茂密植栽的環繞下,望向中央的紀念花園。在溫度適宜時,居住者可移動打開大型玻璃門進行通風,亦可隨時通往花園。

如恩在二樓的設計上延用了斜屋頂,具有「庇護」意義的同時,或將公共與私人空間進行劃分,或模糊兩者的邊界。臥室均位於更為私密的二樓,隱秘於屋頂的山牆之下。從外部看去,整棟樓仍然像一座四面斜屋頂的獨棟平層。天窗、臥室與陽台間的大面積玻璃牆,將視野向外延伸,引入室外景觀。採取剖面的相互作用,三處雙層挑高空間連接了一樓的公共空間與二樓走道。這些空間相互滲透,使居住者得以在私人空間觀察公共區域,創造了垂直層面的視覺聯動。



步入紀念花園之前,屋頂上方的一處切空將一棵小樹輕輕框入。陽台與採光井從斜屋頂的立面中雕刻而出,光滑的屋頂外部過渡到內部木板紋理的混凝土。一樓的動線基於圍繞花園的環形空間,步行其中,沉靜而流動,賦予紀念空間神聖的冥思。圓,無邊無角,象徵著身心的本源回歸。紀念花園彷彿是「家」的心之所在,近在咫尺。那永遠無法觸及的回憶,成為集體生活記憶中不會褪去的底色。

建築圖







作品資訊
作品位置::新加坡
作品類型:私人住宅、住宅
竣工:2021年
總樓地板面積:1,185.20平方公尺
主持建築師:郭錫恩、胡如珊
主持資深協理:張堇盈
設計團隊:林世羅、林妤儒、詹志權、吳佳軒、辛海鷗、黃惠子
建築設計:如恩設計研究室
當地建築師事務所:K2LD
室內設計:如恩設計研究室
顧問
當地設計院:K2LD
結構工程:JS Tan諮詢有限公司
機電工程:Elead合夥有限公司
燈光:P5有限公司 & Light Basic工作室有限公司
景觀:Nyee Phoe花園有限公司
營造廠
施工總包:Space Scope有限公司
鋼結構:Luen Soon鋼鐵有限公司
門窗:Lital材料&工程有限公司
攝影師:Fabian Ong
