從商業空間到文化重地:西班牙建築大師巧思再現
西班牙巴斯克自治區的一座小城Torrelodones,曾有一棟由知名建築師Francisco Javier Sáenz de Oíza於1994年設計的建築,原本是一間兩層樓高的家具展示銷售中心。這位建築師以其前衛且富有想像力的設計聞名,曾獲得西班牙國家建築獎等多項殊榮。建築物的一隅還附設了一個獨立出入口的住宅區,地下室則規劃為工作坊、倉儲和機電設備空間。
這棟建築不僅展現了商業與生活空間的完美結合,更體現了巴斯克地區獨特的建築美學。巴斯克自治區位於西班牙北部,擁有悠久的歷史文化和獨特的語言,其建築風格常常融合傳統與現代元素,成為當地文化認同的重要象徵。

位於西班牙馬德里自治區的文化圖書館「Caja de Cultura de Torrelodones」,由西建築師Gabriel Gallegos Borges精心改造,建築的前身是一棟商業空間,由建築師Fco. Javier Sáenz de Oíza於1994年設計

市政願景:賦予舊建築嶄新生命力的文化轉型計畫
隨著時光流轉,這棟建築物的商業功能逐漸式微。有鑑於此,當地市政府看準了這座建築的潛力,決定將其購入,並著手進行一項宏大的改造計畫。這項計畫的核心理念,是將這座曾經繁華的商業空間,轉型為服務社區的文化設施。市政府的這一決策,不僅反映了對都市更新的重視,更展現了對文化發展的長遠規劃。在西班牙,許多城市都致力於將閒置或功能不彰的建築改造成文化空間,節省政府資源,還能為城市注入新的文化活力。這項舊建築改造計畫,正是這種都市再生趨勢的縮影,體現了西班牙政府對於文化建設和社區發展的重視。



建築外觀:簡約中見巧思,屋頂設計成為城市新地標
這棟獨立式建築的外觀設計簡潔大方,卻又不失特色。整體呈現一個緊湊的長方形量體,外牆以瓷磚鋪陳,營造出樸實無華的質感。然而,真正引人注目的是其獨特的屋頂設計——兩座截頂金字塔形的突棚,以黑色板岩覆蓋,頂端各自鑲嵌了一個天窗,提供自然採光的同時,更在視覺上成為了建築的焦點,為整體增添了幾分靈動與神秘感,巧妙的屋頂設計,成為定義建築外觀的關鍵元素,使其在周遭城市景觀中脫穎而出,成為一個獨特的視覺焦點。這種設計靈感可能來自於巴斯克地區傳統建築中常見的斜坡屋頂,但通過現代手法重新詮釋,展現了傳統與創新的完美融合。
建築獨樹一幟,外觀簡潔大方,主體為長方形的緊湊量體,外牆覆蓋著石材飾面。最引人注目的是屋頂上的兩個天窗:它們是截頂的石板金字塔,頂部裝有天窗,為室內引入自然光線。這種獨特的屋頂設計成為了建築的標誌,塑造了它在城市環境中的獨特形象
建築結構:方正中見變化,靈活配置呈現空間美學
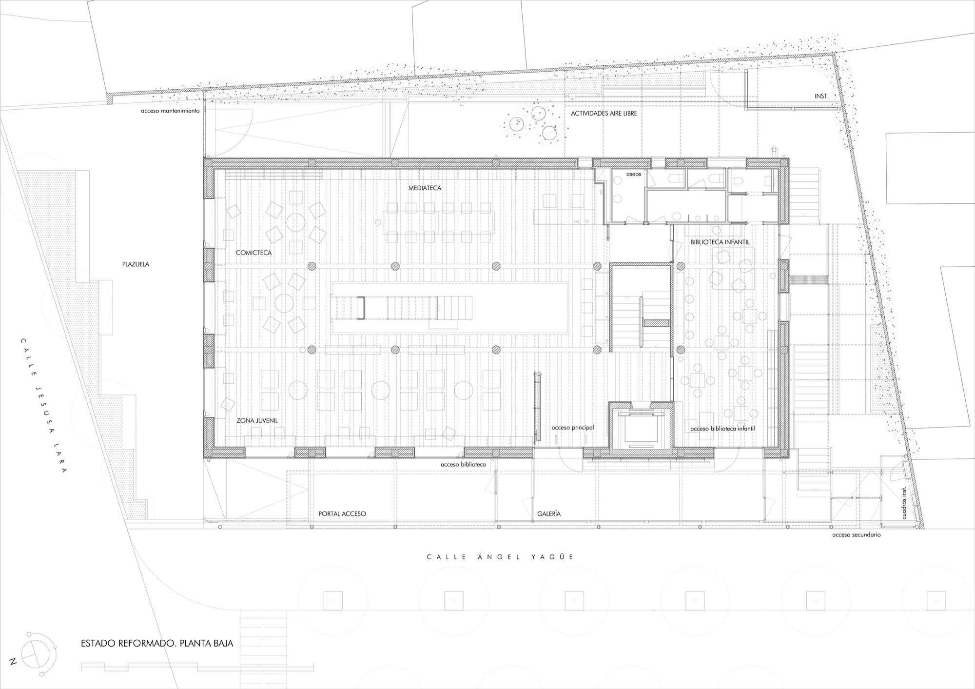
從俯視角度觀察,這棟建築的平面配置可以視為兩個正方形的疊加。這兩個正方形恰好構成了屋頂突棚的基底,由此延伸出建築內部的空間規劃。整體配置採用了三縱六橫的網格結構,在網格的交叉點上設置了垂直支撐結構。這種設計不僅確保了建築的穩固性,還為內部空間的靈活運用提供了可能。在下層,使用了鋼筋混凝土柱作為主要支撐;而在上層,則採用了更為輕盈的鋼管柱,這樣的設計既確保了結構強度,又減輕了建築的整體重量。在這些支撐結構之上,兩個屋頂突棚的金屬框架巍然聳立,不僅在功能上支撐了屋頂,還在視覺上營造出一種向上延伸的動感。這種結構設計不僅體現了建築師對空間的巧妙運用,也展現了西班牙現代建築中常見的幾何美學和結構美學的完美結合。





改造工程:保留原貌中求創新,打造多功能文化空間
此次舊建築改造工程的核心目標,是在保留建築原有特色的基礎上,創造出一個功能多樣、靈活可變的空間,以適應其作為文化設施的新角色。工程團隊面臨的挑戰不僅是如何改變空間用途,更是如何在改造過程中突顯建築原有的形式和結構特點。為此,他們進行了一系列的拆除、加固和新增結構工作。這種做法體現了現代建築改造中常見的「最小干預」原則,即在滿足新功能需求的同時,盡可能保留建築的原有特色和歷史痕跡。這不僅是對原建築的尊重,也是一種可持續發展的體現,透過改造而非重建,既節省了資源,又保留了城市的記憶。這種改造理念在歐洲許多歷史城市中廣受推崇,被視為平衡發展需求和歷史保護的有效途徑。



改造成果:空間重塑煥發新生,融入社區展現活力
改造工程的具體措施包括拆除原有的隔間牆,特別是移除了遮蔽屋頂結構的住宅天花板,這一舉措大大提升了室內空間的通透性和視覺衝擊力。為了改善原本較為昏暗的室內光線條件,設計團隊在朝向內院的縱向外牆上開設了新的窗戶,這不僅增加了自然採光,還為圖書館的閱讀區域創造了舒適的光線環境。



在屋頂天窗處,安裝了電動窗戶系統,方便調節頂層空間的通風。空調系統則巧妙地隱藏在建築物的周邊,管道被精心設計的牆板和書架所掩蓋,既確保了功能性,又維持了空間的整潔美觀。一道新增的鋼木結構樓梯,不僅連接了上下兩層,其線性設計更創造出一種開放、儀式感的上升體驗,讓使用者在攀登過程中逐漸領略室內空間的宏偉。
此外,利用原有的庭院結構,設計團隼建造了一道玻璃走廊,既作為圖書館的入口門廳,又巧妙地調和了室內外空間。戶外空間也得到了精心改造,增設了一個供兒童戶外活動使用的遮陽棚區域,直接與兒童圖書館相連。這些改造不僅提升了建築的功能性,更為社區注入了新的文化活力,成為連接過去與未來的重要紐帶。




建築圖











作品資訊
作品名稱:Municipal Library Caja de Cultura in Torrelodones
作品位置:西班牙馬德里 C. Jesusa Lara, 47, 28250 Torrelodones, Madrid
作品類型:舊建築改造、公共建築、圖書館、文化設施
業主:Torrelodones 市政府
設計單位:Gabriel Gallegos Borges
總樓地板面積:10850平方英尺
竣工:2023年
攝影:Gabriel Gallegos Alonso
主持建築師:Gabriel Gallegos Borges
專案團隊:Gabriel Gallegos Alonso (協同建築師), Raúl López Grañeda (施工管理), José Miguel Cámara (設備專案), Felix Camazón Carvajal (結構計算), Francisco Saro González (市政監督技術員)