狹小基地翻轉術:段庭之家設計緣起
原田將史與谷口真依子領軍的Niji Architects,在東京設計的「段庭之家」,座落於寸土寸金的狹小旗竿地。此類基地因臨路面狹窄,後方腹地較寬,形狀如同旗桿與旗面而得名,在都市中相當常見。面對此類基地先天的限制,設計團隊並未選擇將建築內縮,反而思考如何最大限度地利用基地,創造出更寬敞舒適的生活空間。
他們期望打造一棟即使在擁擠的都市環境中,也能隨時沐浴在陽光下的住宅,這也成為了「段庭之家」的設計起點,這座私人住宅的設計不僅挑戰了狹小基地的可能性,更為都市住宅類型帶來不同的思考方式。





階梯式露台的空間魔法:創造無限延伸的室內外體驗
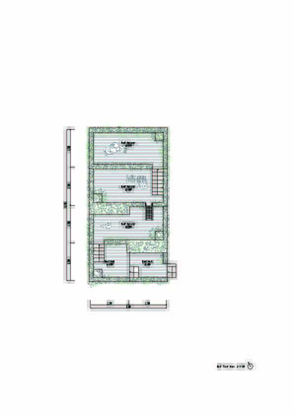
為了讓住戶能充分享受陽光,設計團隊採用了階梯狀的建築體量,並將所有階梯都設計成露台,形成獨特的「段庭」。這些露台如同小丘般,隨著高度變化,從地面一路延伸至屋頂,將建築與庭園巧妙地結合在一起。室內空間則採用了呼應外部露台的跳層式設計,使內外空間緊密相連。陽光穿過各樓層的縫隙灑落,照亮室內的每個角落。從入口開始,一路延伸的木製露台,成為室內空間的延伸,創造出遠超實際坪數的寬敞感受。露台與室內地板的高度幾乎相同,模糊了室內外的界線,讓整個基地都成為了既是庭園又是住宅的獨特空間,有效利用有限空間,創造出豐富的空間層次與變化,為住戶帶來獨特居住體驗。




回應時代需求的居住空間:職住育合一的彈性設計
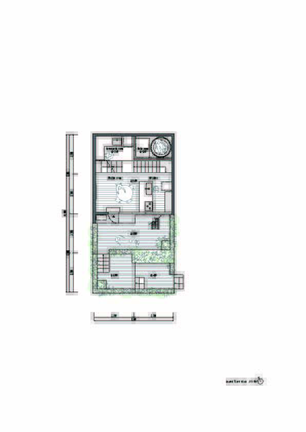
隨著疫情的來臨,居家辦公與育兒的需求日益增加。「段庭之家」的設計也充分考量到這些因素,期望創造一個職、住、育距離更近的生活環境。室內空間以開放式格局為主,僅以地板的高低差來區隔不同的功能區域,並利用一道連續的手扶梯串聯各樓層,使空間更具穿透性。

由於設計團隊對於細節非常講究,廚房設備選用了サンワカンパニー的產品,使「段庭之家」成為舒適的居住空間,更回應了現代社會對於彈性生活空間的需求;與時俱進的建築設計手法,回應了社會變遷與人們的生活型態轉變。













建築圖




XXX
作品資訊
作品名稱:Step Garden House
作品位置:日本
作品類型:住宅、私人住宅、花園設計
設計單位:Niji Architects
總樓地板面積:73 平方米
竣工:2022年
攝影:Kazuhisa Ishikawa, Niji Photo
主持建築師:Masafumi Harada, Maiko Taniguchi