漢南洞裡的菲斯古城與微型都市實驗
在首爾(Seoul)漢南洞(Hannam-dong)這片貧富交織、地勢起伏的獨特街區中,FEZH 宛如一個有機生長的生命體,靜謐地嵌入都市紋理之中。韓國建築師事務所 Itm Yooehwa Architects 的主持建築師並未選擇張揚的現代語彙,而是將目光投向遙遠的北非,從摩洛哥的菲斯古城(Fes El Bali)汲取靈感。
菲斯古城那種由無數蜂巢般住宅堆疊而成的有機迷宮,轉化為FEZH的核心概念——一個「最小都市單元」。漢南洞本身即是首爾著名的富人區與常民巷弄混雜之地,具有獨特的歷史厚度,設計團隊敏銳地捕捉到這股氛圍,試圖在有限的基地內,濃縮城市的機能與巷弄的趣味。建築回應了現代人對於「療癒」與「連結」的渴望,將名稱所蘊含的「Fez(菲斯)」、「Healing(療癒)」與「Hannam-dong(漢南洞)」三者緊密交織,企圖在混凝土叢林中開闢出一方得以喘息的文化綠洲。



垂直虛空間作為都市呼吸的氣孔與光井
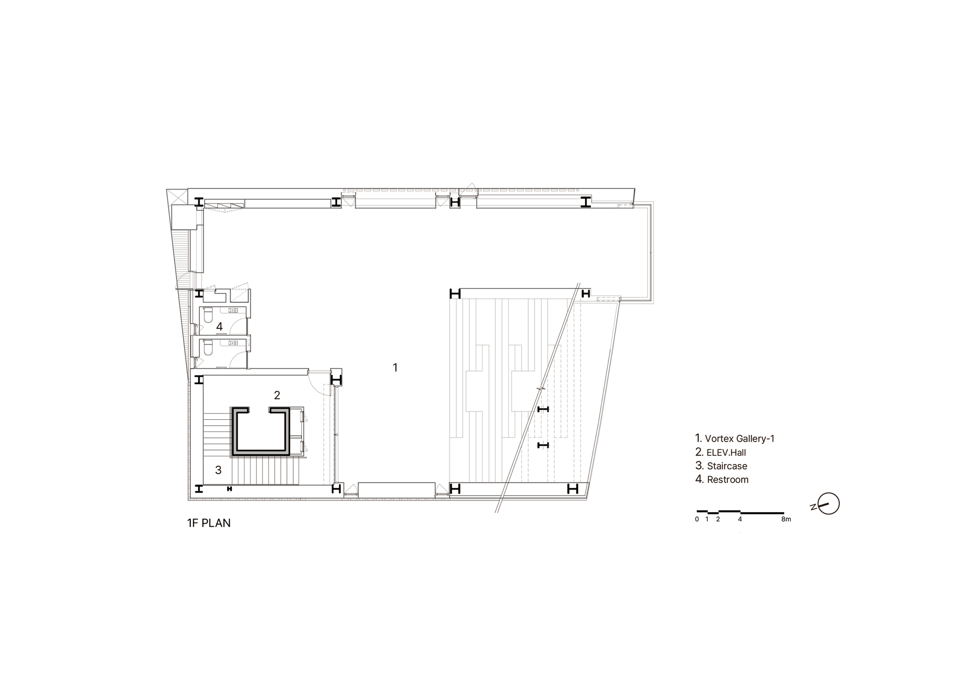
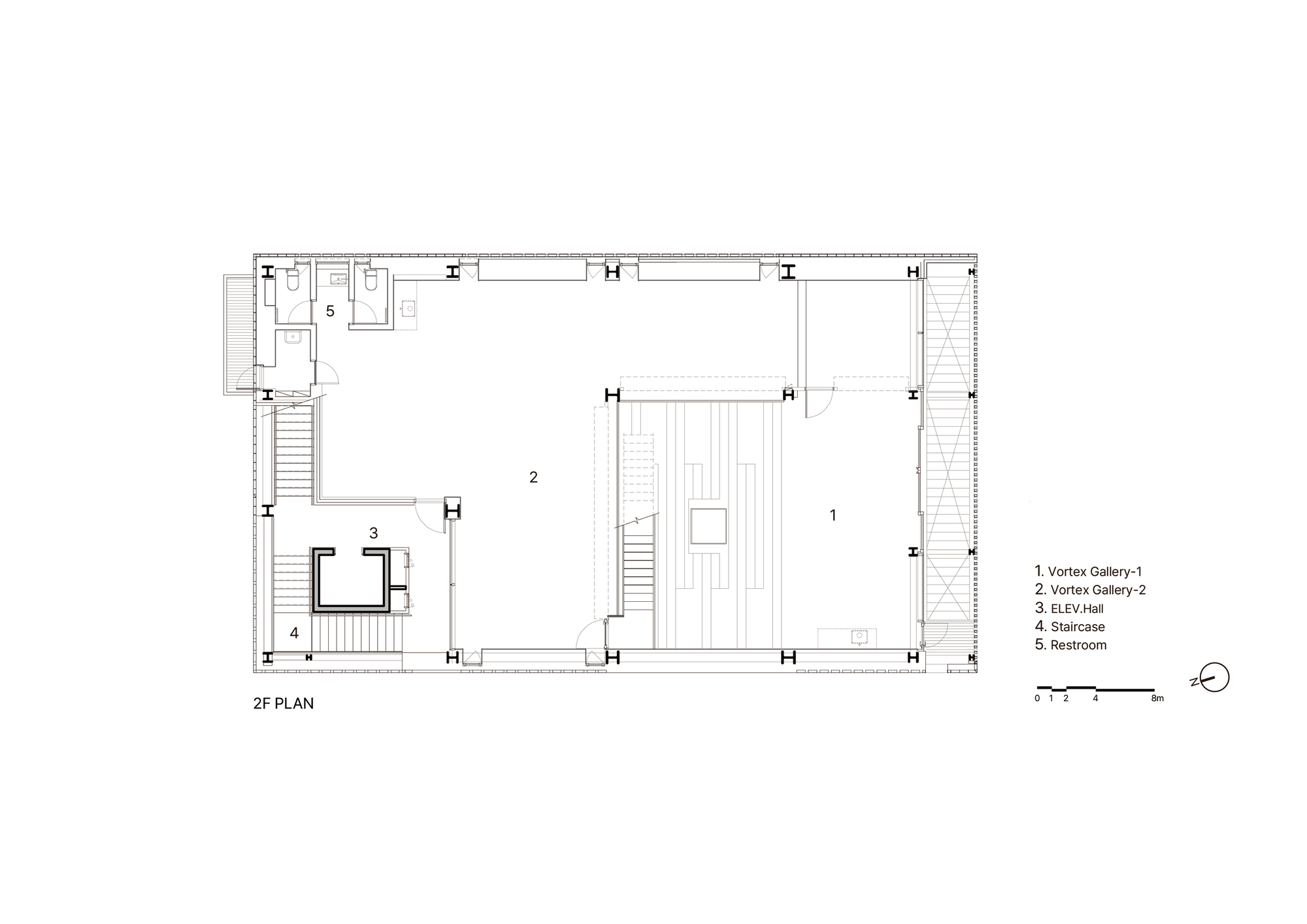
深入剖析這座建築的骨架,位於核心的垂直中庭無疑是整體的靈魂所在。這個貫穿地下至地面的虛空間,並非浪費樓地板面積的奢侈舉動,而是經過精算環境物理後的必然選擇。它像是一個巨大的都市氣孔,將漢南洞的微風與陽光引入建築深處,打破了傳統建築室內外的僵固界線。這種設計手法不禁讓人聯想到歐洲古城中的市集廣場,是人們駐足、交流與發生偶遇的場所。在這個垂直的通透空間裡,光影隨著時間推移而流轉,為空間抹上一層時間的濾鏡。它不僅解決了狹長基地常見的採光通風問題,更在心理層面上提供了一種「留白」的智慧。訪客在此可以暫時抽離繁忙的日常,感受光線在牆面上的游走,這種空間體驗將建築提升至精神層次,使其成為一座名副其實的都市聖所,讓人在喧囂中覓得片刻寧靜。



漫遊者的敘事詩與村上春樹的感官互文
在動線規劃上,FEZH拒絕了效率至上的直線邏輯,轉而擁抱一種「漫遊」(Wandering)的詩意。水平與垂直交錯的通道設計,刻意營造出迷宮般的探索樂趣,彷彿重現了在舊城區巷弄間迷路的驚喜。
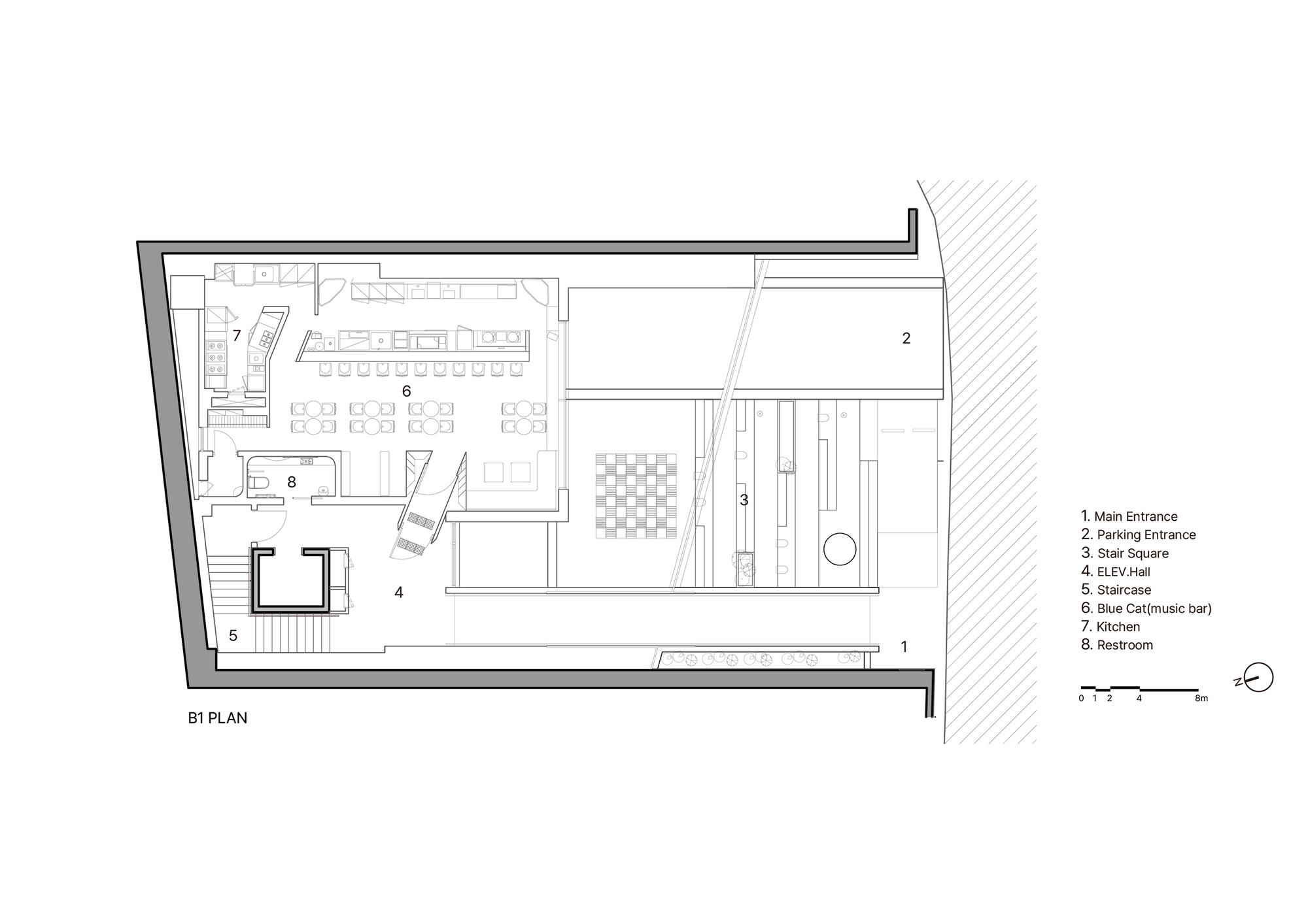
位於建築內的D-SQUARE 順應著街道紋理與上方中庭,成為居民與訪客共享的公共廣塲,舉辦各類音樂會與市集活動,強化了建築的公共性。而鄰近的BLUE CAT 則是一處充滿文學氣息的所在,其命名與氛圍明顯向日本作家村上春樹致敬。
這裡流淌著精心挑選的音樂與文學對話,每週的展演活動更添增了空間的流動性。這種將文學隱喻轉化為實體空間的手法,讓建築不再只是冰冷的容器,而是充滿故事與情感的載體。訪客在樓層間穿梭,就像是閱讀一本結構精巧的小說,每一個轉角都埋藏著未知的伏筆,等待著被發掘與解讀。



向上攀登的生態地景與身心靈的沈浸洗禮
隨著動線向上攀升,建築的功能逐漸從公共轉向私密,從喧鬧轉向靜謐。Vortex Gallery(Vortex Gallery)利用層疊的動線與過濾後的光線,創造出適合快閃店與文化展演的變幻場域,強化了作為都市文化平台的角色。
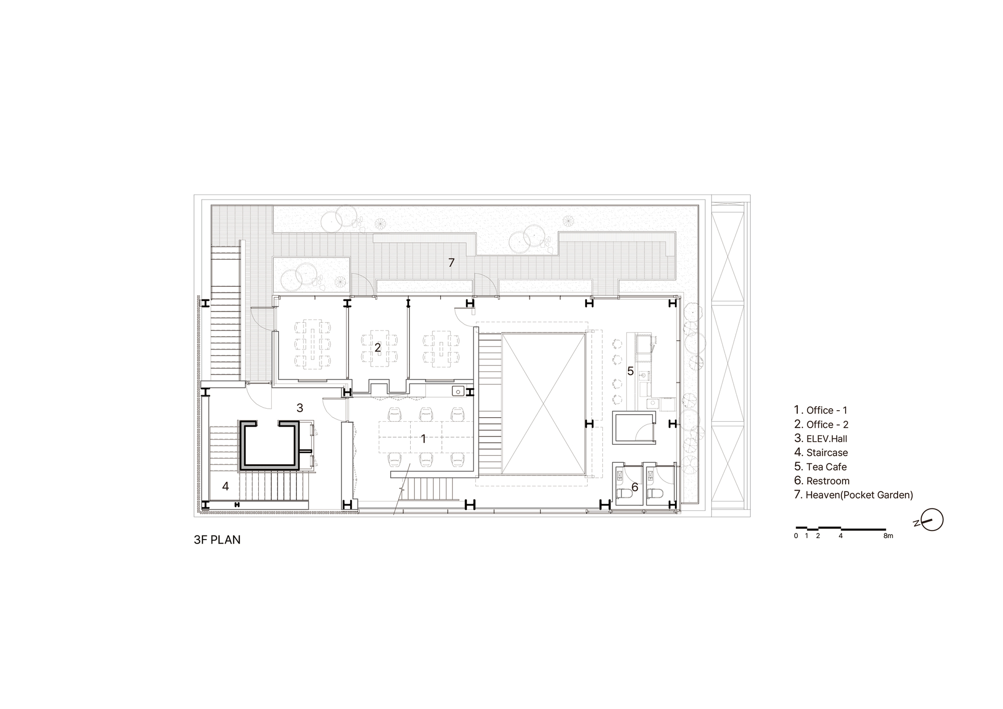
再往上,Pocket Garden Heaven 與茶室在水泥叢林中構築了一座小型的生態公園,提供瑜伽、品茗與靜修的空間。而旅程的終點Casa del Agua,則運用水、檜木與沈浸式視聽系統,打造出一處修復身心的內在景觀。
呼應了當代社會對於心理健康的重視,將自然元素引入室內,讓人們在繁忙的都市生活中,能夠透過五感的沈浸,重新找回內心的平靜。這種將生態綠意與心靈療癒垂直整合的策略,回應了高密度城市中人們對於自然的渴望,也指出了一種未來建築可能的發展方向——即建築必須成為滋養生命的能量場。




燒杉與紅磚構築的溫潤與未來願景
在材質的語彙上,建築師選擇了極具手感與時間感的材料,以回應漢南洞的歷史記憶。磚塊與經過碳化處理的燒杉,構成了溫暖且觸感豐富的立面表情。源自日本的傳統燒杉技法,不僅具有防腐防蟲的機能,其表面的龜裂紋理更隱喻著時間的流逝與物質的轉化。
材料沈穩的色調與質感,讓FEZH在周遭的新舊建築群中顯得既協調又獨樹一格,在自然與人工、歷史與現代之間搭起橋樑。建築被視為一個有機體,它不只是靜態的物件,而是隨著人們的使用與文化的注入而不斷演化的生命。它試圖培育人際關係、激發創造力,並將新的靈感散播至整個街區。
FEZH提出了一種基於親密感、探索與連結的都市主義願景,向我們證明了未來的城市發展,不應只是追求摩天大樓的高度,更應回歸到人本尺度的關懷與文化厚度的累積。


建築圖














作品資訊
作品名稱: FEZH
作品位置: 韓國首爾 Seoul, South Korea
作品類型: 商業建築、複合設施、韓國、韓國建築、韓國建築師
設計單位: Itm Yooehwa Architects
總樓地板面積: 1196 平方米
竣工: 2024年
攝影: Jeon Hyowon, Yongkwan Kim
主持建築師: Ehwa Yoo
專案經理: Hansung Kim
主持設計師: Toshiharu Tanaka
主持設計師(室內): Heeyoung Choi
室內設計: Sunmi Lee
營造廠: THE FRAME Construction, Inox
結構工程師: Jin Structure Engineers
機械工程師: SEOWON Energy & Environment CO., LTD.
電氣工程師: HANKOOK TEC
土木工程師: Yujin ENG
景觀設計: The Garden
燈光設計: Bitzro&partners
聲學顧問: Archisound