農場住宅社區的基地脈絡:私密聚落中的家族領地
巴西內陸的封閉式農場住宅社區(condomínio de chácaras)是聖保羅州近郊特有的居住型態,結合了大尺度地塊、農業景觀氛圍與封閉式管理的安全感,吸引追求距都市保有距離卻不願完全離開大城市生活圈的中產與高收入家庭。
Fazenda da Grama 住宅社區位於伊圖佩瓦(Itupeva),距離聖保羅市約80公里,周遭以緩坡草地、果樹與熱帶植被為主要地景,氣候濕熱,日照充足,對建築設計的遮陽、通風與戶外生活整合提出了明確的氣候要求。GLG 住宅在如此尺度的基地條件下,讓Ximenes Leite Arquitetura 有機會以完整的設計主控權,從建築量體到室內細節、從泳池位置到動線節奏,整合為一份不分割、不妥協的設計論述。



兩個疊合量體,一套清晰的生活分層邏輯
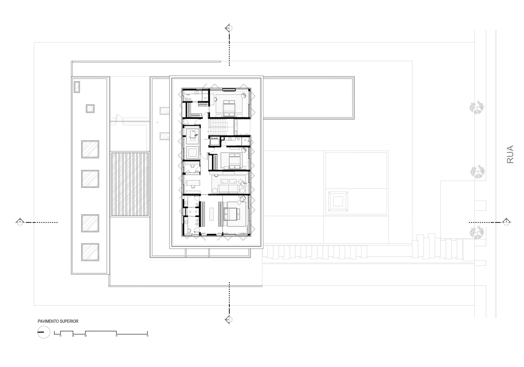
GLG 住宅的設計出發點極為清晰:以量體的疊合關係直接回應生活機能的私密程度差異。地面層量體以水平延展為主導姿態,立面向花園與戶外大幅開放,社交廳、餐廳與休閒空間在其中自然流動,室內外的邊界在大尺寸開口與外廊的介入下趨於模糊,讓巴西熱帶氣候中戶外生活的強烈傳統在建築語言上獲得充分的支持。
上層量體則採取截然不同的策略:收斂、內向,以克制的開口與連續鋁製百葉形成對戶外視線的選擇性過濾,讓臥室等私密空間在享有充分採光與通風的同時,維持對社區環境的必要屏蔽。兩個量體疊合而非合并,讓居住者在同一棟建築中體驗兩種完全不同的空間性格,下層的開放歡迎與上層的靜謐收斂,在垂直方向上形成一次有說服力的生活節奏切換。



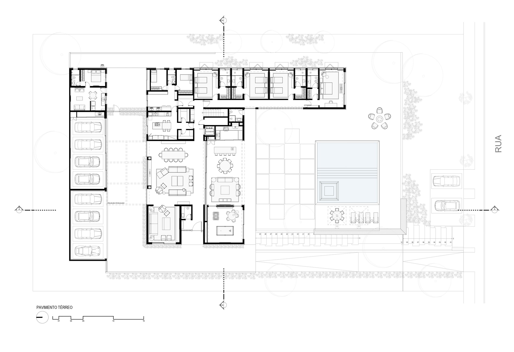
L形平面:動線的曲折製造空間的驚喜
地面層的L形平面不只是一個幾何選擇,而是一個關於如何在同一樓層中製造功能分離而不訴諸實體隔間的空間操作。L形的一翼平行於地塊的長邊方向,容納地面層臥室群,以安靜、內斂的配置服務需要在日間休憩的使用需求;另一翼轉向休閒方位,讓客廳、餐廳與泳池區的動線序列在一個朝向花園全面開放的空間框架中展開。
兩翼之間的轉折點,在動線體驗上形成一個輕微的方向改變,讓路過的人在轉角處短暫體驗一個視野的重新構圖,這種「空間發現」的設計意圖被建築師稱為賦予住宅更具遊趣性格的手法,在國際住宅設計實踐中亦有廣泛的應用,日本建築師西澤立衛(Ryue Nishizawa)在其多個私人住宅作品中便長期探索以空間轉折製造序列驚喜的路徑策略。



清水磚的情感重量:一種材料如何承載一份個人記憶
地面層量體的材料選擇,源於業主對清水磚的情感連結。建築師選擇讓這份私人記憶成為整棟住宅最關鍵的材料決定,以裸露磚面作為地面層外牆的主要語彙,搭配大地色調的天然紋理材料,讓整個底部量體在視覺上呈現一種從土地中生長出來的厚重質感。
清水磚在巴西建築史上有深厚的根基,從奧斯卡・尼邁耶(Oscar Niemeyer)同時代的建築師約翰・維拉諾瓦・阿提加斯(João Vilanova Artigas)到當代聖保羅建築師事務所的多個住宅案例,清水磚作為一種帶有手工性、在地性與時間感的材料,在巴西中產住宅中持續被引用,既因為價格相對可及,更因為材料本身在熱帶陽光下呈現的溫潤色澤難以被任何人工材料完整複製。GLG 住宅讓材料的選擇從純粹的美學判斷擴展至情感層次,是此案最打動人的設計細節之一。



鋁製百葉的韻律:上層量體的光影控制邏輯
上層量體以連續鋁製百葉作為立面的主要表情,與地面層清水磚的厚重感形成鮮明對比。百葉的功能是三合一的:提供可調節的遮陽保護,在聖保羅州內陸強烈的日射條件下降低室內熱負荷;讓自然風在不完全開放立面的條件下穿越臥室,維持被動通風的舒適效能;同時作為視覺屏障,讓上層居住者在欣賞外部景觀時保持對社區的適當隱私距離。
鋁百葉在巴西熱帶住宅中的應用極為普遍,在材料輕盈性、加工精度與耐候性三者之間取得成熟的平衡。Ximenes Leite Arquitetura 在此案中讓百葉以均等節奏排列,使上層量體在視覺上呈現一種帶有韻律感的輕盈表情,與下層磚面的靜態厚重形成兼具重量感與靈動性的立面對話。




天然石材泳池:水平地景的最後一道強調
泳池的設計選擇,清楚說明了 GLG 住宅整體設計態度的優先順序。設計師以天然石材作為泳池的周邊鋪面與池緣收邊,讓水面在日光下呈現與周邊地景色調一致的沉靜色系,避免強烈的人工藍色水面在視覺上喧奪建築的主導地位。
游泳池位置的配置強化了整個住宅地面層的水平延伸感,讓游泳區與外部休憩區域共同構成建築向戶外地景延伸的最後一段,在大地色調的統一色彩邏輯之下,天然石材、清水磚與草地之間的過渡顯得自然而連貫,讓整個戶外場域在不依賴強烈視覺對比的前提下,傳遞出一種低調而持續的休憩氛圍。


建築圖






作品資訊
作品名稱:GLG Residence
作品位置:巴西 Itupeva, Brazil
作品類型:住宅建築、住宅、私人住宅、巴西、巴西建築、巴西建築師
設計單位:Ximenes Leite Arquitetura
總樓地板面積:1350 平方米
竣工:2024年
攝影:Felipe Catellari
主持建築師:Bruna Ximenes, André Leite
專案協調:Lucas Salina
專案團隊:Bianca Rodrigues, Beatriz Rodrigues, Bruno Camargo, Jéssica Oliveira, Alan Cordeiro, Pedro Arakaki, Ariel Steidle
營造廠:Fairbanks & Pilnik Construções Especializadas Ltda