游泳歌劇院的華麗回歸:漢堡地標的永續新生
德國建築師事務所 GMP Architekten 操刀修建及增建工程,為漢堡的阿爾斯特游泳館(Alsterschwimmhalle)注入新生命。這座游泳館最引人注目的,莫過於獨特的雙曲拋物面混凝土屋頂。這項改造工程不僅讓這座建築在因疫情關閉後重新開放,更使其轉型為一座具備三溫暖和健身俱樂部的多功能休閒中心,再次成為漢堡市民重要的生活場域。雙曲拋物面是一種在建築中常見的結構形式,美妙的幾何形狀使其具有良好的結構穩定性和視覺效果,像是建築大師丹下健三設計的東京聖馬利亞天主堂就是採用雙曲面拋物線構成。

新舊交織的空間變革:阿爾斯特游泳館的整建工程
從2020年至2023年,阿爾斯特游泳館進行了全面的整修、改建與擴建工程。這項工程的重點在於保存其壯觀的薄殼屋頂、擁有五十公尺長標準泳池的巨大內部空間,以及大片的玻璃帷幕外牆。在保存這些重要元素的同時,運動設施也進行了首次的整體重新設計,並增加了符合當代需求的設施。為了在不更動這座建築於1970年代所展現的前瞻性設計語彙的前提下,幾乎所有屋頂下的設施都必須進行調整與更動。在既有的基礎上開創新局,既要尊重歷史,也要展望未來,為這座城市地標注入新的活力。

泳池旁的嶄新天地:阿爾斯特游泳館的設施升級與空間擴展
原有的阿爾斯特游泳館,除了主要的五十公尺長游泳池、十公尺高的跳水台之外,還有一個使用率不高的看台。在這次的改造計畫中,工程團隊果斷地拆除了這個老舊看台,並在原址興建了一座全新的獨立跳水池,提供更專業、更安全的跳水環境。此外,位於建築北側的附屬建築也進行了拆除重建,取而代之的是一座一層樓及兩層樓的新建築。
這座新建築不僅擴增了游泳館的整體空間,更容納了一個全新的二十五公尺長游泳池、一座訓練池、更完善的更衣室,以及現代化的健身和三溫暖區域。透過這些增建工程,阿爾斯特游泳館的總水域面積增加了約四分之一,而整棟建築的內部空間則有超過一半的面積是全新打造的。這些嶄新的設施,不僅提升了游泳館的服務品質,也為市民提供了更多元的休閒選擇。

承先啟後的設計理念:保存與創新的精妙平衡
GMP建築師事務所在此次的改造工程中,秉持著「保存既有特色」的核心理念,特別著重於維護這座被列為文化遺產的屋頂。這個由兩座高聳的雙曲拋物面結構組成的屋頂,是以預力混凝土打造而成,獨特的外觀讓當地居民將其暱稱為「游泳歌劇院」(Schwimmoper),覺得流線造型與約恩·烏松(Jørn Utzon)設計的雪梨歌劇院有異曲同工之妙。GMP 的細部設計負責人約恩·奧特曼(Jörn Ortmann)表示:「在擬定整建計畫時,重點在於保存這個引人注目、定義城市天際線的屋頂及其令人印象深刻的殼狀設計。


時代的建築印記:戰後現代主義的典範
阿爾斯特游泳館由德國建築師霍斯特·尼森(Horst Niessen)、羅爾夫·施托默(Rolf Störmer)和瓦爾特·諾伊豪瑟(Walter Neuhäusser),以及工程師約爾格·施萊希(Jörg Schlaich)共同設計,最初是作為競賽用游泳池,於1968年至1974年間建造完成。GMP 將其譽為「漢堡戰後建築的傑出典範」,屋頂也被德國歷史古蹟保護辦公室列為保護建築。然而,由於設施日益老舊加上新冠疫情,導致這座運動設施在2020年關閉,因此亟需進行一次全面的翻新工程。
事實上,除了阿爾斯特游泳館,德國還有許多戰後現代主義建築的例子,例如柏林的奧林匹克體育場和斯圖加特的電視塔,這些建築都展現了當時的建築思潮和技術水平。



歷史的回顧:1961年的競圖始末
雙曲面薄殼屋頂結構在1960年代和1970年代蔚為風潮。當時,無論是西德或東德的建築師事務所和工程顧問公司,都競相以越來越大膽、跨距更廣、更節省建材的結構設計來展現自身的實力。1961年,漢堡水務局發起了「六道閘門室內游泳池公共建築競圖」(öffentlichen Bauwettbewerb Hallenbad Sechslingspforte)。
建築師揚·施托默(Jan Störmer)與福克溫·瑪格(Volkwin Marg)於2021年8月,一同回顧了當年阿爾斯特游泳館的競圖過程。當時,揚·施托默的父親羅爾夫·施托默(Rolf Störmer)以及當時仍是學生的梅因哈德·馮·格康(Meinhard von Gerkan)和福克溫·瑪格都各自提交了設計方案。最後,馮·格康和瑪格的設計方案進入了決選。為了打造阿爾斯特游泳館的設計,業主集結了一個優秀的團隊:在競圖中分別以沒有薄殼屋頂的設計方案拿下前兩名的建築師霍斯特·尼森和羅爾夫·施托默,與薄殼結構專家瓦爾特·諾伊豪瑟組成了一個工作團隊。他們與知名的工程師弗里茨·萊昂哈特(Fritz Leonhardt)和沃爾夫哈特·安德烈(Wolfhardt Andrä)共同合作,設計了當時所期望的薄殼屋頂。而當時仍在他們的事務所工作的年輕工程師約爾格·施萊希(後來成立了sbp工程顧問公司),則主導了結構設計的細部規劃。這段歷史不僅展現了阿爾斯特游泳館的誕生過程,更見證了當時建築界對於結構工程與建築美學的熱情與追求。


細節中的匠心:阿爾斯特游泳館的建材選擇與技術應用
為了保存原有的鋁製桁架支撐的玻璃外牆,工程團隊並未使用一般常見的三層玻璃,因為這對原有的支撐結構來說負擔過重,而是選用了雙層玻璃來打造新的玻璃外牆。此外,GMP建築師事務所、sbp工程顧問公司以及Implenia Fassadentechnik公司共同開發了一種獲得認可的新型伸縮活塞支撐,作為外牆與屋頂之間的可動連接點,以吸收屋頂表面的震動。這些細節的處理,不僅展現了工程團隊的專業素養,更體現了他們對於建築的用心與堅持。正如sbp工程顧問公司的合夥人斯文·普利寧格所言:「維護並保存這些建築物,使其能夠在未來繼續使用,是極為重要的永續作為,並且有助於建立一個充滿活力的建築文化。」
技術層面的精進:阿爾斯特游泳館的機電設備更新
在阿爾斯特游泳館的地下室,設置了整套水處理系統,包括溢流儲水槽、過濾槽、幫浦、管線以及熱交換器,負責供應總共六個游泳池的用水需求。在跳水池的下方,則是負責供應整座游泳館的飲用水加熱系統。此外,這座游泳館總共安裝了十四套通風設備。光是運動游泳池,就由四台各具備每小時三萬立方公尺風量的設備來供應。這些通風設備約有六公尺高,必須拆解成數個部分,再透過北側的進料口個別運入建築物內。在地下室裡,工作人員則使用堆高機將這些組件運送到指定的位置進行組裝。
節能永續的實踐:阿爾斯特游泳館的能源效率提升
整座阿爾斯特游泳館是透過漢堡市的區域供熱網絡來供暖,而這個網絡的供熱來源中,化石燃料所佔的比例相當低。所有的技術驅動裝置都配備了變頻器,可以根據實際需求進行調節,盡可能地減少電力消耗。此外,所有的通風設備都具備高效率的熱回收功能,效率超過百分之八十。健身房冷卻時產生的廢熱,也會被用來加熱游泳館。就連不再使用的池水,也會先進行除熱處理,然後再經過適當的處理,排放到雨水下水道。除了通風設備之外,各個游泳池的水處理也需要消耗大量的能源。因此,這裡採用了省水型的低壓過濾系統。這種系統不僅具備較高的處理效率,也能夠透過多層過濾,在衛生方面提供更多的保障。

疫後重整旗鼓:阿爾斯特游泳館面臨的營運挑戰與升級契機
約恩·奧特曼(Jörn Ortmann)說明,「阿爾斯特游泳館的營運直至2020年,關閉僅是因應當時為對抗新冠病毒疫情所採取的措施之一」。這座泳池曾是市民重要的休閒場所,卻不敵突如其來的疫情衝擊,暫時畫下休止符。
然而,疫情的影響不只於此,更凸顯了這座建築長期以來潛藏的營運困境。他接著指出:「在前些年,這棟建築的維護成本,連同其過時的技術設施的維護費用,已顯著增加。」歲月流逝,建築物的老化是難以避免的自然規律,猶如「歲月不饒人」,阿爾斯特游泳館也面臨相同的問題。結構上的損壞,加上不合時宜的技術系統,種種因素都迫使當局必須進行一次大規模的整修。不僅為了確保建築物的安全性,更為了提升使用效能,使其能繼續在現代社會中扮演重要的角色。
此外,原先有限的運動設施種類,也對營運的商業效益產生了負面影響,而且建築物內部沒有足夠的空間可以進行擴建。設施的不足,猶如「捉襟見肘」,難以滿足日益多元的民眾需求,這也是推動這次改造計畫的重要原因之一。這次的整修,不僅要解決既有的問題,更要為阿爾斯特游泳館的未來發展奠定更堅實的基礎。

混凝土巨構的結構奧秘:屋頂修復的艱鉅任務
阿爾斯特游泳館的屋頂結構僅有八公分厚,最高點達到二十四公尺。覆蓋了四千五百平方公尺的樓地板面積,跨度長達九十六公尺,設計團隊表示,這使其成為「世界上同類建築中最大的屋頂之一」。屋頂由三根支撐柱支撐,其中兩根透過主泳池下方的拉桿連接。在不破壞這些支撐結構的情況下修復建築,對建築事務所來說是一項巨大的挑戰,這項工程可說是牽一髮而動全身,必須小心翼翼,才能確保建築結構的完整性。
結構安全的嚴峻考驗:阿爾斯特游泳館的施工難題與解決方案
在結構安全方面,這次工程面臨的最大挑戰,是如何在拆除並重建部分舊游泳池的同時,不對現有的屋頂造成任何更動或過度的震動。其中一項重要的限制,就是絕對不能碰觸到位於地基之間的拉桿,並且在整個施工過程中,都必須持續監測這根拉桿的狀況。一旦拉桿出現過大的震動,就會立即發出警報,並且必須立即疏散施工現場,如同過去疏散游泳池一樣。在拆除工程進行期間,有時一天之內就發生好幾次這樣的狀況。為了確保屋頂的長久保存,工程團隊與文物保護單位密切合作,共同決定了新的屋頂隔熱方式,並且安裝了一套陰極防蝕系統(Kathodisches-Korrosionsschutz-System (KKS)),利用微弱電流來保護屋頂,避免受到游泳池內上升的氯氣、高濕度以及高溫所造成的腐蝕損害。


新舊交融的空間體驗:現代機能與歷史記憶的交織
關於結構安全的最大挑戰在於,必須在不修改現有屋頂或在施工期間不干擾屋頂的情況下,拆除部分舊泳池並重建。這意味著基座之間的拉桿不能觸碰,並且在施工期間必須持續監測。屋頂已透過新的薄膜和隔熱材料進行修復,這些材料是為了承受上升的氯氣、高濕度和高溫造成的損壞。
作為工程的一部分,主要玻璃外牆和各種裸露的混凝土表面都恢復了原貌,而體育設施本身則進行了更廣泛的重新設計。五十公尺長的游泳池及其十公尺高的跳水板大致保持不變,但其看台座位已被單獨的跳水池取代。所有公共空間都經過重新設計,以最大限度地提高無障礙性,同時更新了建築設備,以提高效率和環境績效。
建築體北側的增建空間設置了另一個二十五公尺長的游泳池,以及一個訓練池、更衣室、三溫暖和健身設施。增建的目標是確保它與現有建築群融為一體,而不是模仿它。





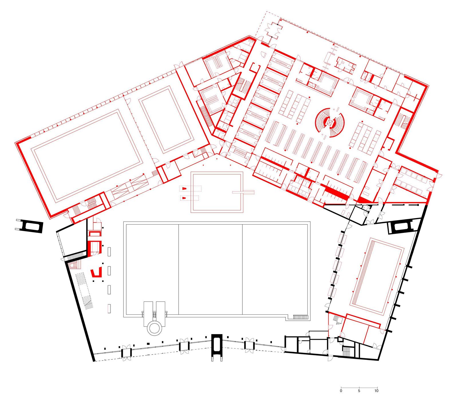
建築圖



作品資訊
作品名稱:阿爾斯特游泳館(Alsterschwimmhalle、Alster-Schwimmhalle)
作品位置:德國 漢堡 Sechslingspforte 15, 22087 Hamburg
作品類型:游泳池、公共建築、運動設施、休閒設施、現代主義建築、德國建築、德國建築師
業主:漢堡浴場有限公司(Bauherrschaft Bäderland Hamburg GmbH)
原始設計單位:霍斯特·尼森(Horst Niessen)、羅爾夫·施托默(Rolf Störmer)
原始設計結構工程:約爾格·施萊希(Jörg Schlaich)為 Leonhardt und Andrä 事務所
改建設計單位:福克溫·瑪格(Volkwin Marg)和尼古拉斯·戈策(Nikolaus Goetze)與馬克·齊蒙斯(Marc Ziemons)
改建專案評估負責人:揚·布拉斯科(Jan Blasko)
改建專案評估團隊:提姆·萊姆布羅克(Tim Leimbrock)
改建專案執行負責人:提姆·萊姆布羅克(Tim Leimbrock)、約恩·奧特曼(Jörn Ortmann)
改建專案執行團隊:卡爾-海因茨·貝倫特(Karl-Heinz Behrendt)、彼得·布蘭德爾(Peter Brändle)、希瑟·卡爾森(Heather Carlsen)、卡塔琳娜·赫洛斯塔(Katharina Chlosta)、蕾娜塔·迪珀(Renata Dipper)、維多利亞·埃伯特(Victoria Ebert)、妮可·弗洛雷斯(Nicole Flores)、瑪蒂娜·克洛斯特曼(Martina Klostermann)、莉澤洛特·克納爾(Liselotte Knall)、盧卡斯·庫恩(Lukas Kühn)、克里斯蒂娜·米拉尼(Kristina Milani)、斯韋特蘭娜·諾曼托維奇(Svetlana Normantovich)、托爾本·厄爾克(Thorben Oelke)、雷吉娜·桑德斯(Regine Saunders)、科斯蒂安丁·薩文斯基(Kostiantyn Savinskyi)、克里斯汀·馮·德·舒倫堡(Christine von der Schulenburg)、艾莉克莎·施米德鮑爾(Alexa Schmidbauer)、克斯汀·施泰因法特(Kerstin Steinfatt)
總體規劃:卡斯滕·普洛格(Carsten Plog)
合約與營造管理負責人:卡斯滕·席林斯(Karsten Schillings)
工程預算負責人:托爾斯滕·欣茨(Torsten Hinz)
現場監工負責人:克里斯蒂安·克萊納(Christian Kleiner)
營造管理團隊:桑德拉·布羅斯特豪斯(Sandra Brosterhaus)、莫妮卡·弗朗茨(Monica Franz)、卡佳·波施曼(Katja Poschmann)、露西亞·桑切斯(Lucia Sanchez)、安德烈亞斯·舒爾茨(Andreas Schulz)、索姆·蓬·西薩萬(Som Phone Sysavanh)、西蒙·烏爾卡(Simon Ulka)、茱莉亞·魏納特-尼爾森(Julia Weinert-Nielsen)
結構工程:schlaich bergermann partner (sbp) 事務所
機電/建築設備工程:Eneratio GbR 事務所
燈光設計:Conceptlicht GmbH 事務所
建築物理:von Rekowski und Partner mbB (vRP) 事務所
外牆顧問:DS-Plan GmbH 事務所
消防安全:Ing. T. Wackermann GbR 事務所
景觀設計:Lichtenstein Landschaftsarchitekten & Stadtplanung PartGmbB 事務所
拆除/土方工程:H.Ehlert & Söhne GmbH + Co.KG 公司
支撐結構:Johann Heidorn GmbH + Co.KG 公司
鷹架工程:Treichel Gerüstbau GmbH 公司
結構工程:Gerhard Lühn GmbH + Co.KG 公司
混凝土修復:Instakorr GmbH、Spritzbeton+Injektionstechnik GmbH 公司
外露面混凝土修復:AM restore 公司
外牆工程:Implenia Fassadentechnik GmbH 公司
屋頂防水:Schmidt Bedachung Hamburg GmbH、Dach Schneider Weimar 公司
磁磚/鋪面:Fliesen Lepping GmbH + Co.KG 公司
乾式牆:Baierl + Demmelhuber Hoch- und Ausbau GmbH 公司
木工:FSL Ladenbau GmbH 公司
金屬工:Otto Metallbau 公司
油漆工程:Thomas Möller GmbH 公司
修復工程:Nüthen Restaurierungen GmbH+Co.KG 公司
隔間系統:Schäfer Trennwandsysteme GmbH 公司
玻璃隔間:H + S Alubau GmbH 公司
懸吊式天花板:Hyparschale Lindner SE 公司
木門:Tischlerei Kirsch GmbH 公司
金屬門:Oltmanns Metallbau GmbH 公司
冷水池:e.s.m. Edelstahl- Schwimmbad- und Metallbau GmbH 公司
運動地板/地鋪:Brandt Malermeister 公司
運動地板塗層:TOP SPORT Sporthalleninnenausbau 公司
升降設備:Hans Lutz Maschinenfabrik GmbH + Co.KG 公司
廢水/供水:Quandt Haustechnik GmbH 公司
暖氣工程:Horst Jeske Sanitär- und Heizungsbau GmbH 公司
通風工程:WISAG Gebäude- und Industrieservice Nord GmbH & Co. KG 公司
建築自動化:autech tesla automation GmbH 公司
電氣工程/照明:Siegfried Nass GmbH 公司
施工用電:Schulz Systemtechnik GmbH 公司
變壓器設備:WISAG Elektrotechnik Nord GmbH + Co.KG 公司
音響:Alarm- und Sicherheitstechnik B.W. GmbH 公司
避雷裝置:NDB Elektrotechnik GmbH+Co.KG 公司
廚房設備:Kneifel Großküchen- und Objekteinrichtungs GmbH+Co.KG 公司
泳池設備:Aquila Wasseraufbereitungstechnik GmbH 公司
防火區隔:svt Brandschutz GmbH 公司
戶外設施:Osbahr GmbH Garten- und Landschaftsbau 公司
三溫暖建造:Baum`s Holzteam GmbH 公司
泳池設備:Lausitzer Edelstahltechnik GmbH 公司
蒸氣浴:Hilpert GmbH & Co KG 公司
衛浴/三溫暖家具:Gärtner Büro und Wohnen GmbH 公司
標示:Signtec Leit- u. Informationssysteme GmbH 公司
收銀系統:Ticos Systems Deutschland GmbH 公司