超脫窠臼的品牌策展,再造飲食文化新高度
早已非昔日吳下阿蒙,韓國食品巨擘Harim集團已然從單純的即食產品供應商,蛻變為精緻飲食文化的策展人。旗下擁抱「The Misik」、「Melting Piece」及「Foody Buddy」等多個子品牌,Harim集團早已建立一套別開生面的視覺語言體系,這套體系從商品包裝一路延伸至空間設計,後者更以鮮活靈動的姿態,淋漓盡致地闡述了品牌的宏大願景。這個位於全羅北道益山的品牌基地,正是對傳統零售空間的一次挑戰,一場精心策劃的空間實驗於焉展開。




提問商業本質,從賣場到品牌哲學的實踐地
Harim First Kitchen(하림 퍼스트 키친)的旗艦店計畫,源於一道對產業的根本議題:「市場難道只能是個陳列與銷售商品的呆板場所嗎?」這處被視為品牌精神堡壘的空間,矢志超越純粹的商業設施定位,它企圖成為一個能讓訪客親眼見證、親口品嚐、願意駐足停留,並徹底沉浸在Harim飲食哲學之中的聖地。此一空間的誕生,無異於為韓國國家級食品產業園區 FOODPOLIS 所在的益山(Iksan)市,注入了嶄新的產業活力與觀光亮點。




工廠心臟的體驗革命,催生交流與休憩的場域
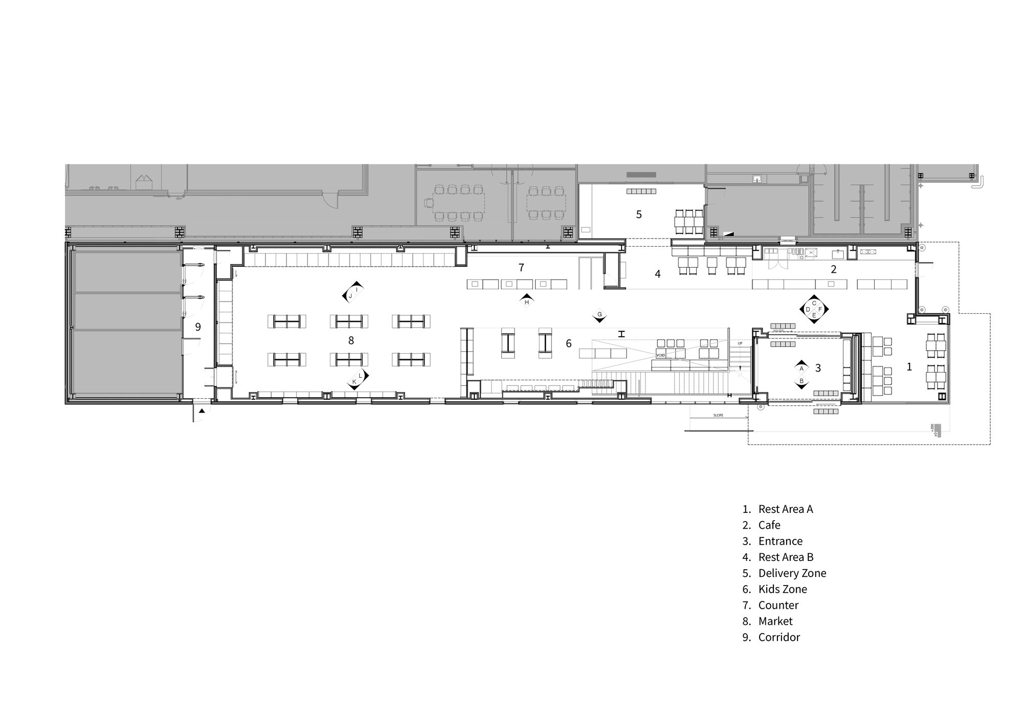
Harim集團大刀闊斧地向公眾敞開位於益山的生產設施,提供顧客一個千載難逢的機會,能身臨其境地感受產品的製造流程。為了呼應工廠的物理脈絡與產業特性,設計團隊精心規劃了兩大核心體驗(CX)。其一,便是針對參訪動線結束後普遍缺乏休憩區域的痛點,特別開闢了一處咖啡廳與休憩區。這個區域不僅服務遠道而來的顧客,同時也扮演著企業員工的協作腹地,意在鼓勵內部更自在無礙的溝通與非正式會議,激盪出源源不絕的創意火花。





童心未泯的互動巧思,編織多重感官的品牌記憶
考量到為數眾多的工廠訪客為家庭客群中的兒童,一個專屬的體驗區域應運而生,旨在為年幼的訪客們提供直觀且身歷其境的品牌感受。設計師將具有象徵意義的品牌元素,與諸如DIY自製拉麵等互動式活動結合,讓孩子們能夠在動態的遊樂過程中,不知不覺地沉浸在一場結合視覺、觸覺與味覺的多重感官品牌洗禮之中。寓教於樂的設計手法,不僅能有效抓住孩童的目光,更能潛移默化地將品牌的好感度,深植於未來消費者的心中。



不銹鋼的冷冽詩意,串起產線到市場的空間對話
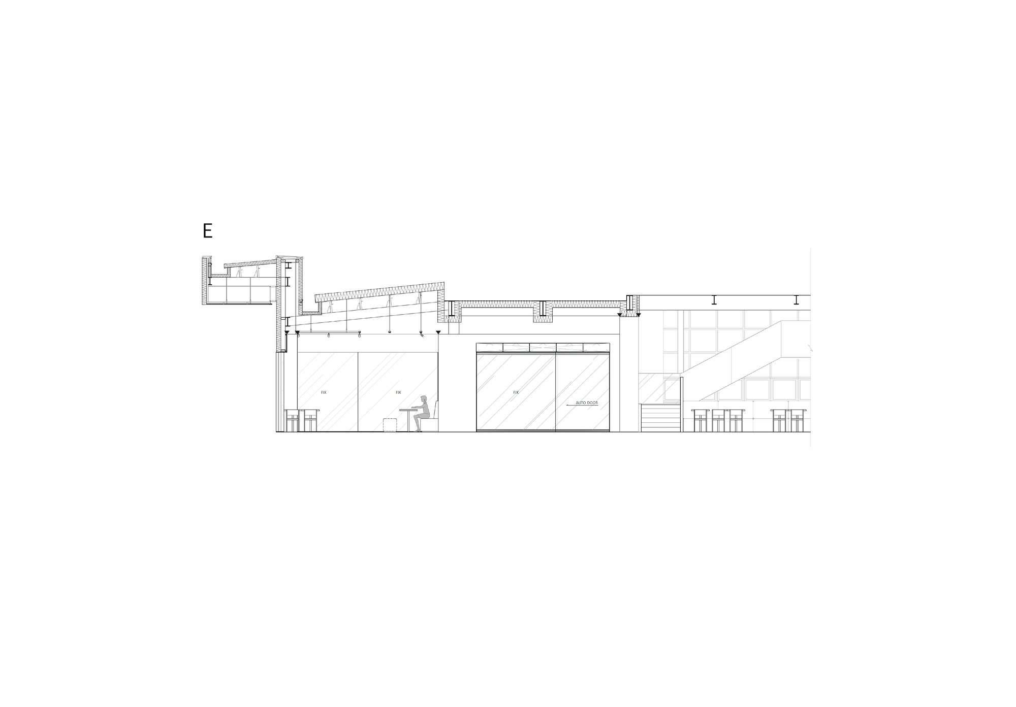
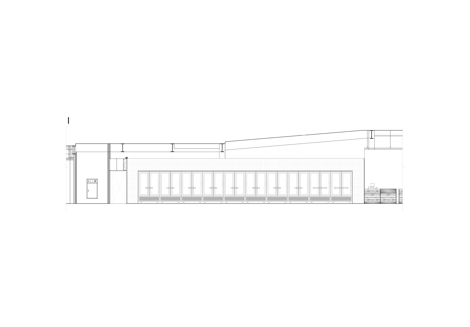
為了在工廠參訪與市場體驗之間,創造出一氣呵成的流暢感,不銹鋼被選為貫穿全場的主要飾面材料。這種在工業環境中屢見不鮮的材質,傳遞著一股堅固耐用且值得信賴的氣息,並賦予空間纖塵不染的現代美學。這股工業美學的氣質,蔓延至市場內部,其粗獷原始的表面與精雕細琢的細節形成強烈對比,從而定義了店面與眾不同的身分識別。尤其在拉麵陳列與試吃區域,不銹鋼與黑色調的搭配,更是將品牌體驗推向高峰,創造出渾然一體的空間認同感。
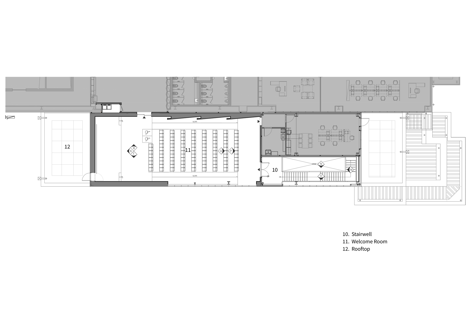
建築圖





















作品資訊
作品名稱:Harim First Kitchen
作品位置:韓國 Iksan-si, South Korea
作品類型:室內設計、商業空間、韓國、韓國建築
設計單位:Studio GIMGEOSIL
總樓地板面積:764 平方米
竣工:2025年
攝影:Kim Dongkyu
主持建築師:Kim YongChul
專案團隊:Kim YongChul