榛名山麓的產業遠謀:一座標榜永續的創新方舟
盤踞於群馬縣榛名山壯麗裾野,日本知名飲品研發製造商 Haruna Beverage(ハルナビバレッジ),為其擘劃的新世代核心據點——創新中心,選擇了一片得天獨厚的土地。此舉絕非偶然,而是一項深思遠見的策略部署。
面對瞬息萬變的市場需求,企業亟欲建立一處能加速產品開發、並能促進內外部專業人士腦力激盪的樞紐。這座建築的使命,便是要成為激發嶄新視角、點燃協作火花的觸媒,在生產速度與創意深度之間,尋求一個絕佳的平衡點,進而鞏固企業在產業鏈中無可取代的地位。此一前瞻性的規劃,無疑是為企業的下一個黃金十年,預先埋下了成功的伏筆。




解構創新三部曲:從心智激盪到品牌敘事的空間策展
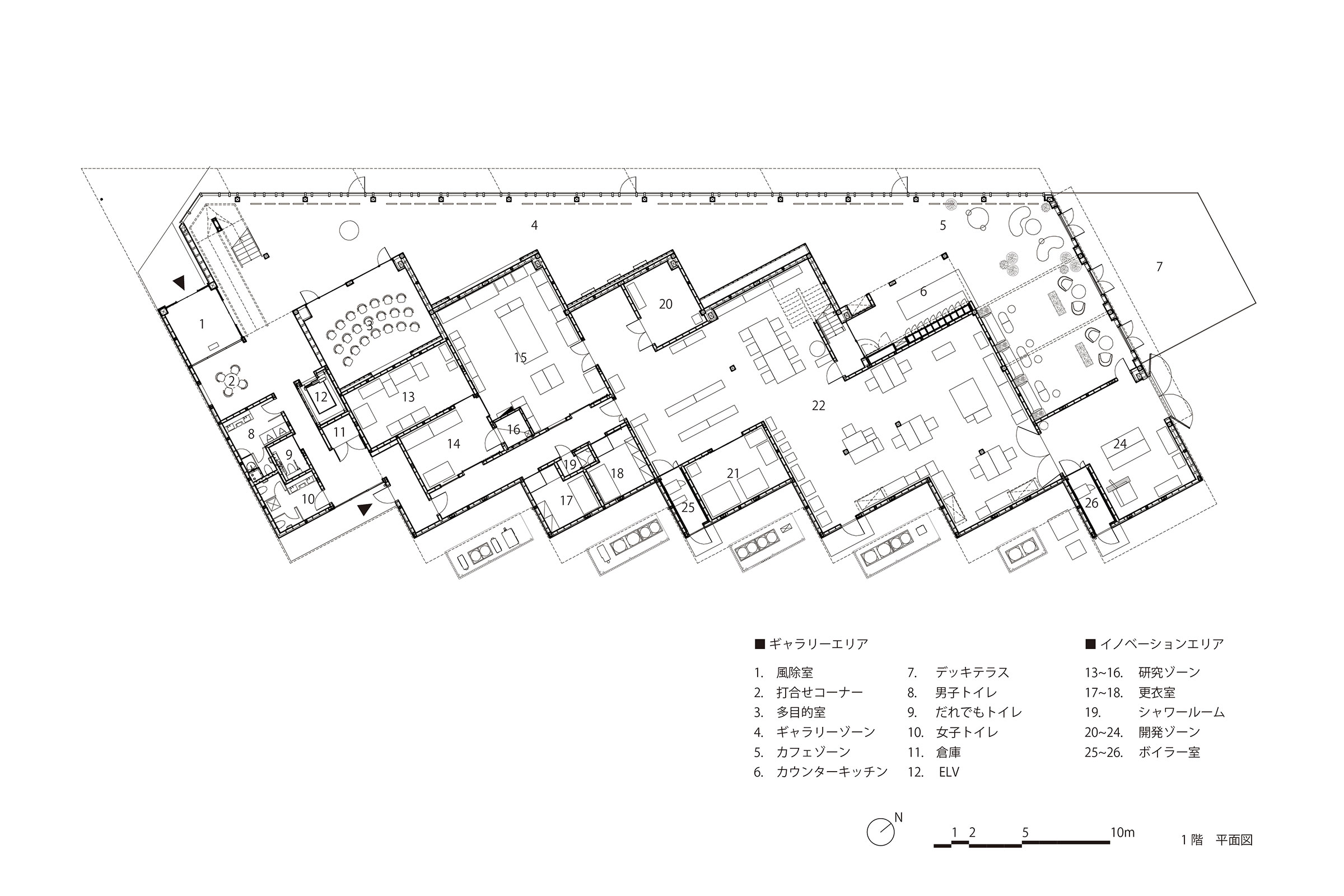
為了實現前述的宏大願景,該創新中心的空間規劃被縝密地解構成三大機能迥異卻又環環相扣的場域,宛若一首層次分明的交響樂章。首先,是強調開放溝通與集體創造的「催生之地」,也就是核心辦公區域,這裡的設計鼓勵意見的自由流動與碰撞。
其次,是著重感官體驗的「實作之所」,亦即開發實驗區域,空間的材質、氣味與光影都經過精心安排,用以觸發研發人員的敏銳五感。最後,則是讓人們在巡覽遊歷中,能夠親身領略企業精神的「傳達之境」,亦即品牌展覽空間。三者序列井然,構成了一條從抽象意念到具體成品,再到價值傳播的完整動線,堪稱企業創新流程的實體化身。





山巒語彙的建築轉譯:雁行配置下的光影與詩意
建築師從榛名山連綿起伏的綠意與宏偉山勢中獲得啟發,構想出猶如靜靜佇立於林間的數座懸山頂(切妻屋根)木屋。這些屋頂並非呆板排列,而是採用了日本傳統建築中精妙的雁行配置,使屋脊之間自然形成縫隙,讓天光得以恣意灑落室內。
如此一來,無論身處建築哪個角落,工作者都能感受到明亮的日光與窗外的蔥蘢綠意,彷彿置身於一座高雅的山間別墅,這種佈局不僅創造出流動與停駐兼備的空間韻律感,更巧妙地將業務空間適度區分,提供了一種既開放又兼具安謐感的作業氛圍,讓清新的感性能在被溫潤建材所環繞的環境中,獲得滋養與昇華。






木構造的當代詮釋:兼納安全、經濟與環境的溫潤堡壘
在結構選擇上,此案毅然採用了先進的木構建築工法,此決策背後蘊含了多重考量。現代木構造技術早已爐火純青,能夠同時滿足嚴苛的耐火性能與抗震規範,經濟效益亦相當優越,徹底顛覆了傳統印象。由木材構築的空間,自然散發出一股安穩人心的溫潤氣息,為每日在此工作的同仁,提供了一種堅實而溫暖的庇護。
不僅於此,設計團隊更導入了高效率的隔熱屋頂與外牆系統,配合從地板向上送風的居住區域空調(床吹出空調)與最大化的自然採光設計,大幅降低了設施的能源消耗與二氧化碳排放量,成就一棟對地球環境展現深刻關懷的綠色建築,可謂是企業社會責任的具體實踐。
















建築圖





作品資訊
作品名稱:ハルナイノベーションセンター
作品位置:日本群馬県高崎市
作品類型:辦公室、辦公空間、木構、日本、日本建築、日本建築師
設計監理:株式会社佐藤尚巳建築研究所
專案團隊 (設計):佐藤尚巳、大塚悠太
結構設計:株式会社MID研究所
專案團隊 (結構):加藤征寛、牧聖也(元所員)
設備設計:有限会社知久設備計画研究所
專案團隊 (設備):知久岳、峯田広大、五木田朱里、國吉健太
展示區室內設計・施工:株式会社丹青社
專案團隊 (展示區):向山雄二、庄司巧哉
營造廠:佐田・セービング特定建設工事共同企業体
專案團隊 (營造):山路紀彦、諸田陽一
基地面積:15,879.38 平方米
建築面積:1,012.97 平方米
總樓地板面積:1,497.27 平方米 (1樓:927.97平方米、2樓:566.30平方米)
結構與規模:木造(準耐火建築)、地上2層
竣工:2024年9月
攝影:尾形和美