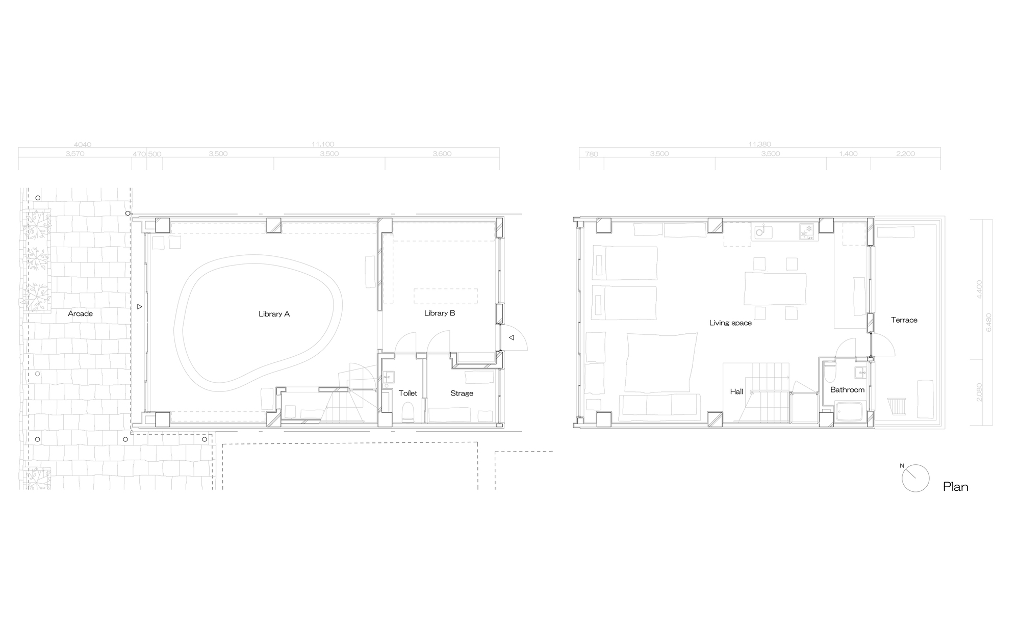
業主在東京和鳥取分別經營咖啡館和藝廊,他放棄了與妻子在東京公寓裡的生活,以自己的方式在鳥取生活,在鳥取形成的新商店街與家庭未來結合;業主有很多書,想找個地方存放,他覺得這幢房子不僅可以作為圖書館,還可以作為一個私人圖書館,只要他覺得合適,就可以向公眾開放。
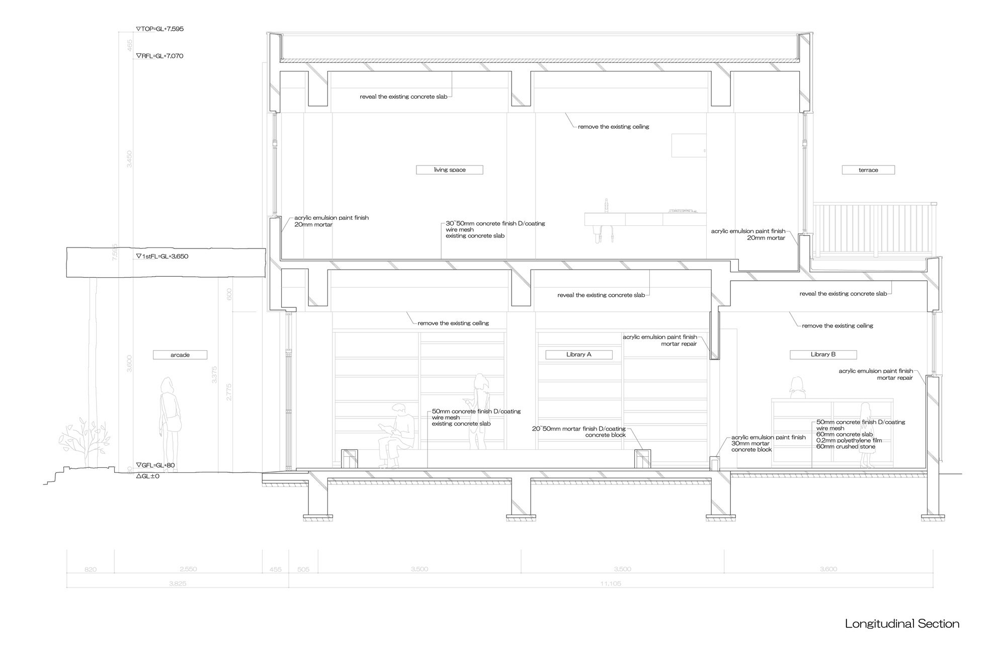
建築過去入口的六片玻璃門保留下來,地面層可以作為從騎樓延伸的入口,也可以作為展覽空間,或者作為一個小圖書館,其中的環形座位可用於各種活動;充分利用了結構框架,二樓依照業主需求作為起居空間,因此不做隔間以單一大空間使用,除了將設備更換為最新的有效率設備外,整個建築造價保持在最低,沒有大筆支出。

鳥取市中心在1952年4月17日遭受火災,被大火摧毀。在城市重建期間,依據當年頒布的《防火建築促進法》的第一項法律措施,在附近的主要街道兩側建造了一個防火構造建築區;同時,附近還建起了幾乎相同標準的鋼筋混凝土房屋,其中許多仍然存在。這座房子就是其中之一。


以騎樓延續公共空間活動
地面層的天花板高度為350公分,與騎樓天花板高度相同,一樓的天花板高度為340公分,與建築防火區的標準幾乎相同,比一般公寓大廈的天花板高度高得多。
不難想像,這種和騎樓尺度一樣的空間,是城市獨有的特色,自鳥取大火後就維持著,而且騎樓也作為鄰里間活動區域,作為業主所設想的新社區形成的容器,建築師評估後並積極將這些元素納入設計。












建築圖


作品資訊
作品名稱:小さな図書館のある家
作品位置:日本鳥取
作品類型:商業空間、室內設計
事務所:キノシタヒロシ建築設計事務所│Hiroshi Kinoshita and Associates
總樓地板面積:72 m²
竣工:2020年