漂泊靈魂的歸鄉與風土建築的哲學實踐
在韓國濟州島,這片被火山岩與海洋環繞的土地上,矗立著一座獻給已故旅日韓裔建築家伊丹潤(Itami Jun,本名庾東龍)的博物館。這座由ITM建築師事務所(Itm Yooehwa Architects)操刀的建築,不僅是收藏其作品的容器,更是其建築哲學的具體實踐。
伊丹潤一生遊走於日本與韓國之間,自喻為「邊界行者」,他深信建築應當根植於當地的脈絡與傳統,並從中結出果實。
設計團隊在規劃之初,便決定讓建築謙卑地匍匐於地,順應周遭葛扎瓦(Gotjawal,濟州島特有的原始森林)的水平向度與寧靜本質。並非強勢的介入,而是溫柔的對話,試圖在人造物與狂野自然之間,尋找一種共生的可能,讓這位漂泊半生的建築家靈魂,能在這片他深愛的土地上獲得永遠的安寧。



拓印木紋的清水混凝土與在地石材的對話
建築的外觀處理呈現了極高水準的工藝美學與在地性。外牆採用清水混凝土,但並非一般常見的平滑冷冽質感,而是運用了浮造(Uzukuri)工法,由匠師將木材的自然紋理拓印於混凝土表面。這種紋理巧妙地中和了混凝土的冰冷,賦予建築一種彷彿歷經歲月沖刷的溫潤感。
此外,設計團隊運用了現代感十足的不鏽鋼材質,與濟州島傳統的黑色玄武岩石牆形成強烈對比。這道沿著基地邊緣延伸的石牆,不僅界定了內外界線,更作為進入博物館的過渡空間,引導著參觀者的視線與腳步。這種將最現代的材料與最原始的構築方式並置的手法,恰如其分地呼應了伊丹潤作品常見的「原始現代主義」特質,在衝突中達成一種微妙的平衡。



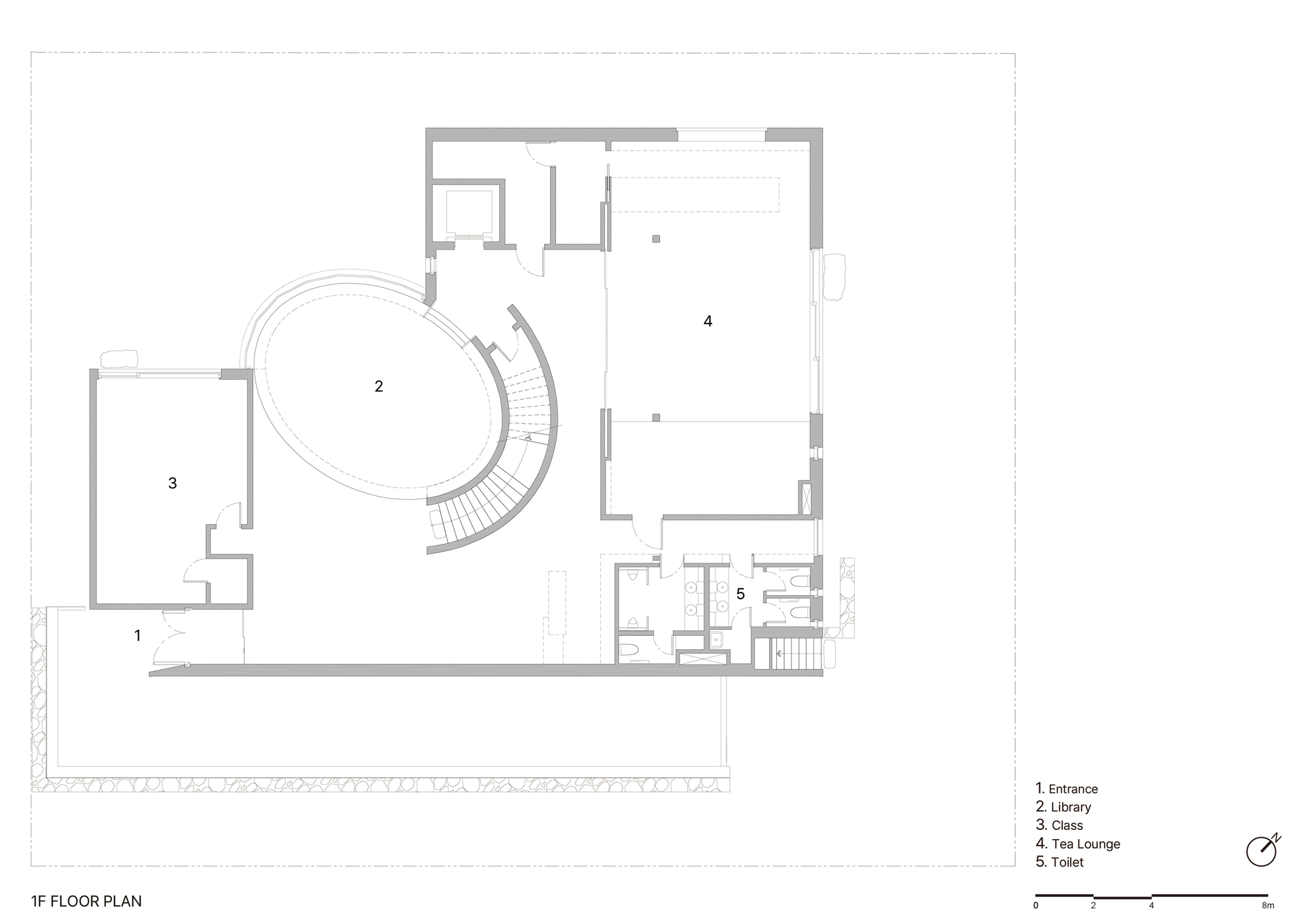
橢圓形量體的光影儀式與沈思空間
步入博物館內部,首先映入眼簾的是一個貫穿大廳中心的橢圓形量體。這個從外部便能隱約看見的幾何形態,在室內轉化為控制光線與氛圍的核心裝置。設計師刻意將人工照明降至最低,讓自然光僅能透過橢圓量體與屋頂之間的縫隙流洩而下。光線經過精心擘劃,在幽暗的空間中劃出一道道清晰的軌跡,如同教堂般的崇高與肅穆。這不僅是視覺上的戲劇效果,更是一種精神上的引導,讓人們在光影的流轉中,感受到時間的推移與空間的深度。
伊丹潤曾說:「我希望在黑暗中創造光,在孤獨中創造沈默,在溫暖中創造溫暖。」這個大廳正是這句話的完美註腳,它過濾了外界的喧囂,只留下純粹的光與影,邀請訪客進入一場關於內在自我的沈思之旅。


墨色美學的感官沈浸與自然氣息的流動
位於一樓的圖書館空間,選用了伊丹潤生前最鍾愛的「墨色」作為主色調。致敬其個人品味,更是試圖營造一種專注與沈浸的氛圍。然而,這片黑色並非單調乏味,設計師透過地板、牆面與天花板不同材質的肌理變化,讓墨色呈現出豐富的層次感,彷彿不同濃淡的焦墨在空間中暈染開來。
深色的表面在吸收光線的同時,也反射著微弱的光澤,產生出一種獨特的聲音質感。更重要的是,一樓的所有空間都設有開口,與戶外的自然環境保持著活躍的互動。風聲、鳥鳴與樹影透過這些開口滲入室內,讓沈靜的墨色空間充滿了流動的生機,體現了伊丹潤那種義警般的生活風格,始終保持警醒並與自然對話的人生態度。



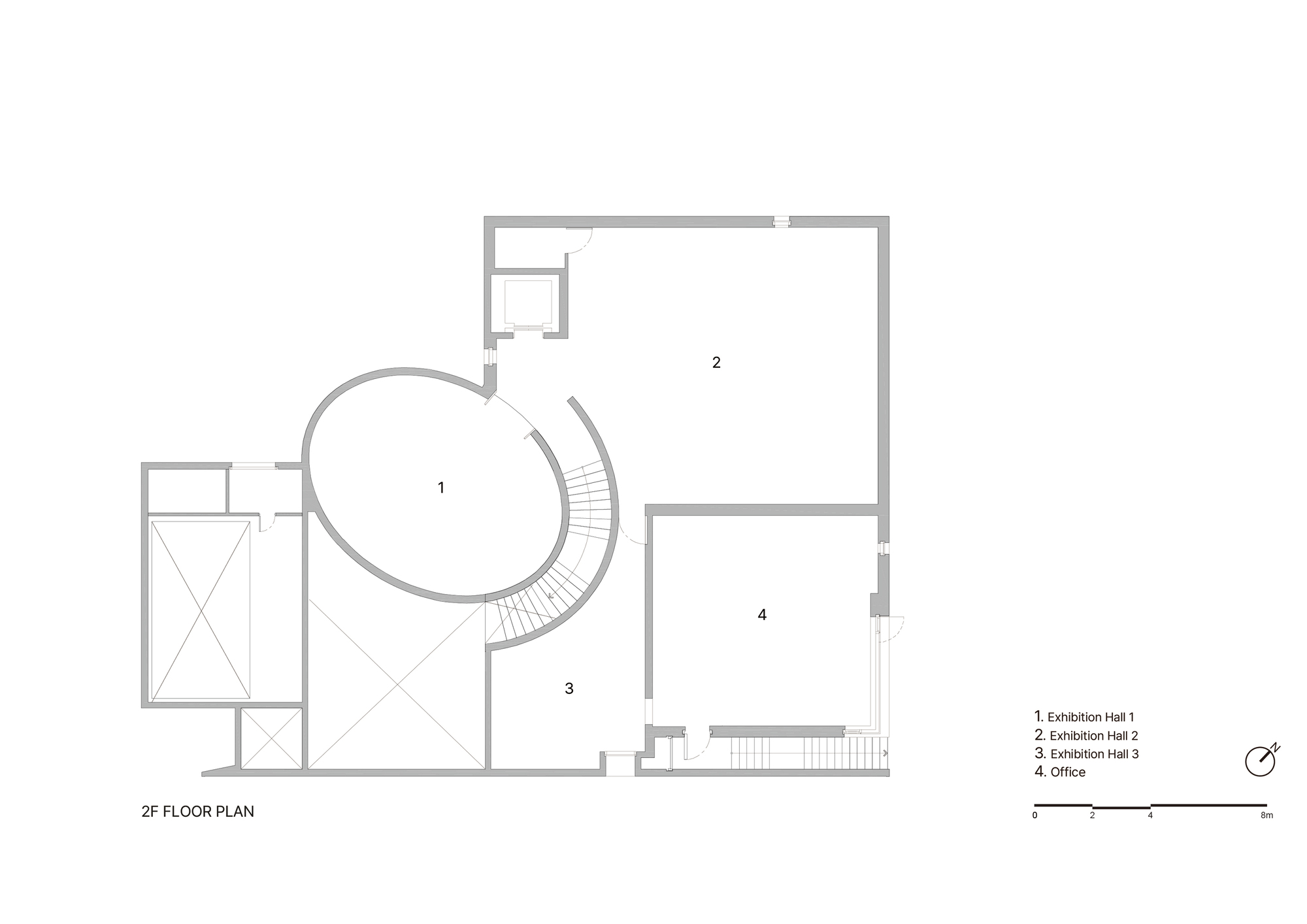
濟州島形的展覽場域與建築自然的共生
沿著環繞中心光井的樓梯拾級而上,訪客將抵達二樓的常設展覽室。這裡的空間配置別具深意,整體平面呈現出如同濟州島般的形狀,象徵著建築師與這座島嶼密不可分的連結。位於博物館核心的橢圓形空間,陳列著伊丹潤最具代表性的作品模型與手稿,如葡萄酒店(Podo Hotel)、水風石博物館(Water, Wind, and Stone Museums)等。
透過大尺度的落地窗,戶外葛扎瓦森林的原始綠意毫無保留地映入眼簾,成為展覽最生動的背景。在這裡,建築不再是主角,而是成為觀看自然的框景,室內的藝術創作與室外的自然造化相互輝映。





建築圖










作品資訊
作品名稱: Itami Jun Museum
作品位置: 韓國濟州市 Jeju, South Korea
作品類型: 清水混凝土、文化設施、博物館、韓國、韓國建築、韓國建築師
設計單位: Itm Yooehwa Architects
總樓地板面積: 674 平方米
竣工: 2022年
攝影: Yongkwan Kim
主持建築師: Ehwa Yoo
專案經理: Hansung Kim
主持設計師: Toshiharu Tanaka
主持設計師(室內): Heeyoung Choi
室內設計: Sunmi Lee
景觀設計: The Garden
結構工程師: Yoon Structure Engineering
機械工程師: SEOWON Energy & Environment CO., LTD.
電氣工程師: WOONGJIN ENG
營造廠: DAON Construction