羅浮宮旁的藝術新聲
普利茲克建築獎桂冠得主、法國建築大師尚・努維爾(Jean Nouvel),於巴黎市中心的羅浮宮(Musée du Louvre)旁,完成了一項備受矚目的建築改造案。他將一幢洋溢著19世紀風情的百貨公司建築,轉化為奢侈品牌卡地亞(Cartier)旗下、成立於1984年的當代藝術基金會(Fondation Cartier)的新家。
此舉被視為在古典藝術聖殿旁,植入一處充滿活力的當代藝術據點,兩者形成有趣的文化對話。努維爾的目標,是為這幢奧斯曼時代的五層樓建築進行脫胎換骨的內部革命。





百年商場的歷史與新生
這幢建築的歷史可謂一波三折,最初於1855年作為羅浮宮大飯店(Grand Hôtel du Louvre)開幕,而後轉型為羅浮宮百貨公司(Grands Magasins du Louvre)。儘管建築外部僅進行了細膩的修復,內部卻經歷了翻天覆地的變化。
在進行舊建築改造初期,努維爾團隊先是拆除了大部分既有內裝,這些空間多數已在第二次世界大戰期間,因一架蘭卡斯特轟炸機的撞擊而毀壞。新的藝廊空間,便是在既有的結構框架之間重新建立,其中包括1970年代翻修時增添的混凝土柱,以及呼應建築立面的砂岩拱門。




前所未見的動態展廳
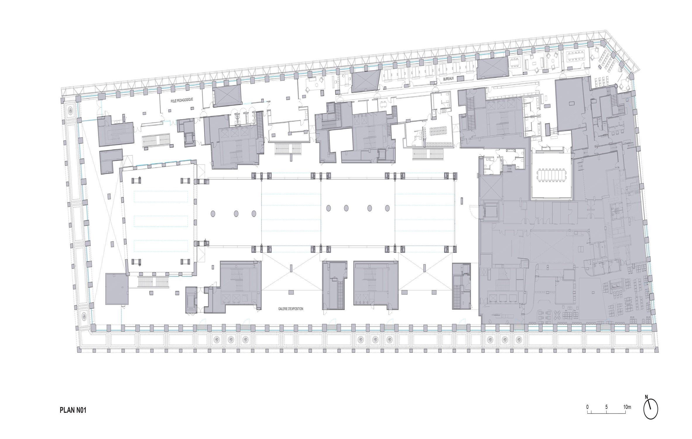
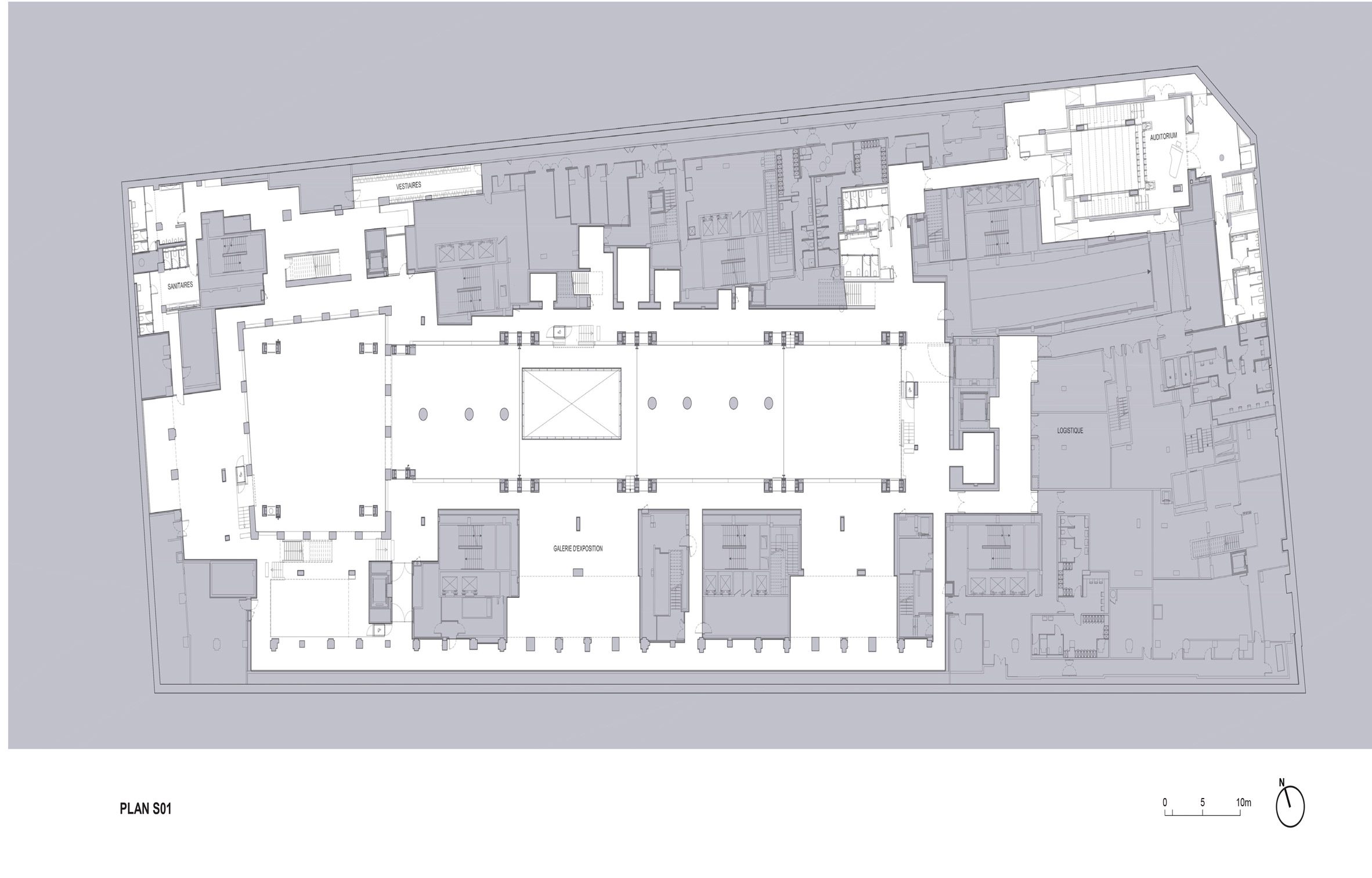
為了創造出一個總樓地板面積達8,500平方公尺的現代美術館,努維爾的核心策略是引入五片巨大的可移動樓板。這些樓地板構成主要的中央展覽區,單片面積介於200至363平方公尺之間,重量更是高達250公噸。
它們藉由一套複雜的纜線與滑輪吊掛系統來控制升降,此般設計在美術館建築中堪稱前所未見。尚・努維爾建築師事務所(Ateliers Jean Nouvel)總監馬修・佛雷斯特(Mathieu Forest)直言,這是一個沒有任何元素是永恆固定的地方。





空間的無盡變奏曲
每一片活動樓板,都能在三個樓層的高度之間,精準地停留在11個不同的預設位置,從而創造出無數種內部空間排列組合的可能性。當所有樓板降至同一水平面時,便能形成一片廣達1,200平方公尺的完整展覽場地。而當平台處於不同高度時,可伸縮的欄杆便會自動伸出,以確保訪客安全。負責支撐與升降的巨大鋸齒狀鋼柱被完全裸露,為室內帶來了強烈的重工業風格,與建築物原有的歷史質感形成鮮明對比,充滿了張力。


城市舞台的透明宣言
其中三個擁有活動樓板的區域,佔據了原先19世紀建築的中庭位置,頂部現已覆蓋了採光天窗。天窗上方甚至還佈置了樹木,並且設計了可伸縮的關閉裝置,讓策展人能夠隨心所欲地控制進入室內的光線量。圍繞著長達85公尺的主要活動展區,還規劃了眾多附屬的展覽空間,以及合計1,500平方公尺的陽台。這些周邊空間,透過大面積的全高窗戶,從鄰近的街道上便能一覽無遺,達成了建築與城市的視覺串連。


對話街道的開放姿態
佛雷斯特解釋,設計團隊的首要任務是重新打開這幢封閉的建築,重新激活它,並將它與城市連結,使其成為都市的新地標。透明性是早期就確立的設計原則,砂岩拱門的序列,讓訪客在室內可以望見街景,而路上的行人也能窺見藝廊內的藝術活動,打破了美術館慣常的內向性。除了展覽空間,此處還包含了一個位於皇家宮殿廣場(Place du Palais-Royal)主要入口旁的小型門廳、一座擁有110個座位的努維爾標誌性紅色調演講廳、書店與小型咖啡館。





歷史的梳理與未來的展望
一座大型餐廳預計於2026年4月在建築東側開幕,而一處創作工作室也將在同年稍晚啟用。開幕大展名為「全面展覽」(Exposition Générale),由義大利設計雙人組Formafantasma操刀展場設計,旨在回顧基金會過去四十年作為藝術委託者與收藏家的輝煌歷史。
展覽陳列了近六百件作品,約佔機構總收藏的百分之十,這些作品皆來自基金會過去在巴黎十四區舊址(同樣由努維爾設計)舉辦過的展覽。




展覽的展覽:一種新的典藏哲學
策展人葛尼耶(Béatrice Grenier)說明,「全面展覽」的策劃理念,借鑒了此建築前身作為百貨公司的歷史,當時的百貨公司會舉辦大型商業展覽,將各種不同媒介的物件、紡織品、時尚等匯聚一堂。基金會採納了這種精神,來鋪陳自身的收藏,因為基金會的收藏本身就是「展覽的集合」。四十年來,基金會委託藝術家創作,為他們舉辦展覽,然後再收藏他們的作品。因此,這次大展呈現的是,美術館可以作為展覽製作的檔案庫,而不僅僅是物件的儲藏室。



建築圖








