建築設計
新莊副都心區住宅大樓陸續興建,居住密度與日俱增,為因應高齡化及老人服務照顧高度需求與產業發展趨勢,設立日間照護醫療發展的重要據點,提供當地長者居家式照護,包括社區送餐、親臨訪視、電話問安、健康促進等服務,使該區域基礎照護醫療體系更進完整。



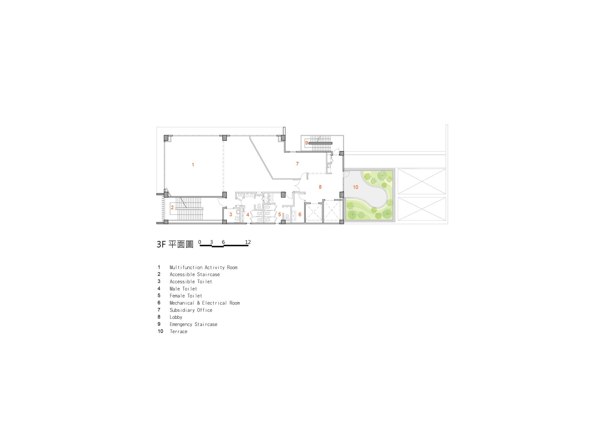
基地座落該區核心位置,為配合副都心都市計畫,在採取退縮防災通道、頂蓋型無遮掩人行道、留設前面向人行道及間隔退縮鄰地等配置後,形成狹長狀建築。一樓規劃為復健科診所,挑高的地面層提供明亮流暢的候診與復健空間。
二、三樓為老人日間照顧中心及人才培育中心;利用雕塑手法形式退縮露台空間設置治療性花園,並緊鄰照護單元,提供觀賞、栽種、遊走功能;醒目座椅可圍坐談話,另方便輪椅使用者動手種植花草,花台高度僅設計90cm且底下無設置遮蔽物,利於輪椅推進,讓長者及輪椅族可從操作中達到療癒的功效。四樓附設廚房及餐廳,落地窗設置亦配合景觀庭院,延伸良好用餐環境。


量體造型及色彩計畫
引耶穌幫門徒洗腳的精神,輔謙虛與服事的態度,將此精神帶入建築立面,創造兼具造型與功能折板。立面開窗分割位置避開視覺高度,有效融合室內外景觀;西向設置無窗厚牆,除配合鄰棟間隔亦可有效防止西曬。外觀材料為洗石子與抿石子,劃分出建築物與外飾板主從關係,灰白色系立面,形塑社福中心自然樸實形象;正面垂直鋁隔柵外掛之十字框架輔以背光源,引人目光抬頭仰望,夜間透光效果,在櫛比鱗次的都會叢林區中點亮溫馨。








建築圖






作品資訊
作品名稱:財團法人新北市私立雙連社會福利慈善事業基金會-雙連新莊社福中心
作品位置:新北市新莊區
業 主:雙連教會
作品類型:社福設施
建 築
事 務 所:潘冀聯合建築師事務所
主 持 人:黃種財、蘇重威
參 與 者:陳伯楨、葉勝鈿、黃天佐、劉冠良、楊家琳、許舒涵、劉億松
監 造:潘冀聯合建築師事務所
顧 問
結 構:群策工程顧問有限公司
機電空調:吳建興電機空調技師事務所
室內設計:謝偉士建築師事務所
施 工
營 造 廠:優寶營造有限公司
材 料:抿石子、洗石子、鋁格柵
基地面積:1,250㎡
建築面積:716㎡
總樓地板面積:2,040㎡
造 價:新台幣80,000,000元
設計日期:2013年10月至 2014年8月
工程日期:2014年11月至 2015年9月
攝 影:謝偉士
關於「潘冀聯合建築師事務所 JJP Architects & Planners」
「潘冀聯合建築師事務所」由潘冀建築師於1981年創辦,以其近四十年國內外執業之經驗,提供以國際新技術、新觀念為用,傳統文化、地域特色為本之綜合性設計服務;並以誠信嚴謹、篤實精確之作風從事設計監造之服務,深獲各界之愛護與信任。作品常見於國內外專業雜誌報導,並獲全球設計獎項肯定。 事務所業務種類涵蓋甚廣,尤擅長尖端科技,需專門性技術設計、研究、協調配合之繁複工程。在環境議題、人本關懷、設計品質、工作進度、估算掌握及監督執行等各環節,皆可見其堅持信念並努力實踐之成果,為建築專業服務樹立全方位標竿。