城北洞的都市留白
首爾城北洞(Seongbuk-dong),這片沿著城北路(Seongbuk-ro)展開的區域,至今仍奇異地保留著舊日屋舍的斑駁印記。相較於江南的繁華或明洞的簇擁,此地宛若都市的「留白」。
過往,文人雅士的宅邸沿著舊城北川(Seongbukcheon)聚集,雖多已不存,僅餘舊址,但那股「適度填充、適當留白」的氛圍,在高度密集的首爾核心區中,顯得格外珍稀。緩慢、鬆弛的步調,構成了此區獨有的都市紋理與地景價值,也是想要進場的開發商與建築師必須面對的首要課題。





熟稔土地上的新挑戰
韓國建築師事務所 Johanjun Architects 甫遷至此區不久,便迎來一位客戶。業主欲在事務所新址附近一塊土地上興建新廈。這塊基地,建築師在午餐時分時常路過,瞭若指掌。基地本身是一處坡地,原始建物為一座地下一層、地上兩層的住宅,可由道路直達。在都更壓力下,它已被改裝為鄰里商業設施使用。這種舊屋轉作商業的模式在城北洞非屬罕見,但如何在熟悉的環境中動土,既是優勢,亦是挑戰的開端。


擋土牆下的營建考量
設計團隊對於能在如此熟稔的基地上操刀感到興奮,卻也伴隨著一絲猶豫。這種踟躕源於對施工潛在風險的清醒認知。在首爾這樣的稠密都市,任何營建活動都可能引發周邊居民的陳情抗議。然而,首要的技術隱憂,在於基地後方那道既有的高聳石砌擋土牆。此坡地結構的穩定性,以及開挖時對鄰房的影響,是本案執行中必須嚴肅以待、如履薄冰的關鍵難題,牽動著結構安全與施工可行性。




商業價值的立面宣言
此案作為一處商業租賃物業,其成敗與可見性息息相關。建築物將矗立於城北路的顯著位置,往來人車無不注目。因此,即便必須在嚴苛的法律限制中騰挪,立面的高度可見性與具吸引力的材料質感,仍被視為設計的重中之重。建築師必須在法規的框架下,尋求一種能抓住眼球、提升物業價值的視覺語言。這道立面不僅是建築的表皮,更是商業活動的強力媒介,對租賃效益有著決定性作用。


岩盤上的垂直雕鑿
城北洞的地質條件亦是一大挑戰。此地背倚北漢山(Bukhansan Mountain)山麓,地表下普遍為堅硬的基岩所構成,意味著開挖地下室的工程難度與成本將極為高昂。然而,基地擁有的「道路直達性」卻是無法割捨的關鍵優勢。為了在不動搖此優勢的前提下,回應地質特性,團隊決定採用清水混凝土質感,並在表面蝕刻垂直紋理,試圖表達一種彷彿從原生岩盤中雕鑿而出的、厚重而堅實的量體形態。


法規限制的造型轉化
法規的束縛是形塑建築樣貌的另一隻手。基地北側緊鄰地勢較高的鄰地,觸發了韓國建築法規中嚴格的「正北向日照權」規範,導致建築物高層必須向北退縮。然而,建築師並未使此退縮隱沒無聞。為使這道從正面不易察覺的法定退縮線,能被主要道路所感知,設計上採用了自三樓起,量體逐層向前懸挑突出的手法。此種構成,意在為臨路立面創造視覺上的張力與動態感,將法規限制轉化為造型的契機。




漢堡軼事的私房記憶
建築中還藏著一筆建築師的私房絮語。基地前身曾有家名為「Yum Yum Burger」的手工漢堡店,是建築師時常光顧並外帶回家的記憶。預見新大樓落成後,小店將不復存在,建築師於是將數個漢堡麵包堆疊的形象,悄悄轉化為建築的造型,作為對那段短暫記憶的憑弔。
這段「漢堡軼事」並未告知業主,而是以「轉角處的圓潤處理,是正面無縫延伸至側面的概念」作為說明。此案歷經挑戰,自2020年12月簽約,終於在2025年春季取得使照,業主甚為滿意。

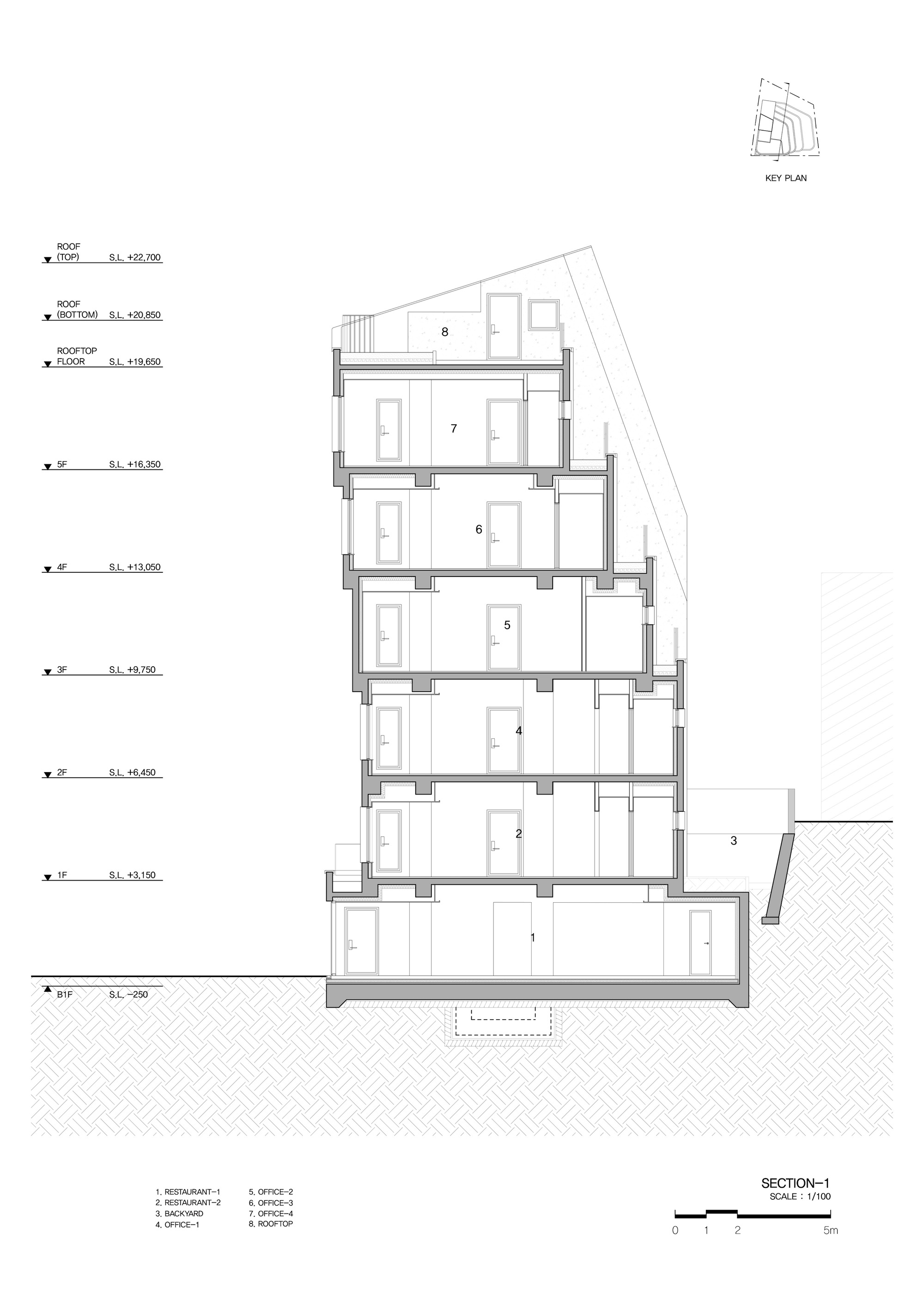
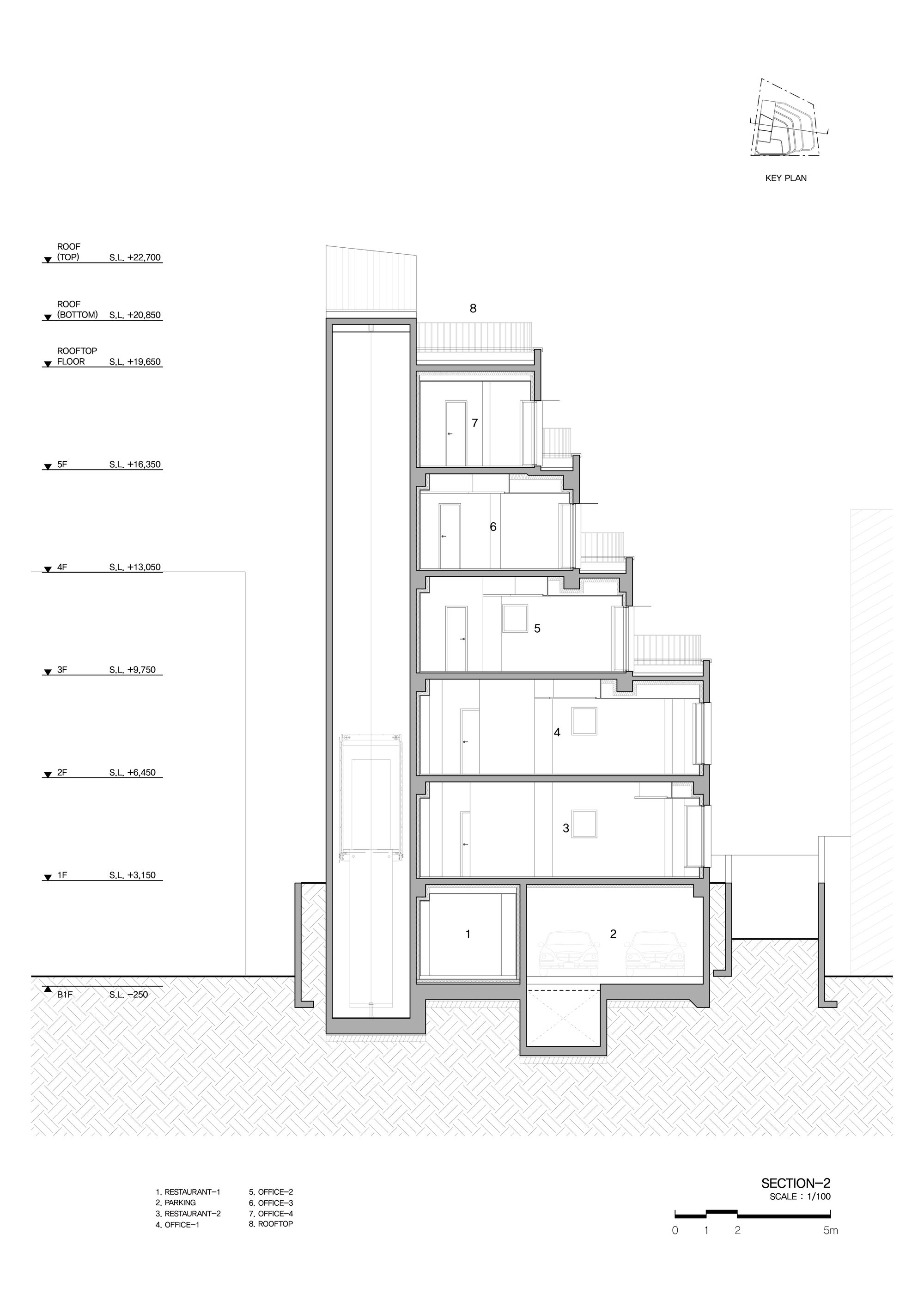
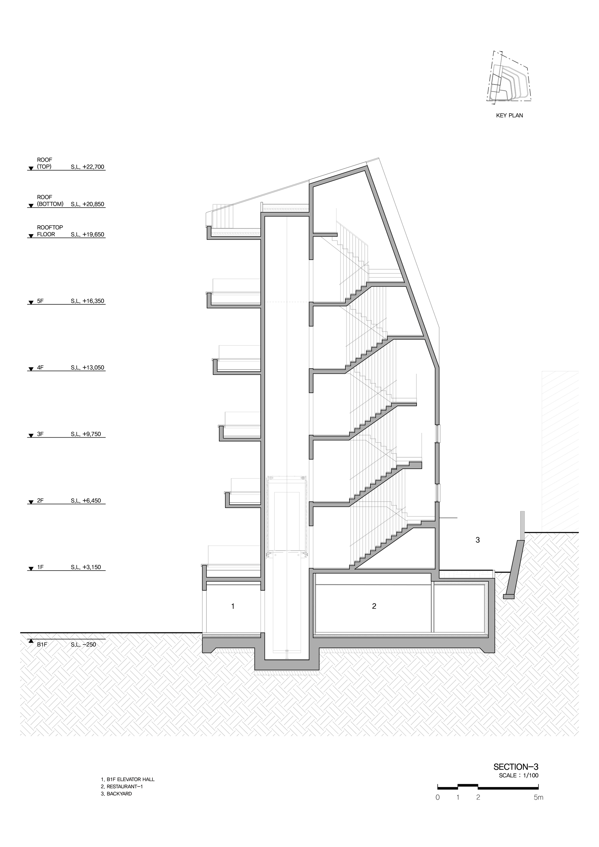
建築圖
















作品資訊
作品名稱:STACK
作品位置:韓國首爾 Seoul, South Korea
作品類型:商業大樓、韓國建築、清水混凝土
設計單位:Johanjun Architects
總樓地板面積:105 平方米
竣工:2025年
攝影:Mongsang
主持建築師:Hanjun Jo
專案團隊:Jeonghwan Han, Donghun Min
營造廠:Theplan Construction
結構工程:JW Structure
機電工程:GM Engineering