由Leckie Studio設計的兩層樓住宅單元內有一片種有雪松樹的熱帶雨林風格中庭,位於新的溫哥華住宅大樓內。該複式頂層位於溫哥華市中心格蘭維爾橋附近的一座59層大樓「溫哥華一號公館」(Vancouver House),建築是由丹麥建築師事務所BIG設計,於2020年完工。




這套有熱帶雨林風格中庭的兩層公寓位於摩天大樓的西北側,在那裡可以看到英吉利灣(English Bay)和北岸山脈(North Shore Mountains)的景色。



業主希望營造出一種溫馨的氛圍和空間,以容納她旅行中的自然手工藝品和藝術品。因此她求助於當地公司Leckie Studio來監督設計。
該團隊開始創建一個分層的環境,既可以看到內部,也可以看到外部,並注入有機元素。“通過一個迭代的設計過程,工作室和客戶達成了一個高度定製的、親生物的設計,與時間的流逝相協調。”團隊說。



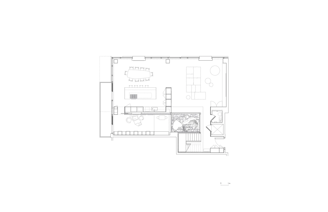
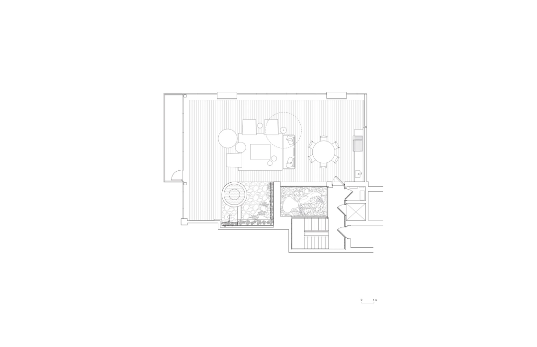
該單元分為公共區域和私人區域。在底層,有客廳、餐廳、廚房和一間辦公室。一段半轉樓梯通向上層,那裡有兩間臥室。還有一個 167 平方米的屋頂平台,可以私人電梯進入。
“頂層公寓的體驗是多種多樣的,取決於一天中的時間和被佔用的空間,”建築師Michael Leckie說。


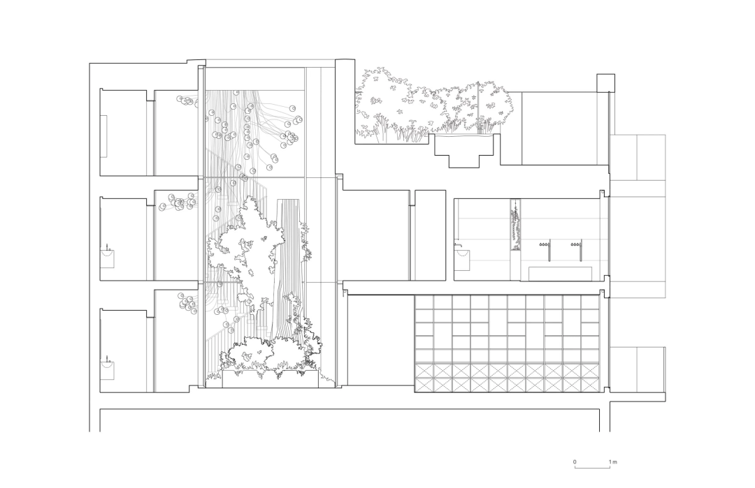
作為頂層公寓的主軸,中庭沿著樓梯間延伸,從公寓的底層一直延伸到屋頂露台,在頂部,它向天空開放。
設計團隊說:「它被認為是太平洋西北部雨林的縮影,它的核心是一棵全尺寸的紅雪松樹,為室內設計增添了沉思和踏實的元素。這棵樹周圍的生態系統以原木長期維持,用腐爛的養分補充空間。」

在中庭之外,泥土元素貫穿整個住宅,彰顯業主的雄厚財力。
客廳、廚房和洗澡間的木製品由美國黑胡桃木構成,高品質的木材同時用於樓梯踏板。


石灰華被用於地板和定製的浴室水槽。一間衛浴的牆壁上鋪著煙灰色的大理石。
頂層公寓的稀疏陳設包括一張帶有鑄銅底座的橡木餐桌,以及一張支持各種姿勢和方向的低矮多向沙發。



漂浮在樓梯間的是Bocci的照明裝置,它讓人想起一簇閃閃發光的螢火蟲。這件作品由銅和122個玻璃燈具組成。
屋頂露台旨在作為生活空間的延伸。它配有不鏽鋼按摩浴缸、室外淋浴、小廚房和充足的座位。







