韓國江西區MizMedi DEAR’ONE產後護理之家:醫療特區發展的重要推手
MizMedi DEAR’ONE產後護理之家是一間專業的產後照護機構,該醫療設施的建設由MizMedi醫院(미즈메디병원)發起,其主要目的是為了吸引國際病患前來就醫,促進韓國醫療特區的發展。這座產後護理之家位於韓國江西區(Gangseo-gu),由韓國建築師事務所yeonhan architects負責設計,從2020年開始進行建築設計,到最後竣工,整個過程歷時四年,期間遭遇了許多嚴峻的考驗:首先是影響全球的COVID-19疫情,接著是俄羅斯與烏克蘭之間的戰爭,這場戰爭直接衝擊了營建物料的成本,
此外,韓國國內的生育率也呈現下滑的趨勢。儘管面臨這些重重阻礙,MizMedi醫院仍然堅持不懈,秉持著其一貫的使命,致力於為產後母親與新生兒提供最優質的照護服務。此坐月子中心的設立,不僅提升了韓國在國際醫療產業的能見度,也為當地醫療產業的發展注入了新的動能。



垂直村落概念,營造互助支持的環境
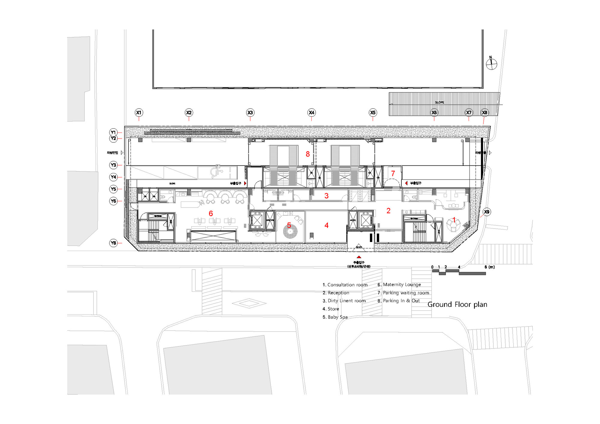
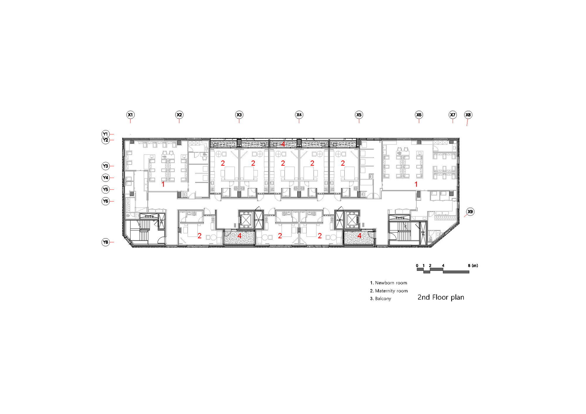
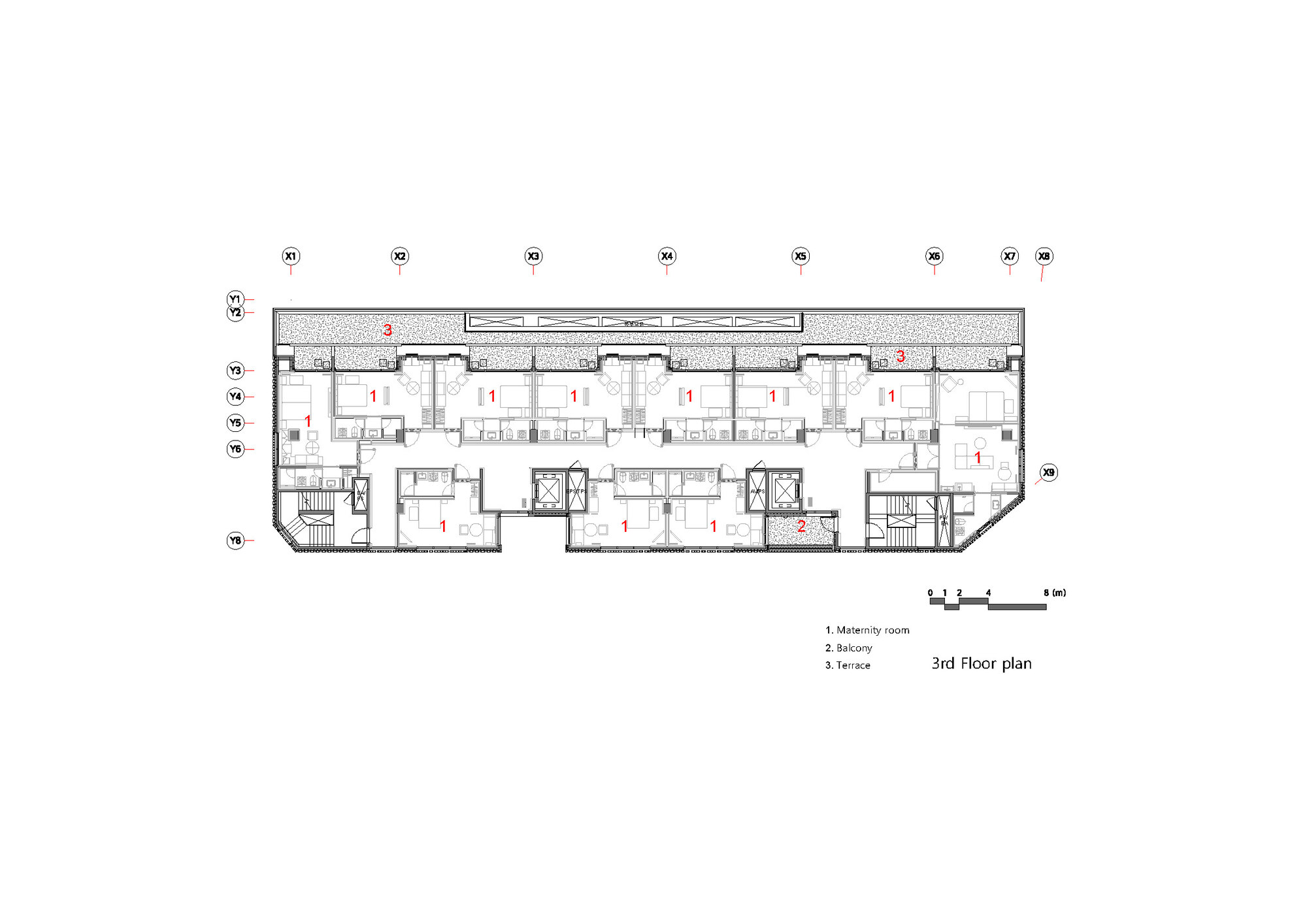
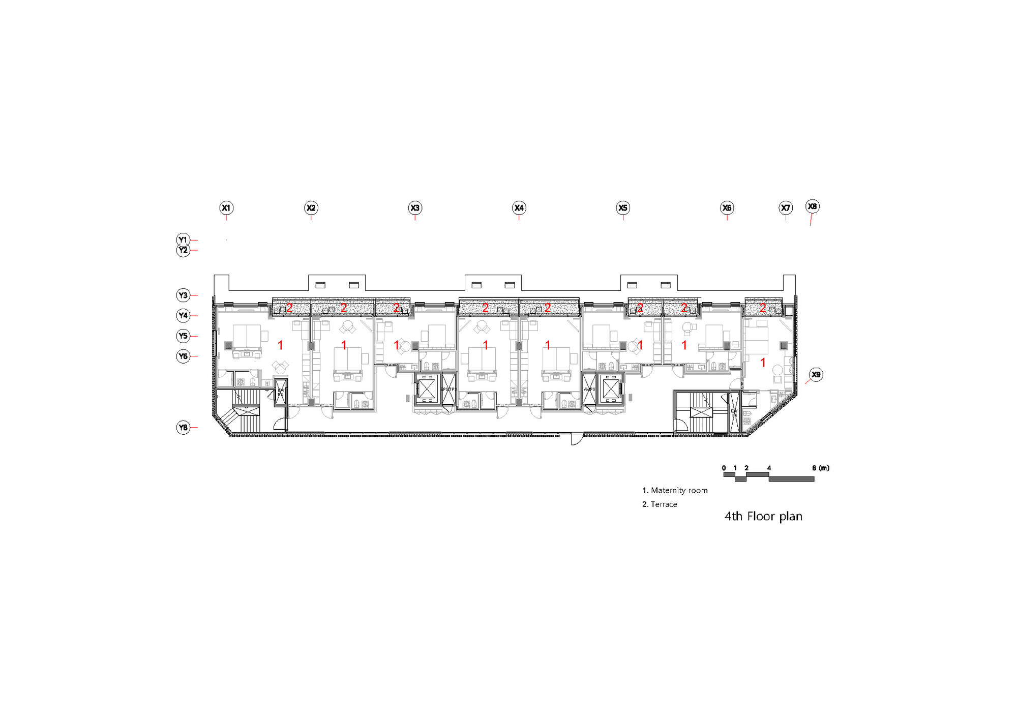
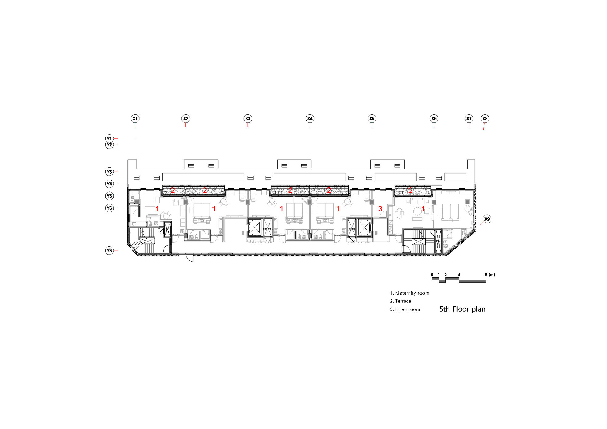
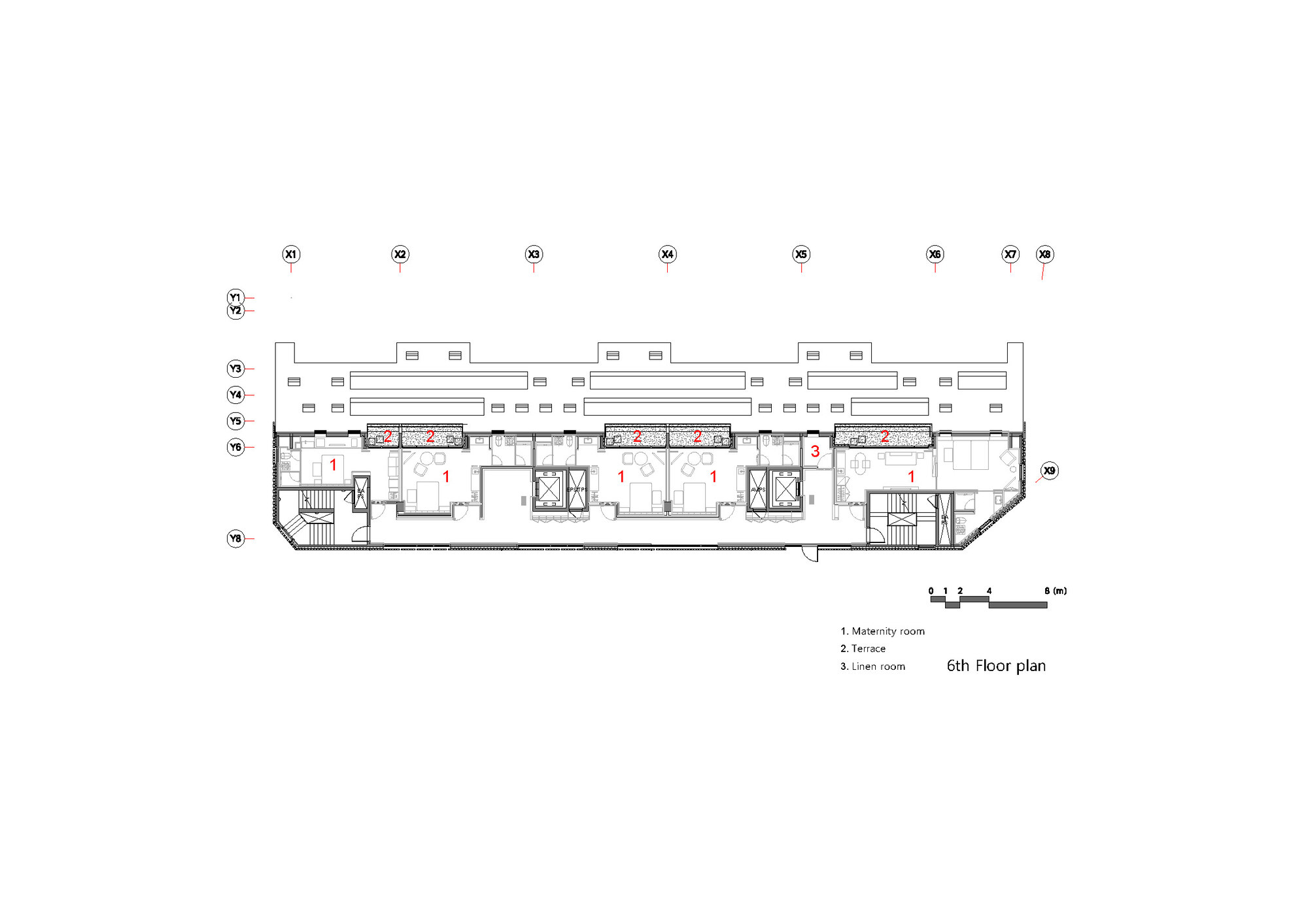
MizMedi DEAR’ONE產後護理之家的基地原先是一處停車場,這樣的基地條件也帶來了特殊的限制:基地的南側緊鄰著一條繁忙的道路,而北側則為住宅公寓。為了將產後母親的舒適度與隱私性放在首位,設計團隊選擇將產後病房設置在基地的北側,如此一來,便能有效地阻隔來自道路的噪音干擾,同時也能讓病房享有面向綠色庭院的良好視野。這樣的空間安排,也讓建築的南側形成了一條灑滿過濾陽光的走廊,為整體環境營造出一種寧靜祥和的氛圍。





為了在有限的空間範圍內,盡可能地營造出社群的歸屬感,設計團隊以「垂直村落」(Vertical Village)做為設計概念。這個概念的靈感,源自一句廣為流傳的諺語:「撫養一個孩子需要一個村莊的力量。」(It takes a village to raise a child),設計團隊希望透過這樣的設計,創造出一個讓產後母親們能夠彼此連結、互相支持的空間,讓她們在產後坐月子這段重要的時期,能夠感受到如同身處在一個互助社群中的溫暖與支持,促進人際互動,並營造具有凝聚力的社群,來提升產後婦女的身心健康,進而促進整體社會的福祉。


突破傳統框架:產後護理之家打造度假村體驗
在產後護理之家中,針對個人提供的照護服務是相當常見的。然而,此設計團隊的目標是為產後母親們提供一種有如造訪度假村般的體驗,讓她們可以在建築物中自在地散步,促進自然的互動交流,並在過濾後的陽光下享受片刻的休憩與身心舒緩。此一構想有別於傳統醫療機構的冰冷印象,更著重於營造溫馨舒適的環境,讓產後婦女能夠在身心俱疲之際,得到充分的休息與照護。
現代人對於身心靈健康的重視程度日益提升,此設計概念有益結合醫療照護與休閒體驗。著重空間的垂直延伸,更重要的是在有限的空間中創造出豐富的公共區域,鼓勵住民之間的互動,遠親不如近鄰,產婦們透過彼此的交流與支持,共同度過產後這段重要的時光。



磚砌外牆營造寧靜氛圍
此概念也延伸應用到建築的外觀設計上。設計團隊選用了磚材,這種材料常與「家」產生連結,透過凸出與凹陷的磚砌工法,在外牆上創造出具有變化的圖案,形成別具特色的磚砌隔屏。此一設計不僅提供了視覺上的趣味性,更重要的是營造出一種寧靜的環境,讓人聯想到在綠樹成蔭的巷弄中漫步,感受樹影婆娑的閒適氛圍。此外,設計團隊也運用了Revit,這是一套建築資訊模型(BIM)工具,來模擬設計意圖,並提升設計與營造流程的效率與準確性。有效地提升工程品質與效率,達到設計美學的要求,兼顧工程實務的需求。

軟化建築量體的設計
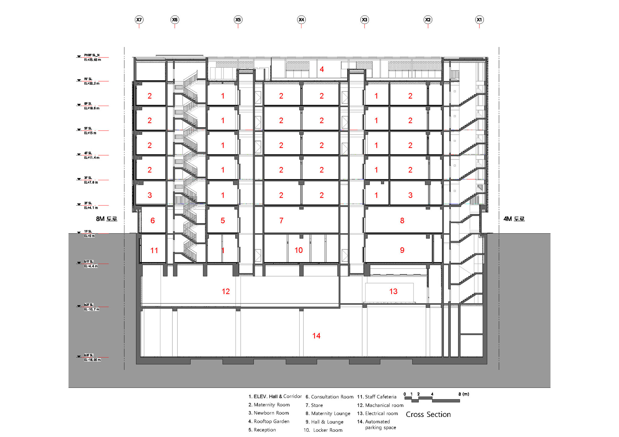
為了緩和高達52米立面所帶來的巨大壓迫感,並且讓地面層行人擁有舒適體驗。建築師透過周詳的考量,讓原本可能顯得高聳且具壓迫感的建築,轉化為與周遭環境友善共存的姿態,這也是當代都市建築中相當重要的設計課題。停車場和疏散路線的安排對於整體設計產生了重大的影響。
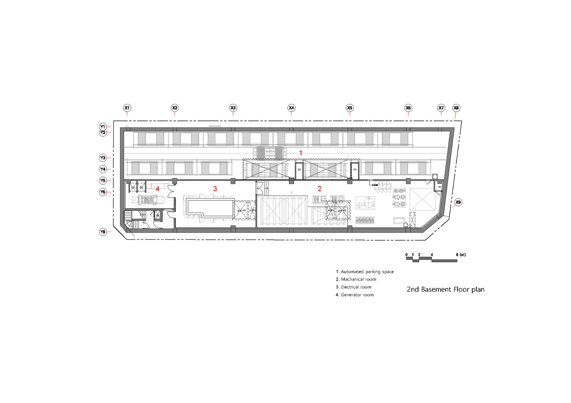
基地條件的限制,迫使設計團隊採用了機械式停車系統,以確保有效率的停車空間以及足夠的等候空間。機械式停車系統在寸土寸金的都市中,已是相當常見的解決方案,它能在有限的基地面積中,提供最大的停車效益。為了達到快速且直覺式的疏散,設計團隊在建築物的兩端設置了逃生出口,能在緊急狀況發生時,確保人員可以採最短的逃生步距,迅速且安全地撤離。兩部電梯將建築物劃分為三個區塊,這項配置不僅是為了使用者的便利性著想,服務核同時也扮演了結構上的重要角色,電梯除了提供垂直動線的運輸功能外,也強化建築整體的結構穩定性。


歷經艱辛後的溫馨守護:產後護理之家期許成為母親們的希望燈塔
這間歷經諸多艱辛才得以開幕的產後護理之家,期許能成為母親們的避風港,在韓國社會面臨低生育率的挑戰之際,提供正面的經驗和希望的燈塔。此處所謂的「艱辛」,不僅是指工程上的種種挑戰,更包含了社會環境的變遷所帶來的壓力。
低生育率不僅是韓國社會面臨的難題,也是許多已開發國家共同面對的困境,它牽涉到經濟、社會、文化等多個層面。這間產後護理之家在此時此刻的誕生,更顯得意義非凡。它不只是一間提供產後照護的機構,更承載著社會的期盼,希望能透過提供優質的照護服務,支持產後婦女,進而對提升生育率產生正面的影響。此中心期許能帶給產後母親們的不只是一個舒適的環境,更是一份溫暖的支持與關懷,讓她們在人生中這個重要的階段,能夠得到充分的照護與支持。















作品資訊
作品名稱:MizMedi DEAR’ONE Postpartum Care Center 產後護理之家
作品位置:南韓 Gangseo-gu
作品類型:醫院、醫療設施、室內設計、韓國建築師、韓國建築、韓國、磚牆
業主:MizMedi 미즈메디병원
設計單位:yeonhan architects
基地面積:807 平方米
竣工:2024年
攝影:Yongsoon Kim, Woojin Park
主持建築師:Seokcheon Kim
設計團隊:Seokcheon Kim、Hakyeon Kim、Jihee Min、Youngseok Kim
室內設計:about8
土木工程:DASAN ENG.
結構工程:DAHN Engineers & Consultants Inc.
機械工程:Kunil MEC
電氣工程:Sukwoo Engineering
其他工程顧問:TAEIN Architects & Engineers. Inc.
總承包商:Dasan Construction Engineering Ltd.