雪梨雙城記:一條紅色樓梯串聯的金融雙子星
在澳洲雪梨這座依山傍海的國際都會中,一條隱形的紅線橫跨了24公里的地理距離,串聯起兩個截然不同卻又血脈相連的辦公場域。這就是由國際知名建築事務所Woods Bagot(伍茲貝格)為澳洲國民銀行(National Australia Bank, NAB)操刀設計的「雪梨園區」(Sydney Campus)。
該項計畫包含了位於帕拉馬塔廣場(Parramatta Square)的NAB 3PS與位於卡林頓街(Carrington Street)的NAB 2CS,兩棟建築宛如一對性格迥異卻默契十足的雙胞胎,合計容納了超過6,000個工作席位。
所以,這不僅是一次大規模的辦公空間整合,更是一場大膽的企業文化實驗,試圖在銀行既有的穩固客群與新興市場之間,搭建起一座實體與精神的橋樑。
Woods Bagot 全球職場領導人 Amanda Stanaway 指出,這是一次「雙手聯彈」的設計策略,既汲取了墨爾本700 Bourke Street轉型計畫的成功經驗,又必須精準捕捉兩個基地獨特的場所精神與人口特徵,將NAB的品牌DNA無縫植入其中。






帕拉馬塔的新興野心:粗獷美學與社區共融的實驗場
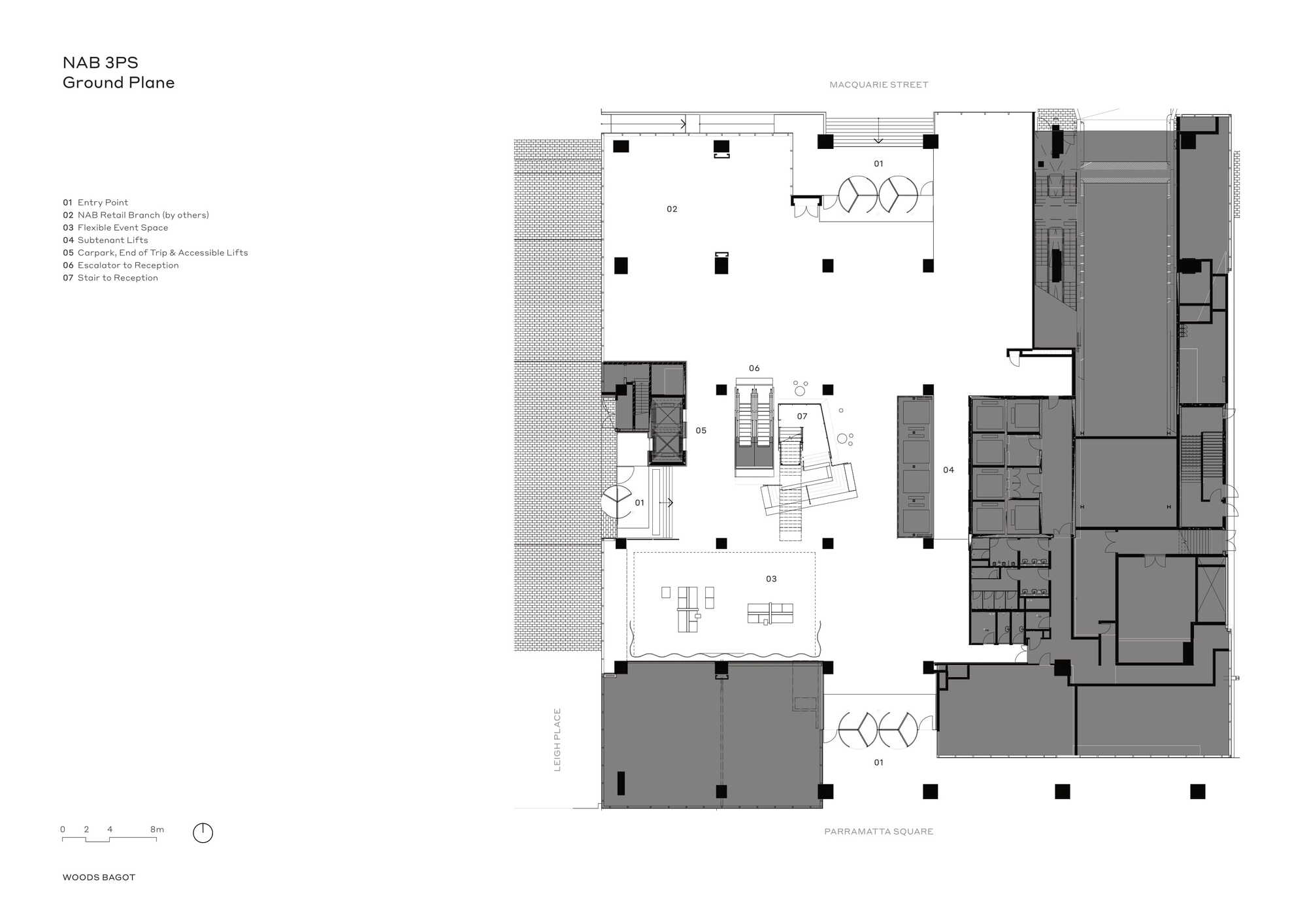
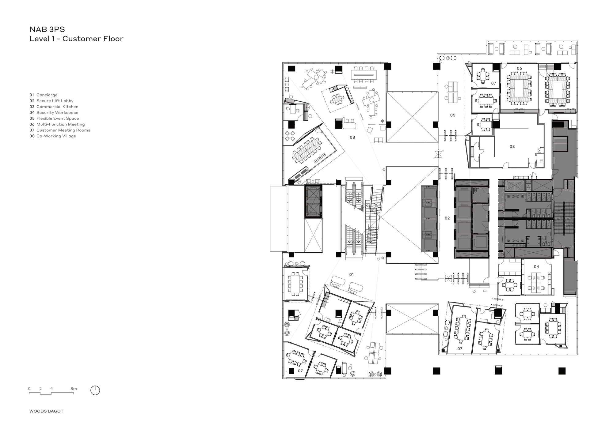
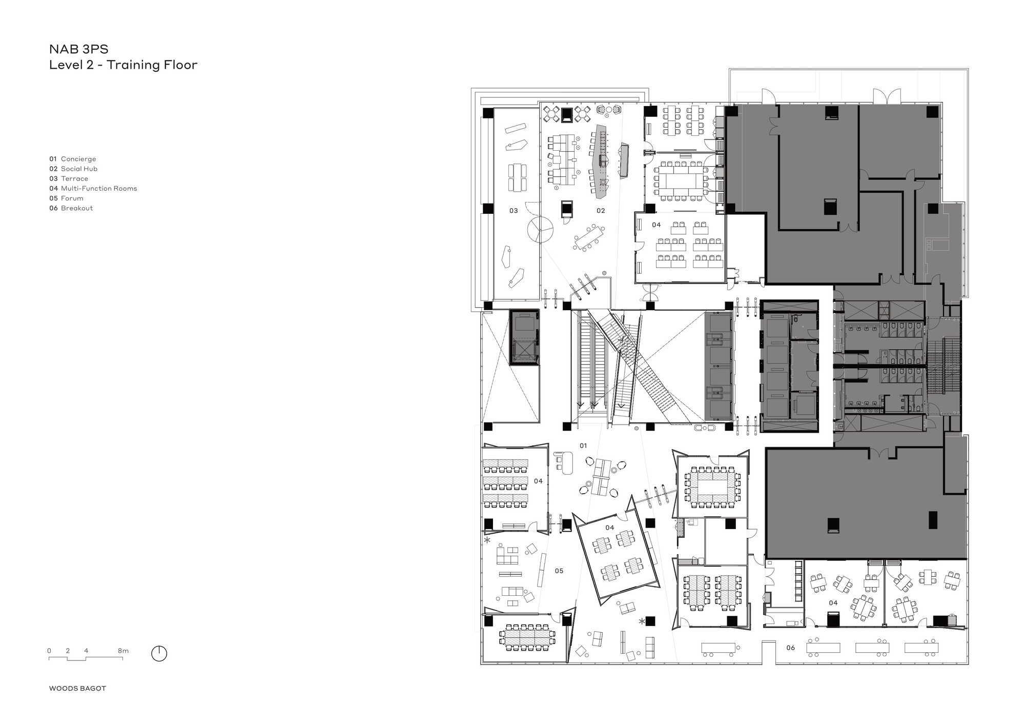
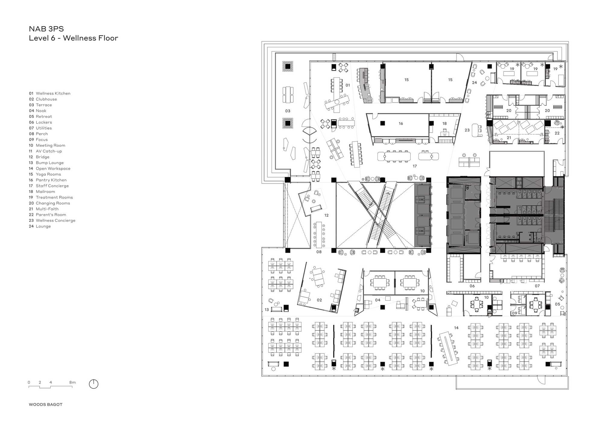
作為雪梨第二都心(Central City)帕拉馬塔(Parramatta)都市更新計畫的關鍵拼圖,樓高13層、總面積達35,000平方公尺的NAB 3PS,被賦予了「新興」的場所性格,設計語彙充滿了未經修飾的粗獷感與驚喜,旨在回應雪梨大西區(Greater Western Sydney)多元文化的活力與蓬勃發展的都市脈動。
室內空間透過錯綜複雜的動線與空間層次,創造出一種大膽且互動性極強的體驗。設計團隊特意「掀開簾幕」,將低樓層轉化為與公眾對話的介面,吸引社區居民與客戶深入建築內部,人們不再見到傳統銀行那種冷冰冰的櫃檯,而是沉浸式的共創空間與無障礙設施,鼓勵員工與外部社群進行有機的連結與碰撞,展現出銀行作為社區一份子的開放姿態與在地承諾。




卡林頓街的歷史優雅:遺產建築中的精緻與流動
相較於帕拉馬塔的生猛有力,位於雪梨傳統商業核心區(CBD)的NAB 2CS則呈現出截然不同的「既有」(Established)風範。這座樓高12層、面積29,000平方公尺的辦公空間,佔據了列入遺產名錄的Shell House及其相鄰的新建塔樓,兩者透過中庭巧妙連接。
坐擁溫亞德公園(Wynyard Park)的綠意視野,設計團隊將這份難得的自然景觀引入室內,透過框景手法讓樹梢與街景成為辦公場景的一部分。前四個樓層被規劃為公共可達的延伸領域,包含微型分行與咖啡廳,模糊了辦公室與城市的界線。一條極具雕塑感的絲帶狀樓梯成為空間的視覺焦點,引領訪客與員工展開一場垂直的探索旅程,通往高樓層的禮賓服務與多樣化的協作空間。不僅有露台、圓形劇場,更有巨大的交易大廳,在保留歷史韻味的同時,注入了現代金融所需的靈活與高效。






紅色絲帶的品牌隱喻:跨越空間的連結與十年夥伴關係
貫穿這兩個項目的靈魂元素,無疑是那條極具標誌性的紅色樓梯。Woods Bagot負責人Ian Lomas形容這是一條「紅線」(Red-thread),不僅在物理上創造了樓層間的流動與連結,更在精神上統一了兩個校區的品牌識別。紅色樓梯如同一種空間裝置,將NAB的企業精神具象化,讓員工無論身處何地,都能感受到歸屬感與一致的價值觀。
兩個項目的落成,標誌著NAB與Woods Bagot長達十多年的合作關係達到了一個新的高峰。在辦公室價值備受質疑的後疫情時代,這種基於深刻理解與互信的夥伴關係,催生出了極具前瞻性的解決方案。正如Stanaway所言,唯有當客戶與設計團隊之間存在著獨特且互惠的對話,才能在同時間交付兩個如此高水準且性格鮮明的作品,這無疑是當代職場設計領域中一次難能可貴的實踐。









建築圖





作品資訊
作品名稱:NAB 3 Parramatta Square & NAB 2 Carrington St. Offices
作品位置:澳洲 Parramatta, Australia
作品類型:室內設計、辦公大樓、澳洲建築、辦公室、商業建築
業主:National Australia Bank
設計單位:Woods Bagot
竣工:2022年
攝影:Nicole England, Trevor Mein
專案團隊:Lisa James, Adriana Pelle, Nik Karalis, Amanda Stanaway, Domenic Alvaro, Ian Lomas, Petra Bonamy, Mazdak Goudarzi, Chris Savva, John Norman, Alissandra Johnston, Tershia Habbitts, Leonie Weiss, Holly Whyatt, Audrey Marquant, Julia Solomon, Chris Field, John Caldwell
營造廠:BUILT
景觀設計:360 Degrees
結構工程師:BG&E
照明設計:NDYLIGHT, NDY Light
專案管理:Savills Project Management
機電工程:NDY
聲學顧問:Stantec
永續設計:NDY
交通工程:Arup
工料測量:WT Partnership