納博訥的新門戶:羅馬古物與公眾空間
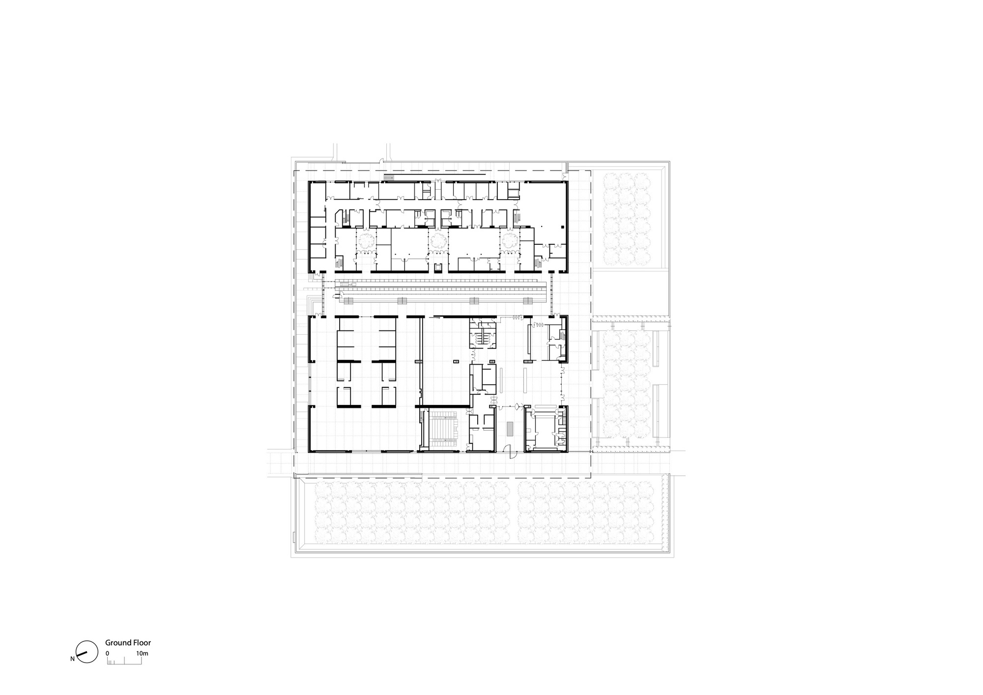
納博訥羅馬文物博物館(Narbo Via Museum)在法國卡羅爾・德爾加(Carole Delga)的見證下正式啟用,這座由英國建築師事務所 Foster + Partners 設計與工程統籌的設施,成為城市入口處毗鄰羅賓運河(Canal de la Robine)的重要地標。博物館高架於基座之上,藉此傳達嚴謹的公共與建築紀念性,如同向歷史致敬的姿態。館內規劃包羅萬象,涵蓋了常設與臨時展廳、多媒體教育中心、演講廳、餐廳及書店,以及重要的文物研究、修復與倉儲設施,體現了對文化資產全方位的維護與活化。




石刻牆:文物修復與公眾的中介
博物館的核心亮點,是一座名為「石刻牆」(Lapidary Wall)的裝置。這座牆位於博物館的心臟地帶,形成一處天然的邊界,將公眾展廳與相對私密的文物修復空間隔離開來。參觀者可以透過這面石頭與光線交織而成的馬賽克牆,一窺考古學家與研究人員的日常工作,將原本幕後的修復過程轉化為主動學習的教材。石刻牆具備高度彈性的展示框架,讓牆上的浮雕可以輕鬆地重新配置,成為隨時變動的教學工具。這種設計不僅解決了大量羅馬時代墓碑的存儲問題,更巧妙地將學術研究引入公眾視野。




羅馬技術啟發:地下冷空氣的永續策略
博物館的環保策略深謀遠慮,受到古羅馬技術的啟發,將大部分設備與服務系統置於地下空間。這種設計類似於羅馬時代的被動式降溫機制,能夠有效地將涼爽空氣以低速、低角度推向室內,從而只需要調節較小體積的空氣,便能維持舒適環境。更進一步來說,由高天花板構成的寬闊空間形成了熱飛輪效應(thermal flywheel effect)。透過混凝土屋頂提供的熱質量(thermal mass),自然地將溫暖空氣向上推動並排出,最大限度地減少了對機械空調的依賴,是一項事半功倍的永續設計。





結構的與極簡:混凝土屋簷下的穩固
博物館的空間在一體成形的混凝土屋頂棚蓋下整合,提供了重要的熱質量,也是整體環境策略的重要環節。屋簷高於天窗之上,其間點綴著採光井,並延伸出環繞博物館步道的涼棚。在結構回應上,建築師秉持返璞歸真的理念,採用實心、隔熱且承重的牆體。這些牆體支撐著屋頂,主要的承重元件是鋼筋混凝土雙T樑,雙T樑跨越到一個鋼筋混凝土樑網格上,這種系統以極簡的原則確保了結構的堅固與施工的效率。




乾混夯實:呼應考古地層的材質美學
建築的立面材質體現了極致的誠實性,其彩色混凝土牆的表現手法便是最好的佐證。設計師採用乾混混凝土在現場進行夯實,由此產生的分層效果,不僅讓人聯想起博物館的考古本質,也與古羅馬的混凝土工法的固有外觀遙相呼應。這種對材料的處理,讓建築體本身成為了一部凝固的歷史。同時,建築師也堅持極簡原則,例如外圍的玻璃窗便是直接螺栓固定在承重混凝土牆上,體現了當代工程對材料本質的尊重與信任。




運河畔的寧靜與公眾連接
景觀規劃致力於強化與羅賓運河(Canal de la Robine)的連結,創造一處寧靜的自然環境。設計靈感汲取自講求幾何秩序的法國古典園林(formal French gardens)和注重內向社交的羅馬式庭院。戶外空間配置了可供露天表演與活動的圓形劇場。
最關鍵的是,新建的坡道將博物館與運河旁的拖船道(towpath)連接起來,為步行者創造一條靜謐的通道直達市中心。四平八穩的園林佈局,不僅為參觀者提供了休憩場所,也將博物館納入城市慢行系統,使其成為納博訥文化與休閒網絡上的核心節點。








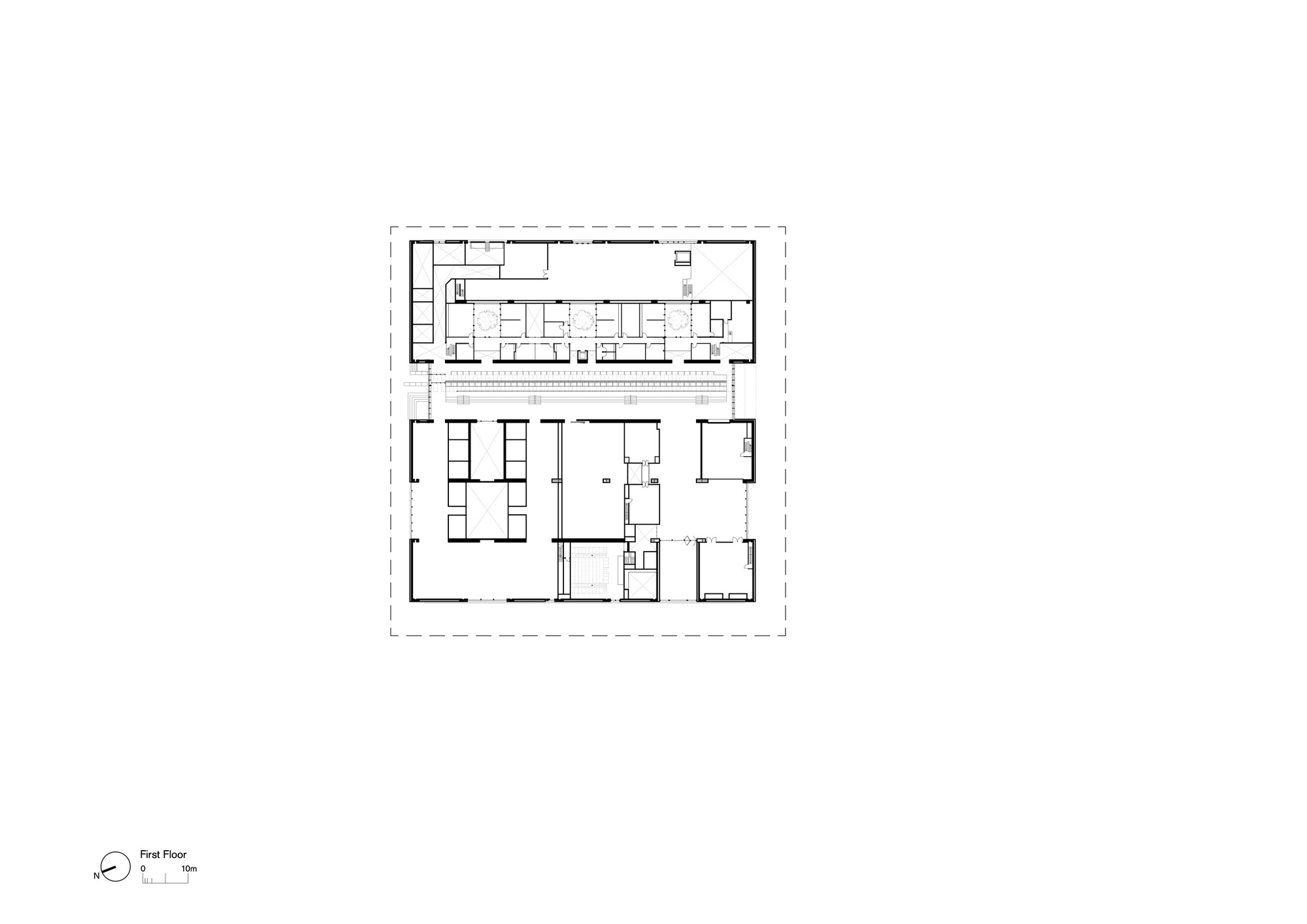
建築圖









作品資訊
作品名稱:Narbo Via Museum
作品位置:法國 納博訥, Narbonne, France
作品類型:博物館、文化設施、法國建築
設計單位:Foster + Partners
總樓地板面積:9689 平方米
竣工:2020年
攝影:Nigel Young, Philippe Chancel