蘇聯粗獷主義遺產的甦醒與批判性再適用
位於喬治亞首都第比利斯(Tbilisi)的舊電報大樓,是一座承載著蘇聯時期記憶的粗獷主義(Brutalist)建築地標。這座由拉多·阿列克西-梅什基什維利(Lado Alexi-Meskhishvili)與泰穆拉兹·米卡沙維澤(Teimuraz Mikashavidze)設計的建築,曾是城市的通信樞紐與公共生活象徵。
在荒廢多年後,如恩設計研究室(Neri&Hu Design and Research Office)接下了改造重任。面對這座歷史遺產,郭錫恩與胡如珊並未選擇傳統的修復路徑,而是採取了「批判性再適用」(Critical Readaptation)的策略。
受到斯維特拉娜·博伊姆(Svetlana Boym)「反思型懷舊」(Reflective Nostalgia)理念的啟發,設計團隊拒絕將過去理想化,而是珍視建築本身的殘缺與歲月痕跡。他們保留了粗獷的混凝土結構,讓新植入的當代元素與之形成強烈對比與對話,而非掩蓋歷史的裂痕,從而讓建築的記憶以一種真實且詩意的方式延續。








城市滲透性與室內公共空間的重塑
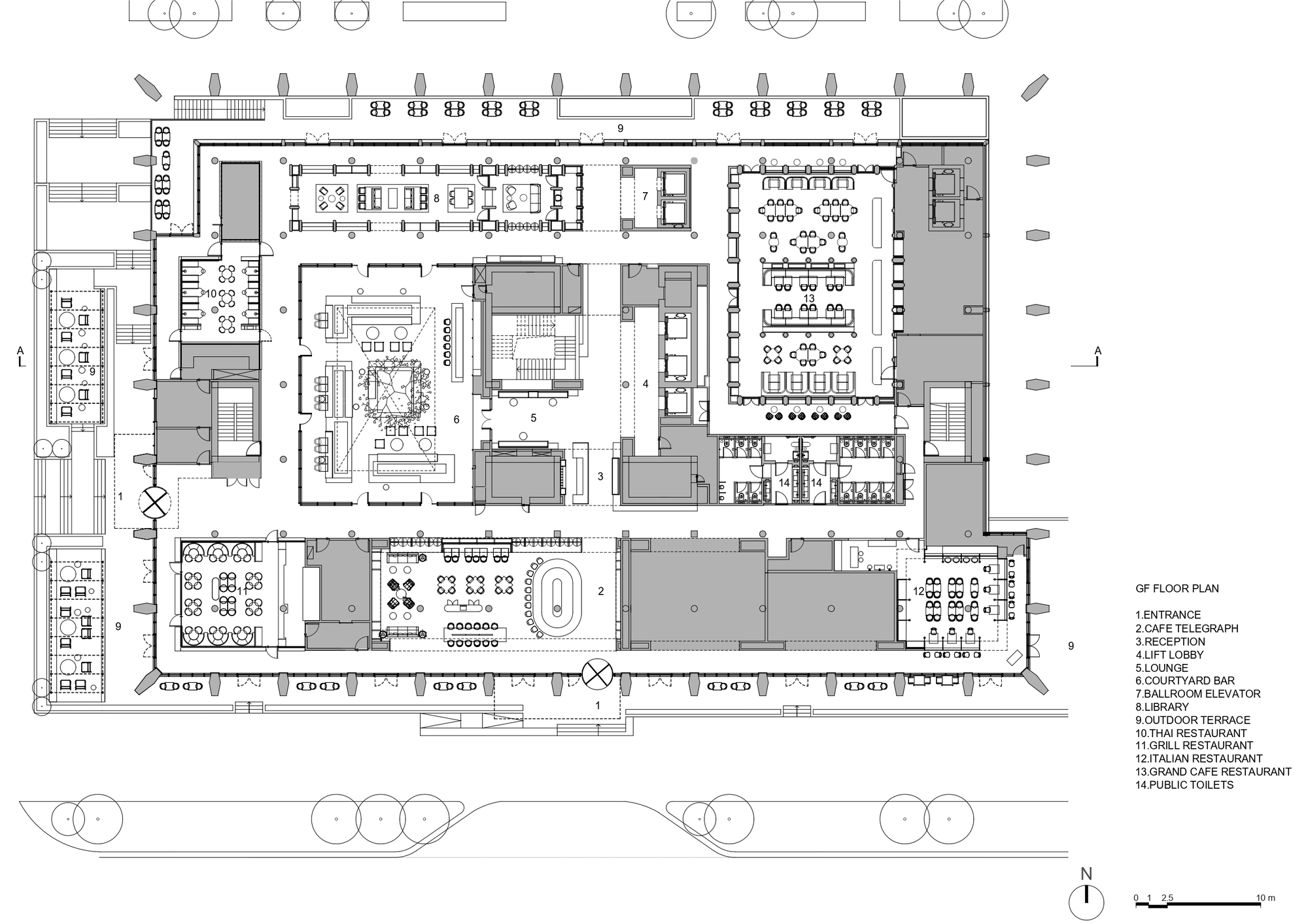
為了重塑建築昔日作為社區聚集點的精神,如恩設計研究室將首層構想為城市公共空間的延伸。設計團隊引入了理查德·森內(Richard Sennett)的「城市滲透性」(Urban Porosity)概念,刻意模糊了室內與室外、公共與私密的界線。
一系列交織的廊道彷彿第比利斯錯綜複雜的街巷,將餐廳、圖書館等公共設施串聯起來,最終匯聚於中央庭院。這個室內的城市廣場不僅呼應了喬治亞傳統住宅中的共用陽台特色,更將「間」(Threshold)轉化為自發性交流的平台。激活建築作為集會場所的傳統,讓封閉的建築量體重新對城市敞開懷抱,孕育出豐富的社會互動,成為連結過去與現在的活力節點。





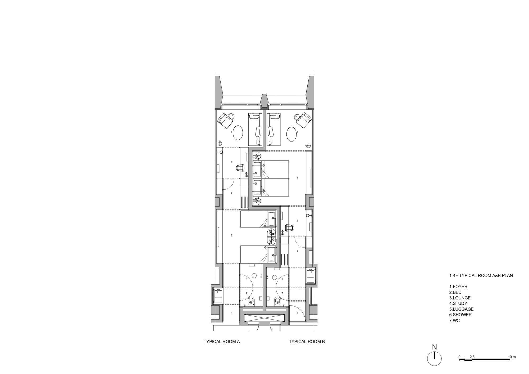
線性秩序中的絲路致敬與旅者的精神庇護
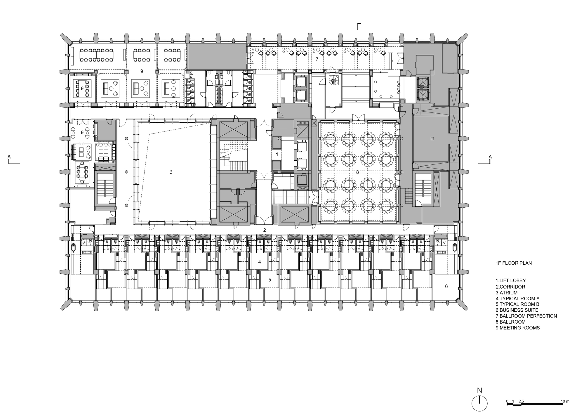
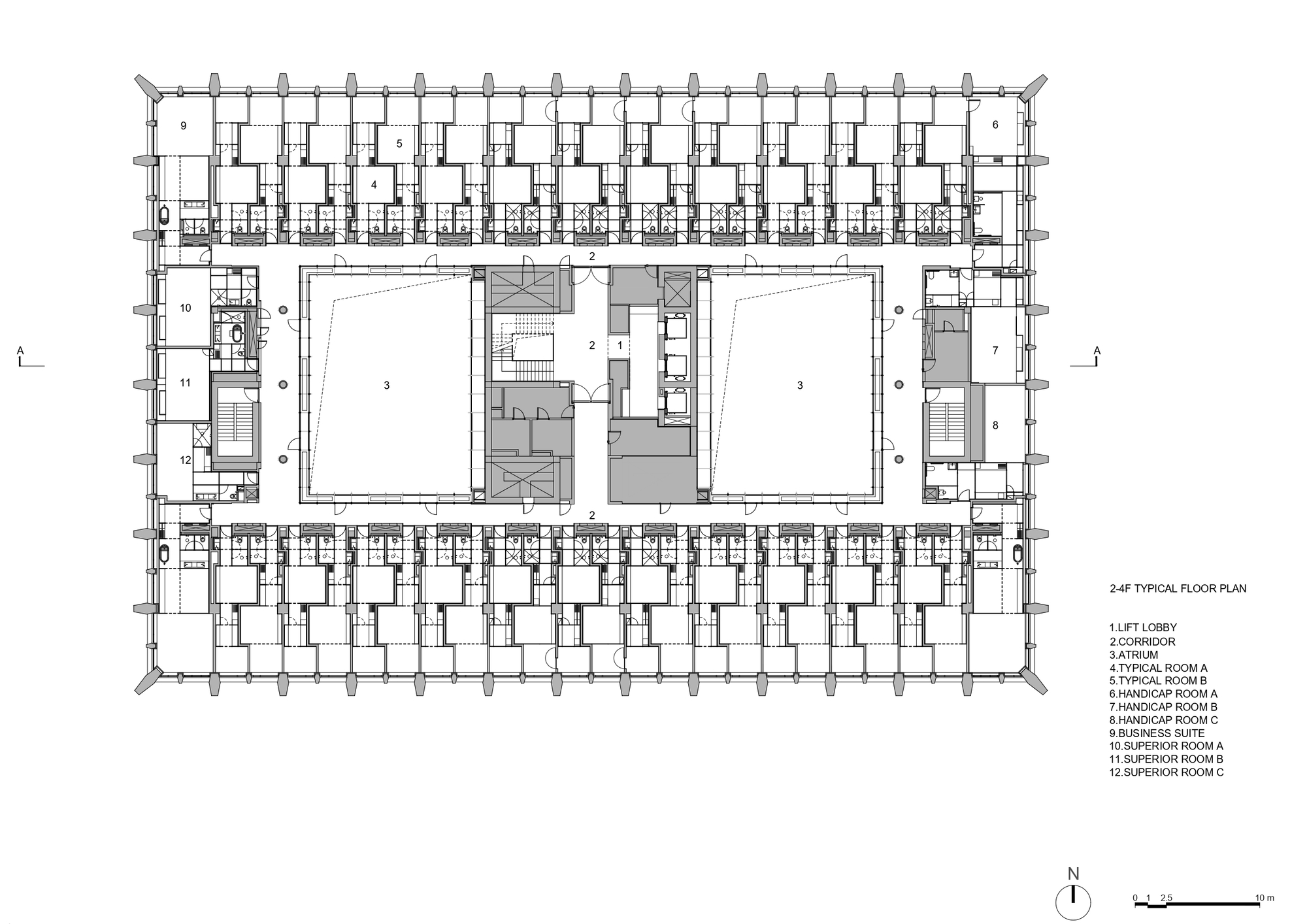
在上層客房的規劃中,設計團隊遵循原有的結構網格,創造出一種獨特的空間體驗。從入口延伸至窗邊休憩區的佈局呈現出強烈的線性秩序,營造種類似火車車廂的流動感,既是對建築結構的尊重,也是對歷史上絲綢之路(Silk Road)的致敬。
這種空間隱喻與美國作家保羅·鮑爾斯(Paul Bowles)在《遮蔽的天空》(The Sheltering Sky)一書裡,對於「旅人」與「觀光客」的文學區分產生了深度共鳴。
觀光客通常在數週或數月後便匆匆返家,而旅人既不屬於某處,也不屬於另一處,他們緩緩移動,歷經數年光陰,從地球的這片土地遷徙至那片疆域。事實上,在那些曾居住過的地方中,他恐怕難以確切指出哪處曾令他感到最自在。_Paul Bowles, The Sheltering Sky
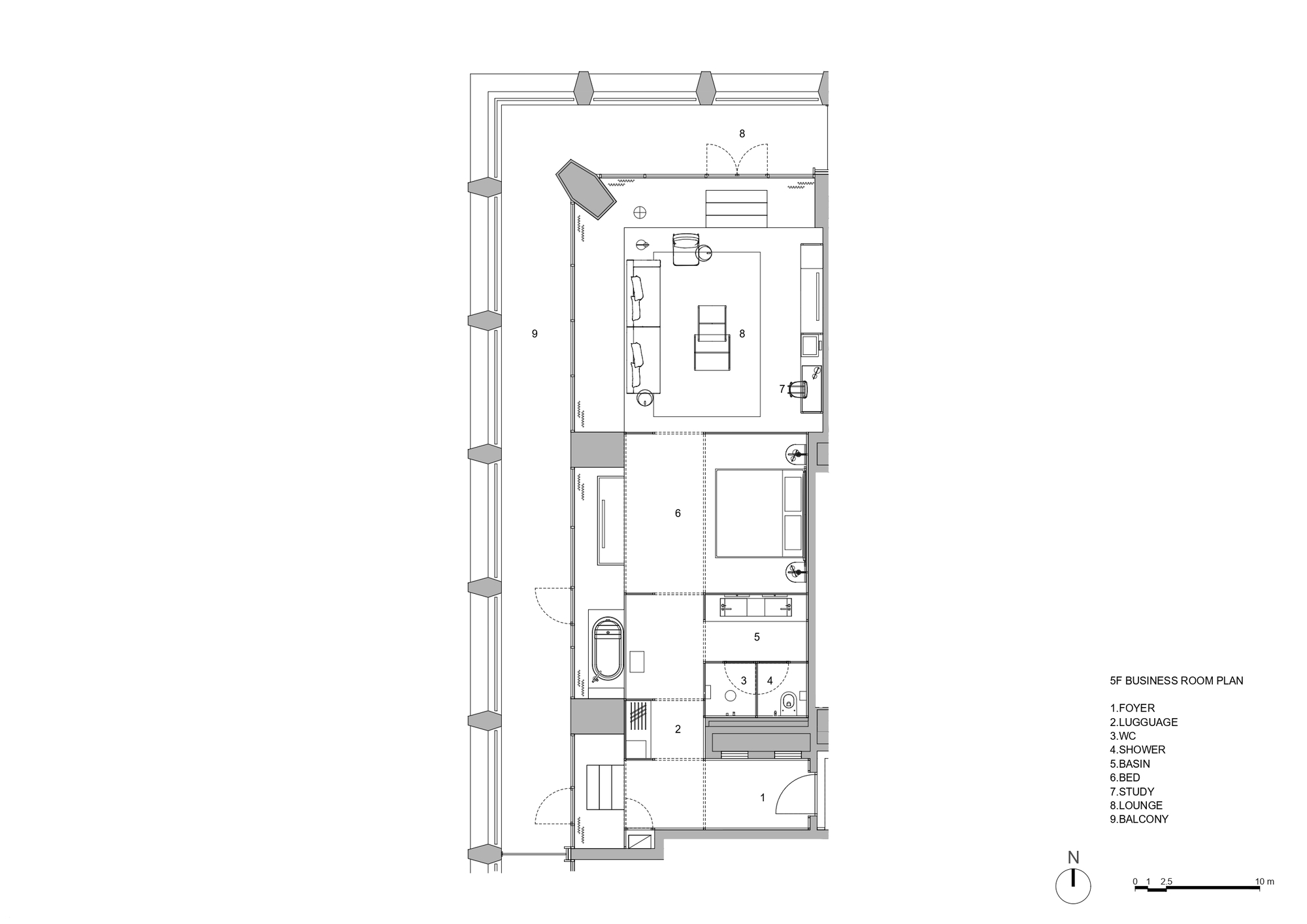
設計團隊試圖為那些尋求與在地建立深刻連結的「旅人」打造一處沈思與休憩的空間,將旅程本身定義為目的地。入住這裡不再僅是短暫的停留,而是一段關於移動、探索與內在對話的敘事,讓昔日的通信功能在現代旅行儀式中獲得了精神上的轉譯。









動態保護下的文化旅遊新範式
迢音·電報酒店的落成,標誌著一種超越單純觀光的文化旅遊新範式。它拒絕將粗獷主義地標凍結為靜止的歷史標本,而是透過動態保護(Dynamic Preservation)的理念,為之注入當代生活的活力。
訪客在這裡不僅是歷史的旁觀者,更是第比利斯市民生活的臨時參與者。他們可以在保留了物質紋理的空間中,深入感受歷史的層積與社會意義。如恩的介入,讓這座曾經沈默的電報大樓重新發聲,成為關於社區、記憶與流動的多層次敘事空間,延續著第比利斯的城市精神,證明了舊建築改造不僅是物理空間的修復,更是集體記憶與文化認同的重建工程。
























作品資訊
作品名稱:Telegraph Hotel
作品位置:喬治亞 Tbilisi, Georgia
作品類型:酒店、旅宿、室內設計、舊建築改造、喬治亞建築
設計單位:如恩設計研究室 (Neri&Hu Design and Research Office)
總樓地板面積:30608 平方米
竣工:2025年
攝影:Pedro Pegenaute, Silk Road Group
主持建築師:郭錫恩、胡如珊
主持協理總監:Federico Saralvo
室內設計協理總監:Laurent Tek
產品設計資深協理:Ath Supornchai
設計團隊:Dania Flores, Ambesh Suthar, Bernardo Tagliani, Lucia Esparza, 陳宸, 夏嘉懿, 楊元愷, 王鈺璇, 劉洋, 李宛如, 吳震海
在地建築師:Archidea Architecture
外牆顧問:Meinhardt Facade Technology
照明概念:The Flaming Beacon Berlin Studio
照明設計:Meinhardt Light Studio
廚房顧問:The Airedale Group
機械系統:Dinamik Proje
電氣系統:HBTBIM Engineering Services Co.
結構工程:Progresi L.T.D.
營造廠:D&T Group
相關廠商:& Tradition, Artemide, Cassina, Classicon, Dela Espada, Flos, Karakter, Parachilna, Stellarworks, Viabizzuno, Vitra, Geberit Flushing Systems