把結構當作裝潢:廣島KITONOKO辦公室展現純粹的木造美學
日本廣島一棟名為 KITONOKO 的社區型複合辦公建築,由建築團隊 ure LLC 操刀設計,總樓地板面積為 654 平方公尺,位在充滿大型賣場與公路的郊區商業區,周圍大多是為開車族設計的環境。設計團隊希望在這裡創造一個更具人情味、開放且親切的空間,讓在地居民與員工能自然地在此交流。
辦公室的業主 NIKKO HOME 是一家深耕日本木造住宅文化的營造公司。一開始,圖紙原本規劃使用鋼筋混凝土與鋼構,並在一樓設置挑空柱列以增加停車位。
但因為造價太高,團隊必須重新思考方向。這個限制反而成為改變的契機,他們決定改用日本傳統的柱樑木構造系統。如此一來,營造公司就能直接派出自家工班來負責施工,除節省經費,更發揮他們最擅長的木造技術。
特別的是,KITONOKO 並沒有使用大型工程木材來形塑寬闊空間,而是刻意選用一般蓋小住宅用的標準尺寸木材。要在這樣的條件下蓋出一棟中型公共建築,是非常大的挑戰。設計團隊仔細安排結構協調與尺寸控制,讓建築在符合傳統木框架邏輯的前提下,依然能創造出寬敞明亮的感覺。
設計的另一個重點是將結構與裝修合而為一。建築師沒有用天花板或牆板把木頭骨架遮起來,而是讓原本的木造框架直接外露,變成室內表面。大家走進去,可以直接看到柱子、樑木與接頭的美感。
空間規劃上,這裡沒有一間間封閉的房間,而是讓動線與公共空間相互連通。陽光從木頭縫隙灑進來,帶給人一種像是在家般的溫暖感受。






























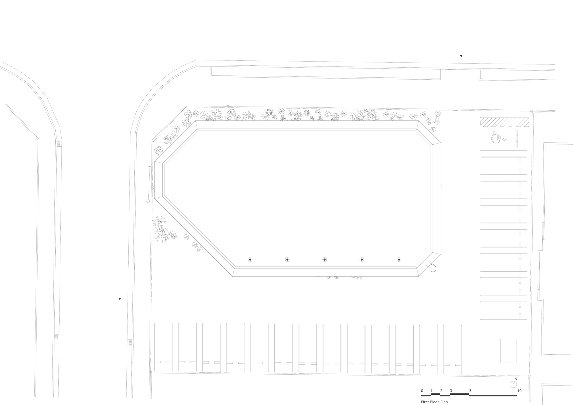
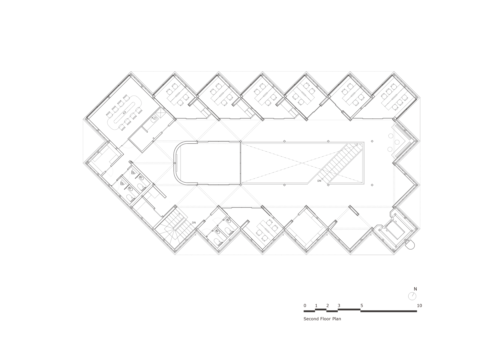
建築圖




