One Thousand Museum 是Zaha Hadid過世前,設計完成的最大的住宅設計作品:一幢 62 層的奢華公寓,名為One Thousand Museum(千年博物館)
設計開始於2013年,建於 2016 年,其中包含了 83 套住宅單元,這裡面有 1 套兩層樓的複式公寓,4 套連體別墅,8 套整層公寓和 70 套半層住宅單元。
公寓大樓位於美國邁阿密,俯瞰著由赫爾佐格德梅隆設計的佩雷斯藝術博物館。
One Thousand Museum 的建成,標誌它成為了邁阿密建造豪華住宅公寓的典範。
這棟摩天大廈在外觀上採用了弧線形,並保持了大平面的特點,室內除了核心筒之外幾乎沒有立柱,為每個公寓創建了造型獨特的陽台空間。
公共空間是由Zaha Hadid設計的,其中包括了大樓的大堂和位於 61 層上面的雙層水上運動中心和一個空中酒廊。
這棟建築有休息室、SPA 水中心與室內游泳池、和生活方式中心和溫泉。還有私人銀行質量保險庫、多媒體劇場和私人餐廳。
大樓甚至還將提供一個私人直升機停機坪。這是目前在佛羅里達州的私人住宅摩天大樓中,唯一的停機坪。
大堂就是一個震撼人心的入口,純白色的幾何流線造型結合漫反射的光源,一副極具未來感的模樣。
室內設計方面也由Zaha Hadid事務所完成,富有鮮明的風格特徵。
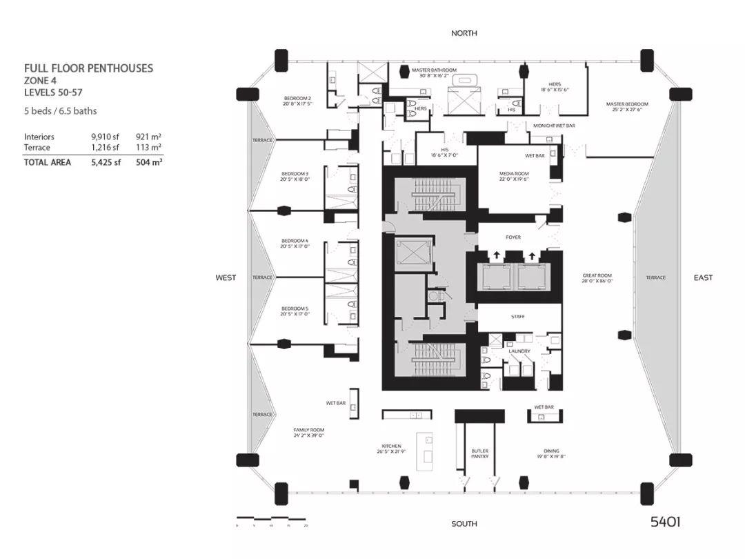
大廈的10 到 14 樓將包括聯排別墅形式性質的公寓。半層公寓將佔用 15 到 49 層,50-57層為全平層公寓,複式閣樓將位於 58 和 59 層。
戶型圖 ▼
聯排別墅戶型 Townhouse Residences
結構設計由DeSimone Consulting Engineers負責。
外構架圖
預製的外牆構件▽
這些住宅每一個都有不同的陽台空間和視覺景觀。這都是因為外部結構元素的變化。
隨著層高變化,建築的外骨骼成為唯一元素,產生了超大露台的獨特形狀,為每層公寓創建了豐富的室外空間。 
半平層戶型 Half Floor Residences

全平層戶型
Full Floor Residences
樣板房的設計簡潔清新,大開間的室內全部採用淡色系的材質和家居來填充室內空間。
開敞的廚房和整潔的櫥櫃卻有著超強的收納功能。
衛生間有著壯觀的室外景觀,同樣是干濕分離有著超大尺度的佈局。

頂層複式
Duplex Penthouse

頂層公寓的面積為1420平方米,在大廈的頂部空間, 佈置有水上運動中心,藍天休憩廳。

在這裡Zaha Hadid設計了一個多面的金屬牆雕塑,延伸到天花板上的四邊。
地燈照射在折面的金屬材質上,倒映游泳池中的水,形成了寶石般的耀眼光芒。

這棟大樓於2018年初已經封頂,並計畫於 2018 年底交房。到時,我們終於能目睹Zaha Hadid設計的頂級奢華住宅大樓。
