SESC 24 de maio文化中心 概述
建築基地位置
在巴西聖保羅繁華的市中心,在車水馬龍、大樓林立的路口,一座新的建築提供市民豐富的休閒和文化活動去處,分佈在建築的十四個樓層當中。



SESC 24 de Maio文化中心由獲得普利茲克建築獎的 Paulo Mendes Da Rocha 和巴西建築師MMBB Arquitetos共同完成,是巴西非營利性機構SESC的最新計畫,SESC在全國以各式場所供人們學習、接觸、交流,在規劃設計「SESC 24 de Maio」時,Paulo Mendes Da Rocha和MMBB試圖去除大樓許多因為長久使用而累積的不美觀附加物、自行增建等雜項,最大程度地還原建築到其生成時的原始比例。
建築機能及配置

這座巴西建築重新利用了市中心的一個既有結構體,重新打造成大眾的公共空間,可以使用的內容包括屋頂游泳池和地下電影院,建築中的其他設施包括體育設施、圖書館甚至牙科診所。
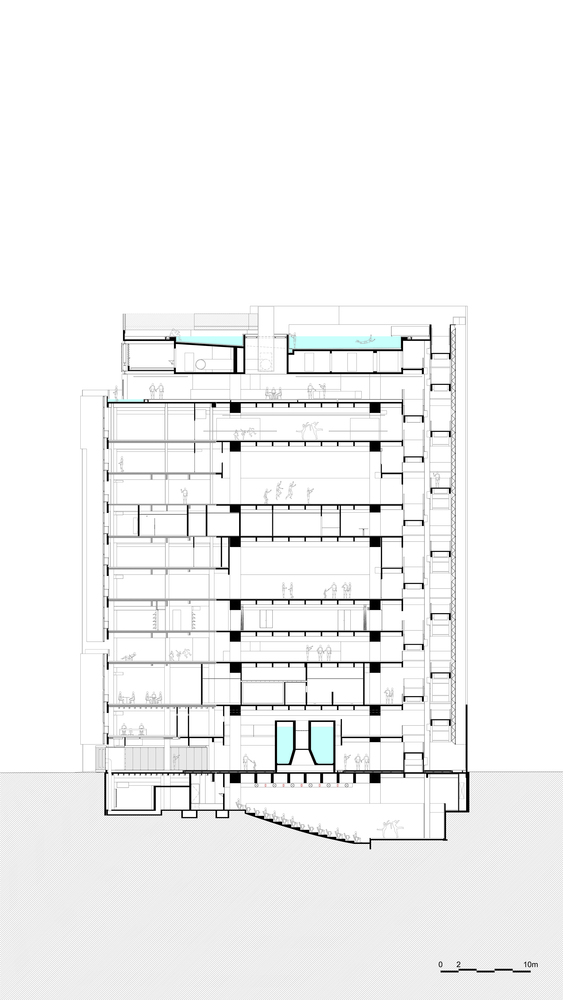
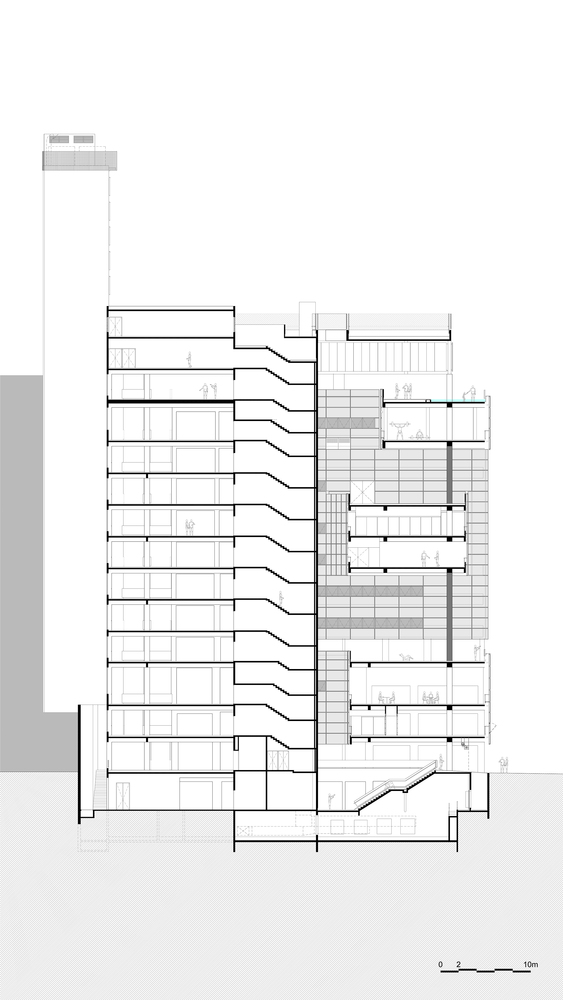
在地面層設置公共廣場,作為城市紋理的延伸,吸引行人進入。在上面樓層,14個樓層之間以坡道連接,這些坡道明確並強化了空間通連,在三樓和四樓分別有餐廳和公共客廳。
接下來的三層樓包含了建築的文化設施,圖書館佔據了一整個樓層,上面是一個展覽廳。下一層是辦公室,其中心有一個空隙,可以看到下面的畫廊空間。在第八層的上方是牙科診所,訪客可以在現場看牙醫。接下來的三層是一連串的體育設施,包括健身房、人工攀岩場和舞蹈教室。


最後,建築的頂部是室外游泳池,而更衣室和更衣設施則在下面一層。提供咖啡和小吃的「游泳池花園」在下面一層,為人們提供遮擋烈日的場所。在地下室,新劇院取代了原來的地下車庫。該建築由玻璃包覆,這不僅為客人提供了城市的外部景觀,而且還將其內部運作與大眾分享。

人們相信,在諸如巴西聖保羅這樣的城市的發展過程中,需要對社會習俗與人們生活方式有著慢慢適應的過程,SESC 24是一棟包括娛樂、文化、公共服務等機能的綜合大樓,改造Mesbla總部大樓,位於聖保羅24 de Maio大道和Dom José de Barros大道的交叉口,該計畫是當代城市建築改造的典型代表作品。
活化城市,改造設施及機能,建築師策略
在該計畫中,建築師需要儘量地運用原有設施,但這些設施與改造機能仍然存在著差異,同時為了儘可能地活化城市的部分區域,建築師構思了如下策略:
- 首先對現有建築地面層的一片方形區域進行改造。「SSEC廣場」擁有天然的展覽特性,同時將其與周邊的區域相連接。
- 其次是將原有的地下停車場改造成咖啡館與電影院,並且直接通向24 de Maio大道。
- 接著是設計全新的垂直交通系統,在滿足工程規範要求的前提下,這個交通系統需要具有連通性,藉由坡道讓各個空間得以連接,讓城市各個公共空間能夠與該作品的機能場所以有趣的方式相互貫通。
- 對餐廳、公共場所、廣場空間、SESC行政管理區域進行機能劃分。

- 在廣場上設置一些機能場所,並且在建築立面、挑高花園之中不設置扶手欄杆。
- 結合運用鑲木地板和挑高空間,並且充分利用機能區域各個部分的可展示場所,提升空間品質,避免過於單調。
- 在屋頂設置「太陽廣場」(Square of the Sun)和游泳池。
- 藉由建築空間的全新配置讓立面系統可視化,讓室外的人們可以看到內部的活動,同時也向城市展現建築的全新面貌。
- 在建築中的機能空間中運用集中隔離技術與機械設施,另外結合Dom José de Barros大道的原有廢棄服務建築,進而形成這座集合了服務機能、機械設施的塔樓。
從施工技術和設備角度,建築師所構思措施
這些目標實際上表達了該計畫特性,同時也促進了新空間的誕生,為了實現這些策略,建築師從施工技術和設備的角度,構思了以下措施:
- 將現有建築的部分空間拆除,但不破壞原有結構,其中包括Mesbla總部大樓的大廳,這個空間能夠改造為建築的中廳。
- 在不破壞舊結構的前提下建造全新的結構,新結構藉由四個穿過中廳的主要支柱支撐,其上部是大型廳堂、游泳池,以及屋頂。
- 既有停車場局部將改造為電影院及其附屬設施,這項改造結合考慮現有基礎和周邊建築。
- 為挑高樓層和開放交通樞紐設置煙霧控制機械系統,同時該系統也能夠覆蓋到建築的各個樓層,進而滿足消防法規,滿足建築的安全需求。
結語
SESC 24展示了城市未來發展的可能性,同時也是對於建築位於聖保羅中心地段特殊性的提升,因為在這裡還有包括當地重要建築像是 Viaduto do Chá、Municipal Theater、Barão de Itapetininga、São João Avenue、Praça da República等,以及都市的主要建街道,與之相互連結相容,是這件作品更為重要的目標。
SESC 24 de maio文化中心 作品資訊
作品名稱:SESC 24 de maio文化中心
作品位置: R. 24 de Maio, 109 – República, São Paulo – SP, 01041-001巴西
類型:巴西建築、複合設施、綜合大樓、公共建築、公共空間
建築設計:Paulo Mendes Da Rocha
協同設計:Fernando Mello Franco, Marta Moreira, Milton Braga
設計團隊:Eduardo Ferroni, Márcia Terazaki, Marina Sabino, Marina Acayaba, Jacques Rordorf, Thiago Rolemberg, Rodrigo Brancher, Ana Carina Costa, Adriano Bergemann, Cecília Góes, Giovanni Meirelles, Maria Joao Figueiredo, Gleuson Pinheiro, Guilherme Pianca, Martin Benavidez, Rafael Monteiro, Lucas Vieira E Julia Marques
結構顧問:Kurkdjian E Fruchtengarten Engineers Associates
基礎顧問:Mag Projesolos Engineers Associates
機電顧問: Phe Projetos Hidráulicos E Elétricos
空調顧問: Jmt Projetos
聲學顧問:Nepomuceno Acoustica E Sônica
場景: J.C. Serroni
聲音: Alexandre Sresnewsky
照明:Espaço Luz
舒適:Daltrini E Granado Arquitetura E Conforto Ambiental
物流: Marciano Engenharia
財產監管: Si2 – Soluções Inteligentes
電梯顧問: Empro Engenharia de Produção
牙醫: Terra Arquitetura
廚房:Núcleo Ora
Waterproofing: Proassp Acessória E Projetos
混凝土地面和排水系統: Lpe Engenharia E Consultoria
鋼構造:Aec – Consultores
Sesc承包商:Eng. Amilcar João Gay Filho, Eng. Humberto Bigaton E Eng. Alberto Costa Souza Neto
SESC 24 de Maio文化中心 相片























屋頂游泳池下一層的餐飲休憩空間
體育設施
屋頂游泳池
地面層公共空間
屋頂下一層的休憩空間
屋頂下一層的休憩空間
建築外觀
建築外觀
展覽空間

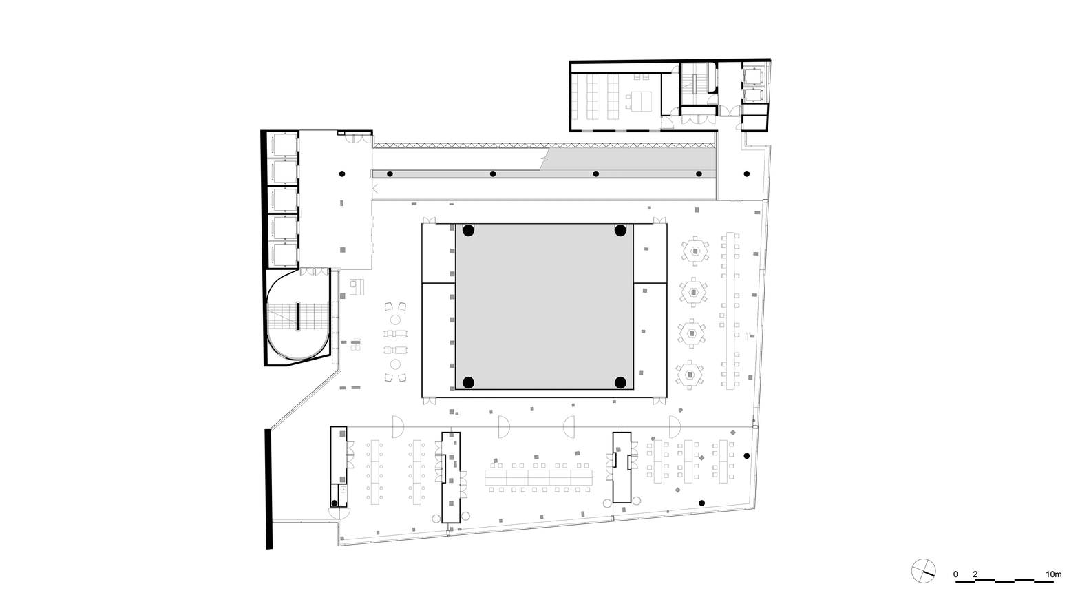
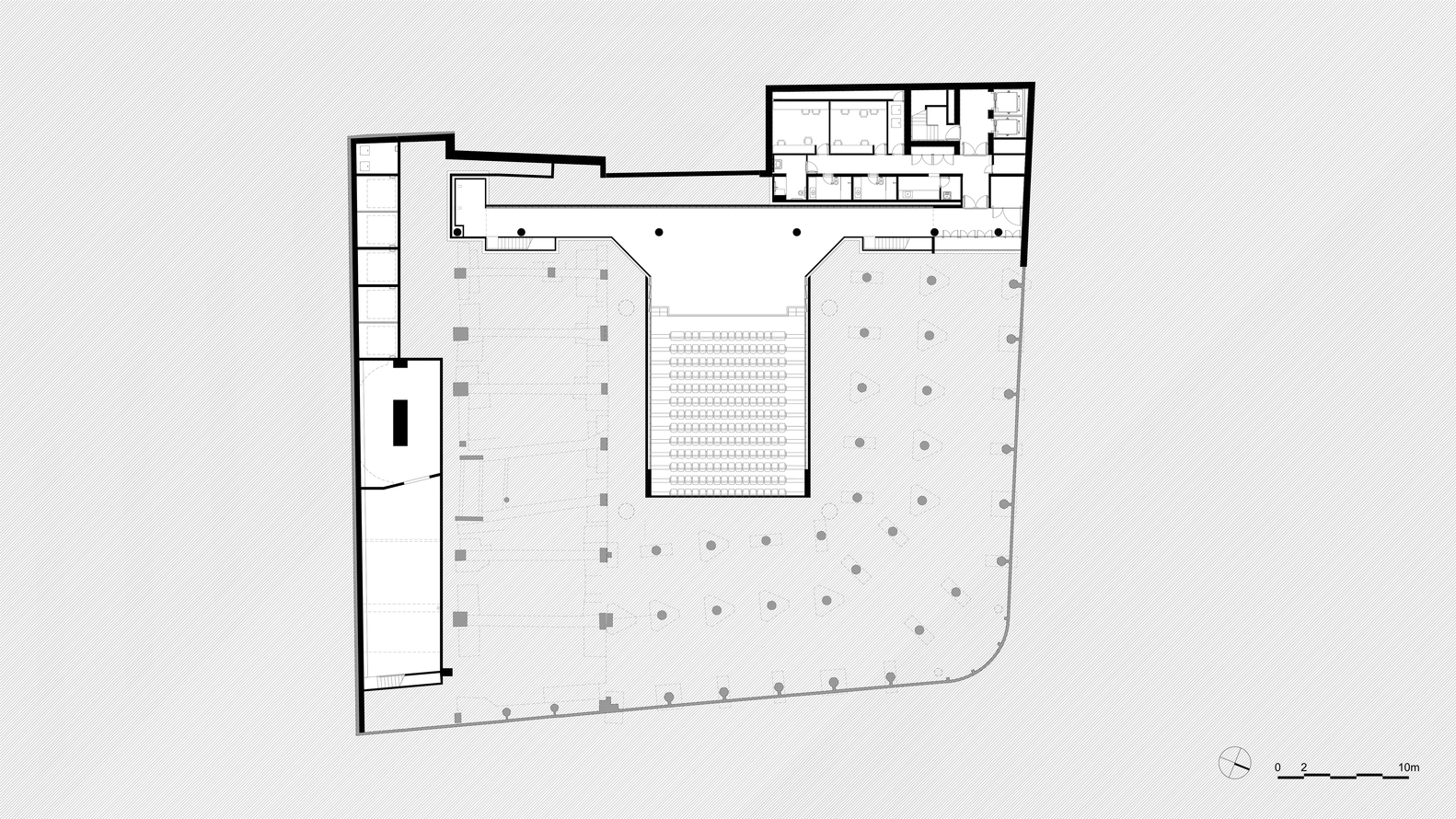
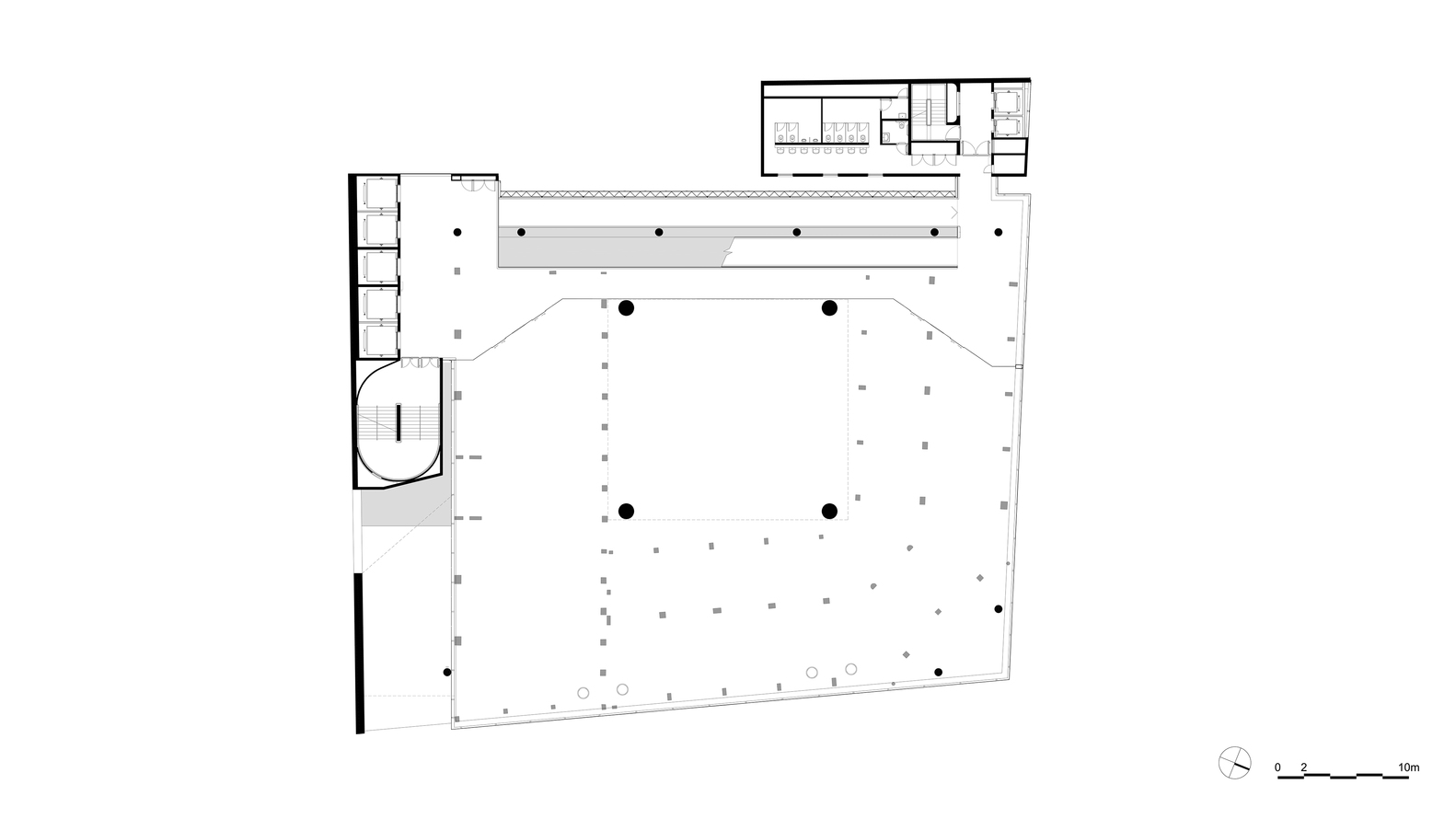
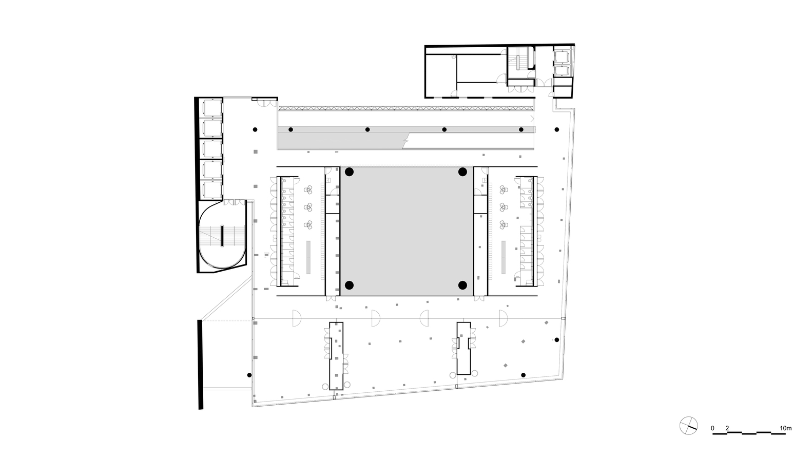
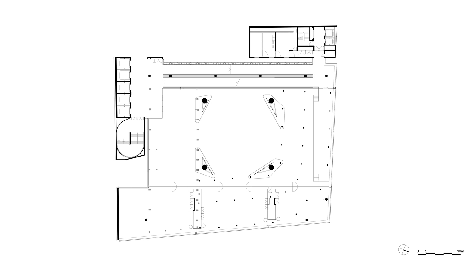
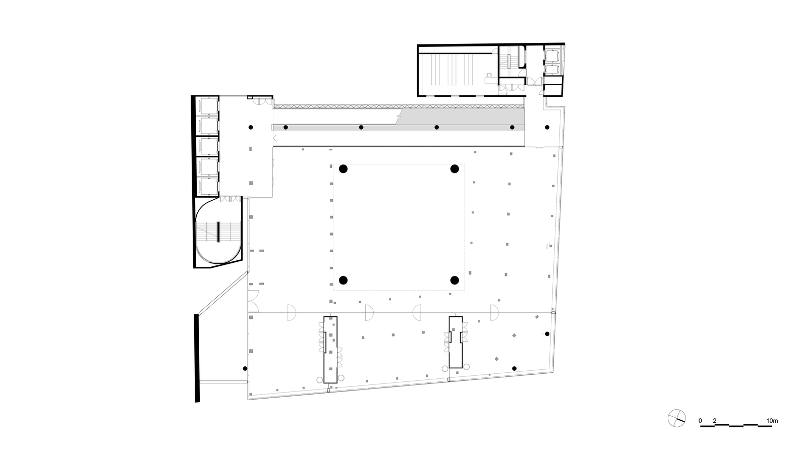
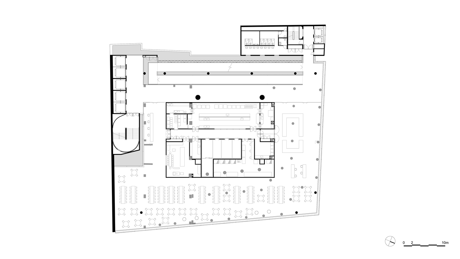
SESC 24 de maio文化中心 建築圖


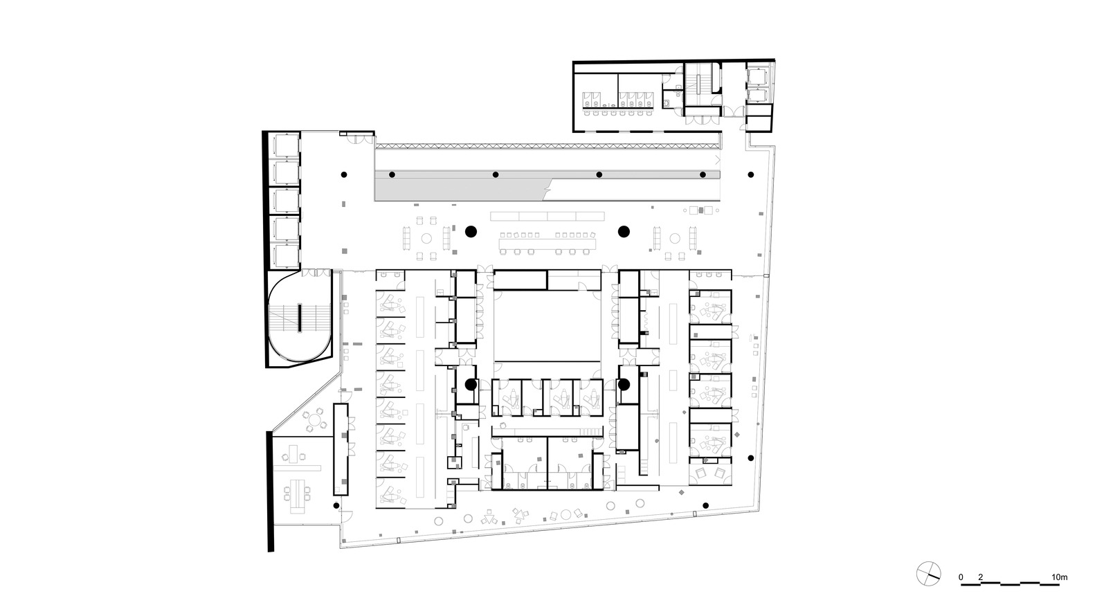
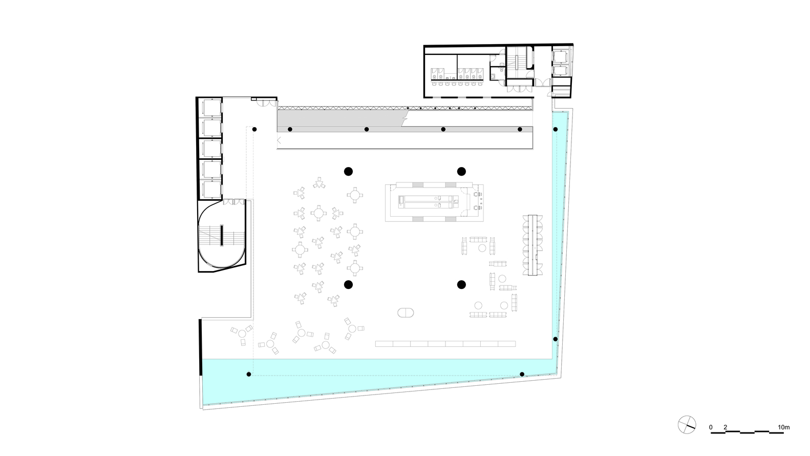
平面圖
平面圖
平面圖
各樓層空間機能示意剖面圖 Diagram
座位設計圖
