回歸自然與傳統:陝西咸陽莪子村紅磚房,以現代建築工法,構築與環境共存的綠色民居,並結合當地工藝與人文

0
969

西安建築科技大學團隊在中國陝西省咸陽市莪子村,設計了一棟紅磚房。建築延續了當地傳統民居的空間格局及坡屋頂,並運用了現代建築的通風、採光及節能設計,以及污水處理等技術。此外,該建築也運用當地匠人及傳統工藝,並使用舊木料,讓建築與環境及文化取得平衡。

陝西莪子村的建築實驗:在傳統與現代間找尋平衡

在陝西省咸陽市莪子村,一棟由西安建築科技大學建築設計研究院團隊所設計的紅磚房,為現代鄉村民居的發展,提出一項兼顧環境、文化以及居住品質的解答。該建築以現代的建築設計,融入當地的傳統建築文化,以及綠色建築的概念,為鄉村住宅的開發及建設,帶來新的可能性。

而開發團隊在設計上,也做了一些取捨,藉由現代的設計語彙,為該建築注入新意。該基地位於村落之中,基地面積約為315平方公尺,基地形狀南北長、東西窄,呈現一個長條的矩形。基地的南面,面向村裡的主要道路以及大片農田。

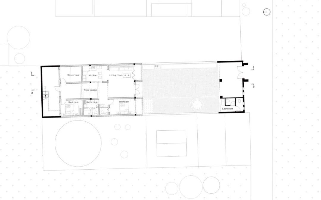
空間規劃與機能配置:現代生活的在地詮釋

這棟磚造建築的空間格局,延續了當地傳統民居「窄廳方屋」的型態,以及其特有的坡屋頂形式。透過這樣的設計,建築師們嘗試在現代建築的框架下,融入在地的文化脈絡,並建立起居民對於在地文化的情感及認同。建築物的主入口,位於基地東南角的門房,此為一棟一層樓的建築,內部設有衛生間、儲藏室等輔助空間。

主要的居住空間,則位於後方的兩層樓主屋。主屋採用了三開間的格局,以及一脊兩坡的屋頂形式,並以中央的門廳作為中軸,將主要的居住空間,例如:臥室、起居室等,安排於南側,以爭取較佳的日照。而廚房、餐廳、衛浴等空間,則集中在主屋的中間部分。主屋中央的挑高中庭,則設置了一座室內廊,連繫二樓的空間。設計團隊利用主屋和門房,圍塑出主要的戶外院落空間,這個空間可以用來曬小麥、玉米等農作物,也能讓居民在此活動。

生態、環境與住戶的生活品質息息相關,作品注重現代鄉村民居綠色宜居品質提升技術的研究與應用,著重考慮當地風、光、水等自然因素對民居的影響,應對四季氣候的變化,運用通風、採光、保溫、隔熱、雨污分離等被動式設計策略,提升室內環境的舒適性。

設計策略:與自然環境共存的綠建築

這棟建築物,對於環境的永續發展以及居住的品質,也多有著墨。設計團隊以被動式設計(passive design)的手法,針對當地的氣候條件,以及基地周遭的自然環境,做出因地制宜的規劃,進而營造出舒適、節能的居住環境。

在通風方面,除了利用南北向的開窗,創造出通風路徑之外,也在廚房、中庭及衛浴的上方,設置了三處挑空的空間,藉此強化空氣的對流,改善室內的空氣品質。在採光方面,除了在南向設置大面積的開窗及高側窗外,也在前述的三個挑空空間設置天窗,將自然光線引入室內。而在隔熱及保溫方面,則仿效傳統民居的閣樓設計,將二樓的空間作為調節溫度的緩衝層。此外,也在南向設置了「被動式陽光間(passive solar room)」,利用其空間特性,來調節主要生活空間的溫度變化。

 

在地工藝的傳承與創新:構築具有文化溫度的居住空間

這棟建築的另外一個特色,是大量採用了當地的材料及工法。設計團隊與當地的匠師合作,以紅磚作為主要的建築材料,並且運用了十字形、梅花樁、人字形等不同的砌築方式,以及條形密鋪與灌沙法、濕接縫法等鋪面工法,讓建築物的外觀及鋪面,分別以磚牆、石板呈現出豐富的層次變化。

此外,房屋的木構屋架,採用了舊屋拆除後的老木料,這些舊木料除了具有環保的意義之外,也讓這棟建築物,與當地的歷史及文化產生了連結。為了加強紅磚的耐久性,設計團隊也使用了現代的工法,例如:在紅磚牆的外層塗刷真石漆面漆,以防止雨水侵蝕及反鹼的現象。此外,為了避免冬季雨雪造成的凍融現象,損害到磚塊,也在磚砌院牆及屋脊的頂部,塗上水泥砂漿,以作為保護。設計團隊在傳統及現代工法間,做了權衡及取捨,也為傳統建築工藝的保存及發展,寫下新的篇章。

 

通風原理圖DIAGRAM:窄廳南北貫通,利於形成風壓通風;平面居中的廚房、窄廳、洗手間上空設定三組挑高空間利於形成熱壓通風,加強空氣流通,改善大進深民居室內空氣品質

 

 

 

 

採光:正房南向設定大面積開窗和高側窗,結合屋頂挑簷,增加採光面積、提高室內照度同時可避免夏季的太陽輻射;居中的廚房、窄廳、洗手間上空設定的三組挑高空間,可利用天窗自然採光,改善了傳統民居此類服務機能黑空間的問題。

採光原理圖DIAGRAM
採光原理圖DIAGRAM

 

保溫與隔熱:延續傳統民居二層閣樓(悶頂)的空間形式,四季可做儲藏和自由空間,冬夏兩季可做氣候緩衝層,對一層臥室、起居廳等主要生活活動空間發揮保溫隔熱作用;一層南向被動式陽光間對毗鄰臥室、起居廳的溫度變化亦發揮緩衝作用;同時,房屋外牆均採用內保溫技術,保溫隔熱同時,實現了室外清水磚牆的工藝效果。

冬季保溫原理圖
冬季保溫原理圖

 

夏季隔熱原理圖

 

 

雨污分離:實驗性將洗手間分解成兩個機能單元;小便機能單元居室內,大便機能單元置門房西側,兩個機能單元之間透過排污管道相連,排泄物就近排入入口院牆外的地下三格式化糞池,並定期清理;廚房、淋浴間等生活污水則就近排入後院三格式污水處理池,經人工濕地排入滲井;前後院各設集水坑,並透過雨水管道相連,前後院雨水經集水坑、雨水管道一同排放至路面雨水收集系統,分級解決雨污排放問題。

雨水排放管線圖

污水處理管線圖

鄉土社會有著細密的社會交往網路和自治傳統,其民居設計不受商業操縱和消費主義利用,低成本建造同樣需要細部上的周到和精緻。作品利用當地匠人、材料與傳統工藝,從紅磚的十字形砌築、「梅花樁」砌築到人字形砌築,院落鋪面的條形密鋪與灌沙法、濕接縫法等均能凸顯紅磚材料工藝的機能性與藝術性;房屋木屋架採用舊屋老木材搭建,材料性能穩定,結構外露,與紅磚組合,相得益彰。

為防止紅磚飾面雨水侵蝕與反鹼現象,施工增加清水磚牆面層涂刷真石漆面漆工藝;為防止冬季雨雪凍融導致紅磚開裂破損,磚造院牆、屋脊頂部增加塗抹水泥砂漿面層工藝,彌補了傳統材料與工藝的缺陷。

居住品質的提升源自對生活的細緻品味,關中傳統民居門戶空間作為日常非正式交流的重要節點,作品透過主入口外倚牆砌築紅磚長凳,供左鄰右舍日常休閒交流;宅院內部院落在滿足農忙時節晾曬農作物主要機能時,利用一側的樹下空間形成對內的休憩場所;廚房採用磚造爐灶與整體式櫥櫃,既能滿足當前傳統燒柴烹飪暖氣供應的需求,亦能實現未來天然氣引入後的升級換代。

 

鄉土建築只有在地域內部得以連續發展,維持自身個性和辨識度,才能在地域之間形成多樣性。咸陽·莪子村紅磚房採用手工、半機械化為主的「鄉村基建隊」建設模式,工匠組織施工,工程總造價(不含傢俱、衛生器具等購置費)約31.2萬元(人民幣),每平方造價約1296.8元。

不再追逐落伍的時髦、鄉氣的都市化,拒絕對資源貪婪的消費,聚焦「文化與綠色」一體協同的營建模式,找回設計中最基本最切實際的目標,建構適宜本地區的民居營建體系,為同類型民居的新建、改增建提供參考借鑑。


建築圖

全區配置圖
全區配置圖
一樓平面圖 Plan
一樓平面圖 Plan
二樓平面圖 Plan
二樓平面圖 Plan
剖面圖 Section
剖面圖 Section
剖面圖 Section
剖面圖 Section

 


作品資訊

作品名稱:莪子村紅磚房
作品位置:中國陝西咸陽
作品類型:中國建築、中國建築師、綠建築、磚造建築、磚牆、舊建築再利用舊建築改造
設計單位:西安建築科技大學建築設計研究院
總樓地板面積:241 平方米
竣工:2021年
攝影:張曉明
主持建築師:高博
專案團隊:李志民、賈庫、王曉靜、尚路軒、許懿、孟慶民、徐方圓、鄭一凡、楊贊、楊潤鵬、畢新雅、賀思靜、翟欣、楊夢嬌、石楚凡、王雨萌、徐菁華、王筱婕、王子綸

 

 

Leave a reply

Please enter your comment!
Please enter your name here

這個網站採用 Akismet 服務減少垃圾留言。進一步了解 Akismet 如何處理網站訪客的留言資料