微風禮堂座落於上海最重要的紀念性公園——魯迅公園內。它的前身是魯迅紀念館南側的一片雜樹林,被柵欄劃歸為公園的邊角,淪為城市發展的碎片而被人遺忘。2023年,SHISUO是所對這片基地進行重新梳理——散落在基地中的一部分樹被移栽到建築南側,與紀念館前原有的一排樹構成步道,也為新建築提供了緩衝的邊界;其他樹被移栽到基地兩翼,形成一大片圍塑的空地;大型喬木與竹林則被保留,新置入的動線與它們巧妙應和,成為路徑轉換中的景觀,這些調整賦予基地更多的公共性。西側的世界文豪廣場林木蔭蔽,城中的老人們在這裡聚會談天、唱歌跳舞,是這裡每天的日常,而微風禮堂就座落在它的旁側。



設計需要解決兩個問題——面對有限的造價預算和施工週期,如何實現高品質的建造;面對周圍雜亂的現狀,如何塑造地標性的精神建築並使之與周邊環境相協調。

©朱潤資

©朱潤資

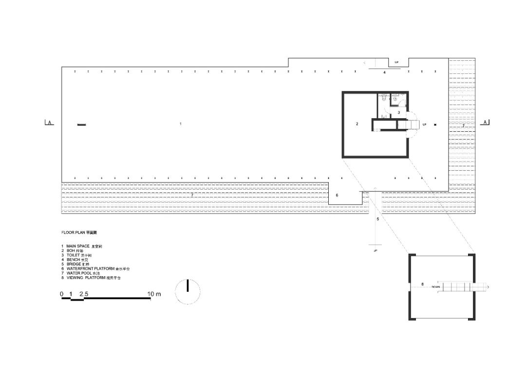
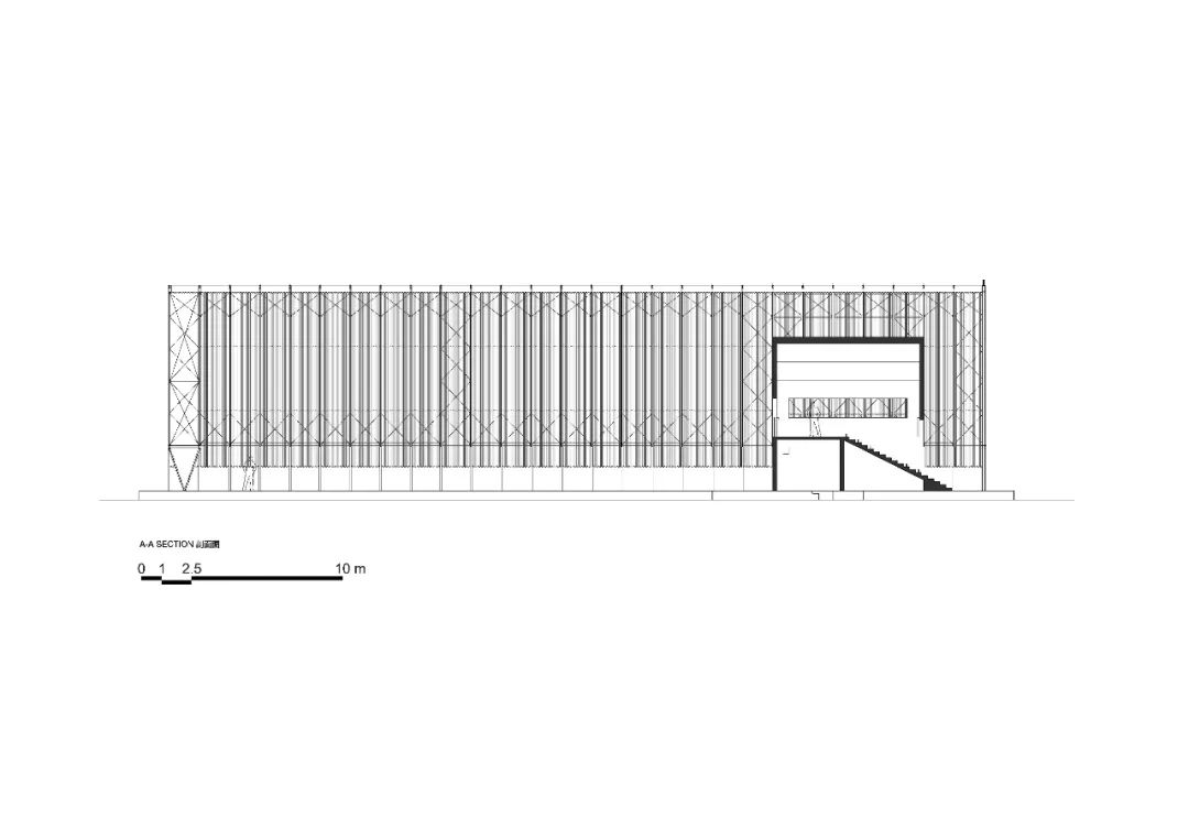
主體建築由羽翼般的鋼結構屋架與地景般的基座組成,屋架懸浮於基座之上。纖細的鋼架陣列排開,輕盈通透的同時平衡了用鋼量與結構效率。截面僅有100*150mm的工字鋼柱支撐起長度42m,跨度15m,高度12m的開放空間,服務於婚禮、活動、展覽與集會的需求。
屋頂材料選用預鑄沖孔板,單元式的組裝確保現場快速施工,其質密多孔的材料提供了不同尺度的視覺感受,乍看簡約,細觀有物。雙層沖孔板也成為內部空間與外部環境之間的過濾器——陰天時沉靜,晴天時和煦。屋頂的形體在入口處異變為掀起的切口,邀請人們進入。內部空間高聳而闊大,猶如空白畫布,容許使用者在後續增添色彩。



低矮的屋簷過濾了對面商業街的嘈雜,只露出水池的倒影與綿延的草地。在這裡,氣流、光線、鳥鳴穿行而過,雜亂的世俗卻被阻隔在外。地景般的基座與基地發生多樣的互動,或成為拾級而上的踏步與觀景長凳,或成為一道連接建築與草地的虹橋,又或者變化為親水平台。



在內部,基座向上聳立並凝固成為一個抽象的房子,讓人想起靜默無言的碑或塔。它背後峽谷般的樓梯指引人們來到更高處的平台,眺望屋架的框景與光影的變幻;兩側條窗則將光線引入內部,人們在這裡回看入口的景象。每日清晨,太陽從它的背後升起,光暈會賦予它神秘而神聖的色彩。



設計團隊有意刻畫它神聖的一面,因為神聖空間是為了歌頌平凡日常的詩意時刻。在世俗與神聖的區分與並置之下,人們得以發現生活並不是均質的。哭與笑,失去與得到,世俗與神聖……都是構成一個人的必要部分。此一切存在於每一個人的身體中,而神性總是出現在日常的旁側。


©朱潤資


©朱潤資

當從城市道路進入,踏上古樸的條石台階,穿過一從竹林,碎石在腳下沙沙作響。用手握緊移門,也許會留下些許鏽跡。伴隨著它的滑動,進入甬道,緩坡逐漸抬升,在這個過程中看不見任何禮堂的痕跡,只有垂落的樹影和長長的甬道。
陽光經過甬道盡頭的切口投射進來,指引你再次進入一片碎石庭院,終於得以凝視隱匿在枝杈背後的立面。再走進它,進入屋簷的陰影之下,隨著腳步拾級而上,外部世界的痕跡被進一步剝落…… 脫離的路徑經過數次轉折,將禮堂的主體空間懸浮於環境之外,在重複不斷地「隱與顯」後,讓抵達的渴望變得綿長。




微風禮堂被視為一個承載城市集體記憶的庇護所,它除了具有震撼、高聳、超尺度的儀式空間,也充滿了人體尺度的細部與材料處理——低垂的屋簷有意將雨水引流至水池並收集起來,儘可能少的藉著人工補給;雙層沖孔板依靠屋架的廓形實現了風拔的效果,屋脊處留出的間隙與水池的蒸發聯動,形成了微風流動的局部氣候,哪怕在酷熱的夏天,也有習習涼風穿行其中;
二層平台內,米色灰泥觸感溫柔,賦予了空間肌膚般的紋理。條窗的扶手轉化為圓弧面,更容易與手掌貼合,讓人得以更久的停靠;數量充足的插座隱藏在地面與立柱背後,屋脊上的吊點留足荷載,為活動配置提供了多樣的可能;視線所及,屋架的受力邏輯被清晰的展現,讓建構本身成為刻畫空間的細部。




對於細微之處的關懷不止於此——施工時,設計團隊發現會有小動物到此喝水,便說服業主不在水池投放除藻劑。竣工後,這裡成為公園中眾多小動物的水源地,它哺育著諸如鳥類、蜥蜴、流浪貓、狗這樣的小小生靈;而在雨夜,禮堂則成為了它們的避難所。從城市到人,從自然到動物,這座建築張開環抱並滋養所有的生命。至此,在樹林、歷史紀念館和商業建築的環峙之中,一座向城市開放、與周圍環境融為一體,呈現出輕盈、通透、儀式感的現代禮堂得以落成。





在開放後的短短半年裡,微風禮堂成為了城市公共活動的發生器,承辦了一系列具有社會影響力的公共文化活動,如櫻花季文化市集(銀鹽市集YINYAN SPACE)、首屆幸福家居展(小紅書RED)、國際瑜伽日活動(PURE YOGA)、療癒詩歌展(SOUL APP&;上海市精神衛生中心)、羅意威秋冬時裝發佈會(LOEWE)等。
不僅創造了巨大的經濟效益,提升了城市空間的品質,也受到了市民的追捧。藉著這些公共活動的發生,微風禮堂在社交媒體中收穫了超過3000w的閱讀量,一舉躍升成為上海藝文新地標。設計團隊期待,在不遠的未來,這座建築會為人們創造更多幸福的契機,在時代流轉中成為集體記憶不可或缺的一塊重要拼圖。



建築總會消失,而意義則指向不朽。在每一天的落日時刻,當太陽穿過林間的枝杈照亮微風禮堂,動人的光影浮動在它持重而恆久的三角形立面上,在那短暫的時刻之間,撫慰著啟程歸家的人們。神聖與日常,看似完全不同的時空,人的生活總是發生於二者之間,在這之間不斷地轉換中,設計團隊得以抵達新的崇高。




全區配置圖

平面圖 Plan

南向立面圖 Elevation © 是所設計

剖面圖 Section

建築師事務所:是所設計作品作品名稱:
作品類型:
作品位置:
上海,中國竣工:2024總樓地板面積:680平方公尺
主導設計師:撒尼夫、長山
設計團隊:林子涵、張涵
結構設計:iStructure-楊笑天、吳琨營
景觀設計:上海簡町景觀設計-金寅寅、李夢珠
鋼結構工程:上海頌航建設有限公司-陳連杰、馮亮、郭佔平、王坤、李德凱、李紅波、王岩、王威、於中威、任衛國
裝飾工程:上海雅歷設計裝飾有限公司-周青、張志錄,王日東、黃平、鄭建健(灰泥|涵氧生態壁材)、姜蘊琦(自流平|CEMIMAX賽邁發科技)
景觀工程:上海魯迅公園經營管理有限公司:周政、陳廣凌;上海簡町景觀設計工程有限公司-牧磊、韋波、何明
耐候鋼移門:上海智元建築工程有限公司
業主:長遠文化集團
攝影:葉建源、呂曉斌、朱潤資、撒尼夫、肖瀟、DONG建築影像
影片:朱潤資
