百年市集新生,多倫多歷史扉頁的當代註腳
在多倫多這座北美都會的核心地帶,一場跨越世紀的建築對話正悄然上演。由英國建築大師理查・羅傑斯(Richard Rogers)創立的建築師事務所RSHP,聯袂在地翹楚Adamson Associates Architects,共同為歷史悠久的聖羅倫斯市場,獻上了名為「聖羅倫斯市場北翼」(St. Lawrence Market North)的現代篇章。
此地自19世紀初便是商賈雲集、人聲鼎沸的市集與聚會所在,承載著幾代人的城市記憶。如今,嶄新的建築拔地而起,除了延續農夫市集的傳統機能,更將市政府的辦公空間與莊重的市級法庭納入其中,成為一個複合機能的市民生活樞紐,為古老街區注入了生生不息的動能。



新舊共榮,一場穿梭時空的建築對弈
面對周遭環伺的歷史建物,特別是比鄰而居的古蹟聖羅倫斯大廳(St Lawrence Hall),如何讓一座充滿現代感的建築謙遜地融入其中,便成了建築師團隊殫精竭慮的首要課題。RSHP的資深合夥人伊凡・港(Ivan Harbour)一語道破設計的玄機:「此建築毫不掩飾其現代性,卻也未曾忽視自身所處的文脈。」
團隊最終的方案,是透過精準的量體配置與退縮,確保了從街道望向聖羅倫斯大廳歷史穹頂的視線不受遮蔽。新舊建築之間,則藉由一道幾乎無框的玻璃量體輕巧銜接,宛如時光隧道,讓歷史與當代得以在此隔空對望,相看兩不厭。




都市的劇院,釋放街角活力的開放舞台
建築的生命力,不僅在於結構與造型,更在於它如何與城市及市民互動。Adamson Associates Architects 的負責合夥人多明尼克・維爾多(Domenic Virdo)指出,設計的核心目標之一,便是要打破建築的內外界線。
透過大面積的玻璃立面與流暢的動線規劃,農夫市集的熱鬧景象與蓬勃生氣得以滿溢而出,自然地延伸至戶外的公共廣場,讓建築本身成為活絡街區的催化劑。此案不僅強化了市集和街道景觀的依存關係,更放大了整個社區乃至於多倫多這座城市的生命力與繁華景象,猶如為都市生活搭建了一座引人入勝的開放式舞台。




鋼骨與光影的謳歌,高技建築的理性詩篇
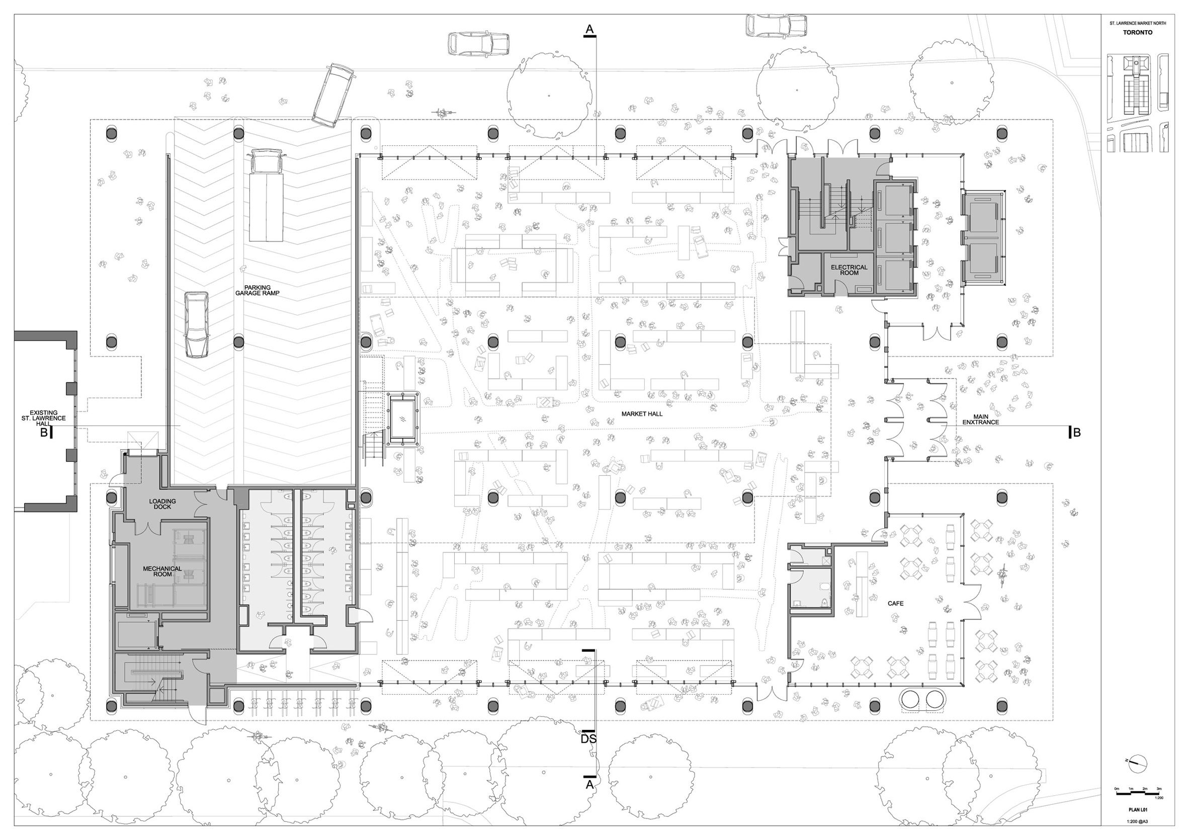
綜觀這棟樓高五層的建築,其結構美學展現了高技派建築(High-tech architecture)一脈相承的理性與力量。地面層被完整地保留給市集使用,上方樓層則由一系列顯露於外的鋼骨框架所支撐。
雄偉的鋼柱下方銜接著錐形的混凝土基座,無論在建築外部或內部,皆形成一道環狀的韻律序列,清晰地界定出市集空間與中央動線區域。
伊凡・港將此種結構佈局形容為一種「被支撐體系所夾的三明治」。不僅向RSHP事務所的經典風格致敬,更溯源至傳統的英式會堂(moot hall),企圖在一個屋簷下,同時容納市民的日常聚會與官方的公共職能,可謂別出心裁。


穹頂之下,法槌聲與市井聲的共鳴
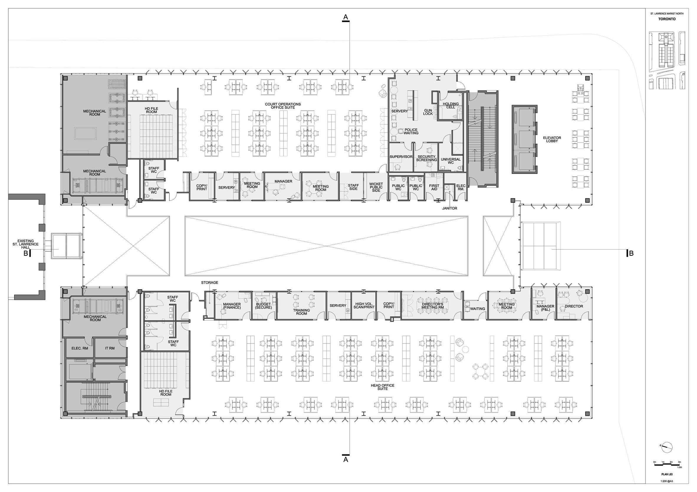
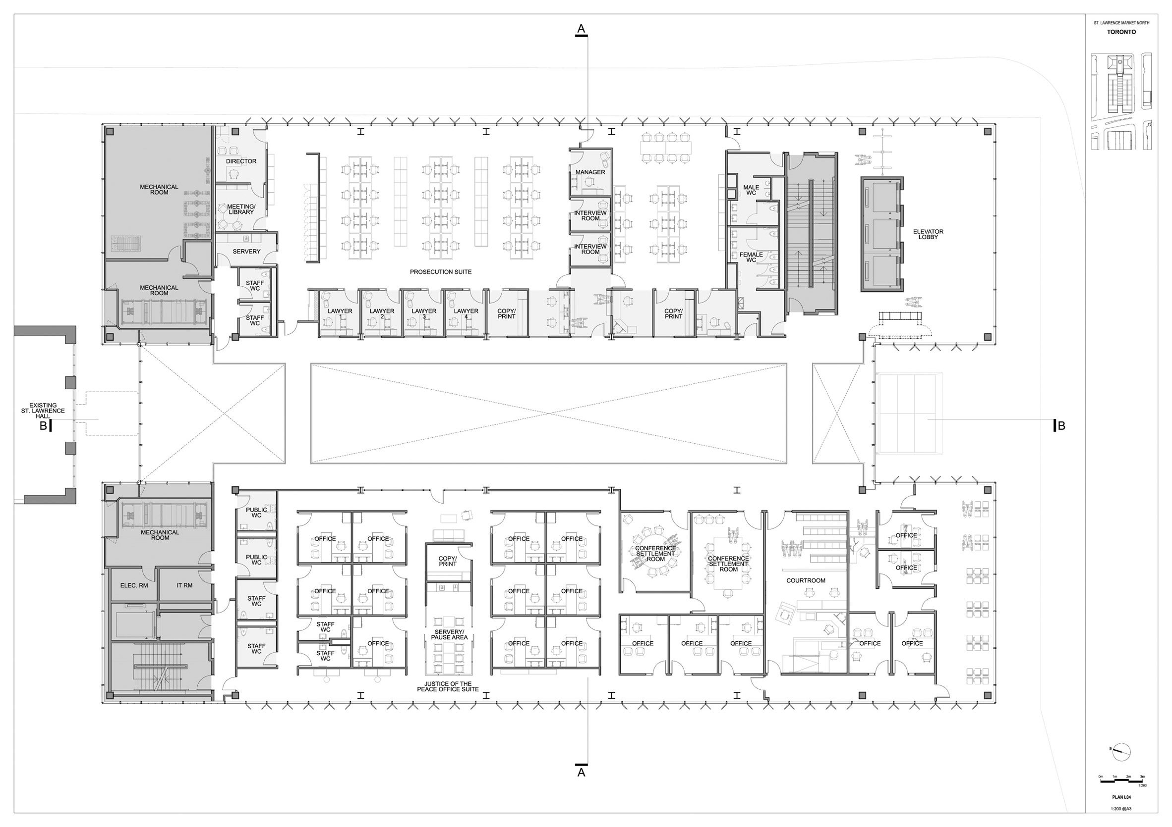
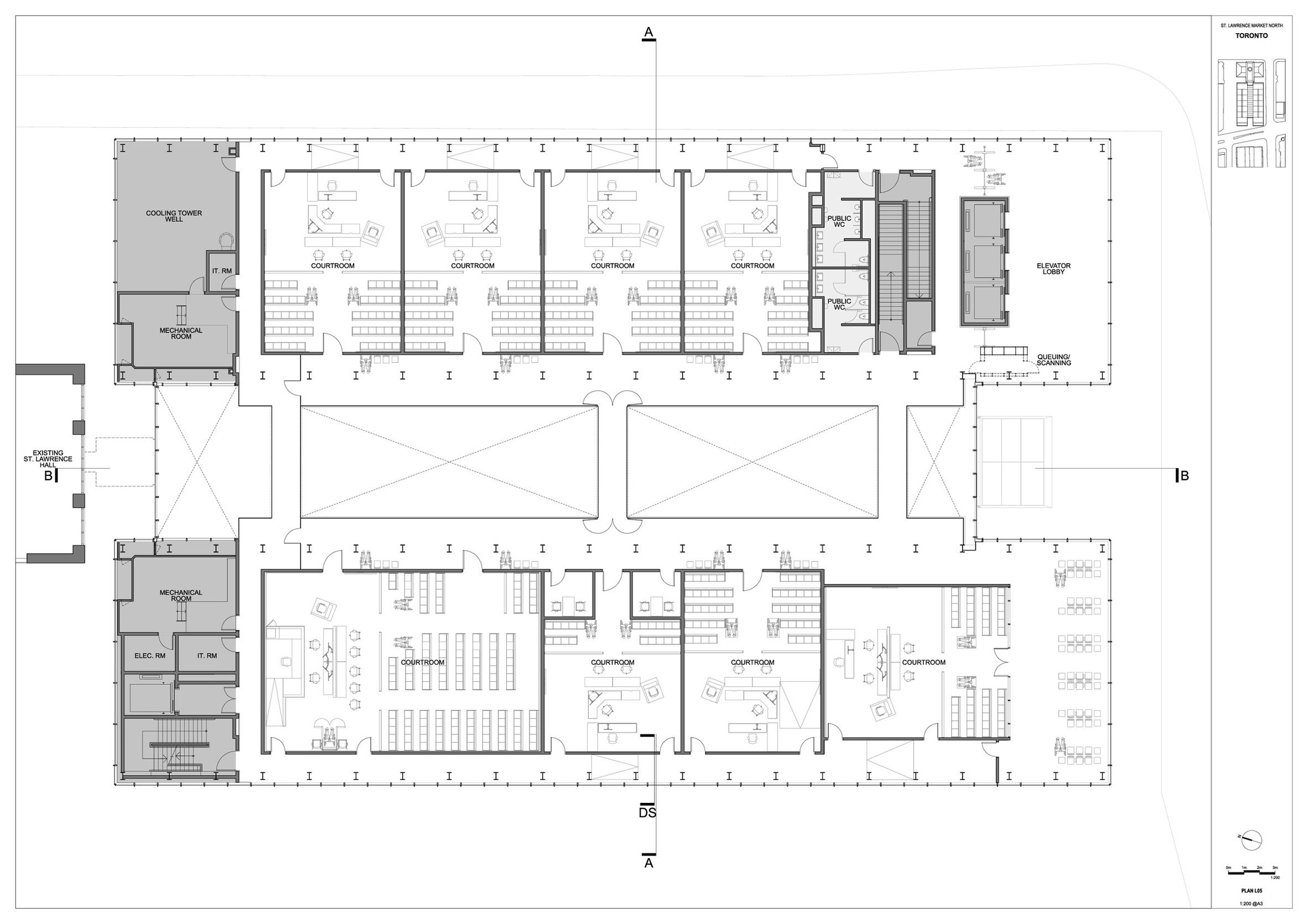
建築內部空間的機能佈局,更是匠心獨運。緊鄰著地面市集層的上方,規劃了一系列供社區使用的多功能空間,作為喧囂與寧靜之間的過渡。更高樓層則分別歸屬於辦公區域與市級法庭。這些需要高度隱私與專注的空間,被巧妙地安置在兩側的拱頂結構(vaulted structure)翼樓之中。
建築師特意在法庭的正上方開設了天窗,讓自然光線得以柔和地灑入室內,洗滌了傳統法庭予人肅穆冰冷的刻板印象,同時又確保了司法的隱密性。此種將相異機能垂直整合的安排,讓莊嚴的法槌聲與市井的喧鬧聲在同一建築中和諧共存,饒富趣味。



橙色天橋,畫龍點睛的歷史回眸
貫穿建築物中央的玻璃脊柱,是整棟建築的靈魂所在。它如同一道光的瀑布,讓天光得以穿透層層樓板,直達底層的市集,使得整個中庭空間明亮而通透。環繞著中庭佈置了主要的垂直動線與休憩平台,數座橫跨其上的天橋,則為人們提供了俯瞰下方市集動態的絕佳視角。
這些天橋與建築外牆的遮陽飾板,皆被漆上了一種溫暖的橘紅色調,這不僅是為了在冷冽的鋼骨與玻璃中增添一抹視覺亮點,更是建築師對周遭歷史街區普遍使用的紅磚材質,所做出的一次充滿敬意的色彩回響。此一神來之筆,無疑為這座現代建築注入了深刻的人文溫度,使其與歷史產生了更為緊密的連結。


建築圖










作品資訊
作品名稱:St. Lawrence Market North
作品位置:加拿大多倫多 92 Front St E, Toronto, ON M5E 1C4 Canada
作品類型:公共建築、市場、辦公空間、法庭、複合設施
設計單位:RSHP, Adamson Associates Architects
結構及建築外殼顧問:Entuitive
機電顧問:Smith + Andersen
土木工程顧問:WSP
景觀設計:Quinn Design Associates
室內設計:Adamson Associates Architects
營造廠:The Buttcon Ltd. / The Atlas Corporation Joint Venture (BA)
攝影:Nic Lehoux