層疊葉片向上生長,美國聖路易斯市One Hundred住宅大樓/Studio Gang

0
2497

One Hundred住宅大樓位於美國密蘇里州的聖路易斯,鄰接著的森林公園幾乎是當地都會空間中最大片的綠地,這棟大樓是Studio Gang在聖路易斯的第一件作品。

建築外觀,美國聖路易斯市One Hundred住宅大樓/Studio Gang
建築外觀,美國聖路易斯市One Hundred住宅大樓/Studio Gang

美國聖路易斯市One Hundred住宅大樓/Studio Gang

美國聖路易斯市One Hundred住宅大樓/Studio Gang 美國聖路易斯市One Hundred住宅大樓/Studio Gang

建築外觀,美國聖路易斯市One Hundred住宅大樓/Studio Gang
建築外觀,美國聖路易斯市One Hundred住宅大樓/Studio Gang

美國聖路易斯市One Hundred住宅大樓/Studio Gang

大樓高度約115.8公尺,包含零售、停車、住宅公寓和各項基建設施,往東可望見著名的聖路易斯拱門(The Gateway Arch)。

美國聖路易斯市One Hundred住宅大樓/Studio Gang

美國聖路易斯市One Hundred住宅大樓/Studio Gang

美國聖路易斯市One Hundred住宅大樓/Studio Gang

美國聖路易斯市One Hundred住宅大樓/Studio Gang

美國聖路易斯市One Hundred住宅大樓/Studio Gang

美國聖路易斯市One Hundred住宅大樓/Studio Gang

塔樓以每四層為一個模組單位堆疊組成,模組的頂部是開放室外露台,可供住戶在此休憩並欣賞社區綠屋頂花園。

住宅單元室內空間,美國聖路易斯市One Hundred住宅大樓/Studio Gang
住宅單元室內空間,美國聖路易斯市One Hundred住宅大樓/Studio Gang
住宅單元室內空間,美國聖路易斯市One Hundred住宅大樓/Studio Gang
住宅單元室內空間,美國聖路易斯市One Hundred住宅大樓/Studio Gang
住宅單元室內空間,美國聖路易斯市One Hundred住宅大樓/Studio Gang
住宅單元室內空間,美國聖路易斯市One Hundred住宅大樓/Studio Gang
住宅單元室內空間,美國聖路易斯市One Hundred住宅大樓/Studio Gang
住宅單元室內空間,美國聖路易斯市One Hundred住宅大樓/Studio Gang
公共設施空間,美國聖路易斯市One Hundred住宅大樓/Studio Gang
公共設施空間,美國聖路易斯市One Hundred住宅大樓/Studio Gang
露台,美國聖路易斯市One Hundred住宅大樓/Studio Gang
露台,美國聖路易斯市One Hundred住宅大樓/Studio Gang
露台,美國聖路易斯市One Hundred住宅大樓/Studio Gang
露台,美國聖路易斯市One Hundred住宅大樓/Studio Gang

葉片狀的平面配置及造型將大樓的朝向和環境效益最大化利用,在減輕能源壓力的同時,最佳化住戶的居住體驗。

美國聖路易斯市One Hundred住宅大樓/Studio Gang

美國聖路易斯市One Hundred住宅大樓/Studio Gang

One Hundred住宅大樓 建築圖

基地位置圖,美國聖路易斯市One Hundred住宅大樓/Studio Gang
基地位置圖,美國聖路易斯市One Hundred住宅大樓/Studio Gang
整體平面配置圖,美國聖路易斯市One Hundred住宅大樓/Studio Gang
整體平面配置圖,美國聖路易斯市One Hundred住宅大樓/Studio Gang
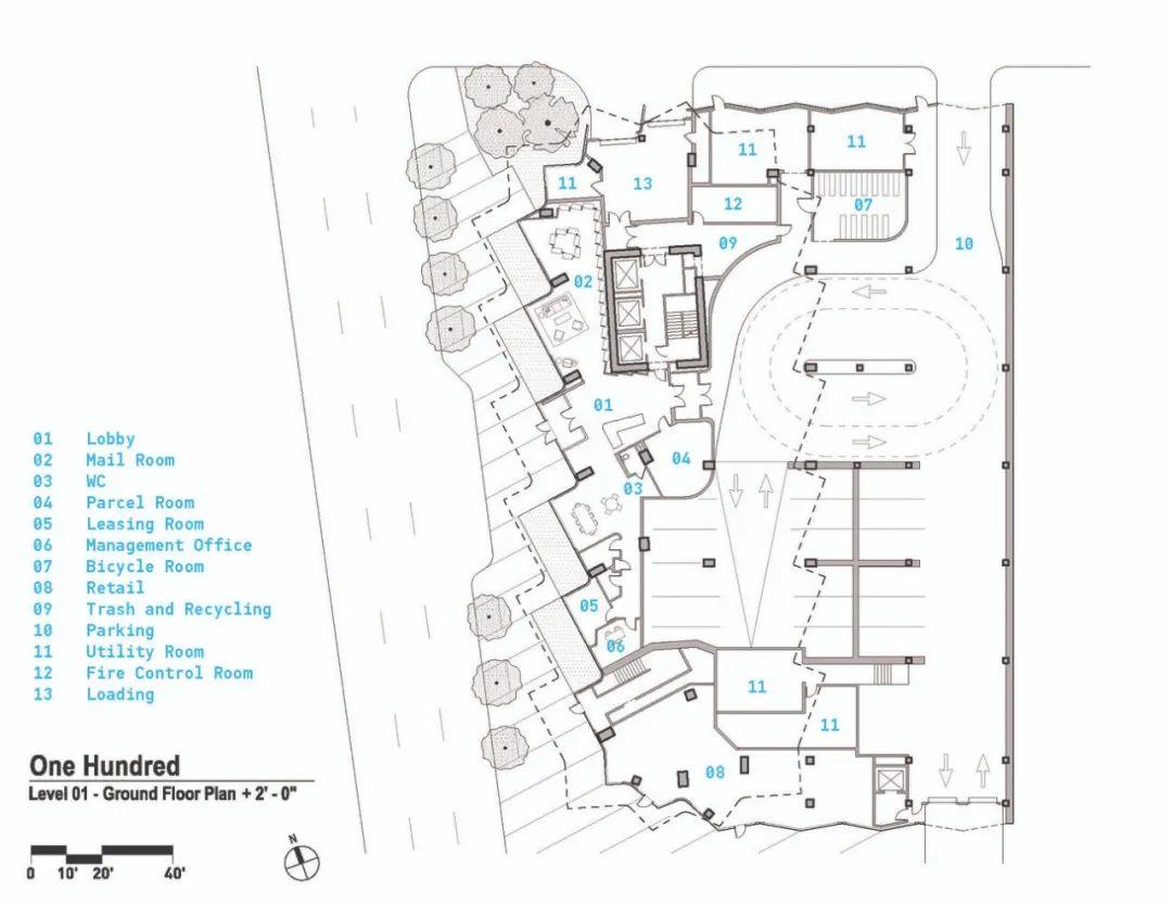
地面層平面圖,美國聖路易斯市One Hundred住宅大樓/Studio Gang
地面層平面圖,美國聖路易斯市One Hundred住宅大樓/Studio Gang
公共設施層平面圖,美國聖路易斯市One Hundred住宅大樓/Studio Gang
公共設施層平面圖,美國聖路易斯市One Hundred住宅大樓/Studio Gang
標準層平面圖,美國聖路易斯市One Hundred住宅大樓/Studio Gang
標準層平面圖,美國聖路易斯市One Hundred住宅大樓/Studio Gang
日光照射示意圖,美國聖路易斯市One Hundred住宅大樓/Studio Gang
日光照射示意圖,美國聖路易斯市One Hundred住宅大樓/Studio Gang
露台材料使用示意圖,美國聖路易斯市One Hundred住宅大樓/Studio Gang
露台材料使用示意圖,美國聖路易斯市One Hundred住宅大樓/Studio Gang

作品資訊

作品名稱:One Hundred住宅大樓
作品位置:美國100 Kingshighway Blvd St. Louis, MO 63108
作品類型:集合住宅、住宅大樓
建築設計:Studio Gang
竣工:2020年
總樓地板面積:48309.5平方公尺
結構工程師:Magnusson Klemencic Associates
MEP工程師:dbHMS
機電工程師:Charles E. Jarrell Contracting Co
電氣工程師:Sachs Electric Company
電氣工程師:DeLuca Plumbing
市政工程師:Stock & Associates Consulting Engineers
景觀設計:Arbolope Studio
立面顧問:Studio NYL
燈光顧問:MorLights
游泳池顧問:Counsilman-Hunsaker
停車場顧問:WGI
規範顧問:Code Consultants
電梯顧問:Jenkins & Huntington
顧問:Core 10 Architecture
營造廠:Clayco
住宅室內設計:Mac Development
攝影師:Tom Harris,Sam Fentress

Leave a reply

Please enter your comment!
Please enter your name here

這個網站採用 Akismet 服務減少垃圾留言。進一步了解 Akismet 如何處理網站訪客的留言資料