安特衛普河畔塔樓的粗獷主義重生與垂直社區
Riverside Tower 矗立於比利時安特衛普斯海爾德河(Scheldt River)蜿蜒處,這座由 Leon Stynen與 Paul De Meyer於1970年代初期聯手打造的高層建築,不僅是城市天際線的地標,更是粗獷主義(Brutalism)建築的經典範例。
Studio Okami Architects的創辦人Bram Van Cauter選擇在此落腳,並將位於第13層的一戶獨特樓中樓改造為自己的家。這座塔樓被視為早期的共享住宅(Co-housing)先驅,宛如一條垂直街道,擁有洗衣區、洗車場與俯瞰公共花園的寬敞大廳等公共設施,促進了鄰里間的緊密互動。Bram Van Cauter 不僅是重塑個人居住空間,更是對既有建築歷史價值與社區精神的致敬與延續。







剝除飾面展現混凝土本真與開放式空間重組
面對這戶原本擁有五間臥室的公寓,設計團隊採取了激進的減法策略。他們拆除了所有的隔間牆,並剝除了牆面與天花板上層層堆疊的裝飾材料,讓隱藏多年的混凝土結構重見天日。經過噴砂處理後的粗糙混凝土,展現出迷人的紋理(Texture)與力量感,成為空間的主角。
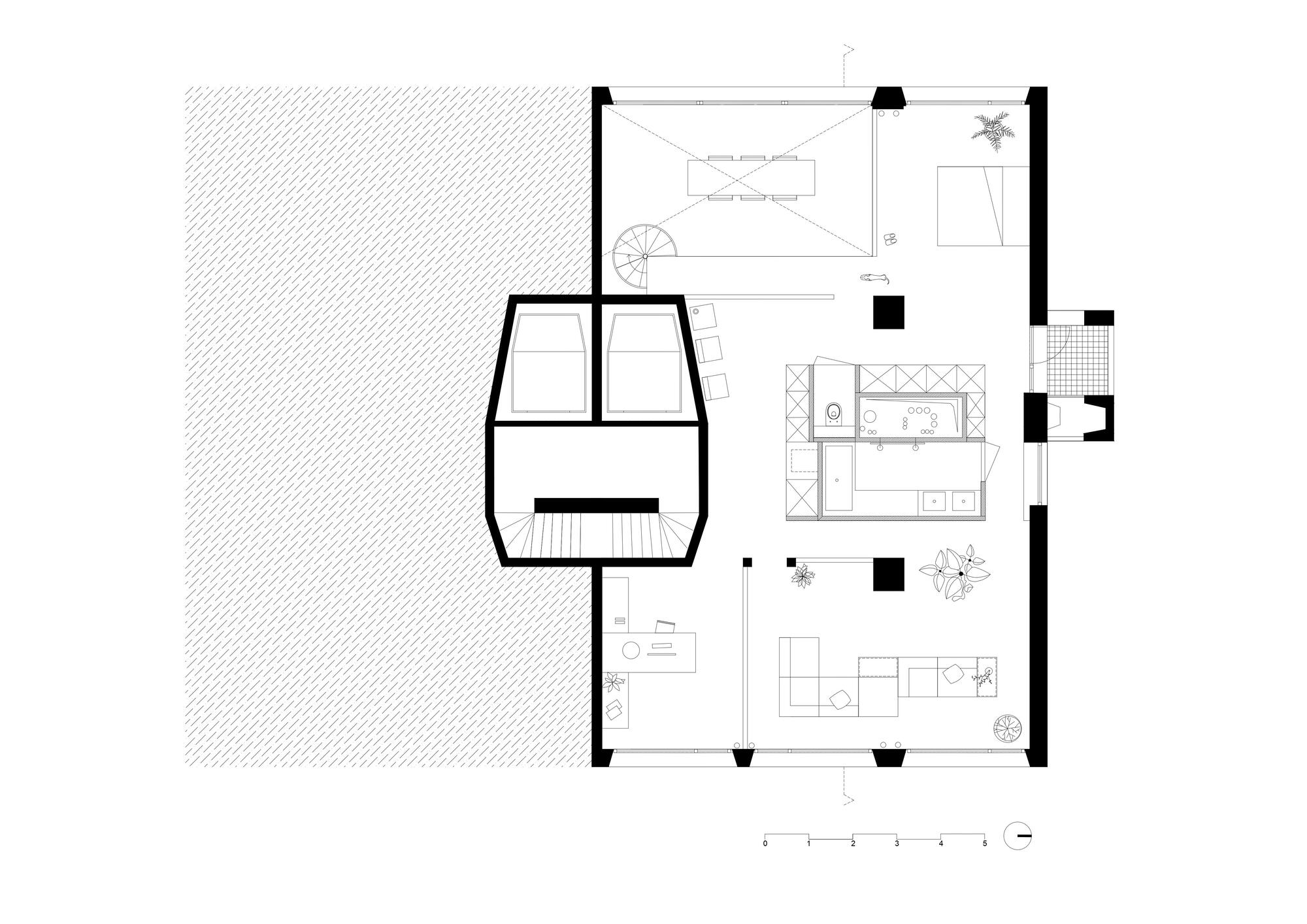
最終,這處230平方米的空間被轉化為一個跨越第13層與14層的開放式單臥室Loft。極致的開放性,釋放了空間的尺度感,更讓光線與視線得以自由流動,回應了粗獷主義建築對於真實性與結構表達的追求。






桃色液態地板與粗糙混凝土的材質對話
為了平衡混凝土帶來的冷冽與粗獷,設計師巧妙地在全室鋪設了桃色(Peach-colored)的液態地板。這種溫暖柔和的色調與質感,與灰色的混凝土牆面形成了強烈的對比與互補,為空間注入了一股現代且活潑的氣息。裸露的混凝土牆面成為了女主人Doris藝術收藏品的最佳背景,原有的孔洞與痕跡被刻意保留,用來定位每一件藝術品,讓建築的歷史痕跡與當代藝術在此對話。少數保留的磚牆則透過水泥粉光處理,並在未乾的水泥中撒入小石子,營造出一種樸質而真實的觸感。






懸浮於高空的藍色螺旋梯與極簡廚房雕塑
進入公寓,映入眼簾的是挑高的旋轉窗,將安特衛普港口與鄰近森林的壯闊景色盡收眼底。公共區域被定義為娛樂與社交的場域,廚房家電被巧妙地隱藏在靈感源自唐納德·賈德(Donald Judd)的壁櫃單元中。廚房中島被設計成一件雕塑品,在不使用時靜靜地佇立於空間中,而在烹飪模式下則展現出強大的機能性。由於公寓位於離地45米的高空,所有定製家具都必須受限於電梯尺寸,因此那座搶眼的藍色鋼製螺旋梯與空橋,必須由Stielatelier在現場進行焊接與塗裝。這座樓梯被移至角落,優化了動線,並在通往上層的過程中創造了與窗外景觀重新連結的機會。





私密領域的混凝土庇護所與無客房的居住哲學
第14層空間相對私密,由數根立起的混凝土樑界定出臥室與書房的範圍。位於東側的起居室與家庭辦公室,享有俯瞰安特衛普城市天際線的絕佳視野。上層空間圍繞著一個包含浴室、儲藏室、洗衣間與更衣室的技術區塊組織而成。浴室內部延續了桃色塗料,從地板延伸至牆面,形成一個防水的單一色調空間,與上方穿越的粗糙混凝土樑形成鮮明對比。夜晚時分,城市燈火與浴室透出的橙色光暈交織出一種溫馨而神秘的氛圍。至於客房的缺席,則是屋主經過深思熟慮的選擇,他們利用同樓層的另一戶樓中樓——同時作為畫廊與B&B——來接待親友,讓訪客能更全面地體驗Riverside Tower的獨特魅力。








建築圖






作品資訊
作品名稱:Brutalist Duplex Apartment in de Riverside Tower
作品位置:比利時安特衛普 Antwerp, Belgium
作品類型:粗獷主義、公寓、私人住宅、住宅、舊建築改造、室內設計、比利時築、比利時建築、比利時建築師
設計單位:Studio Okami Architects
總樓地板面積:230 平方米
竣工:2021年
攝影:Olmo Peeters, Matthijs van der Burgt
主持建築師:Van Cauter Bram
協同合作:Hans Vanassche
室內施工:Stiel Atelier
拆除工程:Afbraak Johan Janssens
廚房製造:Houtstudio BVBA