粵港澳大灣區核心的城市轉型與新市政地標
在中國廣東省東莞市,這個位於粵港澳大灣區核心、以快速城市轉型聞名的城市中,一座全新的市政地標「在地新境」傲然挺立。這座由疊術建築(Superimpose Architecture)操刀設計的複合設施,並非傳統意義上單一且封閉的辦公大樓,而是一個試圖將文化、工作與社區生活緊密交織的有機體。
面對東莞高密度的摩天大樓天際線,建築師選擇了一條不同的路徑:他們拒絕了巨大的單體建築,轉而構想出一系列向上層疊的露台。這種設計不僅在視覺上呼應了周邊起伏的山勢,更以一種大膽卻親和的姿態,將建築融入既有的城市環境當中,為這座以製造業起家的城市注入了一股清新的人文氣息。




層疊露台與錯動量體的建築構圖
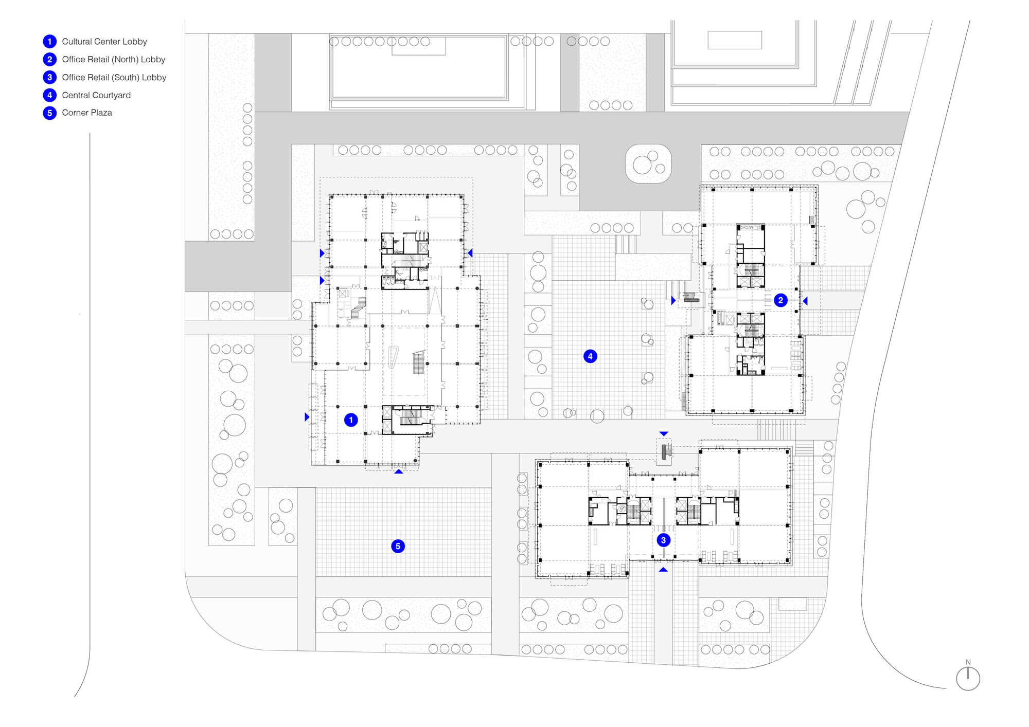
項目的核心概念在於打破傳統市民中心的刻板印象。整個建築群由三棟主要量體組成,圍合出一個寬敞的中央庭院。這個被綠意包圍的「城市客廳」,成為了連接各個功能區塊的錨點,為社區提供了一個開放、寧靜且充滿社交活力的核心空間。位於西側的建築是整個項目的文化心臟,匯集了市政廳、社區空間、零售商店及劇院。
建築師運用堆疊和錯動手法,將不同的機能量體組合成一個充滿張力的動態構圖。利用水平錯位,得以區分出不同的功能空間,藉以創造給使用者休憩、交流的戶外露台,讓室內活動能夠自然延伸至室外,豐富了空間的層次感與使用體驗。





立面設計的虛實對話與材質溫
建築立面的設計進一步強化了這種多樣性中的統一感。豎向框架、層次分明的橫向樓板以及半透明玻璃相互呼應,在開放性與私密性之間取得了微妙的平衡。通透的地面層以邀請的姿態迎接公眾,中間懸浮的量體被磨砂玻璃包裹,容納了私密性較高的社區空間;而頂部的量體則採用絲網印刷玻璃,
內部為劇院與公共大堂。為了中和玻璃與金屬帶來的冷冽感,建築師在露台與天花板處大量運用了溫潤的木質飾面,為這座現代化的結構增添了一抹觸感上的溫暖與人性化的特質,讓使用者在行走其間能感受到建築的溫度。






靈活租賃策略與未來辦公空間的想像
在項目的南側與東側,兩棟辦公樓延續了體量錯動與層疊露台的建築語言。值得一提的是,Superimpose疊術建築從設計初期便與業主緊密合作,將建築形式與靈活、可持續的租賃策略相結合。這兩棟建築被設計為可垂直分區,每棟皆能容納兩組獨立租戶,並配有專屬的入口與大堂。
這種策略不僅最大化了項目的商業潛力,更體現了對未來工作模式演變的深刻理解。充足的自然光透過豎向天井與透明的流線空間深入室內,營造出明亮、健康且宜人的工作環境。白色鋁製立面搭配細長的豎向遮陽肋片,有效地過濾了亞熱帶強烈的陽光,確保了室內的熱舒適度。





後疫情時代的公共建築新原型
「在地新境」超越了其物理形式,象徵著一種關於當代市政建築應如何服務城市的新思維。在後疫情時代,公共建築必須具備更高的靈活性、多功能性與社會包容性。該項目打破了傳統單一用途空間的侷限,將文化、市政與商業功能相互疊合,確保了建築全天候的活力。
以多層次的策略減少了低使用率的空間,降低了新建項目的環境足跡,並強化了社會與生態的可持續性。通過將多樣的城市功能融合於一個層疊式景觀之中,「在地新境」不僅僅是一座建築,更是當代市民中心的新原型:開放、靈活,並深度連接於其社區之中。


建築圖












作品資訊
作品名稱:在地新境:文化、工作與社區的交匯處
作品位置:中國廣東東莞市南城區
作品類別:複合設施、商業建築、辦公大樓、中國、中國建築、中國建築師
設計時間:2022年10月-2023年09月
完成時間:2025年10月
業主:東莞市萬亨房地產有限公司
建築面積:19369平方米
設計單位:Superimpose疊術建築
設計團隊:博樂文,梁勵德,博德朗,Ana Raluca Timisescu,許瀟予,陳顯鴻,曲海波
設計院:華陽國際設計集團
景觀設計:上海朗道景觀規劃設計有限公司
幕牆顧問:深圳市朋格幕牆設計諮詢有限公司
施工方:深圳市瑞瑋工程有限公司
攝影:CreatAR