塔什干歷史街區的刺繡藝術復興基地
烏茲別克首都塔什干的心臟地帶,蘊藏著深厚的中亞歷史底蘊。坐落於著名的Suzuk Ota建築群前沿,SUZANI by Madina Kasimbaeva博物館正對著繁華的主幹道,散發出強烈的都會存在感。周邊環繞著莊嚴的清真寺、古老的陵墓以及傳統的工坊住宅,共同編織出一幅生動的歷史畫卷。
館長Madina Kasimbaeva長年鑽研各區刺繡技法,致力於推廣被視作中亞民族文化命脈的蘇札尼刺繡(Suzani)。為使面臨失傳風險的古老工藝重獲新生,烏茲別克建築師事務所 ARC Architects 將基地轉化為集結生產與展覽功能的複合式場域,充分反映出當代建築對文化遺產的積極回應。







汲取中亞傳統民居智慧的雙量體佈局
整個文化園區被精準劃分為東側的畫廊博物館與西側的生產工作坊兩大主體。設計團隊捨棄單調的巨大方塊,轉而向中亞傳統住宅與手工藝作坊取經,採用經典的周邊環繞式佈局。多個庭院依循地形高低錯落有致地排列,形成宛如迷宮般卻又層次分明的空間動線。庭院中央特別保留名為「ayvans」的傳統捕風塔,迎著當地盛行風向,引導自然微風穿梭於室內外,大幅降低對人工空調的依賴。








桑樹蔭下的絲綢傳奇與藝廊空間體驗
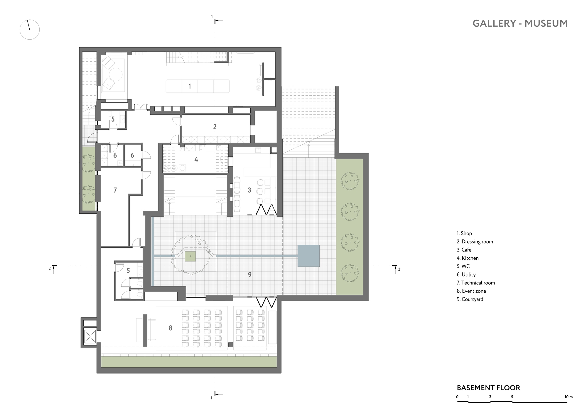
東側的畫廊博物館完全把參觀者的感官體驗作為設計核心。走入中央庭院,挺拔的桑樹映入眼簾,無聲講述著中亞絲路貿易的繁華過往,並象徵絲綢的起源。地面層遵循流暢的環形動線,引領遊客從入口處依序探索陳列著巨幅刺繡作品的主展廳、精緻的藝廊與文創商店。
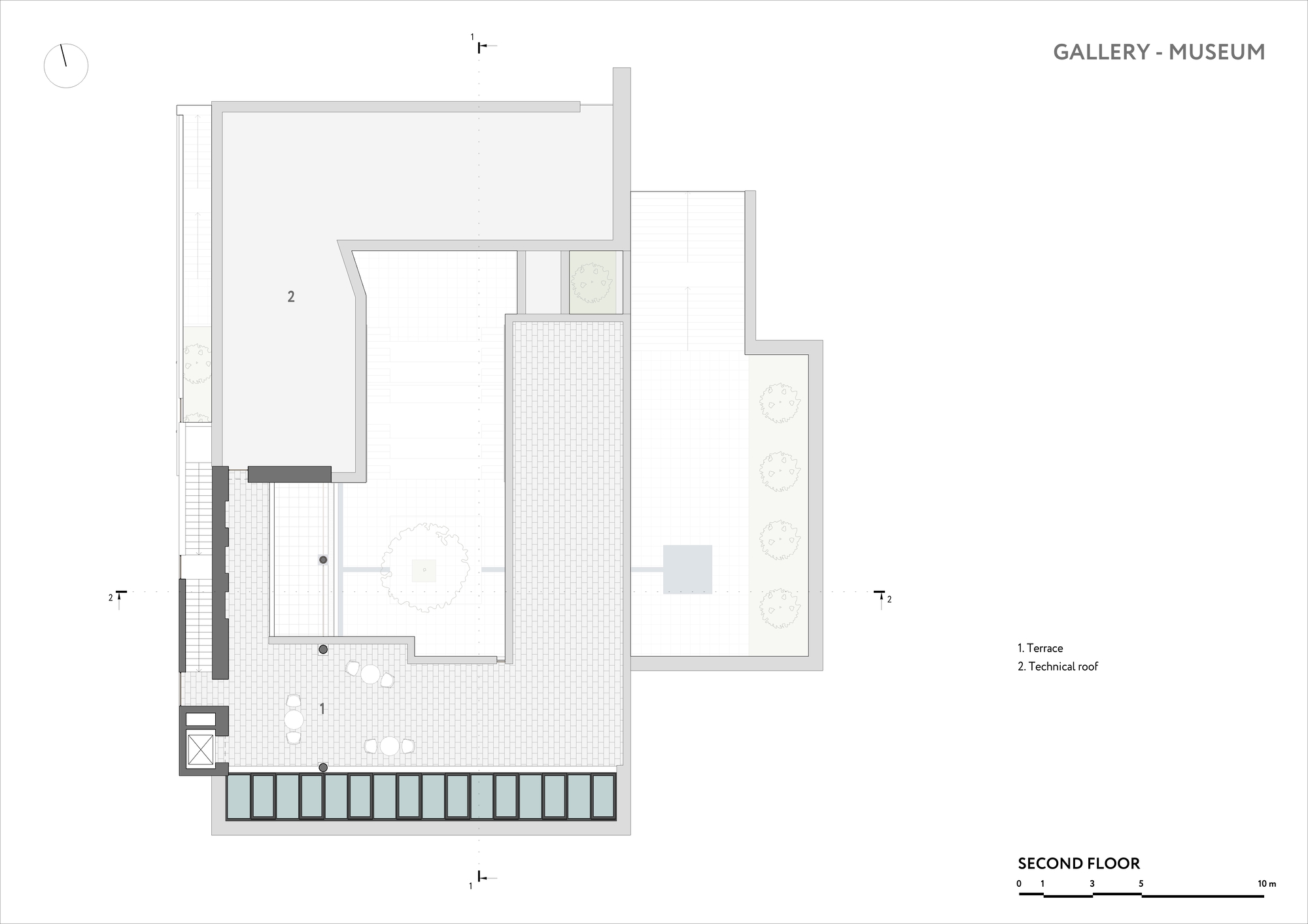
順著階梯而下,寬敞的地下室容納可供舉辦大型講座的活動廳、飄散咖啡香氣的休憩館與機電設施。當遊客步上屋頂露台,更能將Suzuk Ota建築群的莊嚴圓頂與歷史風光盡收眼底。建築團隊透過垂直空間的靈活調度,讓人在古今交錯的場域中,徹底沉浸於刺繡藝術的洗禮。







孕育頂級刺繡工藝的現代化生產聚落
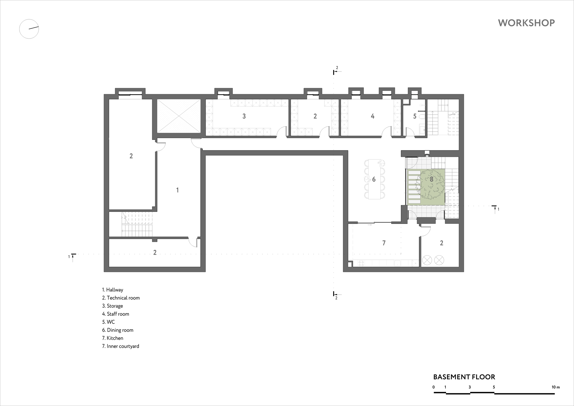
視線轉向西側的工作坊,宛如一座運作不息的職人基地。地面層專注於繁複的生產工序,涵蓋色彩斑斕的染線區、專注細緻的刺繡區,以及為培育下一代匠人而設的教育推廣空間。拾級而上來到二樓,明亮開闊的場域成為藝術家與設計師激盪靈感的工作室,縫紉區、行政辦公室與會議室比鄰而居,確保溝通的順暢。地下室則作為員工餐廳、大型儲藏室與設備機房,提供堅實的後勤支援。有別於傳統老屋粗暴的水平增建,設計團隊將原本散落各處的刺繡產業鏈,有條不紊地整合於單一立體空間內,強烈突顯出保留非物質文化遺產的強大企圖心。








取材自中亞大地的質樸建材與紋理表現
建築立面的表情,決定它與城市對話的姿態。全區外牆大量採用名為「g’ishti obi」的烏茲別克傳統紅磚砌築而成,粗獷且充滿手感溫度的表面,散發著難以言喻的歷史滄桑感。在室內外的裝修細節上,建築團隊堅持選用產自當地的天然建材,包括色彩鮮豔的陶瓷磚、堅固的石灰岩以及質樸的泥抹灰。取自大自然的天然元素,隨著時間推移將產生豐富的光澤變化,帶出更為迷人的建築紋理(Texture)。在總面積950平方公尺的基地上,創造出高達1200平方公尺的總樓地板面積,不只解決都會區用地緊湊的難題,更為塔什干留下一方傳承刺繡藝術的淨土。










建築圖














作品資訊
作品名稱:SUZANI by Madina Kasimbaeva Museum
作品位置:烏茲別克 Tashkent, Uzbekistan
作品類型:工作坊、博物館、藝廊、文化設施、博物館、烏茲別克、烏茲別克建築、烏茲別克建築師
設計單位:ARC Architects
總樓地板面積:1200 平方米
竣工:2025年
攝影:Denis Komarov
主持建築師:Bobir Klichev
照明設計:aledo
專案團隊:Bekzod Muhammadboev, Mirzoalisher Mirazizov, Mirkamol Shukurov, Zilola Dusthodjaeva
室內設計:Farrukh Shadmanov, Mardon Radjabiy, Muhammadbilol Khaitboev, Temurmalik Azizizov
機電與空調工程:Mazza project